RESOLUCIÓN 663 DE 2018
(marzo 9)
Diario Oficial No. 50.579 de 29 de abril de 2018
MINISTERIO DE CULTURA
Por la cual se declara Bien de Interés Cultural del ámbito Nacional el Centro Histórico (CH) de Jericó (Antioquia) y se aprueba su Plan Especial de Manejo y Protección (PEMP).
LA MINISTRA DE CULTURA,
en ejercicio de las facultades legales que le confiere el numeral 1 del artículo 11 de la Ley 397 de 1997 (modificada por el artículo 7o de la Ley 1185 de 2008) y por el Decreto número 1080 de 2015, y
CONSIDERANDO:
Que el artículo 8o de la Ley 397 de 1997 (modificado por el artículo 5o de la Ley 1185 de 2008, establece el procedimiento para la declaratoria de los bienes de interés cultural, así:
“(…)
Procedimiento
La declaratoria de los bienes de interés cultural atenderá el siguiente procedimiento, tanto en el orden nacional como territorial:
1. El bien de que se trate se incluirá en una Lista Indicativa de Candidatos a Bienesde Interés Cultural por la autoridad competente de efectuar la declaratoria.
2. Con base en la lista de que trata el numeral anterior, la autoridad competentepara la declaratoria definirá si el bien requiere un Plan Especial de Manejo yProtección.
3. Una vez cumplido el procedimiento descrito en los dos numerales anteriores, elConsejo Nacional de Patrimonio Cultural respecto de los bienes del ámbito nacional,…, emitirá su concepto sobre la declaratoria y el Plan Especial de Manejoy Protección si el bien lo requiriere.
4. Si el concepto del respectivo Consejo de Patrimonio Cultural fuere favorable, laautoridad efectuará la declaratoria y en el mismo acto aprobará el Plan Especialde Manejo y Protección si este se requiriere”;
Que el artículo 2.4.1.4. del Decreto Único Reglamentario del Sector Cultura número 1080 de 2015, prevé:
“Artículo 8o. Lista indicativa de Candidatos a Bienes de interés Cultural. La inclusión de un bien en la Lista Indicativa 'de Candidatos a Bienes de interés Cultural, cuya sigla es –LICBIC–, constituye el primer paso que deberá cumplir la instancia competente dentrodel proceso de declaratoria de BIC. Esta inclusión no implica la sujeción del mismo alRégimen Especial de Protección establecido en la Ley 1185 de 2008 y reglamentado eneste decreto.
La LICBIC consiste en un registro de información que administrará, en cada caso, la autoridad competente.
Podrán ingresar a la LICBIC aquellos bienes que, de acuerdo con su significación cultural en el ámbito correspondiente (nacional, departamental, distrital, municipal, territorios indígenas o territorios de comunidades negras de que trata la Ley 70 de 1993) y por estar acorde con los criterios de valoración señalados en el Título anterior, son susceptibles de ser declarados como BIC.
Una vez incluido un bien en la LICBIC, la autoridad competente definirá si el mismo requiere o no la formulación de un Plan Especial de Manejo y Protección (PEMP).
La inclusión de un bien en la LICBIC se comunicará al solicitante o al propietario, usufructuario o persona interesada o a los terceros Indeterminados, en la forma dispuesta por el Código Contencioso Administrativo.
La LICBIC debe integrarse al Inventario de Patrimonio Cultural de la Nación que administra el Ministerio de Cultura o a los inventarios que administren, en sus respectivas especialidades, las autoridades nacionales y territoriales competentes. En todo caso la Inclusión de bienes en una LICBIC del ámbito nacional o territorial debe informarse en un término no superior a un mes al Ministerio de Cultura, el cual podrá fijar las características que deberá reunir dicha información”;
Que de conformidad con lo dispuesto en el artículo 3o y 38 (literal a), numeral 1) de la Resolución número 983 de 2010, el 13 de marzo de 2013 la Dirección de Patrimonio efectuó la inclusión en la LICBIC del ámbito Nacional del Centro Histórico de Jericó (Antioquia) y determinó la necesidad del PEMP;
Que la Dirección de Patrimonio, mediante Oficio MC-000752-EE-2013 dirigido al Alcalde de Jericó (Antioquia), le informó sobre la inclusión en la LICBIC del Centro Histórico de Jericó y la necesidad de formulación del correspondiente PEMP;
Que los Sectores Urbanos están definidos como la “Fracción del territorio de una población dotada de fisonomía, características y de rasgos distintivos que le confieren cierta unidad y particularidad”, y los clasifica dentro de la Categoría de bienes Inmuebles del Grupo Urbano(1);
Que el numeral 10 del artículo 12 del Decreto-ley 1746 de 2003, establece que corresponde a la Dirección de Patrimonio estudiar y evaluar las propuestas de declaratoria de obras arquitectónicas y escultóricas como bienes de interés cultural para poner dichas propuestas a consideración del Consejo Nacional de Patrimonio Cultural y del Ministerio de Cultura;
Que según el artículo 12, ibídem, entre las funciones de la Dirección de Patrimonio, está la de asesorar al Ministro de Cultura en el diseño de políticas y propuestas para la preservación, conservación, protección y estudio del patrimonio mueble e inmueble, y que dicha dirección es la encargada de diseñar, coordinar, elaborar, dirigir y ejecutar los proyectos y programas relacionados con la valoración, protección, conservación, restauración y atención de emergencias de los bienes de interés cultural del ámbito nacional, conforme a las políticas del Ministerio;
Que de conformidad con previsto en el artículo 2.4.1.2. del Decreto Único Reglamentario del Sector Cultura (DUR-SC) número 1080 de 2015, los valores considerados por la Dirección de Patrimonio y presentados al Consejo Nacional de Patrimonio Cultural para su consideración y concepto favorable para la declaratoria del Centro Histórico de Jericó (Antioquia) como Bien de Interés Cultural del ámbito Nacional, son los que seguidamente se indican:
CRITERIOS DE VALORACIÓN:
Valor Histórico:
En 1835, los comerciantes Gabriel Echeverri, Juan Uribe y Juan Santamaría lograron que el Estado colombiano les vendiera 160.496 fanegadas en las montañas de Caramanta, a cambio de bonos de deuda pública.
El 28 de septiembre de 1850, la Ordenanza número 15 de la Cámara Provincial de Antioquia ordenó la creación de una aldea denominada Piedras, en tierras del distrito de Caramanta. En 1853 se designó oficialmente como Jericó y se establecieron sus límites territoriales mediante una ordenanza firmada por el Presidente de la República Mariano Ospina Pérez.
En 1871, la Legislatura del Estado de Antioquia aprobó la creación del Circuito Judicial de Jericó, que comenzaría a funcionar el 1 de enero de 1872.
En Jericó, en 1874, nació la madre Laura Montoya Upegui, religiosa sobresaliente en el ámbito local y nacional, la cual fue canonizada por el Papa Francisco el 12 de mayo de 2013. Laura Montoya fundó la primera orden misionera femenina del país: la congregación de Hermanas Misioneras de María Inmaculada y Santa Catalina de Siena, conocidas coloquialmente como las Lauritas.
A comienzos del siglo XX Jericó fue nombrado departamento, y en 1955 Jericó se erigió como parroquia.
En 1915, mediante la Bula Universi Dominici Gregis del Papa Benedicto XV, Jericó obtuvo la categoría de cabecera diocesana. Entre 1906 y 1974, en su territorio se establecieron diez comunidades religiosas que construyeron sus respectivos conventos y templos.
En 1916 se inició la construcción del Seminario Diocesano, adonde acudieron estudiantes de otros pueblos y ciudades. Posteriormente se crearon varios colegios: el de San José, para hombres, el Colegio de María, para mujeres, y el Colegio Semioficial, regentado por las hermanas de la Presentación.
Durante las últimas décadas del siglo XIX, Jericó se convirtió en un centro económico de gran importancia gracias a la alta producción de café.
Entre 1875 y 1940 se establecieron diversas industrias, como fábricas de cerveza y de textiles, entre ellas Coltejer y la Chocolatería Don Pepe, que posteriormente se convertiría en la Compañía Nacional de Chocolates. Este crecimiento agrícola e industrial hizo de Jericó un verdadero emporio empresarial y productivo del suroeste antioqueño y del occidente de Colombia.
Paralelamente al desarrollo del casco urbano se mejoraron las vías de acceso a la población.
Valor Estético:
Jericó no fue un municipio de crecimiento espontáneo, sino planeado. El ingeniero sueco Carlos Segismundo de Greiff se encargó de la medición de tierras y del trazado de la población, sobre terrenos donados por el señor Santiago Santamaría. Las primeras viviendas fueron de construcción modesta, con características formales y espaciales de la arquitectura de la colonización antioqueña.
Jericó contaba en 1851 con 709 habitantes. Hacia 1883 aumentó a 11.593. Este desarrollo propició la definición de lugares especializados en la conformación urbana del poblado, con la plaza como eje articulador a partir del cual se establecieron espacios institucionales, comerciales y de servicio, y las viviendas de los más prestantes grupos sociales. También se erigieron como focos secundarios de crecimiento, en las inmediaciones del Parque de los Fundadores, el seminario, el cementerio y los colegios de María y de La Presentación.
Cuando Jericó obtuvo la categoría de sede episcopal, su templo se convirtió en catedral. El interés en mejorar el templo hizo que se invitara a artistas para decorarlo, entre ellos, al pintor y ornamentador de ascendencia italiana Mauricio Ramelli Andreani. En 1933 se presentaron las primeras fallas en la estructura de la Catedral, sobre las que el arquitecto belga Agustín Goovaerts van Engelgeny hizo algunas recomendaciones que no fueron tenidas en cuenta. En 1939 el templo se vio afectado por un incendio que deterioró su estructura. En 1945, una comisión de ingenieros del Ministerio de Obras Públicas conceptuó que los daños eran irreversibles, por lo que ordenó una demolición parcial del templo. La nueva Catedral, que comenzó a erigirse en 1949, se finalizó en 1969.
Constitución del bien:
Los inmuebles del sector histórico de Jericó conservan, en diferentes grados, diversas características materiales, como las siguientes:
- La estructura portante se compone de tapia pisada en el primer nivel y bahareque en el segundo.
- Los pisos y entrepisos presentan, en el primer nivel, revestimientos cerámicos como baldosas policromadas de cemento y tabletas o baldosas de arcilla cocida.
En el segundo nivel se encuentran entresuelos de tablones de madera al tope, que tienen un ancho aproximado de 30 cm. Los parales o pies derechos pueden ser de guadua, madera aserrada o incluso de madera rolliza.
- Las cubiertas tienen estructuras mixtas de madera aserrada y rolliza, además de guadua o esterilla, utilizadas en el cerramiento. Es frecuente el uso de la teja de barro, o teja española, puesta sobre un recubrimiento de tierra, varas de caña brava o esterilla de guadua. Una característica de este tipo de cubiertas es el alero, que se proyecta hacia el exterior del inmueble y hacia espacios interiores, como el patio o los corredores.
- Las carpinterías de madera, como puertas, contraportones, ventanas, balcones, pasamanos y columnas, entre otros elementos, fueron elaborados con maderas de la región, como el chaquiro, el cedro, cedro negro y comino, y aún adornan diferentes construcciones del sector histórico. En algunas obras de carpintería interviene el hierro forjado, aunque no es una modalidad muy extendida.
Estado de conservación:
La trama urbana en damero, proyectada desde la fundación del pueblo, se conserva casi intacta. Respecto a los inmuebles, presentan alteraciones a la originalidad formal y estética, particularmente alrededor de la plaza principal, para atender el uso comercial predominante. Asimismo, se han anulado puertas y ventanas tradicionales de madera, que han sido reemplazadas por persianas y ventanas metálicas. Se aprecian, igualmente, cambios en las relaciones entre llenos y vacíos, e incluso en la volumetría de los inmuebles, debido a adiciones de entrepisos y balcones simulados. Sin embargo, la lectura de conjunto permite observar un modelo rector de ciudad y de arquitectura en el que se mantienen los valores estéticos heredados de una época en que Jericó era uno de los poblados emergentes más importantes del departamento de Antioquia.
Valor simbólico:
La forma de cuadrícula en la traza urbana de Jericó es fruto de la herencia hispánica que se mantuvo incluso en poblaciones que surgieron durante épocas posteriores al periodo colonial. Sin embargo, la representatividad de Jericó y de su centro va más allá de la dimensión histórica. Desde la fundación, los habitantes del pueblo han producido y mantenido las características particulares, espaciales y materiales, tanto de sus casas de habitación como de los inmuebles institucionales y religiosos. Así, se han tejido vínculos históricos y vivenciales con otras épocas, que se han convertido en referentes culturales que les permiten a los jericoanos identificarse y definirse frente al mundo;
Que en cumplimiento de lo dispuesto en el numeral 3 del artículo 8o de la Ley 397 de 1997 (modificado por el artículo 5o de la Ley 1185 de 2008), reglamentado por el artículo 2.4.1.3. del Decreto número 1080 de 2015, la Dirección de Patrimonio sometió a consideración del Consejo Nacional de Patrimonio Cultural la solicitud de declaratoria del Centro Histórico de Jericó (Antioquia) como Bien de Interés Cultural del ámbito Nacional;
Que según consta en el Acta número 2 del 15 de marzo de 2013, el Consejo Nacional de Patrimonio Cultural luego de conocer la inclusión en la LICBIC del Centro Histórico de Jericó, y una vez constatados los criterios de valoración requeridos, emitió concepto favorable y recomendó a la señora ministra de Cultura la declaratoria como Bienes de Interés Cultural del ámbito Nacional, emitió concepto favorable para la declaratoria de Bien de Interés Cultural del ámbito Nacional del Centro Histórico de Jericó (Antioquia);
Que el artículo 2.4.1.9. del Decreto número 1080 de 2015, precisa lo que debe contener como mínimo el acto administrativo de declaratoria de un bien como BIC;
Que el numeral 1.2. del artículo 11 de la Ley 397 de 1997 (modificado por el artículo 7o de la Ley 1185 de 2008), señala:
“1.2. Incorporación al Registro de Instrumentos Públicos. La autoridad que efectúe la declaratoria de un bien inmueble de interés cultural informará a la correspondiente Oficina de Registro de Instrumentos Públicos a efectos de que esta incorpore la anotación en el folio de matrícula inmobiliaria correspondiente”;
Que dado lo anterior, y con base en las facultades otorgadas por el artículo 8o de la Ley 397 de 1997 (modificado por el artículo 5o de la Ley 1185 de 2008), reglamentado por el artículo 2.4.1.3. del Decreto número 1080 de 2015, le corresponde al Ministerio de Cultura expedir el acto administrativo que declare el Centro Histórico de Jericó (Antioquia) como Bien de Interés Cultural del ámbito Nacional (BICN);
Que los Planes Manejo y Protección (PEMP) son un instrumento de gestión del Patrimonio Cultural de la Nación, mediante el cual se establecen acciones necesarias con el objetivo de garantizar la protección, conservación y sostenibilidad los BIC;
Que el artículo 11 de la Ley 397 de 1997 (modificado por el artículo 7o de la Ley 1185 de 2008), prevé el Régimen Especial de Protección de los bienes de interés cultural y, entre otros, prevé que el PEMP indicará el área afectada, la zona de influencia, el nivel permitido de intervención, las condiciones de manejo y el Plan de Divulgación que asegurará el respaldo comunitario a la conservación de estos bienes;
Que el Área Afectada es “la demarcación física del inmueble o conjunto inmuebles, compuesta por sus áreas construidas y libres,…”(2);
Que la Zona de Influencia está definida como la “demarcación del contexto circundante o próximo del inmueble, necesario para que los valores del mismo se conserven. Para la delimitación de la zona de influencia, se debe realizar un análisis de las potencialidades y de las amenazas o riesgos que puedan afectar al bien, en términos de paisaje, ambiente, contexto urbano o rural e infraestructura”(3);
Que el numeral 1.3 del artículo 114 de la Ley 397 de 1997 (modificado por el artículo 7o de la Ley 1185 de 2008), señala que:
“Los Planes Especiales de Manejo y Protección relativos a bienes inmuebles deberán ser incorporados por las autoridades territoriales en sus respectivos planes de ordenamiento territorial. El PEMP puede limitar los aspectos relativos al uso y edificabilidad del bien inmueble declarado de interés cultural y su área de influencia aunque el Plan de Ordenamiento Territorial ya hubiera sido aprobado por la respectiva autoridad territorial”;
Que según el numeral 2 del ordinal I del artículo 2.4.1.1.2. del Decreto número 1080 de 2015, el “Espacio Público” constituye una de las categorías de Bienes Inmuebles, y está definido como el “Conjunto de inmuebles de uso público, y de elementos de los inmuebles privados destinados por su naturaleza, usos o afectación a la satisfacción de necesidades urbanas colectivas que trascienden los límites de los intereses individuales de los habitantes”;
Que el ordinal I del artículo 2.4.1.1.3 del Decreto número 1080 de 2015, establece que los bienes del Grupo Urbano declarados BIC se procurará la formulación de un PEMP;
Que de conformidad con lo dispuesto en el inciso segundo del artículo 2.4.1.3.1 del Decreto número 1080 de 2015, la formulación del PEMP de los bienes del grupo urbano y de los monumentos en espacio público, le corresponde a las autoridades distritales o municipales del territorio en donde estos se localicen;
Que los numerales 1.2-7 y, 1.2-13 del artículo 2.3.1.3., del Decreto número 1080 de 2015, establecen que el Ministerio de Cultura tiene competencia específica para:
“7. Aprobar los PEMP de bienes que declare como BIC del ámbito nacional o los declarados como tal antes de la expedición de la Ley 1185 de 2008,…, previo concepto del Consejo Nacional de Patrimonio Cultural”.
“13. Informar a la correspondiente Oficina de Registro de Instrumentos Públicos para que incorpore la anotación en el folio de matrícula inmobiliaria respecto de los BIC Inmuebles que declare…, así como sobre la existencia del PEMP aplicable…”;
Que de conformidad con el numeral 1 del artículo 2.4.1.1.8. (“Condiciones de manejo”), ibídem, una de las determinantes de los Aspectos Físico-Técnicos del PEMP la constituye el espacio público;
Que la Ley 388 de 1997(5), establece:
“Artículo 10. Determinantes de los planes de ordenamiento territorial. En la elaboración y adopción de sus planes de ordenamiento territorial los municipios y distritos deberán tener en cuenta las siguientes determinantes, que constituyen normas de superior jerarquía, en sus propios ámbitos de competencia, de acuerdo con la Constitución y las leyes:
(…)
2. Las políticas, directrices y regulaciones sobre conservación, preservación y uso de las áreas e inmuebles consideradas como patrimonio cultural de la Nación y de los departamentos, incluyendo el histórico, artístico y arquitectónico, de conformidad con la legislación correspondiente”;
Que, concordante con lo anterior, el numeral 1.5 del artículo 11 de la Ley General de Cultura, establece:
“1.5. Prevalencia de las normas sobre conservación, preservación y uso de las áreas e inmuebles consideradas patrimonio cultural de la Nación. De conformidad con lo preceptuado en los numerales 2 del artículo 10 y 4o del artículo 28 de la Ley 388 de 1997 o las normas que los sustituyan, las disposiciones sobre conservación, preservación y uso de las áreas e inmuebles de interés cultural constituyen normas de superior jerarquía al momento de elaborar, adoptar, modificar o ajustar los Planes de Ordenamiento Territorial de municipios y distritos”;
Que, por su parte, el artículo 2.4.1.1. del Decreto número 1080 de 2015, itera lo siguiente:
“Prevalencia de disposiciones sobre patrimonio cultural. De conformidad con lo dispuesto en el artículo 7o de la Ley 1185 de 2008, numeral 1.5 y con lo preceptuado en la Ley 388 de 1997 o las normas que los modifiquen o sustituyan, las disposiciones sobre conservación, preservación y uso de las áreas e inmuebles declarados como BIC prevalecerán al momento de adoptar, modificar o ajustar los Planes de Ordenamiento Territorial de municipios y distritos”;
Que de conformidad con lo dispuesto en el Decreto número 1077 de 2015(6):
“Artículo 2.2.3.4.7 Adaptación de bienes de interés cultural. La adecuación o adaptación de inmuebles declarados como bienes de interés cultural de conformidad con la Ley 397 de 1997, se someterán a las regulaciones de conservación aplicables a tales bienes, las cuales prevalecerán en todos los casos sobre esta reglamentación”.
“Artículo 2.2.6.1.1.9. Autorización de actuaciones urbanísticas en bienes de interés cultural.
…, cuando se haya adoptado el Plan Especial de Manejo y Protección de Bienes de Interés Cultural por la autoridad competente, las solicitudes de licencias urbanísticas sobre bienes de interés cultural y sobre los inmuebles localizados al interior de su zona influencia, se resolverán con sujeción a las normas urbanísticas y de edificación que se adopten en el mismo.
PARÁGRAFO. El anteproyecto autorizado por la entidad que hubiere efectuado la declaratoria de Bienes de Interés Cultural no podrá ser modificado en volumetría, altura, empates ni condiciones espaciales, sin previa autorización por parte de la misma entidad”;
Que el coloquio de Quito PNUD/Unesco (1977) definió el concepto de Centro Histórico (CH) como todos aquellos asentamientos humanos vivos, fuertemente condicionados por una estructura física proveniente del pasado, reconocibles como representativos de la evolución de un pueblo. Estos sectores, además de ser considerados los lugares más simbólicos de la ciudad, juegan un importante rol dentro de la estructura urbana, ya que generalmente se constituyen en el “centro urbano”, entendido como el lugar donde se concentran las funciones institucionales, comerciales, administrativas, financieras y de gobierno,
Los lineamientos de política para la recuperación de los CH se fundamentan en la necesidad de articular las estrategias de preservación del patrimonio cultural y las de ordenamiento territorial, con el objeto de definir una estrategia integral(7) que permita potenciar las características de los mismos como portadores de memoria y elementos clave para el desarrollo económico y urbano de las ciudades;
Que en el contexto anterior, dichos lineamientos están orientados a la conservación del rol de “centro urbano” de los CH, para garantizar el equilibrio de las distintas actividades que se desarrollan en ellos;
Que los Centros Históricos (CH) son oportunidades de desarrollo para un grupo de municipios del país (entre ellos Jericó), que por sus características patrimoniales particulares representan un potencial excepcional para la dinamización de ciudades y municipios, a través de la oferta de espacio público, turismo cultural, vivienda y servicios de calidad;
Que el Plan Nacional de Recuperación de Centros Históricos (PNRCH) propone recuperar los sectores urbanos declarados BICN mediante una estrategia que aborda tres áreas fundamentales: los valores del BIC, los riesgos (de orden legal, institucional, financiero y físico) que amenacen la integridad del bien, y su puesta en valor. En el marco de dicho Plan, la Administración Municipal de Jericó y el Instituto de Cultura y Patrimonio de Antioquia, adelantaron el diagnóstico y la formulación del Plan Especial de Manejo y Protección (PEMP) del Centro Histórico de Jericó y su Zona de Influencia;
Que el Conpes 3658 de 2010, mediante el cual se establecen los “Lineamientos de política para la recuperación de los centros históricos de Colombia”, tiene entre sus objetivos el de:
“(…) definir las estrategias para estructurar y articular las acciones de los actores institucionales de los diferentes ámbitos gubernamentales que intervienen en la implementación de las políticas de recuperación de los CH,…”;
Que el Plan de Acción del Conpes 3658 de 2010 determina las acciones para apoyar a las entidades territoriales en la implementación de políticas de recuperación de Centros Históricos (CH), en la optimización de recursos financieros y en los procesos de recuperación de funcionalidad de los CH;
Que los riesgos que amenazan los valores atribuidos al Centro histórico de Jericó son los siguientes:
1. Inadecuadas intervenciones que atentan contra la conservación del patrimonio tradicional construido. A la fecha se registra un alto nivel de intervención de los inmuebles que pone en riesgo la conservación de los valores de autenticidad y constitución del BIC.
2. Deterioro avanzado de las edificaciones por el ataque del comején a las maderas.
3. Aumento de usos comerciales que ponen en riesgo los valores arquitectónicos del municipio.
4. Aumento del turismo que pone en evidencia la necesidad de formular un plan de turismo y de movilidad que proteja los valores patrimoniales en los que se sustenta la declaratoria;
Que el equipo consultor, habiendo presentado el PEMP del Centro Histórico de Jericó ante el Consejo Departamental de Patrimonio Cultural, obtuvo concepto favorable mediante el Acta número 4 del 23 de septiembre del 2015;
Que para la expedición del presente Plan Especial de Manejo y Protección, la consultoría contratada por el Departamento de Antioquia realizó, entre otras, las siguientes actividades que se encuentran documentadas en actas suscritas por quienes intervinieron en las mismas:
| Actividades | Fechas | Lugares |
| Taller de lanzamiento 1 | 20/6/2014 | Casa de la Cultura |
| Taller de lanzamiento 2 | 21/6/2014 | Casa Episcopal |
| Taller de lanzamiento 3 | 21/6/2014 | Museo de Arte Religioso |
| Taller de lanzamiento 4 | 22/6/2014 | Casa de líder social |
| Taller de lanzamiento 5 | 23/6/2014 | Hotel Felicina, Café Zaturia, La Noelia, Pizzería José |
| Taller de lanzamiento 6 | 1/8/2014, 8-10 a. m. | Museo MAJA |
| Actividades | Fechas | Lugares |
| Taller de lanzamiento 7 | 1/8/2014, 10-12 a. m. | Museo MAJA |
| Taller de lanzamiento 8 | 1/8/2014, 2-4 p. m. | Museo MAJA |
| Taller de lanzamiento 9 | 1/8/2014 4-6, p. m. | Museo MAJA |
| Taller de lanzamiento 10 | 2/8/2014 | Museo MAJA |
| Talleres de análisis y diagnóstico (4) | 22/9/2014 | Seminario San Juan Eudes |
| Taller de análisis y diagnóstico | 22/9/2014 | Monasterio Santa Clara (clausura) |
| Talleres de análisis y diagnóstico (2) | 23/9/2014 | Seminario San Juan Eudes |
| Taller de análisis y diagnóstico | 27/9/2014 | Centro de Historia |
| Talleres de análisis y diagnóstico (2) | 29/9/2014 | Seminario San Juan Eudes |
| Taller de propuesta integral y formulación | 24/11/2014 | Casa de la Cultura |
| Taller de propuesta integral y formulación | 25/11/2014 | Concejo Municipal |
| Taller de propuesta integral y formulación | 26/11/2014 | Casa de la Cultura |
| Taller de propuesta integral y formulación | 26/11/2014 | Concejo Municipal |
| Taller de propuesta integral y formulación | 27/11/2014 | Museo MAJA |
Que en consecuencia, y con base en las facultades otorgadas por el artículo 8o de la Ley 397 de 1997 (modificado por el artículo 5o de la Ley 1185 de 2008), reglamentado por el artículo 2.4.1.3. del Decreto número 1080 de 2015, corresponde al Ministerio de Cultura expedir el acto administrativo que declare Bien de Interés Cultural del ámbito Nacional el Centro Histórico de Jericó (Antioquia) y, apruebe el Plan Especial de Manejo y Protección de dicho Centro Histórico y su zona de influencia;
Que en cumplimiento de lo dispuesto en el numeral 3 del artículo 8o de la Ley 397 de 1997 (modificado por el artículo 5o de la Ley 1185 de 2008), reglamentado por el artículo 2.4.1.3. del Decreto número 1080 de 2015, la Dirección de Patrimonio sometió a consideración del Consejo Nacional de Patrimonio Cultural la solicitud de declaratoria como bienes de interés cultural del ámbito nacional del Centro Histórico de Jericó, Antioquia, así como la aprobación del correspondiente PEMP;
Que según consta en el Acta número 1 del 10 de marzo de 2016, el Consejo Nacional de Patrimonio Cultural emitió concepto favorable y recomendó a la señora ministra de Cultura aprobar el Plan Especial de Manejo y Protección del Centro Histórico de Jericó (Antioquia);
En mérito de lo expuesto,
RESUELVE:
ARTÍCULO 1o. DECLARATORIA. Declarar Bien de Interés Cultural del ámbito Nacional (BICN) el Centro Histórico (CH) de Jericó (Antioquia).
ARTÍCULO 2o. DELIMITACIÓN. En cumplimiento de lo dispuesto en el numeral 2 del artículo 2.4.1.9. del Decreto número 1080 de 2015, la delimitación del Área Afectada (AA) y de la Zona de Influencia (ZI) del Centro Histórico de Jericó, es la siguiente:
2.1 Área Afectada (AA):
Delimitación-trayectoria
Punto de inicio, punto 1, ubicado en el costado nororiental del área urbana del municipio de Jericó, en la intersección de la vía que conduce a Medellín, con la línea que define el perímetro urbano; desde este punto, en sentido oriente, continuando la línea del perímetro urbano, hasta el punto 2, localizado en la intersección con la vía calle 2N; desde este punto, en sentido sur, por el eje de esta vía, calle 2N, bordeando el Cerro El Salvador, hasta su intersección con la carrera 6, punto 3; desde este punto, en sentido suroccidental, por el eje de la vía carrera 6, hasta su intersección con la prolongación de la línea del límite nororiente del predio 000200076, punto 4; desde este punto, en sentido suroriental, bordeando el límite nororiental del predio 000200076 hasta su intersección con el límite sur de este mismo predio, vértice, punto 5; desde este punto, en sentido suroccidental hasta su intersección con el límite norte del predio 000200061, vértice, punto 6; desde este punto, en sentido suroriental, bordeando el límite nororiental los predios 000200061, 000200060, 000200059, 000200058, 000200057, 000200056, hasta su intersección con el límite noroccidental del predio 000200055, punto 7; desde este punto, en sentido oriente por el límite noroccidental de este predio hasta su intersección con el límite oriental de este mismo predio, 000200055, vértice, punto 8; desde este punto, en sentido suroriental, bordeando el límite nororiental de los predios 000200055, 000200054 y 000200080, hasta su intersección con el límite occidental del predio 000200053, punto 9; desde este punto, en sentido suroriental, bordeando los límites noroccidental, norte y nororiental de este mismo predio y el límite nororiental de los predios 000200079, 000200052, en el cual, la delimitación del perímetro del centro histórico incluye la edificación que alberga el monasterio de las Clarisas, para posteriormente continuar por el límite nororiental de los predios 000200051 y 000200050, 000200048, 000200047, 000200046 000200045, 000200044 000200043, 000200042 y 000200041, hasta la intersección, entre la prolongación de límite de este último predio 000200041 con la carrera 8, punto 10; desde este punto, en sentido suroriental, atravesando esta vía, hasta su intersección con el límite noroccidental del predio 00020150, punto 11; desde este punto, en sentido suroriental bordeando el límite nororiental de los predios 000200150, 000200038, 000200037, 000200036, 000200035, 000200034, 000200032, y el límite norte de los predios 000200031, 000200030, 000200028, 000200025 y 000200020, hasta su intersección con la carrera 9, punto 12; desde este punto, en sentido sur siguiendo la carrera 9 hasta su intersección con la calle 1, vértice predio 000200077, punto 131; desde este punto, en sentido oriental bordeando el límite sur de los predios 000200077, 000200018 y 000200017, hasta la intersección con el límite del predio, 000200016, punto 14; desde este punto, en dirección sur, por la vía carrera 9, hasta su intersección con el vértice suroriental del predio 00300087, Cementerio, punto 15; desde este punto, en sentido occidental, bordeando el límite sur del predio 0003000018, Cementerio, hasta la intersección con el límite occidental, esquina, de este mismo predio 0003000018, Cementerio, punto 16; desde este punto, en sentido norte, en línea recta, hasta su intersección con el límite suroriental, esquina, del predio 000300017, Seminario, punto 17; desde este punto, en sentido suroccidental bordeando este límite sur del Seminario, hasta el punto que demarca el vértice del límite sur del Seminario y cambia de sentido hacia el noroccidente, punto 18; desde este punto, en sentido noroccidental, hasta su intersección con el límite nororiental del predio identificado con número catastral 00030083, punto 19; desde este punto, en sentido noroccidental, por el límite de este predio, hasta su intersección con el predio 0000300076, vértice, punto 20; se continúa en dirección nororiental por el costado de este predio, hasta su límite con el predio 0000300012, punto 21; desde este punto en dirección noroccidental se continúa por el costado norte de los predios 0000300076, 0000300025, 0000300072, 0000300073, 0000300026, 0000300029, punto 22; desde este punto se continúa por el límite de los predios 0000300030, 0000300038, hasta llegar al límite con el predio 0000300032, punto 23; se continúa por la línea suroriental que delimita los predios 0000300032, 0000300033 y 0000300040, hasta la intersección con la carrera 7, punto 24; desde este punto y hacia el suroccidente por el eje de la vía de la carrera 7 hasta su intersección con la calle 2, punto 25; desde este punto, en sentido noroccidental, en línea recta, continuando por el eje de la vía calle 2, hasta su intersección con el eje de la vía carrera 6, punto 26; desde este punto, en sentido suroccidental, en línea recta por el eje de la vía carrera 6 hasta su intersección con el eje de la vía calle 9, punto 27; desde este punto, en sentido noroccidental, en línea recta, por el eje de la vía calle 9 hasta su intersección con el eje de la vía, carrera 5, punto 28; desde este punto, en sentido suroccidental, por el eje de la vía carrera 5, hasta su intersección con la prolongación del límite suroccidental del predio 007000017, punto 29; desde este punto, en sentido noroccidental, bordeando el límite suroccidental de los predios 007000017, 007000016, 007000097 (edificación que alberga el Templo Nuestra Señora del Inmaculado Corazón de María), 007000105 y 007000071, hasta la intersección de la prolongación del límite suroccidental de este último predio, 007000071, con la carrera 4, punto 30; desde este punto, en sentido nororiental, por el eje de la vía carrera 4, hasta su intersección con el eje de la vía calle 9, punto 31; desde este punto, en sentido noroccidental, en línea recta por el eje de la vía calle 9, hasta su intersección con la carrera 2, punto 32; desde este punto, en sentido nororiental por el eje de la vía carrera 2, hasta su intersección con la calle 8, punto 33; desde este punto, en sentido noroccidental, en línea recta, por el eje de la vía calle 8, hasta su intersección con el eje de la vía carrera 1, punto 34; desde este punto, en sentido nororiental, en línea recta por el eje de la vía carrera 1, se encuentra el punto 35, en intersección con la prolongación del límite noroccidental del predio 0003200011, continuando por el eje de la vía carrera 1 hasta su intersección con el eje de la vía calle 4, punto 36; desde este punto, en sentido noroccidental, en línea recta por esta vía, hasta su intersección con la prolongación del límite noroccidental, esquina, de la edificación que alberga la escuela de la Madre Laura, predio 001800016, punto 37; desde este punto, en sentido nororiental, en línea recta bordeando este límite de la edificación de la escuela de la Madre Laura, hasta su intersección con el límite nororiental, esquina, de esta misma edificación, punto 38; desde este punto, en sentido suroriental, bordeando el perímetro límite de esta edificación y proyectado, hasta su intersección con el eje de la vía carrera 1, punto 39; desde este punto, en sentido nororiental, en línea recta, por el eje de la vía carrera 1, hasta su intersección con el eje de la vía calle 3, punto 40; desde este punto, en sentido suroriental, en línea recta, por el eje de la vía calle 3, hasta su intersección con el eje de la vía carrera 1 A, punto 41; desde este punto, en sentido nororiental, en línea recta, por el eje de la vía carrera 1 A, hasta su intersección con el límite noroccidental del predio 001100051, punto 42; desde este punto, en sentido noroccidental bordeando este límite noroccidental hasta su intersección con el límite norte, esquina, de este mismo predio, 001100051, punto 43; desde este punto, en sentido nororiental, en línea recta, bordeando este límite en toda su extensión, hasta la intersección de su prolongación con el eje de la vía calle 1, salida a Medellín, punto 44; desde este punto, en sentido oriental y suroriental por el eje de esta vía, hasta su intersección con el punto 1, punto de partida.
PARÁGRAFO. El Área Afectada (AA), o Centro Histórico, corresponde a 34,23 hectáreas, que comprenden un total de 37 manzanas y 771 predios, identificados en el Plano FORM 7 “Área Afectada Centro Histórico”.
2.2 Zona de Influencia (ZI):
Delimitación-trayectoria
Polígono 1: localizado al nororiente del casco urbano del municipio, inicia su descripción en el punto 88, localizado en la confluencia de los predios 0000200138, 0000200164 y 000020052, localizado entre la vía Circunvalar y la carrera 6; desde este punto (punto 88) se continúa por el límite norte del predio 000200052, monasterio de Santa Clara, en sentido oriente, hasta la intersección con el eje de la vía Circunvalar, punto 89; desde este punto, por el eje de la vía Circunvalar, en sentido suroriental hasta la intersección con la prolongación del límite oriental del predio 000200052, monasterio de Santa Clara, punto 90; desde este punto, por este límite, en sentido suroccidental, hasta la intersección con el límite norte del predio 010300099, vértice, punto 91; por el límite nororiental del predio 010300099, en sentido suroriental, hasta la intersección de su prolongación con el eje de la vía carrera 8, punto 92; desde este punto, en sentido nororiental, por el eje de la vía carrera 8, hasta su intersección con el eje de la vía calle 2N, punto 93; desde este punto, por el eje de la vía calle 2N, hasta la intersección con el límite occidental del predio 000200012, punto 94; desde este punto, por el límite occidental del predio 000200012, en sentido sur hasta la intersección con el límite noroccidental, vértice, del predio 000200017, punto 95; desde este punto, en sentido oriental, bordeando el límite norte de los predios 000200017, 000200016, 000200014, 000200013 hasta la intersección de la prolongación del límite norte del predio 000200013 con el eje de la vía carrera 10, punto 96; desde este punto por el eje de la vía carrera 10, en sentido sur, hasta su intersección con el eje de la vía calle 1, camino del Estado, punto 97; desde este punto, en sentido suroccidental, atravesando la vía calle 1, hasta la intersección, con el eje de la vía carrera 10, punto 98; desde este punto y continuando por el eje de esta vía carrera 10, en sentido sur hasta su intersección con la prolongación del límite sur del predio 010600001, punto 99; desde este punto, en sentido occidental, bordeando el límite sur de los predios 010600001 y 010600002, hasta la intersección entre la carrera 9 A y la prolongación del límite sur del edificio del Cementerio, predio 0003000018, punto 15; desde este punto, en sentido occidental, bordeando el límite sur del edificio del Cementerio, hasta la intersección con el límite suroccidental, esquina, del predio 0003000018, punto 16; desde este punto, en sentido norte, en línea recta, hasta su intersección con el límite suroriental, esquina, del predio 000300017, Seminario, punto 17; desde este punto, en sentido suroccidental, bordeando este límite sur del Seminario, hasta el punto que demarca el vértice del límite sur del Seminario y cambia de sentido hacia el noroccidente, punto 18; desde este punto, en sentido noroccidental, hasta su intersección con el límite nororiental del predio identificado con número catastral 000300083, punto 19; desde este punto, por el límite suroriental del predio 000300083, en sentido suroccidental, hasta la intersección del límite suroccidental, vértice del predio 000800029, punto 101; desde este punto, en sentido suroriental, por la línea que demarca el retiro de 80 m, medido desde las edificaciones que conforman el Seminario Conciliar y el Cementerio, respectivamente, cordón fitosanitario, hasta la intersección de esta línea de retiro con el eje de la vía carrera 9 A, punto 100; desde este punto, y pasando por el punto 15, se continúa por el eje de la vía carrera 9 A en sentido nororiente hasta la intersección con el eje de la vía calle 1, camino del Estado, punto 14; desde este punto, por el eje de la vía calle 1, hasta la intersección con el eje de la vía carrera 9, punto 13; desde este punto por el eje de la vía carrera 9, en sentido norte hasta la intersección con el límite sur del predio 000200168, punto 12; desde este punto, en sentido occidental, bordeando el límite norte de los predios 000200020, 0002000025, 000200028, 000200030, 000200031, 000200032, 000200034, 000200035, 0002000036, 0002000037, 000200038 y 000200150, hasta la intersección de la prolongación del límite norte del predio 000200150 con el borde de la vía carrera 8, punto 11; desde este punto, atravesando esta vía, carrera 8, en sentido noroccidental, hasta la intersección con el límite sur del predio 000200099, punto 10; desde este punto, en sentido noroccidental, bordeando el límite norte de los predios, 000200041, 000200042, 000200043, 000200044, 000200045, 000200046, 000200047, 000200048, 000200049, 000200050, 000200051, 000200052, 000200079, 000200053 y 000200080, punto 9; desde este punto, en sentido noroccidental, bordeando el límite nororiental de los predios 000200080, 000200054 y 000200055, hasta su intersección con el límite norte del predio 000200055, punto 8; desde este punto, en sentido suroccidental, por el límite noroccidental del predio 000200055, hasta la intersección con el límite nororiental del predio 000200056, punto 7; desde este punto, en sentido noroccidental, bordeando el límite nororiental de los predios 000200056, 000200057, 000200058, 000200059, 000200060 y 000200061, hasta su intersección con el límite sur del predio 000200076, vértice, punto 6; desde este punto, en sentido noroccidental, hasta su intersección con el límite oriental del predio 000200076, vértice, punto 5; desde este punto, en sentido noroccidental, bordeando el límite nororiental del predio 000200076, hasta la intersección de la prolongación de este límite, con el eje de la vía carrera 6, punto 4; desde este punto, en sentido nororiental, por el eje de la vía carrera 6, hasta la intersección con el eje de la calle 2N, punto 3; ascendiendo en dirección norte por calle 2N hasta encontrar la línea de límite urbano, punto 2; desde este punto, y siguiendo la línea de perímetro urbano, luego de un recorrido de 50 m, se llega al punto 102; en sentido sur se desciende conservando un retiro de 50 m a la calle 2N, hasta el vértice nororiental del predio 0007100011, punto 103; de este predio se desciende en dirección suroccidente por el límite inferior de este predio, hasta llegar al vértice noroccidental del predio 0007100008, punto 104; se continúa por el límite de los predios 0007100008 y 0007100009 hasta intersecar la carrera 6, punto 105; se desciende por la carrera 6 hasta la prolongación del límite nororiental del predio 0000200139, punto 106; por el límite nororiental de este predio, hasta el encuentro con el predio 0000200164, punto 107; se desciende en sentido suroccidental por el límite de estos dos predios, hasta toparse con el límite del predio 0000200138, punto 108; se continúa en sentido suroriental, por el límite de los predios 0000200138 y 0000200164, hasta encontrar el punto 88; punto de partida del polígono 1. Véase el plano. Polígono 2: Localizado al sur del morro de El Salvador, entre las calles 1 y 2. Inicia su descripción en el punto 20; vértice sur del predio 0000300076, se continúa en dirección nororiental por el costado de este predio, hasta su límite con el predio 0000300012, punto 21; desde este punto, en dirección noroccidental, se continúa por el costado norte de los predios 0000300076, 0000300025, 0000300072, 0000300073, 0000300026 y 0000300029, punto 22; desde este punto se continúa por el límite de los predios 0000300030 y 0000300038, hasta llegar al límite con el predio 0000300032, punto 23; se continúa por la línea suroriental que delimita los predios 0000300032, 0000300033 y 0000300040, hasta la intersección con la carrera 7, punto 24; desde este punto y hacia el suroccidente por el eje de la vía de la carrera 7, hasta su intersección con la calle 2, punto 25; se continúa por el eje de la vía de la calle 2 hasta encontrar el punto 20, donde cierra este polígono. Polígono 3: inicia en la esquina norte de la manzana 0007, en la intersección del eje de la vía carrera 6 con el eje de la vía calle 2, punto 26, punto de partida; desde este punto, en sentido suroriental, por el eje de la vía calle 2, hasta su intersección con el eje de la vía carrera 7, punto 25; desde este punto, en sentido suroccidental, por el eje de la vía carrera 7 hasta su intersección con la prolongación del límite nororiental del predio 002400020, punto 41A; desde este punto, en sentido suroriental, bordeando el límite nororiental del predio 002400012, por vía peatonal, vértice, punto 42A; desde este punto, en sentido suroccidental, por el límite del predio 00002400012, hasta la intersección con la proyección del eje de la vía peatonal, punto 43A; desde este punto, por el eje de la vía peatonal de acceso a los predios 002400012, 002400037, 002400011, 002400010 y 002400046, hasta la intersección con el límite oriental 002400045, vértice, punto 44A; desde este punto, por el límite oriental del predio 002400045, en sentido sur, hasta la intersección de la prolongación de este lindero con el eje de la vía Circunvalar, punto 45; desde este punto, por el eje de la vía Circunvalar, en sentido occidental, hasta la intersección con los ejes de las vías carrera 5 A y 7B, punto 46; desde este punto, en sentido suroccidental, por el eje de la vía carrera 7B, hasta su intersección con el eje de la vía calle 9, punto 47; desde este punto, en sentido noroccidental, por el eje de la vía calle 9, hasta su intersección con el eje de la vía carrera 7, punto 48; desde este punto, en sentido suroccidental, por el eje de la vía carrera 7, hasta su intersección con el eje de la vía carrera 9 A, punto 49; desde este punto, en sentido noroccidental, por el eje de la vía carrera 9 A, hasta su intersección con el eje de la vía carrera 6, punto 50; desde este punto, en sentido noroccidental, en línea recta hasta la intersección entre la prolongación del límite occidental del predio 006100027, con el límite sur del predio 006100028, vértice, punto 51; desde este punto, en sentido suroccidental, bordeando el límite suroriental del predio 006100003, hasta su intersección con la quebrada Valladares, punto 52; desde este punto, aguas abajo por la quebrada Valladares, hasta su intersección con el límite suroriental del predio 0006100031, punto 53; desde este punto, bordeando el límite sur de los predios 0006100031 y 0006100001 (hospital), hasta la intersección con la vía calle 10, punto 54; desde este punto, en sentido suroccidental, atravesando la vía calle 10, hasta su intersección con el límite nororiental del predio 0010400015, punto 55; desde este punto, en sentido suroccidental, bordeando el límite oriental de los predios 010400015, 010400010, 010400009, 010400008, 010400007, 010400006, 010400005, 010400021, 010400022 y 010400001, hasta la intersección de la prolongación del límite sur de este último predio (0010400001), con la vía calle 11, punto 56; desde este punto, en sentido suroccidental, atravesando la vía calle 11, hasta su intersección con el límite norte del predio 010500102, punto 57; desde este punto, en sentido oriental bordeando el límite nororiental del predio 010500102, hasta encontrar el vértice que define el límite oriental de este mismo predio, punto 58; desde este punto, en sentido suroccidental, bordeando el límite oriental de los predios 010500102, 010500098, 010500025 y 0010500024, hasta su intersección con la quebrada Pinillos, punto 59; desde este punto, en sentido noroccidental, aguas arriba por la quebrada Pinillos, hasta su intersección con la carrera 5, punto 60; desde este punto, atravesando la vía carrera 5 en sentido norte, hasta su intersección con la quebrada Pinillos, punto 61; desde este, punto en sentido noroccidental continuando aguas arriba por la quebrada Pinillos, hasta su intersección con la carrera 3, punto 62; desde este punto, en sentido nororiental, por el eje de la vía carrera 3, hasta su intersección con la quebrada Valladares, punto 63; desde este punto, en sentido noroccidental aguas arriba por la quebrada Valladares, hasta su intersección con la vía carrera 1, punto 64; desde este punto, en sentido nororiental por el eje de la vía carrera 1, hasta su intersección con la prolongación del límite suroccidental del predio 004600011, punto 35; desde este punto, en sentido nororiental, bordeando el límite occidental del predio 004600011, hasta el punto de quiebre de este lindero, donde toma la dirección norte, punto 65; desde este punto en dirección norte, siguiendo por el lindero del predio 004600011, hasta su intersección con el límite occidental (vértice) del predio 004600005, punto 66; desde este punto, en sentido noroccidental por el lindero suroccidental de los predios 004600005, 004600004, 004600003, 004600002 y 004600001, hasta el límite suroccidental (vértice) del predio del 004600001, punto 67; desde este punto, en sentido nororiental, bordeando el límite occidental del predio 004600001, hasta su intersección con la vía calle 7, punto 68; desde este punto, en sentido oriental atravesando la vía calle 7, hasta su intersección con el límite suroccidental del predio 003200012, punto 69; desde este punto, en sentido nororiental, bordeando el límite occidental del predio 003200012, hasta su intersección con el límite norte de este mismo predio, punto de quiebre hacia el suroriente, punto 70; desde este punto, en sentido suroriental, hasta su intersección con el límite occidental (vértice) del predio 003200003, punto 71; desde este punto, en sentido nororiente, bordeando el límite noroccidental de los predios 003200003, 003200002, 003200001 y 003200016, hasta la intersección del límite norte de este último predio 003200016, con la vía calle 6, punto 72; desde este punto, en sentido norte, atravesando la vía calle 6, hasta su intersección con el límite occidental del predio 003200013, punto 73; desde este punto, en sentido nororiental bordeando el límite noroccidental del predio 003200013, hasta encontrar el límite norte (vértice) de este mismo predio, 003200013, punto de quiebre hacia el suroriente, punto 74; desde este punto, en sentido suroriente, bordeando el límite nororiente del predio 003200013, hasta su intersección con el límite occidental del predio 003200006 (vértice), punto 75; desde este punto, en sentido nororiental bordeando el límite occidental de los predios 003200006 y 003200005, hasta la intersección con el límite occidental del predio 003200004 (vértice), punto 76; desde este punto, en sentido noroccidental, bordeando el límite suroccidental de los predios 003200002 y 003200001, hasta la intersección con el límite occidental del predio 003200001 (vértice), punto de quiebre del límite hacia el nororiente, punto 77; desde este punto, bordeando el límite noroccidental del predio 003200001, hasta la intersección de la prolongación de este límite, con el eje de la vía calle 5, punto 78; desde este punto, en sentido noroccidental, por el eje de la vía calle 5, hasta su intersección con la prolongación del límite noroccidental del predio 001800015, punto 79; desde este punto, en sentido nororiental, bordeando el límite noroccidental del predio 001800015, hasta la intersección con el límite suroccidental del predio 001800014, punto 80; desde este punto, en sentido noroccidental, hasta su intersección con el límite occidental del predio 001800014 (vértice), punto de quiebre, punto 81; desde este punto, en sentido nororiental, bordeando el límite noroccidental del predio 001800014, hasta su intersección con el límite norte (vértice), punto de quiebre con dirección suroriental del predio 001800014, punto 82; desde este punto, en sentido suroriental, hasta la intersección con el límite occidental del predio 001800002 (vértice), punto 83; desde este punto, en sentido nororiental, bordeando el límite norte del predio 001800002, hasta su intersección con el límite nororiental del predio 001800002, punto de quiebre hacia el suroriente, punto 84; desde este punto, en sentido suroriental, hasta su intersección con el límite noroccidental del predio 001800001, punto 85; desde este punto, en sentido nororiental bordeando el límite norte de los predios 001800001 y 001800013, hasta la intersección del límite oriental (vértice) del predio 001800013, punto 86; desde este punto, en sentido sur, bordeando el límite oriental del predio 001800013, hasta la intersección de la prolongación de este límite con el eje de la vía calle 1, salida a Medellín, punto 87; se continúa en dirección oriente por la calle 1, hasta encontrar el límite occidental del predio 0007300002, punto 87A; desde este punto se continúa en dirección norte por el límite de dicho predio, hasta encontrar la línea que se define como perímetro urbano, punto 87B; desde este punto se continúa en dirección oriente en línea recta por el perímetro urbano hasta encontrar el punto 1, donde se da inicio a la descripción del límite interno del polígono 3, coincidente con el perímetro del centro histórico en esta zona. Desde el punto 1, en sentido suroccidental, por el eje de la vía calle 1, salida a Medellín, hasta la intersección del eje de esta vía con la prolongación del límite oriental del predio 001700011, punto 44; desde este punto, en sentido suroccidental, bordeando el límite de los predios 001700011 y 001700001, hasta su intersección con la vía calle 2, punto 43; desde este punto, en sentido suroriental, hasta la intersección del límite occidental del predio 001100051, Jardín Botánico, con el eje de la vía carrera 1A, punto 42; desde este punto, en sentido suroccidental, por el eje de la vía carrera 1A, hasta su intersección con el eje de la vía calle 3, punto 41; desde este punto, en sentido noroccidental por el eje de la vía calle 3, hasta la intersección con el eje de la vía carrera 1, punto 40; desde este punto, en sentido suroccidental por el eje de la vía carrera 1, hasta la intersección con la prolongación del límite oriental de la edificación que alberga la Escuela Madre Laura, punto 39; desde este punto, en sentido noroccidental, bordeando el límite nororiental de la edificación de la escuela Madre Laura, hasta el límite norte (vértice), punto de quiebre en sentido suroccidental, punto 38; desde este punto, en sentido suroccidental, bordeando el límite noroccidental de la edificación de la escuela Madre Laura, hasta la intersección de su prolongación con el eje de la vía calle 4, punto 37; desde este punto, en sentido suroriental por el eje de la vía calle 4, hasta la intersección con el eje de la vía carrera 1, punto 36; desde este punto, en sentido suroccidental, por el eje de la vía carrea 1, hasta la intersección con la prolongación del límite suroccidental del predio 004600011, punto 35; desde este punto, en sentido suroccidental, continuando por el eje de la vía carrera 1, hasta la intersección con el eje de la vía calle 8, punto 34; desde este punto, en sentido suroriental, por el eje de la vía calle 8, hasta la intersección con la carrera 2, punto 33; desde este punto, en sentido suroccidental, hasta la intersección con la calle 9, punto 32; desde este punto, en sentido suroriental por el eje de la vía calle 9, hasta la intersección con el eje de la vía carrera 4, punto 31; desde este punto, en sentido suroccidental, por el eje de la vía carrera 4, hasta la intersección con la prolongación del límite suroccidental del predio 005300071, punto 30; desde este punto, en sentido suroriental, bordeando el límite occidental de los predios 005300071, 005300105, 005300097, 005300015 y 005300017, hasta la intersección de la prolongación del límite occidental de este último predio, 00530017, con el eje de la vía carrera 5, punto 29; desde este punto, en sentido nororiental, por el eje de la vía carrera 5, hasta su intersección con el eje de la vía calle 9, punto 28; desde este punto, en sentido suroriente, por el eje de la vía calle 9, hasta su intersección con el eje de la vía carrera 6, punto 27; desde este punto, en sentido nororiental por el eje de la vía carrera 6, hasta su intersección con el eje de la vía calle 2, punto 26, punto de partida.
PARÁGRAFO 1. La Zona de Influencia (ZI) corresponde a un área total de 26,41 hectáreas, que incluye 33 manzanas y 612 predios urbanos, identificados en el Plano FORM 8 “Zona de Influencia del Centro Histórico”:
PARÁGRAFO 2. La delimitación por límites prediales no puede ser alterada ni modificada, en el posible caso de futuras subdivisiones prediales. Por tanto se deberá respetar el perímetro del Centro Histórico y su zona de influencia definido según formación catastral en 2013.
PLAN ESPECIAL DE MANEJO Y PROTECCIÓN
DISPOSICIONES GENERALES.
ARTÍCULO 3o. APROBACIÓN. Aprobar el Plan Especial de Manejo y Protección (PEMP) del Centro Histórico de Jericó (Antioquia), declarado Bien de Interés Cultural del ámbito Nacional en el artículo 1o de la presente resolución.
ARTÍCULO 4o. ÁMBITO DE APLICACIÓN DEL PEMP. El Plan Especial de Manejo y Protección (PEMP), aplica para el área afectada y la zona de influencia del Centro Histórico de Jericó (Antioquia), definidas en la presente resolución.
ARTÍCULO 5o. DOCUMENTOS DEL PEMP. Hacen parte integral de la presente resolución los siguientes documentos:
1. DOCUMENTOS TÉCNICOS DE SOPORTE
a) Documento de actualización de diagnóstico del Plan Especial de Manejo y Protección del Centro Histórico de Jericó. Anexos magnéticos (conteo de movilidad y listado de parqueaderos),
b) Documento técnico de formulación del Plan Especial de manejo y Protección del Centro Histórico de Jericó. Anexos de tabla de coordenadas, fichas de proyectos, matrículas inmobiliarias, tabla de datos de 2016;
c) Levantamiento fotográfico. Contiene fotografías de todas las fachadas del centro histórico y de la zona de influencia, así como la valoración y el nivel de conservación asignado;
d) Fichas normativas por manzanas. Contienen la planta de cada una de las manzanas que conforman el centro histórico y la zona de influencia.
2. CARTOGRAFÍA. Atlas cartográfico. Contiene los planos de formulación del Plan Especial de Manejo y Protección del Centro Histórico de Jericó, así:
FORMULACIÓN:
FORM 1. Traza de poblamiento 1855
FORM 2. Traza de poblamiento 1900
FORM 3. Traza de poblamiento 1935
FORM 4. Trazas de poblamiento
FORM 5. Trazas de poblamiento y centro histórico según el EOT 2010
FORM 6. Valoración
FORM 7. Área Afectada centro histórico
FORM 8. Zona de Influencia centro histórico
FORM 9. Perímetros área afectada y zona de influencia del centro histórico
FORM 10. Superficie del área afectada y de la zona de influencia del centro histórico
FORM 11. Nivel de Intervención N1
FORM 12. Nivel de Intervención N2
FORM 13. Nivel de Intervención N3
FORM 14. Niveles de Intervención N1, N2 y N3
FORM 15. Propuesta ambiental
FORM 16. Equipamientos
FORM 17. Propuesta urbana general
FORM 18. Localización del proyecto de una terminal de transportes
FORM 19. Predios de oportunidad, Escuela de Artes y Oficios
FORM 20. Espacios públicos - prioridad de actuación
FORM 21. Movilidad peatonal
FORM 22. Movilidad vehicular
FORM 23. Propuesta urbana general con prioridad actuación
FORM 24. Tratamientos urbanísticos en el EOT 2010
FORM 25. Tratamientos urbanísticos_PEMP
FORM 26. Usos del suelo EOT 2010
FORM 27. Usos del suelo
PEMP FORM 28. Alturas PEMP
FORM 29. Equipamientos 2016
FORM 30. Espacio Público 2016
FORM 31. Secciones 2016.
3. ESTRATEGIA DE PARTICIPACIÓN
Participación ciudadana. Listados de asistencia a los eventos de socialización y actas, video de presentación del Plan Especial de Manejo y Protección.
Documento del Plan de Divulgación y Estrategia de Participación Ciudadana del Plan Especial de Manejo y Protección del Centro Histórico de Jericó (anexos magnéticos y físicos, videos, entrevistas, base de datos local, presentaciones, piezas comunicacionales).
4. ARCHIVOS MAGNÉTICOS. Respaldo de todos los documentos en archivos magnéticos: anexos y base SIG, entre otros.
ARTÍCULO 6o. OBJETIVO GENERAL DEL PEMP. De conformidad con lo dispuesto en el inciso primero del numeral 1 del artículo 11 de la Ley General de Cultura (modificado por el artículo 7o de la Ley 1185 de 2008), el PEMP es el instrumento de gestión del patrimonio cultural por medio del cual se establecen las acciones necesarias para garantizar su protección y sostenibilidad en el tiempo.
ARTÍCULO 7o. OBJETIVOS ESPECÍFICOS. Son objetivos específicos del PEMP los siguientes:
1. Definir el marco de actuación para lograr la articulación del patrimonio cultural, arquitectónico y natural del Centro Histórico de Jericó con su contexto socioambiental y los instrumentos de planificación territorial.
2. Establecer los lineamientos y determinantes para el manejo de los inmuebles desde los puntos de vista físico, administrativo y financiero.
3. Definir las políticas y acciones que permitan la prevención, corrección y mitigación requeridas para la recuperación, conservación y administración del centro histórico.
4. Establecer las acciones encaminadas a difundir las cualidades y valores del centro histórico, buscando con ello asegurar la participación y apropiación de la comunidad en la tarea de conservación del bien.
5. Exaltar la ubicación geográfica estratégica y el medio natural de emplazamiento como principales atributos de soporte del patrimonio cultural del Centro Histó rico de Jericó, con miras a posicionarlos o reconocerlos como estructurantes por excelencia.
6. Reconocer y conservar los elementos del sistema estructurante del espacio público del centro histórico que evidencian y han dado cuenta del proceso histórico de poblamiento, y que permanece en las diferentes trazas históricas reflejadas en las vías, el espacio público y el emplazamiento de edificaciones, pues constituyen un sistema, y como tal debe ser manejado, regulado y controlado.
7. Garantizar el perfecto equilibrio entre los elementos del espacio público, las edificaciones o el emplazamiento construido y el medio natural de soporte, mediante una regulación de la morfología predial.
8. Garantizar un sistema vial funcional que considere al peatón y la necesidad del vehículo en armonía con la funcionalidad y el respeto por la estructura patrimonial existente.
DELIMITACIÓN.
ARTÍCULO 8o. DELIMITACIÓN ÁREA AFECTADA (AA) Y DE LA ZONA DE INFLUENCIA (ZI) DEL CENTRO HISTÓRICO DE JERICÓ. En cumplimiento de lo dispuesto en el artículo 2.4.1.1.5. y 2.4.1.1.6. del Decreto número 1080 de 2015, en concordancia con el inciso segundo del numeral 1 del artículo 11 de la Ley General de Cultura, ténganse como Área Afectada (AA) y Zona de Influencia (ZI) del Centro Histórico de Jericó, las consignadas en el artículo 2o de la presente resolución.
NIVELES PERMITIDOS DE INTERVENCIÓN.
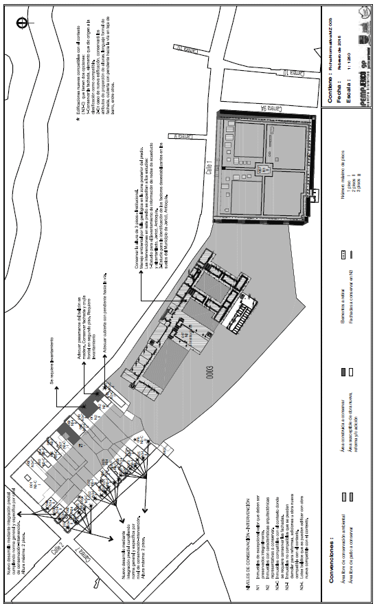
ARTÍCULO 9o. NIVELES PERMITIDOS DE INTERVENCIÓN. De Conformidad con lo dispuesto en el artículo 2.4.1.1.7. del Decreto número 1080 de 2015, los niveles de intervención en el Área Afectada (AA) y en la Zona de Influencia (ZI) del Centro Histórico de Jericó son:
Nivel de Intervención 1 (NI-1): CONSERVACIÓN INTEGRAL (CI).
Nivel de Intervención 2 (NI-2): CONSERVACIÓN DEL TIPO ARQUITECTÓNICO (CA)
Nivel de Intervención 3 (NI-3): CONSERVACIÓN DEL TIPO CONTEXTUAL (CC)
El nivel permitido de intervención en cada uno de los predios del Centro Histórico de Jericó y su zona de influencia es el asignado en el plano F0RM 14.
Los niveles permitidos de intervención, los tipos de obras permitidas y las instancias competentes, son:

PARÁGRAFO 1. Sin consideración al número de metros cuadrados y/o al porcentaje de intervención, ya sea al interior o en la fachada de los inmuebles del Centro Histórico de Jericó, se requerirá autorización previa de la autoridad competente, so pena de incurrir en sanciones administrativas, policivas, civiles y/o penales.
PARÁGRAFO 2. Requerirán autorización previa del Ministerio de Cultura las intervenciones en inmuebles que colinden con inmuebles del nivel 1.
PARÁGRAFO 3. Los espacios públicos correspondientes al trazado original de calles, plazas, plazuelas, parques, atrios y andenes del Centro Histórico (del AA y de la ZI), se consideran de conservación integral y, en consecuencia, cualquier intervención que se pretenda realizar en ellos deberá contar con autorización previa del Ministerio de Cultura.
PARÁGRAFO 4. Requerirán autorización previa del Ministerio de Cultura las intervenciones en inmuebles, cualquiera que sea su clasificación (NI-1, NI-2 o NI-3), cuyas fachadas den a los siguientes espacios públicos: parque principal o de Reyes; parque los Fundadores; parque Monseñor Francisco Cristóbal Toro; Morro El Salvador; Jardín Botánico; La Terraza; Gruta La Peña y Viacrucis Gruta La Verbena o Rondinela; espacios verdes del complejo deportivo (incluye el parque infantil); parque lateral a la Catedral y; las calles que presentan escalinatas.
ARTÍCULO 10. NIVEL PERMITIDO DE INTERVENCIÓN 1 (NI-1) “CONSERVACIÓN INTEGRAL” (CI). En este nivel se ubican los inmuebles del grupo arquitectónico de excepcional valor que se consideran irreemplazables y deben ser conservados en su integridad. Se tendrán como tales, los siguientes, los cuales se encuentran localizados en el Área Afectada (AA) y en la Zona de Influencia (ZI) del Centro Histórico, identificados en el plano FORM 11:
| Cons. | PK_PREDIOS | Código | Matrícula |
| 1 | 3681001001000200052 | 000200052 | 014-14257 |
| 2 | 3681001001000300018 | 000300018 | 014-3560 |
| 3 | 3681001001000300087 | 000300087 | Sin información |
| 4 | 3681001001001100024 | 001100024 | 014-2749 |
| 5 | 3681001001001100048 | 001100048 | 014-2544 |
| 6 | 3681001001001100049 | 001100049 | 014-9523 |
| 7 | 3681001001001100050 | 001100050 | Sin información |
| 8 | 3681001001001100051 | 001100051 | 014-8180 |
| 9 | 3681001001001100052 | 001100052 | 014-14375 |
| 10 | 3681001001001900011 | 001900011 | 014-232 |
| 11 | 3681001001001900013 | 001900013 | 014-3437 |
| 12 | 3681001001002000018 | 002000018 | 014-4542 |
| 13 | 3681001001002700009 | 002700009 | Sin información |
| 14 | 3681001001002700010 | 002700010 | 014-10297 |
| 15 | 3681001001002700012 | 002700012 | 014-2439 |
| 16 | 3681001001002700013 | 002700013 | 014-4001 |
| 17 | 3681001001002800005 | 002800005 | 014-2122 |
| 18 | 3681001001002800007 | 002800007 | 014-1210 |
| 19 | 3681001001002800008 | 002800008 | 014-116 |
| 20 | 3681001001002800019 | 002800019 | 014-917 |
| 21 | 3681001001002800027 | 002800027 | 014-1207 |
| 22 | 3681001001002800028 | 002800028 | 014-1208 |
| 23 | 3681001001002800029 | 002800029 | 014-1209 |
| 24 | 3681001001002900006 | 002900006 | 014-2142 |
| 25 | 3681001001002900008 | 002900008 | Sin información |
| 26 | 3681001001002900025 | 002900025 | Sin información |
| 27 | 3681001001002900026 | 002900026 | 014-3702 |
| 28 | 3681001001002900027 | 002900027 | 014-4879 |
| 29 | 3681001001003300012 | 003300012 | 014-3245 |
| 30 | 3681001001003300015 | 003300015 | 014-10060 |
| 31 | 3681001001003300016 | 003300016 | 014-2971 |
| 32 | 3681001001003500014 | 003500014 | 014-1400 |
| 33 | 3681001001003600001 | 003600001 | Sin información |
| 34 | 3681001001004100011 | 004100011 | 014-2703 |
| 35 | 3681001001004300008 | 004300008 | 014-955 |
| 36 | 3681001001004300012 | 004300012 | Sin información |
| 37 | 3681001001004400004 | 004400004 | 014-1307 |
| 38 | 3681001001004500006 | 004500006 | 014-9789 |
| 39 | 3681001001004500007 | 004500007 | 014-4267 |
| 40 | 3681001001004700016 | 004700016 | 014-2902 |
| 41 | 3681001001004700027 | 004700027 | 014-4161 |
| 42 | 3681001001004900009 | 004900009 | 014-15872 |
| 43 | 3681001001005100001 | 005100001 | 014-13918 |
| 44 | 3681001001005100002 | 005100002 | 014-3448 |
| 45 | 3681001001005100003 | 005100003 | 014-4484 |
| 46 | 3681001001005300010 | 005300010 | Sin información |
| 47 | 3681001001005300071 | 005300071 | 014-2602 |
| 48 | 3681001001005300097 | 005300097 | 014-2601 |
| 49 | 3681001001005300098 | 005300098 | Sin información |
| 50 | 3681001001005300099 | 005300099 | Sin información |
| 51 | 3681001001005300100 | 005300100 | Sin información |
| 52 | 3681001001005300101 | 005300101 | Sin información |
| 53 | 3681001001005300102 | 005300102 | Sin información |
| 54 | 3681001001005300103 | 005300103 | Sin información |
| 55 | 3681001001005300104 | 005300104 | Sin información |
| 56 | 3681001001005300105 | 005300105 | Sin información |
| 57 | 3681001001005300107 | 005300107 | 014-2007 |
| 58 | 3681001001007000002 | 007000002 | Sin información |
| 59 | 3681001001007000005 | 007000005 | Sin información |
ARTÍCULO 11. NIVEL PERMITIDO DE INTERVENCIÓN 2 (NI-2) “CONSERVACIÓN DEL TIPO ARQUITECTÓNICO” (CA). Se aplica a inmuebles del grupo arquitectónico que tengan características representativas en términos de implantación predial (rural o urbana), volumetría, distribución espacial y ornamentación, características que deben ser conservadas. Se permite la modificación de los espacios internos del inmueble, siempre y cuando se mantenga la autenticidad de su estructura espacial: disposición de accesos, vestíbulos, circulaciones horizontales y verticales, asegurando:
- La conservación de las estructuras originales de tapia pisada o bahareque
- La conservación de las estructuras de madera en las cubiertas
- La conservación de la carpintería de puertas, ventanas, balcones y canceles
- La conservación o restitución de pisos de tablón de gres o baldosas de cemento tradicionales
- La conservación o liberación de los patios originales
- La conservación o liberación de los solares originales
- La tipología edificatoria tradicional.
Pertenecen al Nivel de Intervención 2 (NI-2) de “Conservación del Tipo Arquitectónico” (CA), los siguientes inmuebles identificados en el plano FORM 12:




ARTÍCULO 12. NIVEL PERMITIDO DE INTERVENCIÓN 3 (NI-3) “CONSERVACIÓN CONTEXTUAL” (CC). En este nivel se incluyen los inmuebles compatibles e incompatibles con el contexto en el cual se insertan y reconoce los subgrupos particularmente encontrados en el área urbana del municipio de Jericó, en aras de aplicar una norma que permita un continuum urbano que merece ser destacado, así como predios sin construir.
Pertenecen al Nivel permitido de Intervención 3 (NI-3) de “Conservación Contextual” (CC), los siguientes predios identificados en los planos FORM 13 y FORM 14:




































PARÁGRAFO. Se asigna el nivel permitido de intervención 3 a los predios que no tienen asignado el nivel de intervención 1, y nivel de intervención 2.
ARTÍCULO 13. Para la autorización de intervención en los predios de los distintos niveles a que se refieren los artículos 10, 11 y 12, respecto de los cuales no se cuenta con información de matrícula inmobiliaria, será necesario acreditar la legalización de dicha situación.
CONDICIONES DE MANEJO.
ARTÍCULO 14. DEFINICIÓN. Las condiciones de manejo son e conjunto de pautas y determinantes que conforman el marco general de la intervención, que regula el manejo de los BIC en tres aspectos principales, para promover su preservación y sostenibilidad, de conformidad con lo establecido en el artículo 2.4.1.1.8 del Decreto número 1080 de 2015, y son los siguientes:
1. Aspectos físico-técnicos
2. Aspectos administrativos
3. Aspectos financieros.
ASPECTOS FÍSICO-TÉCNICOS.
SISTEMAS DE SOPORTE URBANO DEL ÁREA AFECTADA Y LA ZONA DE INFLUENCIA DEL CENTRO HISTÓRICO DE JERICÓ.
ARTÍCULO 15. Los sistemas de soporte urbano del área afectada y de la zona de influencia del Centro Histórico de Jericó son las siguientes:
1. Sistema ambiental
2. Sistema urbano
3. Sistema de espacio público.
NORMAS PARA EL SISTEMA AMBIENTAL.
ARTÍCULO 16. GENERALIDADES DEL MANEJO AMBIENTAL. Definir y evaluar las zonas de protección con el fin de integrar y mantener las zonas de valor histórico, arquitectónico, cultural y natural del centro histórico del municipio de Jericó, por lo cual se deben identificar, diagnosticar y solucionar los problemas ambientales, con el fin de proteger el patrimonio arquitectónico del centro histórico.
ARTÍCULO 17. INTEGRACIÓN DEL MORRO EL SALVADOR Y DEL JARDÍN BOTÁNICO AL CENTRO HISTÓRICO. De acuerdo con literal f) del artículo 9o del Decreto número 2811 de 1974(8), debe existir un “desarrollo equilibrado en lo urbano y lo rural”. Al no existir una separación diametral entre lo urbano y lo rural en el momento de la planeación y gestión, el morro El Salvador y el Jardín Botánico hacen parte integrante del centro histórico del municipio de Jericó, debido a sus características culturales y ambientales, y dado que no existe solución de continuidad entre lo histórico, arquitectónico y cultural, y lo natural asociado al centro histórico.
Los aspectos que permiten la integración al centro histórico son las siguientes:
1. Las determinantes ambientales asociadas al morro El Salvador.
2. Las riquezas arqueológicas existentes y estudiadas y el vínculo cultural de la comunidad entre el morro El Salvador y el centro histórico.
3. Las especies de flora vinculadas al Jardín Botánico que merecen una protección especial, en su calidad de patrimonio natural.
Integrar el morro El Salvador al centro histórico, entendido por el EOT (Acuerdo número 2 del 17 de julio de 2010) como suelo urbano de protección. Esto contribuye a mantener y proteger el patrimonio histórico, arquitectónico y cultural, y de igual manera favorece el desarrollo social y la protección del medio ambiente, e igualmente coadyuva al mantenimiento e incremento de la diversidad biológica y la potenciación de la diversidad cultural, comoquiera que los pobladores pueden contribuir a la conservación de los entornos naturales.
ARTÍCULO 18. MOVIMIENTOS DE AGUA EN EL SUELO, SISTEMAS DE DRENAJES Y ALCANTARILLADO. Para mejorar la estabilidad del terreno y prevenir futuras afectaciones del patrimonio arquitectónico de Jericó se deberán reconstruir los filtros, que fueron localizados desde mediados del siglo pasado en las calles superiores del pueblo, y cuya función es evacuar las aguas de escorrentía hasta los drenajes naturales. Para ello se deben desarrollar las siguientes actividades:
1. Realizar un inventario de los drenajes existentes, verificando como mínimo su localización, longitud, dimensiones, estado actual, método constructivo, y profundidad, entre otras características.
2. Realizar un estudio geoeléctrico del suelo para determinar los niveles de agua en el suelo del Centro Histórico de Jericó y poder identificar los puntos críticos.
3. Proponer alternativas de manejo al movimiento del agua en el suelo con el fin de garantizar la estabilidad de las construcciones presentes en el centro histórico, y de igual modo, considerar la reforestación de las laderas de las quebradas que atraviesan el área urbana, con miras a evacuar la mayor cantidad posible de agua del suelo mediante procesos de evapotranspiración de las plantas.
4. Realizar un diagnóstico del estado actual de los sistemas de acueducto y alcantarillado en el interior de las construcciones mediante métodos modernos de teledetección, para conocer el curso de las tuberías existentes y las posibles fugas, y plantear soluciones que saneen el sistema de conducción interno, así como cumplir lo establecido en la Ley 142 de 1994(9).
ARTÍCULO 19. RETIROS DE LAS QUEBRADAS. Como medida de protección, y con el fin de cumplir con lo estipulado en el Esquema de Ordenamiento Territorial, se deberán respetar los retiros de las quebradas, de acuerdo con lo reglamentado en el Acuerdo número 2 del 17 de julio de 2010.
Además, se deberán instaurar las siguientes medidas de protección:
1. Cambiar los usos del suelo en cultivos por vegetación protectora y nativa de la región, para favorecer los procesos de conectividad ecológica y permitir el flujo genético de flora y fauna a través de estos espacios.
2. Los canales de concreto, de las quebradas urbanas, deberán adecuarse con filtros o desagües diagonales a la pendiente, para permitir el flujo de las aguas del suelo hacia los drenajes naturales y evitar su saturación.
3. Las construcciones existentes en la zona de influencia directa de los retiros de las quebradas no podrán reconstruirse con materiales de alto peso, como el concreto. Las reparaciones necesarias se harán con materiales livianos, como bahareque, guadua y otros que sean livianos.
4. En caso del derrumbamiento de alguna vivienda en la franja de retiro, no se deberá reconstruir, porque se trata de una zona que presenta riesgo. Ante todo deberá garantizarse la función ecológica del lugar y salvaguardarse la vida humana.
ARTÍCULO 20. ZONAS VERDES URBANAS. El municipio de Jericó tiene en su área urbana zonas verdes espacialmente discontinuas, localizadas en pequeñas áreas coincidentes con los Parques de Reyes, Monseñor Francisco Cristóbal Toro y Fundadores, además de la vegetación arbórea existente en el Pasaje Peatonal Palacio Municipal, Complejo Deportivo y algunos sitios relacionados con las quebradas Valladares, Pinillos y La Merced, además del cordón proyectado para la vía Circunvalar.
Por ello, las zonas verdes urbanas de Jericó deben conservar los elementos arbóreos nativos, y los que han sido reemplazados por especies exóticas deben ser sustituidos en corto plazo por las mismas especies que fueron plantadas originalmente en el área urbana, así como incorporar especies típicas presentes en la reserva Las Nubes, La Trocha, La Capota, zona natural declarada distrito de manejo integrado por Corantioquia, por conservar elementos típicos de la flora y la fauna del suroeste antioqueño.
PARÁGRAFO. Para el enriquecimiento de las zonas verdes se deberá tener cuidado con la selección de los árboles los cuales deberán escogerse de acuerdo con el lugar donde serán situados, bien sea que se trate de lugares abiertos, sitios cercanos a corredores viales o áreas con restricciones, sea de alturas o por estar cerca de una infraestructura.
NORMAS DEL SISTEMA URBANO.
ARTÍCULO 21. CATEGORÍAS TEMÁTICAS. La propuesta involucra cuatro categorías temáticas: equipamientos, espacios públicos, corredores peatonales exclusivos durante los fines de semana y corredores mixtos de desplazamiento peatonal y vehicular.
ARTÍCULO 22. EQUIPAMIENTOS. Son elementos estructurantes que hacen parte del patrimonio cultural del centro histórico. En la estrategia general del PEMP se priorizan las actuaciones para cualificar equipamientos en edificaciones patrimoniales o para crear nuevos equipamientos que incidan directamente en la puesta en valor y permanencia del patrimonio cultural del centro histórico.
ARTÍCULO 23. PRIORIDADES DE ACTUACIÓN EN EQUIPAMIENTOS SITUADOS EN INMUEBLES DE VALOR CULTURAL. Las prioridades de actuación de equipamientos ubicados en inmuebles de valor cultural son las siguientes:
| Equipamientos en inmuebles de valor cultural | Prioridad de actuación |
| Institución Educativa Normal Superior | Alta |
| Escuela Madre Laura de la Institución Educativa San José | Media |
| Escuela Nocturna de la Institución Educativa San José | Baja |
| Seminario San Juan Eudes | Baja |
| Museo MAJA | Baja |
| Antiguo convento La Visitación (antes Casa de la Cultura) y capilla | Alta |
| Teatro Santamaría | Baja |
| Centro de Historia | Media |
| Catedral Nuestra Señora de las Mercedes y Museo de Arte Religioso | Media |
| Templo del Inmaculado Corazón de María | Alta |
| Capilla de San Francisco (La Pollita) | Media |
| Monasterio de Santa Clara, y capilla | Baja |
| Casa de la madre Laura, y capilla | Baja |
| Sede de la Diócesis, y capilla | Baja |
| Casa del Obispo, y capilla | Baja |
| Casa cural de la Catedral | Baja |
| Casa cural del templo del Inmaculado Corazón de María | Baja |
| Cementerio parroquial | Baja |
| Alcaldía | Baja |
PARÁGRAFO. La prioridad se determina según el grado del equipamiento, ya que algunos son ejes articulares de equipamientos o de bienes inmuebles de valor cultural, por lo cual se les debe dar prelación, según su estado actual de conservación (véase cartografía FORM 23, “Propuesta urbana general con prioridad de actuación”, y las fichas de proyectos anexo B, de formulación).
ARTÍCULO 24. EQUIPAMIENTOS NUEVOS Y PRIORIDADES DE ACTUACIÓN. Los nuevos equipamientos de entidades gubernamentales, que actualmente se encuentran en proceso de diseño, son:
1. Parque Educativo (proyecto de la Gobernación de Antioquia)
2. Centro de Interpretación Arqueológica de las Tumbas del Morro El Salvador (proyecto de la Alcaldía y del Viceministerio de Turismo)
Los nuevos equipamientos planteados por el PEMP son necesarios para poner en valor y garantizar la sostenibilidad y permanencia en el tiempo del patrimonio cultural del centro histórico, para lo cual se presentan en la siguiente tabla con la prioridad correspondiente:
| Equipamientos nuevos planteados por el PEMP | Prioridad de actuación |
| Terminal de transporte y parqueadero con usos complementarios | Media |
| Escuela de Emprendimiento y Artes y Oficios | Media |
ARTICULO 25. Espacios publicos. Son lugares preferentes de encuenttro y reconocimiento ciudadano, y además son elementos estructurantes que hacen parte del patrimonio cultural del centro histórico.
Para los espacios públicos se definen los siguientes tipos de actuación, que dependen de si son espacios públicos existentes de valor cultural o si son espacios libres que se articularán como espacios públicos:
1. Mejorar la calidad material y dotar de mobiliario urbano, señalización e iluminación los espacios públicos de valor cultural destacados.
2. Articular al espacio público los atrios y áreas libres contiguas a equipamientos y costados de manzana con apropiación privada del espacio público, mejorar su calidad material y dotarlos de mobiliario urbano, señalización e iluminación.
3. Articular al espacio público efectivo vecinal las zonas verdes de los retiros de las quebradas La Merced, El Matadero y Valladares, de modo que se configuren como parques lineales.
ARTÍCULO 26. PRIORIDADES DE ACTUACIÓN EN ESPACIOS PÚBLICOS Y EJES DE ARTICULACIÓN. Son prioridades de actuación en espacios públicos y ejes de articulación los siguientes:
| Espacios públicos y ejes articuladores como espacio público de valor cultural | Prioridad de actuación |
| Parque principal | Baja |
| Parque Fundadores | Baja |
| Morro El Salvador y Jardín Botánico | Baja |
| Gruta La Peña y Viacrucis | Baja |
| Gruta La Verbena o Rondinela | Baja |
| Atrio de la Catedral y acceso al Museo de Arte Religioso | Media |
| La Terraza (carrera 4 frente al parque principal) | Media |
| Áreas libres contiguas al templo del Inmaculado Corazón de María | Media |
| Áreas libres contiguas a la capilla de San Francisco | Media |
| Retiro de la quebrada El Matadero, entre carrera 6 y avenida Circunvalar | Media |
| Retiro de la quebrada Valladares entre carrera 4 y avenida Circunvalar | Media |
ARTÍCULO 27. CORREDORES PEATONALES Y DE USO MIXTO. Debido al mayor número de visitantes durante los fines de semana, para el municipio de Jericó se establecen dos tipos de corredores para los fines de semana: uno que prioriza al peatón y otro de uso mixto, en el que se restringe solo el tránsito vehicular de pobladores, de la manera siguiente:
Corredores peatonales:
- Calle 1, entre carrera 5 y Cementerio
- Calle 5, entre carreras 1 y 2
- Calle 6, entre entrada al camino al Viacrucis y carrera 1
- Calle 6, entre carreras 2 y 5
- Calle 7, entre carreras 1 y 7
- Calle 8, entre carreras 3 y 5
- Calle 9, entre carreras 2 y 5
- Carrera 1, entre calles 4 y 5
- Carrera 1, entre calles 6 y 7
- Carrera 2, entre calles 5 y 7
- Carrera 3, entre acceso al Jardín Botánico y calle 9
- Carrera 4, entre calles 6 y 9
- Carrera 5, entre calle 1 y el parque Fundadores
- Carrera 6, entre calles 5 y 7
- Carrera 7, entre calles 7 y 9
- Corredores de uso mixto:
- Calle 6, entre carreras 1 y 2
- Calle 6, entre carreras 6 y 7
- Calle 7, entre carreras 5 y 7
- Calle 8, entre carreras 5 y 7
- Carrera 5, entre calles 8 y 9
- Carrera 6, entre calles 6 y 7
- Carrera 7, entre calles 6 y 8
- Avenida Circunvalar
PARÁGRAFO. Estas actuaciones, enunciadas en el marco de las cuatro categorías temáticas, en especial la de movilidad, se muestran en el mapa de propuesta urbana presente en el PEMP.
NORMAS DEL SISTEMA DE ESPACIO PÚBLICO.
ARTÍCULO 28. EN LAS VÍAS Y EN ESPACIOS PÚBLICOS. Las normas que regulan la convivencia en las vías y los espacios públicos deberán basarse en los siguientes parámetros generales:
1. Corresponde a la alcaldía municipal el mantenimiento, la limpieza y reparación de las vías públicas y los elementos que las conforman.
2. Requiere autorización la ocupación de la vía pública mediante mostradores, tanques, máquinas o taquillas. En cualquier caso, aun si son autorizados, estos elementos deberán ser de ocupación transitoria y desmontables. Así mismo requieren autorización las actividades profesionales (rodajes de cine o televisión), pruebas deportivas, la celebración de actos públicos y la publicidad dinámica.
3. Se permite el uso del espacio público para actividades comerciales, previa autorización expresa de la alcaldía municipal. La solicitud deberá estar acompañada de la ubicación exacta, la superficie que se utilizará y el tiempo de permanencia. Los documentos que deberán presentarse para solicitar la autorización serán determinados por la Secretaría de Planeación.
ARTÍCULO 29. INTERVENCIONES. Los proyectos de intervención de espacios públicos como calles, parques, plazoletas, plazuelas, atrios de templos y andenes requieren de la autorización previa del Ministerio de Cultura.
ARTÍCULO 30. ACCESIBILIDAD. Al tenor de lo dispuesto en las Leyes 361 de 1997 y 762 de 2002, toda construcción nueva o intervención que se realice en predios del área afectada y de la zona de influencia del centro histórico deben buscar eliminar las barreras urbanísticas, que no son más que los impedimentos que presentan la estructura y el mobiliario urbanos, sitios históricos y espacios no edificados de dominio público y privado, que dificultan la movilidad de personas con distintas clases y grados de discapacidad.
ARTÍCULO 31. NORMAS PARA LA PUBLICIDAD EN EL ESPACIO PÚBLICO. No se permite utilizar el espacio público, de forma permanente o temporal, para hacer publicidad o propaganda, salvo en aquellos lugares donde lo determine la Alcaldía y con ocasión de eventos comunitarios.
La publicidad exterior que se haga en el Área Afectada (AA) o en la zona de influencia (Z. I.) se regirá por lo normado en la Ley 140 de 1994(10).
No se permiten los pasacalles ni la instalación de vallas publicitarias en el área afectada ni en la zona de influencia del Centro Histórico de Jericó.
Los avisos de carácter transitorio, como carteles destinados a la propaganda de espectáculos, avisos mortuorios u otros, solo podrán adherirse a las carteleras o soportes que serán diseñados para tal fin, y serán autorizados por el Ministerio de Cultura.
ARTÍCULO 32. SEÑALIZACIÓN TURÍSTICA. Para la señalización turística, los elementos utilizados deberán seguir las especificaciones para centros históricos dispuestas por el Ministerio de Comercio, Industria y Turismo, y los diseños de las señales turísticas peatonales para los sectores urbanos declarados bienes de interés cultural del ámbito nacional, establecidos por el Ministerio de Cultura mediante Resolución número 1738 de 2005(11) y demás normas que las modifiquen, adicionen o sustituyan.
ARTÍCULO 33. MOBILIARIO URBANO. El mobiliario urbano está compuesto de elementos de tamaño reducido que se instalan en el espacio público de manera repetitiva para prestar algún servicio que aporte a la comodidad o seguridad de los usuarios. Por ejemplo, bancas, recipientes para basura, bicicleteros, bolardos, casetas, hidrantes, juegos infantiles, luminarias, sombrillas con mesas y sillas, teléfonos públicos, entre otros.
El mobiliario urbano debe ser fácil de utilizar, mantener y limpiar. Su ubicación no podrá obstaculizar la movilidad peatonal ni distorsionar el paisaje urbano. Para evitar la afectación del patrimonio inmueble, el mobiliario urbano no podrá ser ubicado a menos de ocho metros de distancia frente a las fachadas de bienes de interés cultural. En todos los casos de implementación de mobiliario y usos de los mismos, se deberá obtener permiso de la autoridad competente del centro histórico.
Con respecto a los distintos elementos, se establece lo siguiente:
– Bancas: No podrán instalarse en los andenes de las calles que tienen circulación vehicular, puesto que estos son muy angostos en el centro histórico, y su presencia obstaculizaría la circulación peatonal. Por lo tanto, deben estar ubicadas en plazas, plazoletas y parques. Deben instalarse con un sistema de anclaje fijo sobre los pisos duros de dichos espacios. Su forma debe ser ergonómica y permitir una rápida evacuación del agua. Las bancas móviles se pueden localizar en las vías, cuando estas se encuentren peatonalizadas, y en ningún caso serán permanentes.
– Recipientes para basuras: Deberán estar ubicados en espacios que no obstaculicen la circulación peatonal. Si el basurero tiene la abertura en la parte superior, esta debe estar a una altura máxima de 0,80 m sobre el piso acabado. Si la abertura es lateral al sentido de circulación, la altura debe estar entre 0,80 m y 1,20 m.
– Bicicleteros: No podrán instalarse en los andenes de las calles que tienen circulación vehicular, puesto que estos son muy angostos en el centro histórico, y su presencia obstaculizaría la circulación peatonal. Por lo tanto, en el espacio público deben estar ubicados en plazas, plazoletas y parques. Deben instalarse con un sistema de anclaje fijo sobre los pisos duros de dichos espacios.
– Bolardos: Deberán localizarse a 0,30 m del bordillo en los tramos viales y esquinas donde se requieran para la seguridad de los peatones. Deben ser de materiales resistentes a impactos. En su diseño se pueden prever argollas para la instalación de cadenas.
– Casetas móviles para ventas (toldos): No se permiten en los andenes, y se permitirán en los parques y plazoletas solamente cuando correspondan a un programa en el espacio público aprobado por la Oficina de Planeación o la entidad que tenga competencia sobre el centro histórico. No se permiten las casetas estacionarias.
– Hidrantes: deberán localizarse a 0,30 m del bordillo en los tramos viales y esquinas donde se requieran para el adecuado funcionamiento del sistema de bomberos.
– Juegos infantiles: se permitirán en los parques y plazoletas solamente cuando correspondan a un programa en el espacio público previamente autorizado por el Ministerio de Cultura. Deberán ser de materiales seguros para el uso por los niños (se evitará la fibra de vidrio), sin tornillos o elementos cortantes que sobresalgan. No podrán instalarse sobre superficies de concreto, asfalto o adoquín. Deberán instalarse sobre piso de superficie de caucho triturado con subcapa de base elástica que permita la amortiguación de los golpes. Se podrán instalar sobre piso de arenilla suelta, siempre y cuando se garantice presupuesto para el mantenimiento periódico (semestral) de su espesor de 0,30 m en adecuadas condiciones de limpieza.
– Luminarias: no se permitirá la colocación de postes en el borde del andén para luminarias de las calles del centro histórico y su zona de influencia. En estos casos la iluminación se realizará con luminarias instaladas a una altura mínima de 3,50 m, siempre y cuando el alero lo permita, ubicadas bien sea adosadas a las fachadas o postes metálicos delgados, a 10 cm de distancia horizontal de las fachadas.
Para iluminación de pasajes peatonales, plazoletas y parques se podrán utilizar postes metálicos con luminarias centrales colocadas a una altura aproximada de 5 m, y la distancia entre ellas dependerá del diseño de iluminación.
También se podrán utilizar luminarias bajas adosadas a las fachadas de muros de cerramiento para evitar la aparición de fachadas largas y oscuras sobre el espacio público.
Se requiere realizar un proyecto integral de iluminación el cual deberá contar con autorización del Ministerio de Cultura.
– Sombrillas con mesas y sillas: únicamente se permitirán en los espacios públicos tipo parques o plazoletas del centro histórico y su zona de influencia, previo permiso de ocupación del espacio público por la autoridad competente. Se podrán permitir para la venta de alimentos pre elaborados (helados, golosinas) o de bebidas servidas en vaso. No se admitirán para el servicio de alimentos preparados en restaurantes (desayunos, almuerzos, comidas) ni para la venta de bebidas envasadas en botella.
– Teléfonos públicos: deberán localizarse en lugares de fácil acceso, sin obstaculizar la visibilidad general del lugar. El área de piso adyacente a los teléfonos públicos debe tener una textura rugosa para su fácil detección por usuarios con limitaciones visuales.
La señalización del teléfono debe permitir la fácil comprensión a los usuarios en general. Se tomarán las debidas precauciones para facilitar su uso por usuarios analfabetos o que no hablan el idioma español.
ARTÍCULO 34. REDES DE SERVICIOS PÚBLICOS. En materia de infraestructura de servicios públicos se deberán considerar las acciones que se indican a continuación:
Con el adelanto del Plan de Manejo de Acueducto y Alcantarillado se hace necesario realizar un diagnóstico del estado actual de los sistemas de acueducto y alcantarillado en el interior de las construcciones y plantear soluciones que saneen el sistema de conducción interno, así como cumplir lo establecido en la Ley 142 de 1994(12) de servicios públicos, las normas que sobre este tema haya emitido Planeación Municipal, así como proteger el patrimonio arquitectónico del Centro Histórico de Jericó. Para realizar este diagnóstico es necesario implementar métodos modernos de teledetección de las tuberías existentes y las posibles fugas de agua que puedan existir. Estos resultados deben propender a disminuir la escorrentía y canalización de las aguas perdidas que desestabilizan actualmente áreas del centro histórico del municipio.
NORMA URBANÍSTICA PARA EL ÁREA AFECTADA DEL CENTRO HISTÓRICO DE JERICÓ.
ARTÍCULO 35. NORMAS ARQUITECTÓNICAS GENERALES. Estas normas actualizan y complementan las normas establecidas en los artículos 73, 74, 75, 76, 91, 95, 97, 98, 102, 103, 104 y 105 del Esquema de Ordenamiento Territorial para Jericó, Antioquia, Acuerdo Municipal número 2 de 2010, con el fin de regular todos aquellos atributos patrimoniales que caracterizan y otorgan singularidad al Centro Histórico de Jericó y su área de influencia, por ser relevantes, por estar aún presentes y por dotar de valor cultural a los inmuebles, y significación cultural al conjunto urbano como paisaje cultural, razón por la cual deben ser conservados y mantenidos, para asegurar su permanencia en el tiempo.
NORMAS DE EDIFICABILIDAD.
ARTÍCULO 36. NORMAS DE EDIFICABILIDAD PARA INMUEBLES DEL NIVEL 1. Para los inmuebles del nivel 1 de intervención, los parámetros y normas de intervención son los definidos por el Decreto número 1080 de 2015 y las normas que lo complementen, modifiquen, adicionen o sustituyan.
NORMAS DE EDIFICABILIDAD Y CONDICIONES GENERALES PARA INMUEBLES DE LOS NIVELES 2 Y 3.
ARTÍCULO 37. ÁMBITO DE APLICACIÓN. Son aplicables a todos aquellos inmuebles y predios pertenecientes a los niveles de intervención 2 y 3 situados en el área afectada y en la zona de influencia.
ARTÍCULO 38. ÍNDICE DE OCUPACIÓN. El índice máximo de ocupación será del 60%. La edificabilidad o índice de construcción será el resultado de aplicar el número de pisos permitidos al índice de ocupación.
PARÁGRAFO 1. Si el índice de ocupación existente es menor, se podrá ampliar el área ocupada hasta alcanzar el máximo permitido.
PARÁGRAFO 2. Cuando el inmueble no cumpla las condiciones mínimas establecidas, no se aplicará el 60%, y la ocupación máxima será consecuencia de las condiciones de habitabilidad y de las dimensiones mínimas de patio establecidas.
ARTÍCULO 39. CONDICIONES MÍNIMAS. La superficie mínima del inmueble para aplicar las condiciones de ocupación máxima establecidas en el artículo 39 será de 120 m².
ARTÍCULO 40. VOLUMEN Y CUBIERTAS. Se deben conservar íntegramente la forma y el tamaño de los elementos básicos que conforman el volumen de la edificación que se quiere proteger, bien sean crujías que deban conservarse de manera integral en los inmuebles de nivel 2 de conservación, o bien el volumen de las crujías en fachada de los inmuebles N3 contextuales determinados en las fichas reglamentarias.
Las cubiertas existentes conservarán las pendientes (dirección y ángulo o porcentaje de pendiente) y las alturas (altura de enrase y altura del caballete) originales en sus tejados; sobre estos tejados no se permiten sobreelevaciones (levantar, elevar o alzar otros elementos constructivos o pisos), ni la adición de elementos tipo buhardilla (ventana que se levanta por encima del tejado), ni la colocación de tejas plásticas o vidrios.
Queda prohibida la abertura de huecos en los faldones que conforman la cubierta, así como la instalación en los mismos que conforman fachada de elementos tales como sistemas de climatización, antenas parabólicas y paneles solares.
Los muros que conforman las crujías que deban conservarse, sea en un N2 o en un N3 contextual, mantendrán las alturas, formas y alineamientos (retiro a eje de vías) constitutivos del volumen edificado original; por tanto, no se permiten retrocesos ni adelantamientos de la fachada.
No se permite demolición alguna de los elementos que deban conservarse antes descritos (véase “Ficha normativa por manzana”). Las liberaciones de elementos impropios deberán estar debidamente justificadas.
ARTÍCULO 41. ALTURAS. La altura máxima permitida en las edificaciones para ampliaciones será la establecida bien por la cumbrera o por la línea bajo el alero por el elemento que se vaya a conservar, que genera imagen urbana (fachada). En ningún caso la altura libre será inferior a 2,50 metros.
ARTÍCULO 42. AMPLIACIONES. Se permiten ampliaciones en inmuebles de niveles N2 y N3 contextual, siempre y cuando lo indique la ficha normativa por manzana en los N2 (área de movimiento), y lo permita el índice de ocupación máximo en ambos casos. El índice de ocupación máximo permitido, que es 0,60%, siempre quedará supeditado a las dimensiones mínimas de patio establecidas, de aislamiento posterior y a las condiciones mínimas del inmueble.
Las ampliaciones seguirán crecimientos tipológicos en L, C y O en torno al patio, respetando las dimensiones tradicionales de crujía, que no sobrepasarán los 7 metros de ancho. Para edificaciones con uso dotacional, y dada la singularidad de la edificación, se permitirán dimensiones mayores de ancho de crujía, previa autorización del Ministerio de Cultura.
Quedan prohibidas las ampliaciones en altura de las crujías que conforman fachada, salvo que quede indicado en las fichas normativas. Se permiten ampliaciones en alturas de elementos construidos en el interior del predio, siempre y cuando no sobrepasen la altura máxima permitida establecida en las fichas reglamentarias de manzana, y no estén catalogados como elementos que deban conservarse.
PARÁGRAFO. Los lineamientos para los crecimientos tipológicos estarán sujetos a las geometrías particulares de los predios, así como al cumplimiento de las condiciones de habitabilidad.
ARTÍCULO 43. CONSTRUCCIÓN BAJO RASANTE. Se permite la construcción bajo rasante, entendida esta como el piso que aparece debido a la pendiente del predio, y entendiendo por rasante la altura de referencia 0,00 metros, tomada en el punto medio de la fachada. En cualquier caso, el inmueble tendrá como máximo dos pisos. La construcción bajo rasante cumplirá con condiciones de ventilación e iluminación para espacios habitables.
PARÁGRAFO. En ningún caso la altura total superará la del elemento que se quiere conservar ni la altura máxima permitida.
ARTÍCULO 44. PATIOS INTERIORES. Queda prohibido el cubrimiento de los patios de todas las edificaciones del Centro Histórico de Jericó y su zona de influencia, en todos los niveles de conservación.
Los patios que son producto de ampliaciones o de obra nueva tendrán una dimensión mínima tal que se pueda inscribir una circunferencia de un diámetro mínimo de tres metros.
Los pisos de los patios serán permeables en aras a facilitar que el mismo traspire y evitar de este modo patologías derivadas de las humedades por capilaridad.
En las edificaciones existentes en el Centro Histórico de Jericó y su zona de influencia catalogadas en los niveles de conservación N1 y N2 se conservarán las dimensiones de lado y áreas de patios y vacíos de patios originales.
ARTÍCULO 45. MEZANINES. Se permiten los mezanines en las construcciones que se pretenden conservar, siempre y cuando cumplan las siguientes condiciones:
1. Que estén separados de la fachada como mínimo por dos metros, en aras de que estos no fraccionen la fachada.
2. Que se formalicen con una materialidad que permita la reversibilidad del mezanine, sin afectar a las construcciones que tengan valor patrimonial.
3. Que la superficie del mezanine no sea superior al 50% de la planta del primer piso.
4. Que las nuevas estancias tengan una altura libre mínima de 2,20 metros.
ARTÍCULO 46. AISLAMIENTO POSTERIOR. El aislamiento posterior deberá ser como mínimo de cuatro metros.
PARÁGRAFO. En el caso de predios que no cumplan con las condiciones mínimas establecidas en el artículo 40, la ocupación quedará definida por los mínimos de habitabilidad en cuanto a iluminación y ventilación.
ARTÍCULO 47. FACHADA DE LA EDIFICACIÓN. En los inmuebles del nivel 2 de conservación, así como de nivel 3 con fachada que deban conservarse, se debe conservar la integralidad de la misma, en términos de forma, tamaño, dimensión, ubicación y disposición, así como los materiales constructivos y los acabados de todos los elementos formales compositivos de la fachada -si las fichas normativas no dicen lo contrario-, tales como aleros y alfardas, vanos de puertas y ventanas, balcones, voladizos para balcones, ornamentación de la carpintería de madera (alfardas, balaústres, bolillos, cornisas y pasamanos, entre otros).
No se permite demolición alguna de los elementos formales compositivos de la fachada, anteriormente descritos, ni la clausura de vanos, ni la apertura de nuevos vanos, siempre y cuando no se justifique la existencia o ausencia de vanos en el inmueble original.
Los acabados de la fachada se harán mediante pañetado de mortero de cal y arena y pintura a la cal, cuando la estructura portante del inmueble lo exija (tapia, bahareque). En cuanto al color, tanto en muros como en carpintería se mantendrán los colores tradicionales de la arquitectura jericoana establecidos en esta norma.
En los inmuebles de nivel 3 de conservación catalogados como 3N-C se deberá proteger la fachada, entendiendo por tal el volumen de la crujía frontal del inmueble, mas no en lo que respecta a la materialidad del acabado ni al tamaño y ritmo de vanos, que en muchos casos serán susceptibles de modificación.
PARÁGRAFO. Respecto a los vanos se tendrá en cuenta lo siguiente:
1. Se mantendrá la forma geométrica rectangular y en sentido vertical de los vanos de las ventanas, con una proporción 1:2, en la cual, a corresponde al ancho del vano (a = 1), y b corresponde a la altura del vano (b = 2).
2. En el caso de inmuebles de dos pisos, se garantizará la correspondencia en la ubicación de vanos en pisos superiores con relación a la disposición y ubicación de vanos en el primer piso.
3. En los casos de posible subdivisión predial, la accesibilidad deberá solucionarse con los vanos existentes en la fachada, y en todo caso deberá verificarse la factibilidad de la subdivisión en cumplimiento de las normas previstas en esta materia (accesibilidad, frentes y áreas mínimas de lotes, lados y áreas de patios, composición formal de la fachada, entre otras), previa aprobación del proyecto por la entidad correspondiente.
4. Se permite la recuperación de vanos clausurados o de elementos formales compositivos de la fachada perdidos, previo proyecto de restauración aprobado por la entidad correspondiente.
5. Se permite la modificación de los vanos en los inmuebles de N2 y N3, siempre y cuando sea para recuperar los ritmos originales transformados o para permitir la habitabilidad de inmuebles que actualmente no cumplan con estas condiciones. Esta última condición estará condicionada a la no afectación de ritmos y proporción de vanos tradicionales.
ARTÍCULO 48. ZÓCALOS. Los zócalos de las edificaciones existentes en el Centro Histórico de Jericó y en su zona de influencia deben mantener exclusivamente acabados de pintura monocolor, bien sea un color más oscuro que el resto de la fachada (predominio del café, verde oscuro y verde Jericó) o con el mismo color de la fachada.
No se permite ningún tipo de enchapes en la superficie de la fachada para la adecuación de zócalos, pues alteran el sistema constructivo original conformado por muros de bahareque o tapia con recubrimiento de pañete y con acabado final o pintado de cal, y porque además generan cargas estructurales adicionales e impiden la ventilación necesaria de los materiales constructivos subyacentes. Por tanto, no se permite la colocación de molduras ni el recubrimiento o enchape de los zócalos con ningún tipo de material, sea pétreo (piedra), de cemento, cerámica, baldosa, baldosín, ladrillo, gres u otro tipo de material.
Los inmuebles existentes que tengan zócalos enchapados de algún tipo deben eliminar el revestimiento en aras de devolver la conformación original del mismo.
Cuando en inmuebles de los tipos N2 arquitectónico y N3 contextual aparezcan nuevos zócalos debido a ampliaciones, estos deben seguir la altura y el color de los existentes, en aras de mantener la continuidad de la imagen urbana.
ARTÍCULO 49. CULATAS. Tanto las nuevas culatas aparecidas por ampliaciones, como las existentes, deben ser tratadas como las fachadas. Queda prohibido el acabado con mampostería a la vista en las mismas.
ARTÍCULO 50. CONDUCTOS EN FACHADAS. Tanto en ampliaciones como en edificación existente, se permite la aparición de bajantes y canoas vistas en fachadas, siempre y cuando sean metálicas, preferiblemente de aleaciones de cobre.
ARTÍCULO 51. ALEROS. En ampliaciones de fachada de inmuebles de los tipos N2 tipo arquitectónico y N3 contextual, los aleros, al igual que la altura bajo el mismo y la altura de cumbrera, serán una continuidad de los existentes, en cuanto a la dimensión y a la materialidad.
ARTÍCULO 52. CUERPOS VOLADOS Y BALCONES. Se prohíbe la aparición de balcones en fachada en las edificaciones de los niveles 2 arquitectónico y 3 contextual que se deban conservar, a no ser que esté debidamente documentada la existencia de los mismos en las construcciones originales.
Para ampliaciones que generan fachada, la normatividad en cuanto a la existencia de balcones o cuerpos volados será la misma que para obra nueva.
PARÁGRAFO. Se podrán autorizar balcones en fachadas que se deban conservar siempre y cuando quede debidamente justificada su existencia en el inmueble original.
ARTÍCULO 53. SÓTANOS Y SEMISÓTANOS. Quedan prohibidos los sótanos y semisótanos en toda el área afectada.
ARTÍCULO 54. DISTRIBUCIÓN ESPACIAL. Las edificaciones catalogadas en el nivel de conservación N2 deben mantener la distribución espacial interna, conformada por zaguanes, corredores para circulación y distribución, espacios internos, patios, vacíos de patios y solares (véase la ficha normativa). En consecuencia, se deben mantener las dimensiones (alto, ancho y largo) de esos espacios. La formalización de entrepisos y distribuciones interiores en aras de adecuar funcionalmente un inmueble deben ser reversibles y permitir la legibilidad de los elementos que dotan de valor al inmueble.
ARTÍCULO 55. SUBDIVISIÓN PREDIAL. En los niveles de conservación N2 arquitectónico y N3 contextual se permitirá la subdivisión en inmuebles que cumplan con la normatividad específica establecida para cada nivel de conservación/intervención, y que conserven las características básicas de implantación de la edificación, tales como la unidad volumétrica y de fachada original, el esquema funcional de circulaciones, las condiciones básicas de habitabilidad en términos de espacialidad, iluminación y ventilación directa a través de fachadas y patios (descubiertos), y se conserven los solares que conforman centros de manzana, entre otras condiciones, como se especifica a continuación:
Para adecuar accesos se aprovecharán los portones de acceso secundarios (comúnmente destinados al ingreso y salida de animales e insumos domésticos, para la agricultura y ganadería) y accesos por fachadas laterales, cuando la edificación dé frente a dos vías o cuando el frente se comparta entre dos o más predios.
Se mantendrán las características volumétricas y de alturas de la edificación, y se respetará la composición de la cubierta y sus materiales. No se permiten mansardas, terrazas, ni retrocesos de fachada en ninguno de los pisos de la edificación.
Se mantendrá el lenguaje formal de la fachada, conservando tamaños, alineamiento superior e inferior, formas, materiales y diseños ornamentales de los vanos de puertas y ventanas, así como de los demás elementos compositivos de la fachada, con el objeto de garantizar que se mantenga la unidad de la fachada.
La superficie mínima de los predios resultantes de la subdivisión será de 60 m², sea en régimen de copropiedad o de propiedad horizontal. Los elementos como zaguán y patio no se podrán alterar, y pasarán a tener una condición de espacios comunes.
Toda subdivisión de inmuebles de los tipos N2 arquitectónico y N3 contextual que tengan elementos que deban conservarse requiere de autorización de la entidad competente.
ARTÍCULO 56. ENGLOBES. Cuando se realicen englobes, el nuevo predio heredará el nivel de conservación más restrictivo de los inmuebles originales. Asimismo, el englobe estará condicionado a la elaboración de una nueva ficha normativa que deberá ser aprobada por el Ministerio de Cultura.
ARTÍCULO 57. MATERIALES DE LA EDIFICACIÓN. Los elementos de los inmuebles catalogados en los niveles de conservación N2 (arquitectónico) y N3 (contextual) deberán conservar los materiales con que fueron concebidos originalmente. Asimismo, toda ampliación en N1 y toda obra nueva en N3, deberá materializarse con elementos compatibles con los existentes.
ARTÍCULO 58. LENGUAJE. Las ampliaciones de las edificaciones existentes deben ser entendidas como nueva arquitectura dentro de un contexto histórico, es decir, el lenguaje debe estar en armonía con el existente, pero diferenciase del mismo, en aras de que no aparezcan falsos históricos. La nueva arquitectura debe propender al uso de materiales y técnicas constructivas tradicionales (tapia, bahareque, adobe, etc.).
ARTÍCULO 59. ANTENAS. Queda prohibida la instalación de antenas parabólicas en los faldones de cubierta que generan fachada, balcones o muros de fachada en general.
ARTÍCULO 60. RESTITUCIÓN. Las intervenciones realizadas que han afectado los valores de los inmuebles catalogados en el nivel 2 deben reversarse cuando se solicite licencia de construcción o cambio de uso.
ARTÍCULO 61. INTERVENCIÓN EN CONSTRUCCIONES QUE SE DEBEN CONSERVAR. Las reparaciones de edificaciones de conservación deben realizarse con los mismos materiales de su construcción, o aquellos que sean totalmente compatibles con los mismos: adobe, tapia pisada y bahareque.
Cuando por su estado, la edificación sea irrecuperable o existan fallas técnicas irremediables en sus elementos estructurales, puede buscarse su reconstrucción mediante materiales acordes con las técnicas constructivas tradicionales o con las actuales, siempre que mantengan las características relacionadas con los valores arquitectónicos protegidos y se empleen, en la medida de lo posible, sistemas similares a los sustituidos, sin generar falsos históricos ni patologías en los materiales originales que van a conservarse.
NORMAS DE EDIFICABILIDAD PARA INMUEBLES DE NIVEL 3 DE CONSERVACIÓN EN EL ÁREA AFECTADA Y EN LA ZONA DE INFLUENCIA.
ARTÍCULO 62. ÍNDICE DE OCUPACIÓN. El índice de ocupación máximo permitido es del 60%.
PARÁGRAFO. Cuando el predio no cumpla las condiciones mínimas de superficie, la ocupación máxima del mismo por la construcción quedará limitada por las condiciones mínimas de habitabilidad, teniendo en cuenta dimensiones mínimas de patio.
ARTÍCULO 63. CONDICIONES MÍNIMAS. La superficie mínima del predio, para aplicar el artículo anterior, “índice de ocupación”, será de 120 m².
ARTÍCULO 64. DIMENSIÓN DE LAS CRUJÍAS. La aparición de la nueva arquitectura seguirá modelos de crecimiento tradicionales, siendo 7 metros el ancho máximo permitido de crujía. Los casos de obra nueva con uso dotacional que necesiten una mayor dimensión de crujía requerirán estudio específico y autorización del Ministerio de Cultura.
ARTÍCULO 65. PARAMENTO. En todo el perímetro del centro histórico y de la zona de influencia de Jericó se mantendrá la línea actual de paramento, en toda la extensión de la fachada y en todos los pisos que conformen la edificación. La línea de paramento está definida por el borde interno del andén, salvo en las tipologías que actualmente cuentan con retroceso en el paramento, las cuales mantendrán esa condición, particularmente en los predios del centro histórico identificados con los siguientes códigos prediales: 004300012 (casa cural); 004400008 (residencia); 002700011 (residencia); 001100027 (residencia); 000200052 (capilla del monasterio Santa Clara); 000300017 (seminario Conciliar) y 005300097 (templo Inmaculado Corazón de María).
Las nuevas edificaciones, admisibles en el nivel de conservación contextual N3, en las categorías incompatible y obra nueva (N3-I, N3-L), deberán dar continuidad a la línea de paramento de las edificaciones vecinas, y en todo caso mantendrán la misma distancia entre la edificación existente colindante y el eje de la o las vías sobre las cuales tenga frente el lote donde se va a construir, es decir, siempre con referencia al retiro del eje vial. Además, deberán consultar los lineamientos normativos predio a predio, definidos en la “Ficha normativa por manzana”.
PARÁGRAFO. Adicionalmente, para garantizar la conservación de la línea de paramento de las edificaciones, se deben respetar los siguientes preceptos normativos:
1. Mantener el paramento en toda la extensión de la fachada y en todos los pisos que conformen la edificación.
2. Generar voladizos única y exclusivamente para balcones que correspondan a la ubicación de puertas y ventanas, siempre y cuando se acojan los lineamientos para la construcción de balcones de la presente norma y estos estén permitidos en el sector.
3. No se permiten voladizos de ninguna dimensión en fachada cerrada.
ARTÍCULO 66. PATIOS INTERIORES. Los patios tendrán una dimensión mínima tal que se pueda inscribir en ellos una circunferencia de tres metros de diámetro.
Los pisos se materializarán mediante materiales que permitan la permeabilidad de los mismos, en aras de evitar humedades por capilaridad en muros. Está prohibido cualquier tipo de cubrimiento en los patios interiores.
ARTÍCULO 67. AISLAMIENTO POSTERIOR. El aislamiento posterior mínimo será de cuatro metros.
ARTÍCULO 68. CUBIERTAS Y ALEROS. Las cubiertas de las edificaciones nuevas del centro histórico y la zona de influencia de Jericó se proyectarán, siempre, con pendiente hacia la o las vías públicas sobre las que tengan frente los inmuebles, y deberán terminar en aleros (alero es la parte del tejado que sale fuera de la pared de la fachada o paramento). Constituyen una excepción las edificaciones que originalmente se concibieron con muros áticos, las cuales están referenciadas en la “Ficha normativa por manzana”.
Los aleros tendrán un ancho mínimo igual a la proyección del ancho del andén, el cual oscila entre 0,80 m (dimensión mínima) y 1,00 m, para garantizar el adecuado salpique de aguas lluvias. El acabado de la cubierta será de teja de barro. La altura máxima del frente del alero será de 15 cm.
Toda construcción deberá cubrirse con techos inclinados con pendiente mínima del 30% y máxima del 45%. En ningún caso se admitirán placas de concreto como acabado definitivo de cubiertas.
El acabado de las cubiertas se hará con teja curva de barro cocido. No se permite el uso de tejas curvas de barro tratadas mediante procesos de envejecimiento.
En ninguno de los pisos de la edificación se permiten terrazas ni adecuación de elementos constructivos que sobresalgan o alteren la pendiente de la cubierta. Asimismo, queda prohibida la abertura de vanos en los faldones de la cubierta.
Las edificaciones ubicadas en el centro histórico y la zona de influencia de Jericó que se encuentren cubiertas con teja de asbesto-cemento, zinc o algún otro material diferente de las tejas de barro, deberán ser reemplazadas por teja de barro que cumplan con las especificaciones técnicas indicadas en la presente norma para este tipo de cubierta.
ARTÍCULO 69. NÚMERO DE PISOS. La nueva edificación tendrá como máximo dos pisos en la zona de influencia, y un piso en el área afectada. En cualquier caso, para casos particulares prevalecerá lo establecido en las fichas de manzana.
ARTÍCULO 70. ALTURAS. Las nuevas edificaciones que vayan a construirse en el área afectada del Centro Histórico de Jericó mantendrán la altura predominante en el costado de manzana en la que se localicen, para lo cual se tomarán como referencia los inmuebles colindantes catalogados en los niveles integral, arquitectónico y contextual compatible, como se establece, en la “Ficha normativa por manzana”.
Cuando el inmueble se encuentre localizado en la zona de influencia, la altura máxima bajo el alero será de siete metros (7 m), siempre y cuando no exista en el frente de manzana un inmueble de nivel 2 de conservación que establezca la línea de altura de referencia. En este caso, la altura máxima estará determinada por más o menos un metro de la misma.
ARTÍCULO 71. MEDICIÓN DE LA ALTURA. La altura de las edificaciones, tanto máxima como mínima, se mide desde el punto medio horizontal de la fachada.
Adicionalmente, para medir la altura de la edificación se tendrán en cuenta los siguientes parámetros:
Cuando el lote se ubica en esquina y ambas fachadas presentan pendientes considerables, la altura máxima de la edificación se medirá desde el punto medio horizontal de cada fachada, tomando como altura máxima única la media entre la máxima de ambas fachadas.
En el caso de fachadas en viales con pendiente pronunciada, se provocará el escalonamiento de cubiertas de forma que la diferencia de altura entre los extremos que delimitan la fachada no exceda de 1,8 metros.
ARTÍCULO 72. MEDIANERAS. En ampliaciones, reformas y construcciones nuevas debe mantenerse la condición original de muros de las edificaciones colindantes; por tanto, no se permite la intervención o modificación de ningún tipo de muro medianero o colindante que modifique la condición original del mismo o cuya modificación vaya en detrimento de sus características estructurales. Así, entre las intervenciones no admitidas se cuentan la demolición parcial o total, el cambio de material, el cambio de conformación, el cambio de dimensión, los cambios de posición de muros colindantes de tapia, de bahareque o de una combinación de estos dos materiales.
ARTÍCULO 73. FACHADAS. Se garantizará la conservación de la unidad de fachada manteniendo el lenguaje formal de sus elementos compositivos, para lo cual se deberán atender los siguientes preceptos normativos:
1. Alineamiento de los vanos: conservar el alineamiento superior e inferior de vanos de puertas y ventanas de las edificaciones colindantes que cuenten con valor patrimonial. Esta condición es válida solo cuando las calles sean planas.
2. Correspondencia de los vanos: garantizar la correspondencia de la ubicación de vanos en pisos superiores con relación a la disposición y ubicación de vanos en el primer piso.
3. Forma de los vanos: mantener la forma geométrica rectangular y en sentido vertical de los vanos de las ventanas, con una proporción 1:2, en la cual, a corresponde al ancho del vano (a = 1) y b corresponde a la altura del vano (b = 2). (Consúltese el gráfico).
4. Tamaño de los vanos: mantener la uniformidad en el tamaño de los vanos de las ventanas y de las puertas, de acuerdo con las jerarquías por ubicación en la fachada. Por ejemplo, la puerta principal sobre la fachada principal es de mayor dimensión.
5. Materiales de la carpintería: mantener la madera como único material para la elaboración de todos los elementos compositivos de la fachada, a saber: marcos, alas, tableros, pasamanos, calados y ornamentación en general de ventanas, puertas, portones, contraportones y divisiones interiores de comedores; pasamanos, tableros, voladizos y ornamentación de balcones; estructura de los techos y particularmente las alfardas ornamentales de los aleros.
6. Diseño de la carpintería: mantener los diseños ornamentales tradicionales de los elementos compositivos de la fachada, tales como marcos, alas, tableros, pasamanos, voladizos y balcones; estructura de los techos y las alfardas de los aleros (los aleros permanecerán a la vista, libres de cielo raso), así como los calados y la ornamentación en general de ventanas, puertas, portones, contraportones, balcones y demás elementos en los que la carpintería sea un elemento constitutivo.
ARTÍCULO 74. FACHADAS EN EDIFICACIONES ESQUINERAS. Toda edificación esquinera deberá tener fachada abierta hacia ambos costados de las vías sobre las cuales tenga frente.
ARTÍCULO 75. ACABADOS DE FACHADAS. Los acabados de fachadas consistirán en pañetados pintados a la cal, como material de recubrimiento y protección contra la humedad.
En la fachada no se permiten enchapes, cualquiera sea su tipo.
PARÁGRAFO 1. Se mantendrán las características de identidad referidas al conjunto de rasgos propios de la colectividad jericoana, expresadas, entre otras, en el color, cuyas características históricas lo diferencian de las tendencias de los demás municipios de Antioquia; por tanto, para garantizar que se mantenga este atributo, se respetarán los siguientes preceptos normativos:
1. Color de la fachada. Se debe mantener el color históricamente predominante y que dio origen a la declaratoria del Centro Histórico de Jericó y su zona de influencia: las paredes exteriores de la fachada color blanco de cal, matizado con tonos pastel; en contraste, las puertas, balcones y ventanas llevarán colores verde y azul –en diversas tonalidades–, crema, café, rojo, naranja y blanco; las molduras de los elementos compositivos de puertas y ventanas se resaltarán mediante la combinación de dos o, máximo, tres colores.
2. Zócalos en la fachada. Los zócalos de las edificaciones existentes en el Centro Histórico de Jericó y su zona de influencia deben mantener exclusivamente un acabado de pintura monocolor, bien sea un color más oscuro que el resto de la fachada (predominio del café, verde oscuro y verde Jericó, como lo tiene la carpintería), o bien el mismo color de la fachada.
Para la adecuación de zócalos no se permite la incorporación de recubrimientos de ningún tipo en la superficie de la fachada, ya que alteran el sistema constructivo. Por tanto, no se permite la colocación de molduras ni el recubrimiento o enchape de los zócalos con ningún tipo de material (pétreo, de cemento, cerámica, baldosa, baldosín, ladrillo, gres o cualquier otro tipo de material).
PARÁGRAFO 2. La totalidad de los muros de cerramiento de predio deberán contar con acabado de pañete y pintura.
ARTÍCULO 76. ZÓCALOS. Deberán desarrollarse buscando una solución armónica con respecto a las edificaciones colindantes y a las que conforman el costado de la cuadra donde se ubiquen, con el objetivo de coadyuvar con este elemento a mantener la homogeneidad urbanística de las fachadas.
Se debe mantener la altura y la pendiente predominante de los zócalos jericoanos, que no serán inferiores a 1,0 m de altura ni superiores a 1,50 m. Esta medida se tomará desde el andén y se mantendrá el alineamiento de la pendiente de la vía sobre la cual tiene frente la edificación. En edificaciones esquineras debe efectuarse empate en esquina, que deberá armonizar la altura entre ambas fachadas.
ARTÍCULO 77. CUERPOS VOLADOS Y BALCONES. Quedan prohibidos los cuerpos volados tanto en el área afectada como en la zona de influencia.
Se permiten los balcones en el área afectada y la zona de influencia siempre y cuando se cumplan las siguientes condiciones:
1. El vuelo máximo de los balcones será de 0,80 metros.
2. La longitud máxima de los balcones no será mayor al 50% de la longitud total de la fachada.
3. El cerramiento del balcón se hará con madera y tendrá un área de cerramiento de máximo el 50% del área total del balcón.
4. Los balcones en su totalidad serán de madera, y serán construidos según técnicas tradicionales.
5. Los pasamanos serán elaborados con madera ornamentada con calados o con macana.
ARTÍCULO 78. SÓTANOS Y SEMISÓTANOS. Quedan prohibidos los semisótanos tanto en el área afectada como en la zona de influencia.
PARÁGRAFO. Se permiten los sótanos solo en la zona de influencia, y siempre y cuando se destinen a uso de parqueadero o bodegaje. Los parqueaderos deberán seguir las siguientes condicionantes:
Las dimensiones mínimas libres de las celdas de parqueo serán de 2,50 m x 5,00 m, y la sección del carril de circulación será de 6,00 m para parqueo en doble crujía, y de 5,50 m para parqueo en un solo costado.
La pendiente máxima de las rampas de acceso y de circulación interna será de un 16%.
Las rampas internas de los parqueaderos no deben invadir el espacio público ni desembocar directamente a los andenes públicos. Entre esas rampas internas y el espacio público debe realizarse una plataforma de máximo el 5% de pendiente y 5 m de longitud.
Todos los parqueaderos públicos deben disponer de una celda para vehículos que transporten personas con movilidad reducida, por cada veinticinco celdas totales. Estas celdas deben ubicarse lo más próximo posible a los accesos de los espacios o edificios servidos por los mismos, preferentemente al mismo nivel de estos. Los desniveles en los recorridos peatonales del estacionamiento deben presentar rampas.
Los sótanos deben cumplir con los mínimos exigidos de renovación del aire para el uso propuesto.
ARTÍCULO 79. ESTACIONAMIENTOS. Cada unidad nueva de vivienda en la zona de influencia deberá incorporar una plaza de parqueadero. Si por condiciones del predio no fuese posible, esta reserva se deberá realizar en otro inmueble o en áreas de parqueaderos públicos.
ARTÍCULO 80. HABITABILIDAD. Todos los espacios habitables deben tener iluminación y ventilación natural, bien sea que dé a fachada o a patio interior. Los núcleos húmedos y áreas de bodegaje podrán ventilarse de forma natural o mecánica, mediante ductos de ventilación.
ARTÍCULO 81. TANQUES DE AGUA. Los tanques de agua deberán localizarse en el primer piso en espacios dispuestos para tal objeto, u ocultos bajo cubierta. En ningún caso se permite la ubicación de los tanques de aguas vistos en cubiertas.
PARÁGRAFO. Los tanques existentes se adecuarán mediante revestimientos vegetales, con el objetivo de amortiguar su impacto.
ARTÍCULO 82. ÁREA MÍNIMA DEL PREDIO. La dimensión mínima de los predios, para ampliación u obra nueva en área afectada y zona de influencia será de 120 m², con un frente mínimo de fachada de 6 m. Si un predio no cumple con estas condiciones, deberá englobarse con predios colindantes para el desarrollo del inmueble.
PARÁGRAFO 1. Se permite la construcción en predios que no cumplan los mínimos establecidos, siempre y cuando esté entre predios consolidados y cumpla los requisitos de habitabilidad.
PARÁGRAFO 2. Quedan eximidos de la aplicación del presente artículo los casos correspondientes a proyectos especiales de interés público, que en cualquier caso deben ser autorizados por el Ministerio de Cultura.
ARTÍCULO 83. SUBDIVISIÓN PREDIAL. En el Área Afectada (AA) y en la Zona de Influencia (ZI) del Centro Histórico se permitirá la subdivisión predial para nueva edificación exclusivamente en predios que garanticen indefectiblemente el cumplimiento del frente mínimo de lote de 6 m, una superficie mínima del predio de 120 m², que toda la extensión o longitud del frente esté sobre la vía pública, que se garantice la continuidad en las conformación de unidad de fachada urbana y que las divisiones resultantes cuenten con accesibilidad directa por vía pública. Además, deberá garantizarse el cumplimiento de paramento exterior sobre vía pública así como los aislamientos posteriores, siempre y cuando se dé cumplimiento a las normas del presente capítulo.
ARTÍCULO 84. PARAMENTO DE CONSTRUCCIÓN. Los predios sin construir deben mantener como cerramiento una barda de al menos 1,80 metros de altura, que guardará continuidad del paramento de la manzana y asegurará la continuidad del espacio y el ambiente urbano del municipio. Su acabado se hará con materiales permitidos para la fachada.
ARTÍCULO 85. OBRAS EN INMUEBLES FUERA DE ORDENACIÓN. En inmuebles fuera de ordenación, es decir, que no cumplen la norma del Plan Especial de Manejo y Protección para el área afectada y la zona de influencia del municipio de Jericó, las obras de reparaciones locativas y adecuación funcional, deben suponer una mejora de la escena urbana y no una consolidación de una situación no conforme.
ARTÍCULO 86. LENGUAJE. Las nuevas edificaciones que se realicen deberán utilizar lenguajes que no creen imitaciones de los elementos de la arquitectura tradicional, de tal forma que se reconozcan como nuevas adiciones a partir de interpretaciones contemporáneas de los valores tradicionales del Centro Histórico de Jericó.
NORMAS DE EDIFICABILIDAD PARTICULARES
PARA NUEVOS DESARROLLOS EN LA ZONA DE INFLUENCIA.
ARTÍCULO 87. TRAZADO URBANO. Las nuevas áreas que se vayan a desarrollar deben respetar la continuidad vial, aunque el tratamiento de los materiales podrá ser una reinterpretación del enlosado con materiales y técnicas distintas de las tradicionales, pero homogéneas en su aplicación.
PARÁGRAFO. Las manzanas siempre deberán estar delimitadas por espacios públicos (vías vehiculares o peatonales, parques o alamedas).
ARTÍCULO 88. NUEVOS DESARROLLOS. Los nuevos desarrollos se darán a continuación de áreas consolidadas, en aras de no generar islas de manzanas.
ARTÍCULO 89. SUPERFICIE MÍNIMA DE PREDIOS. La dimensión mínima de predios para nuevos desarrollos será de 120 m², con un frente mínimo de fachada de seis metros.
PARÁGRAFO. Quedan eximidos de la aplicación del presente artículo los casos de proyectos especiales de interés público, que en todo caso deben ser autorizados por el Ministerio de Cultura.
ARTÍCULO 90. OCUPACIÓN MÁXIMA. La ocupación máxima de los nuevos desarrollos será del 70%.
ARTÍCULO 91. NÚMERO DE PISOS. El número máximo de pisos será de dos.
ARTÍCULO 92. ALTURAS. La altura máxima medida desde el punto medio horizontal de la fachada hasta la línea bajo alero será de siete metros.
Respecto a las alturas libres mínimas, se cumplirán las siguientes condiciones:
| Uso | Un piso | Plantas altas |
| Residencial o mixto | Mínima 3,50 metros | 2,50 metros |
| Comercial | Mínima 3,50 metros | – |
ARTÍCULO 93. CUBIERTAS. La construcción de cubiertas deberá cumplir con los siguientes lineamientos:
1. La cubierta será inclinada, con una pendiente comprendida entre un mínimo del 30% y un máximo del 45%.
2. Será obligatorio conservar la misma pendiente en cada faldón de una misma cubierta.
3. Las cubiertas de las construcciones que conforman fachada, tendrán faldones recayentes a la vía pública y al interior del predio.
4. No se permite la instalación de antenas de comunicación ni de dispositivos para la captación de energía solar, dado el impacto que estos elementos tienen en la cubierta, y como consecuencia, en el espacio urbano, salvo los casos mencionados en artículos anteriores.
5. La altura máxima de la cumbrera será de 1,80 metros, medida desde la línea bajo alero hasta el punto más alto de la cubierta inclinada.
6. No se permite la abertura de huecos en los faldones de la cubierta.
ARTÍCULO 94. CONSIDERACIONES FORMALES O DE LENGUAJE ARQUITECTÓNICO. La nueva edificación que se incorpore a la trama urbana en ningún caso debe ser repetición de la edificación tradicional existente. Deberá adecuarse a unas normas concretas establecidas en este capítulo dentro de parámetros de armonía y respeto con lo existente. Las nuevas edificaciones se deben reconocer como nuevas etapas del desarrollo urbano, diseñadas a partir de interpretaciones contemporáneas de los valores tradicionales del centro histórico.
ARTÍCULO 95. PARAMENTO DE CONSTRUCCIÓN. Las edificaciones deberán construir como paramento contra el espacio público, cuando no exista edificación, una barda de 1,80 metros de altura. Dicha barda estará coronada por elementos similares a los tradicionales.
ARTÍCULO 96. PATIOS. La dimensión mínima del patio será tal que se pueda inscribir en él una circunferencia de al menos tres metros de diámetro. La pavimentación del patio debe ser permeable.
ARTÍCULO 97. RETROCESOS EN FACHADA. No se permiten retrocesos de la línea de fachada respecto a la alineación de la manzana.
ARTÍCULO 98. SÓTANOS. Se permiten los sótanos exclusivamente para facilitar el uso de estacionamientos o de depósitos de las viviendas. Los sótanos tendrán una altura libre mínima de 2,40 metros.
En caso de que el estacionamiento sea comunitario, cumplirá las siguientes recomendaciones:
1. Las plazas de estacionamiento tendrán como mínimo una dimensión de 5,00 metros de longitud por 2,60 metros de ancho. Delante de cada plaza existirá una reserva de espacio de igual dimensión, que puede coincidir con la zona de circulación.
2. El vial de circulación tendrá como mínimo una anchura de 3 metros, siendo el radio de giro como mínimo de 5 metros, y el radio de giro de rampas, de 6 metros.
3. La rampa de acceso al estacionamiento tendrá como máximo una pendiente del 16% (en cualquier caso, sea comunitario o privado), y no desembarcará de modo directo al espacio público.
4. El desembarque a la vía pública se realizará mediante una explanada horizontal de al menos 4,50 metros de longitud y una pendiente máxima del 5%.
Se deberá asegurar una correcta ventilación del sótano por medios mecánicos de al menos cinco renovaciones/hora, de forma que no se acumulen vapores o gases nocivos.
ARTÍCULO 99. FACHADAS. El acabado de las fachadas se hará con pañete, preferiblemente con técnicas constructivas tradicionales de Jericó.
No se permite el recubrimiento de las fachadas con materiales cerámicos, monocapas, enchapes de baldosas o tabletas de arcilla, piedra, recubrimientos plásticos, placas metálicas o de fibrocemento. Tampoco está permitido el acabado con bloques o ladrillos a la vista ni con pinturas de aceite o adherentes sintéticos para los muros.
Las fachadas deberán seguir unos ejes de modulación que articulen su composición y que se identifiquen claramente a lo largo de su superficie.
ARTÍCULO 100. CULATAS. Las culatas se tratarán como una fachada.
ARTÍCULO 101. MATERIALES DE CONSTRUCCIÓN. Se recomiendan materiales y técnicas constructivas tradicionales (tapia pisada, muros de bahareque, muros de adobe, pañete tradicional). Se permiten materiales de construcción modernos, siempre y cuando no afecten la imagen del entorno.
Las carpinterías en general podrán ser de madera o metálicas, con excepción del aluminio anodizado. En todos los casos deberán estar pintadas, lacadas o barnizadas con acabados mate.
ARTÍCULO 102. ANTENAS. Se pueden instalar antenas individuales en el faldón interior de las cubiertas, pero se prohíbe su instalación en fachadas.
ARTÍCULO 103. TANQUES DE AGUA. Su instalación debe estar contemplada en el interior de las cubiertas, o en la primera planta, en un espacio habilitado para tal efecto. En ningún caso quedarán a la vista.
ARTÍCULO 104. Las demás condiciones de edificabilidad serán las establecidas en el subcapítulo iii del presente capítulo.
NORMAS PARA AVISOS COMERCIALES.
ARTÍCULO 105. PUBLICIDAD EXTERIOR VISUAL. Solo se permite un aviso por cada local comercial o unidad de uso, adosado a la fachada, y deberá ubicarse únicamente en el primer piso.
PARÁGRAFO 1. El contenido del aviso deberá limitarse al nombre y/o razón social del establecimiento.
PARÁGRAFO 2. Se prohíben los avisos de cualquier tipo de marcas comerciales.
ARTÍCULO 106. PLACAS DE CARTELERÍA. Se establecen como condiciones para las placas y avisos las siguientes:
1. Las placas de identificación residencial, profesional o de especialistas pueden tener como máximo 35 cm de ancho por 15 cm de alto (no se contabilizan como avisos comerciales). Los avisos de profesionales pueden colocarse a un lado de la puerta de acceso.
2. El área donde se ubique el anuncio comercial puede tener como máximo 70 cm de ancho. El largo se empezaría a contar por la línea situada a 1,50 metros desde el plano del suelo y la línea que marca el dintel del hueco.
3. Deberán ubicarse obligatoriamente a los lados de los vanos de acceso del inmueble, sin sobrepasar la altura del dintel de los mismos, y a una distancia mínima de 0,20 m de cualquier elemento constructivo.
4. Las placas y avisos no pueden localizarse sobre vanos de puertas ni ventanas, ni sobre balcones.
5. No se permiten avisos luminosos ni pintados directamente sobre paredes o pisos. Se autoriza la iluminación de los avisos únicamente con un pequeño foco, ubicado sobre los mismos.
6. En cuanto a los materiales, serán preferiblemente de madera, arcilla, cabuya, metales, vidrio o acrílicos, piedra, etc.
7. Se permiten las incrustaciones para avisos en el pañete, siempre y cuando cumplan las condiciones anteriores.
PARÁGRAFO 1. No se permiten los avisos publicitarios sobre fachada.
PARÁGRAFO 2. Por la naturaleza constructiva de la fachadas del área afectada (tapia y bahareque), se prohíbe pegar carteles con cualquier tipo de publicidad o propaganda.
NORMAS DE USOS PARA EL CENTRO HISTÓRICO Y SU ZONA DE INFLUENCIA.
ARTÍCULO 107. USOS. Los usos en el centro histórico y su zona de influencia se clasifican en permitidos, compatibles, condicionados y prohibidos:
1. Usos permitidos. Conciernen a la destinación que se le da a un área delimitada de suelo, de acuerdo con su actitud o vocación, correspondiente a las áreas de actividad. Se permiten sin restricciones e imponen condiciones y exigencias para los usos compatibles y restringidos.
2. Usos compatibles. Corresponden a las actividades complementarias que no interfieren con las actividades principales y promueven su mejor funcionamiento, y que son imprescindibles para la configuración y funcionalidad del entorno. Se permiten sin restricciones, independientemente de su intensidad predial, condicionados a las circunstancias y exigencias establecidas desde los usos principales.
3. Usos restringidos. Corresponden a aquellas actividades que por sus particularidades de manejo, operación, funcionamiento o tamaño físico, o por el impacto ambiental, socioeconómico y demanda de servicios públicos domiciliarios, espacio público, vías y transporte tienen un impacto sobre las actividades principales y complementarias, y por lo tanto deben ser reguladas por la Administración Municipal, para mitigar sus impactos sin causar incompatibilidad.
4. Usos prohibidos. Son todos los usos no considerados como principales, compatibles o restringidos, referidos a aquellas actividades que no son factibles e impiden el funcionamiento y buen desarrollo de las actividades permitidas en las distintas unidades de planeación.
5. En espacios públicos quedan prohibidas las ventas ambulantes.
ARTÍCULO 108. TIPOS DE USO. Los usos asignados son: residencial, comercial, dotacional-institucional, de protección, residencial con intensidad comercial tipo 1 (RC1), residencial con intensidad comercial tipo 2 (RC2), residencial con intensidad de servicios (RS) y residencial con intensidad institucional (RI).
ARTÍCULO 109. Cuadro de usos por sectores normativos
| Zonas de uso del suelo | Usos permitidos | |||
| Principal | Compatible | Restringido | Prohibido | |
| Residencial | G12-G13 | G14, G6 COM2** Y G7 COM3*** | COM1* | Los restantes no contemplados |
| Dotacional (servicios institución) | G1-G2 | G5 COM 1 | G3****- G4**** | Los restantes no contemplados |
| Comercial | G5 COM1*-G6 COM2** Y G7 COM3*** | Los restantes no contemplados | ||
| Industrial | G10 Y G11 | Los restantes no contemplados | ||
Notas de la tabla
* COM1: El uso en la zona residencial se condiciona a una superficie mínima de predio de 250 m² y a un porcentaje máximo del uso en manzana, que en este caso podría ser el 50%. La propuesta de uso debe obtener el concepto previo favorable de la entidad competente.
** COM2: > 50 m² < 200 m².
*** COM3: = 50 m²
**** G3 y G4: Los predios deben estar definidos bien por el Plan Especial de Manejo y Protección, bien por el instrumento de ordenamiento territorial.
ARTÍCULO 110. NORMAS DE FUNCIONAMIENTO. Los establecimientos comerciales y de servicios, para su conformación y aprobación, deberán cumplir con los siguientes requisitos:
1. Que las actividades que en ellos se desarrollen no supongan riesgo de deterioro para los inmuebles donde se ubiquen.
2. Que las modificaciones que se realicen en los inmuebles no supongan detrimento de la calidad de las características que se deben conservar.
3. En caso de que se produzcan emisiones sonoras, estas no podrán sobrepasar los 35 dB(A), medidos a 0,50 m del muro medianero, o forjado, en caso de que la separación sea horizontal.
ASPECTOS ADMINISTRATIVOS.
ARTÍCULO 111. RESPONSABLE DEL MANEJO DEL BICN. Corresponde a la Alcaldía Municipal cumplir con las siguientes obligaciones, de acuerdo con lo establecido en la Ley 397 de 1997 (modificada por la Ley 1185 de 2008), y su Decreto Reglamentario número 1080 de 2015:
1 Preservar y conservar los valores patrimoniales del Centro Histórico de Jericó, bien de interés cultural del ámbito Nacional.
2. Cumplir las directrices incluidas en el presente PEMP.
ARTÍCULO 112. INSTANCIAS DE DECISIÓN. En concordancia con lo dispuesto en el artículo 9o del presente PEMP (“Niveles permitidos de intervención, tipos de obra e instancias de decisión”), con las precisiones hechas allí, las autoridades competentes para autorizar intervenciones, sin consideración al número de metros cuadrados y/o al porcentaje de intervención, ya sea al interior o en la fachada de los inmuebles del Centro Histórico de Jericó, son las siguientes:
1. Conservación Integral (CI). El Ministerio de Cultura es la instancia competente para autorizar cualquier intervención en los inmuebles del Nivel 1 (NI-1).
PARÁGRAFO 1. Las intervenciones en los inmuebles que colindantes con inmuebles del Nivel de Intervención 1 (NI-1), deberán contar con autorización previa del Ministerio de Cultura.
PARÁGRAFO 2. Los espacios públicos, del Área Afectada (AA) y de la Zona de Influencia (ZI), correspondientes al trazado original de calles, plazas y plazuelas, parques, atrios y andenes del Centro Histórico se consideran de conservación integral y, en consecuencia, cualquier intervención que se pretenda realizar en ellos deberá contar con autorización previa del Ministerio de Cultura.
PARÁGRAFO 3. Requerirán autorización previa del Ministerio de Cultura las intervenciones en inmuebles, cualquiera que sea su clasificación (NI-1, NI-2 o NI-3), cuyos frentes den a los siguientes espacios públicos: parque principal o de Reyes; parque los Fundadores; parque Monseñor Francisco Cristóbal Toro; morro El Salvador; Jardín Botánico; La Terraza; gruta La Peña y Viacrucis Gruta La Verbena o Rondinela; espacios verdes del complejo deportivo (incluye el parque infantil); parque lateral a la Catedral y; las calles que presentan escalinatas.
2. Conservación del tipo Arquitectónico (CA). La instancia competente para autorizar las intervenciones en los inmuebles del Nivel de Intervención 2 (NI-2), será la Alcaldía municipal – Secretaría de Planeación.
3. Conservación Contextual (CC). La instancia competente para autorizar las intervenciones en los inmuebles del Nivel de Intervención 3, será la Alcaldía municipal – Secretaría de Planeación.
PARÁGRAFO 1. La Secretaría de Planeación Municipal enviará trimestralmente al Ministerio de Cultura copia de las autorizaciones de intervención de inmuebles NI-2 y NI-3 y de las correspondientes licencias de construcción.
ARTÍCULO 113. SEGUIMIENTO. La Alcaldía municipal de Jericó será la encargada de efectuar la implementación del PEMP y de ello remitirá informes anuales al Ministerio de Cultura, que contendrán los resultados obtenidos en los diferentes componentes del PEMP.
PARÁGRAFO. El municipio de Jericó podrá proponer al Ministerio de Cultura modificaciones o ajustes al PEMP, debidamente soportados, en la medida en que sea necesario como producto de su desarrollo. Para su aprobación, en todos los casos, deberá contarse con el concepto favorable del Consejo Nacional de Patrimonio Cultural.
ASPECTOS FINANCIEROS CAPÍTULO I.
ARTÍCULO 114. GASTOS DEDUCIBLES POR MANTENIMIENTO Y CONSERVACIÓN DE BIC. Los gastos sobre los que opera la deducción por mantenimiento y conservación de BIC, son los establecidos en los inciso segundo del artículo 56 de la Ley 397 de 1997 (modificado por el artículo 14 la Ley 1185 de 2008), en concordancia con el numeral 2 del artículo 2.4.2.1 del Decreto número 1080 de 2015.
PROGRAMAS Y PROYECTOS QUE SE DESARROLLARÁN.
ARTÍCULO 115. PLAN DE ACCIÓN. Instrumento de programación para la ejecución y el control de las acciones que deben llevar a cabo las diferentes instancias para dar cumplimiento al PEMP, en concordancia con la visión y los objetivos estratégicos, con el fin de dar operatividad y hacer realidad la recuperación, protección y conservación del Centro Histórico de Jericó.
PARÁGRAFO. El “Resumen del plan de acción”, con sus respectivos objetivos, acciones, indicadores, recursos, responsables y plazos de ejecución se encuentran en el DTS.
ARTÍCULO 116. PROGRAMAS Y PROYECTOS. Con el fin de desarrollar los objetivos del PEMP, se definen los programas de movilidad, conservación y formación como determinantes que deben ejecutarse en diferentes plazos.
PARÁGRAFO. Los programas y proyectos, con sus respectivos objetivos, prioridades, costos estimados y fuentes de recursos se encuentran en el Anexo B del “Documento de formulación”, de la presente resolución.
PLAN DE DIVULGACIÓN.
ARTÍCULO 117. DEFINICIÓN. El Plan de Divulgación es el conjunto de acciones que se deben adelantar para difundir los valores culturales del centro histórico, con el fin de garantizar su apropiación por los habitantes y visitantes.
ARTÍCULO 118. OBJETIVO GENERAL. Contribuir al fortalecimiento de un proceso de reconocimiento, valoración y manejo adecuado del Centro Histórico de Jericó como un valor patrimonial de importancia en el devenir sociocultural, económico e histórico de la región y la nación colombiana.
ARTÍCULO 119. OBJETIVOS ESPECÍFICOS. Los objetivos específicos son los siguientes:
1. Generar las acciones conducentes a la visibilización del centro histórico como un sector urbano dotado de valor patrimonial, cultural, religioso y educativo de gran importancia para la sociedad colombiana.
2. Lograr la participación y apropiación de la comunidad en general para la implementación de los proyectos planteados en el PEMP.
3. Facilitar escenarios de participación y concurrencia de los distintos actores sociales, que permitan socializar los aspectos históricos, culturales, religiosos, educativos, arquitectónicos y monumentales que conforman el valor cultural del Centro Histórico de Jericó.
4. Crear mecanismos de control social del Plan Especial de Manejo y Protección en los que participen todos los grupos sociales relacionados con el bien de interés cultural.
ARTÍCULO 120. PROYECTOS Y ACTIVIDADES DE DIVULGACIÓN. En el plan de acción del PEMP que se ejecutará se encuentra un plan de divulgación que busca lograr un posicionamiento local mediante acciones dirigidas a la comunidad, para que conozca la existencia del PEMP, sus propuestas y las maneras como pueden hacer parte del proceso de implementación del mismo. Para ello se deben realizar presentaciones, talleres de socialización, programas en medios locales, videos y folletos que ilustren a la comunidad local y a la externa que visita la localidad. Con miras a lograr un posicionamiento mayor a escalas departamental, regional y nacional se deben elaborar materiales impresos y documentación digital que puedan llegar a una escala mayor del territorio.
La capacitación, formación y sensibilización sobre los distintos aspectos relacionados con el centro histórico, así como medidas para fortalecer e incentivar el liderazgo, empoderamiento, emprendimiento, y cultura ciudadana, entre otros, serán otra forma de divulgación y fortalecimiento del PEMP.
DISPOSICIONES FINALES.
ARTÍCULO 121. INCORPORACIÓN DEL PEMP AL PBOT DE JERICÓ. En cumplimiento de lo dispuesto en el numeral 1.3 del artículo 11 de la Ley 397 de 1997 (modificado por el artículo 7o de la Ley 1185 de 2008), el municipio de Jericó incorporará en el PBOT, el PEMP aprobado mediante la presente resolución.
ARTÍCULO 122. RÉGIMEN ESPECIAL DEL PATRIMONIO ARQUEOLÓGICO. De conformidad con lo dispuesto en el artículo 2.6.1.4. del Decreto número 1080 de 2015, el patrimonio arqueológico se rige con exclusividad por lo previsto en los artículos 63 y 72 de la Constitución Política, en lo pertinente por los artículos 12 y 14 de la Ley 163 de 1959, por el artículo 6o de la Ley 397 de 1997 (modificado por artículo 3o de la Ley 1185 de 2008), por lo previsto en el la Parte VI (“Patrimonio Arqueológico”) del Decreto número 1080 de 2015 y demás disposiciones relativas al patrimonio arqueológico o las que las modifiquen, adicionen o sustituyan.
ARTÍCULO 123. OBLIGATORIEDAD DEL PLAN ESPECIAL DE MANEJO Y PROTECCIÓN. Una vez entre en vigencia la presente resolución, las solicitudes de licencias urbanísticas para adelantar intervenciones en espacio público o en inmuebles ubicados en el área afectada y en la zona de influencia, se resolverán con sujeción a las normas urbanísticas y arquitectónicas que se adoptan en el presente PEMP, de conformidad con lo dispuesto en el artículo 2.2.6.1.1.913. del Decreto Reglamentario del Sector Vivienda, Ciudad y Territorio, número 1077 de 2015, y demás normas que lo complementen, adicionen, modifiquen o sustituyan.
ARTÍCULO 124. PREVALENCIA DEL PEMP. El presente instrumento, por ser especial, prevalece sobre cualquier otra disposición que le sea contraria, así como sobre las normas y disposiciones generales sobre el ordenamiento urbano de Jericó, sean vigentes o que procedan de posteriores reformas. El PEMP especifica las intervenciones en el AA y en la ZI del CH en todo lo concerniente al manejo, control y defensa del patrimonio cultural, arquitectónico, urbano, paisajístico y ambiental de Jericó, de acuerdo con lo establecido en el numeral 1.5 del artículo 11 de la Ley 397 de 1997 (modificado por el artículo 7o de la Ley 1185 de 2008) y de conformidad con lo preceptuado en los numerales 2 del artículo 10, y 4 del artículo 28 de la Ley 388 de 1997, o las normas que los modifiquen, adicionen o sustituyan, y que señalan que todas aquellas disposiciones sobre conservación, preservación y uso de las áreas e inmuebles de interés cultural constituyen normas de superior jerarquía en el momento de elaborar, adoptar, modificar o ajustar los Planes de Ordenamiento Territorial de municipios.
ARTÍCULO 125. DIFERENCIAS DE CRITERIO. Las diferencias de criterio que surjan en relación con la aplicación e interpretación de la reglamentación, serán dirimidas por el Ministerio de Cultura.
ARTÍCULO 126. IMPLEMENTACIÓN DEL PLAN ESPECIAL DE MANEJO Y PROTECCIÓN (PEMP). Expedida la presente resolución, el municipio de Jericó procederá a dar inicio a la implementación del PEMP. El Ministerio de Cultura verificará directamente su ejecución o lo hará por intermedio de las autoridades territoriales competentes para el manejo del patrimonio cultural. Para el efecto, programará visitas técnicas al Centro Histórico por lo menos una (1) vez al año, para lo cual asignará a profesionales idóneos. Como resultado de las mismas, se elaborarán los respectivos informes.
ARTÍCULO 127. SEGUIMIENTO ANUAL. La Alcaldía Municipal de Jericó velará por el cumplimiento de lo establecido en la presente resolución; presentará al Ministerio de cultura un informe anual indicando los resultados obtenidos en los diferentes componentes del PEMP y consignará en el mismo la relación completa de las licencias urbanísticas otorgadas en el centro histórico durante el mismo periodo.
ARTÍCULO 128. MODIFICACIONES AL PEMP. Las modificaciones al PEMP de que trata la presente resolución requerirán la elaboración previa de un estudio que las sustente en concordancia con la legislación nacional sobre patrimonio cultural. Dichas modificaciones requerirán concepto previo del Consejo Nacional de Patrimonio Cultural.
ARTÍCULO 129. INSCRIPCIÓN EN EL REGISTRO DE INSTRUMENTOS PÚBLICOS. En cumplimiento de lo dispuesto en el literal f), del artículo 38 de la Resolución número 983 de 2010, y para los efectos de que tratan el inciso primero del numeral 1.2. del artículo 11 de la Ley 397 de 1997 (modificado por el artículo 7o de la Ley 1185 de 2008), en concordancia con el numeral 1.2.-13 del artículo 2.3.1.3 y el numeral 10 y parágrafo del artículo 2.4.1.9. del Decreto número 1080 de 2015, la Dirección de Patrimonio informará a la Oficina de Registro de Instrumentos Públicos de Jericó, a efectos de que:
1. Incorpore en los respectivos Folios de Matrícula Inmobiliaria la declaratoria BICN del Centro Histórico de Jericó (Antioquia), y
2. Inscriba, en los correspondientes Folios de Matrícula Inmobiliaria de los inmuebles que conforman el área afectada y la zona de influencia definidas en la presente resolución, la anotación sobre la existencia del presente Plan Especial de Manejo y Protección (PEMP).
Para el cumplimiento de lo anterior, enviará copia del presente Acto Administrativo el cual contiene tanto la declaratoria, como la aprobación del PEMP.
ARTÍCULO 130. RESPONSABILIDAD DEL PROPIETARIO, POSEEDOR O TENEDOR. Los dueños, poseedores o tenedores de inmuebles ubicados en el Centro Histórico de Jericó (AA o ZI), deberán realizar permanentemente el adecuado mantenimiento con la finalidad de evitar el deterioro de los inmuebles, so pena de hacerse acreedores a las sanciones de ley.
ARTÍCULO 131. RÉGIMEN SANCIONATORIO. En cumplimiento de lo dispuesto en el numeral 7 del artículo 2.4.1.9. del Decreto número 1080 de 20115, las personas que vulneren el deber constitucional, legal y reglamentario de proteger el patrimonio cultural de la Nación, representado en este caso por el Centro Histórico de Jericó y su zona de influencia, incurrirán en las faltas de que trata el artículo 15 de la Ley 397 de 1997 (modificado por el artículo 10 de la Ley 1185 de 2008) y demás normas aplicables según la falta de que se trate.
Igualmente, quienes incurran en uno o más de los comportamientos contrarios a la protección y conservación del patrimonio cultural, previstos en el artículo 115 de la Ley 1801 de 2016 (Código Nacional de Policía y Convivencia), serán objeto de la aplicación de las medidas correctivas a que se refiere el parágrafo 3 del citado artículo, sin perjuicio de las establecidas en la normatividad específica, y demás disposiciones que las reglamenten, modifiquen, adicionen o sustituyan.
PARÁGRAFO. El Ministerio de Cultura será el único competente para adelantar el procedimiento sancionatorio.
ARTÍCULO 132. VIGENCIA. La presente resolución rige a partir de su publicación.
Publíquese, comuníquese y cúmplase.
Dada en Bogotá, D. C., a 9 de marzo de 2018.
La Ministra de Cultura,
Mariana Garcés Córdoba
NOTAS AL FINAL:
1. Numeral 1 del ordinal I del artículo 2.4.1.1.2., del Decreto Único Reglamentario del Sector Cultura (DUR-SC) número 1080 de 2015.
2. Artículo 2.4.1.1.5., ibídem.
3. Artículo 2.4.1.1.6., ibídem.
4. Incorporación de los Planes Especiales de Manejo y Protección a los planes de ordenamiento territorial.
5. “Por la cual se modifica la Ley 9 de 1989, y la Ley 3 de 1991 y se dictan otras disposiciones”.
6. “Por medio del cual se expide el Decreto Único Reglamentario del Sector Vivienda, Ciudad y Territorio”.
7. La conservación del patrimonio urbano, en cuanto contribuye a la revitalización de los centros históricos y, por consiguiente, a la recentralización del crecimiento urbano, trasciende los intereses estrictamente culturales y constituye un componente de estrategias integradas al desarrollo urbano. Eduardo Rojas, Centros Históricos de América Latina y el Caribe, 2011.
8. “Por el cual se dicta el Código Nacional de Recursos Naturales Renovables y de Protección al Medio Ambiente”.
9. “Por la cual se establece el régimen de los servicios públicos domiciliarios y se dictan otras disposiciones”.
10. “Por la cual se reglamenta la Publicidad Exterior Visual en el territorio nacional”.
11. “Por la cual se establecen los diseños de las señales turísticas peatonales para los Sectores Urbanos declarados Bien de Interés Cultural de Carácter Nacional”.
12. “Por la cual se establece el régimen de los servicios públicos domiciliarios y se dictan otras disposiciones”.
13. “Autorización de actuaciones urbanísticas en bienes de interés cultural”.

INSTITUTO DE CULTURA Y PATRIMONIO DE ANTIOQUIA
Juan Carlos Sánchez Restrepo
Director
Ángela Fernández
Subdirección Patrimonio y Fomento Artístico y Cultural
Luis Guillermo López Bonilla
Líder de Área de Patrimonio Interventoría del PEMP CH JERICÓ
Henderson Alberto López Orozco
Profesional Universitario
MUNICIPIO DE JERICÓ
David Alonzo Toro Cadavid
Alcalde Municipio Jericó
Felipe Correa Correal
Secretario Educación Cultura y Turismo
Jhoan Manuel Durango
Planeación y Obras Públicas
Carlos Mario Vanegas
Gerente Centro Histórico Jericó
UT GESTIÓN PATRIMONIAL
EQUIPO DE TRABAJO
| DIRECCIÓN GENERAL Giuliana Guerra Gómez Arquitecta. Coordinación componente Físico Espacial COMPONENTE FÍSICO ESPACIAL Diana Rojas Castillo Arquitecta. Patrimonio Arquitectónico María Victoria Castaño Sierra Arquitecta. Patrimonio Urbanístico Apoyo Componente Físico Espacial Elvia Mena Romaña Arquitecta Rodrigo González García Arquitecto. Iván L. Isaza Bolívar Arquitecto Auxiliares Christian Zapata Marín Estd. Arquitectura Stefania Restrepo Cadena Estd. Arquitectura Nicolás Hernández Arango Estd. Arquitectura Juan F. Franco Hernández Ing. Civil. Esp. Movilidad. Jaime Diego González Ruiz Ing. Forestal Alexander Agudelo Velásquez Esp. SIG. | COMPONENTE CULTURAL Myriam Luz Jaramillo Giraldo Historiadora. Coordinación componente Edgar Bolívar Rojas Antropólogo. Patrimonio Inmaterial Jorge Luis Acevedo Zapata Antropólogo. Patrimonio Arqueológico. Silvana Tobón Cardona Historiadora Auxiliar. COMPONENTE ADMINISTRATIVO - FINANCIERO Hugo Alberto Lugo Martínez Economista Mgtr. Urbano Regional Coordinación componente Lorena Brun Gonzalez Estadística Carlos Alberto Zarate Yepes Abogado Felipe Gómez Ibarra Gobierno y relaciones Internacionales COMPONENTE SOCIAL-LOGISTICO Martha Ramírez Lozano Esp. Proyectos Diana Margarita Arias Alzate Socióloga Catalina Rico Comunicadora |
CONTENIDO
ASPECTOS GENERALES.
1.1 VISIÓN.
1.2 OBJETIVOS.
1.3 DIRECTRICES URBANÍSTICAS.
2. CENTRO HISTÓRICO DE JERICÓ: "PA' TODA LA VIDA".
2.1 CONCESIÓN ECHEVERRI.
2.2 DEL BOSQUE SECULAR A LA ALDEA DE PIEDRAS.
2.3 POBLAMIENTO Y FUNDACIÓN DE LA ALDEA DE PIEDRAS.
2.3.1 De Aldea a Departamento. Desarrollo Institucional.
2.3.2 Crecimiento Socioeconómico y Demográfico 1851-1890.
2.3.3 Economía y Demografía 1900-1935. Desarrollo Socioeconómico.
2.4 CONFORMACIÓN URBANA 1850-1900.
2.4.1 Primer Trazado.
2.4.2 Inicios Desarrollo Urbano.
2.4.3 Crecimiento Urbano 1875-1900.
2.5 DESARROLLO URBANO 1900-1950.
2.6 DESARROLLO SOCIOECONÓMICO 1950 HASTA AHORA.
2.7 DESARROLLO Y TRANSFORMACIONES URBANAS. 1950 HASTA AHORA.
2.7.1 Usos Cotidianos de Algunos Espacios del Centro Histórico de Jericó.
2.7.2 La Plaza, Usos y Categorías Sociales.
2.8 CAMBIO DE USO DE ALGUNOS INMUEBLES A TRAVÉS DEL TIEMPO
3. DELIMITACIÓN DEL ÁREA AFECTADA O CENTRO HISTÓRICO Y DE SU ZONA DE INFLUENCIA.
3.1 ANTECEDENTES DE DELIMITACIÓN.
3.2 CRITERIOS DE SUSTENTACIÓN DESDE LA HISTÓRIA.
3.3 CRITERIOS DE SUSTENTACIÓN DESDE LA VALORACIÓN FÍSICO – ESPACIAL.
3.4 CENTRO HISTÓRICO (ÁREA AFECTADA).
3.5 ZONA DE INFLUENCIA CENTRO HISTÓRICO.
4. NIVELES DE CONSERVACIÓN DIRIGIDOS A LAS INTERVENCIONES PERMITIDAS.
4.1 ANTECEDENTES.
4.2 PROPUESTA NIVELES DE CONSERVACIÓN.
4.2.1 Justificación.
4.2.2 Propuesta de Niveles de Conservación, Dirigidos a Posibles Intervenciones
4.2.2.1 Nivel 1 Integral (N1) .
4.2.2.2 Nivel 2 del Tipo Arquitectónico (N2) .
4.2.2.3 Nivel 3 Contextual (N3)
- Sub grupo Tradicional o Nueva Compatible (N3-C).
- Subgrupo Tradicional o Nueva Incompatible (N3-I) .
- Subgrupo Lote (N3-L)
4.2.3 Consideraciones Generales Respecto a las Intervenciones en Bienes Inmuebles de Interés Cultural
4.2.3.1 Principios generales de intervención.
4.2.3.2 Intervenciones mínimas de bienes inmuebles de interés cultural.
4.2.3.3 Tipos de obras permisibles
5. CONDICIONES DE MANEJO FÍSICO ESPACIALES.
5.1 PROPUESTA AMBIENTAL..
5.1.1 Manejo de Zonas de Protección Ambiental y de los Sitios Naturales en la Zona del Centro Histórico.
5.1.2 Consideraciones de Integración de El Morro El Salvador y El Jardín Botánico al Centro Histórico.
5.1.3 Movimientos del Agua en el Suelo y Sistema de Drenajes para la Evacuación de las Mismas.
5.1.4 Sistema de Alcantarillados Públicos y Privados.
5.1.5 Manejo de las Áreas de Retiro de las Quebradas que Atraviesan en Área Urbana
5.1.6 Recomendación para la Arborización de la Zona Urbana.
5.2 PROPUESTA URBANA GENERAL.
5.2.1 Objetivos y Estrategias.
5.2.2 Intervención de los Equipamientos
5.2.2.1 Proyecto de recuperación e intervención de BIC donde se localizan equipamientos.
5.2.2.2 Proyectos de construcción de nuevos de Equipamientos.
5.2.3 Intervención del Espacio Público Efectivo.
5.2.3.1 Proyecto de Intervención del Espacio Público Efectivo.
5.2.4 Intervención de la Movilidad.
5.2.4.1 Proyecto de Intervención para la Movilidad.
5.2.5 Consolidado de la propuesta urbana.
5.3 PROPUESTA NORMATIVA URBANA.
5.3.1 Determinación de tratamientos urbanísticos.
5.3.2 Normas de Espacio Público.
5.3.2.1 Antejardines y retiros frontales.
5.3.2.2 Marquesinas y tapasoles.
5.3.2.3 Amoblamiento urbano.
5.3.2.4 Accesos para discapacitados.
5.3.2.5 Andenes.
5.3.2.6 Acabados de andenes.
5.3.2.7 Garajes.
5.3.2.8 Parqueaderos.
5.3.2.9 Tableros y avisos.
5.3.2.10 Señalización.
5.3.2.11 Monumentos y esculturas.
5.4 NORMAS ESPECÍFICAS Y GENERALES.
5.4.1 Normas Específicas para los Bienes Inmuebles de Interés Cultural –BIC-del Centro Histórico y la Zona de Influencia.
5.4.1.1. Nivel de conservación N1 Integral en área afectada y zona de influencia.
5.4.1.2 Nivel de Conservación N2 Arquitectónica y N3 Contextual en área afectada y zona de influencia
5.4.1.3 Nivel de conservación N3 sin valor contextual y obra nueva en el área afectada y zona de influencia.
5.4.1.4 Normas generales para áreas por desarrollar en zona de influencia.
5.4.1.5 Fichas normativas.
6. CONDICIONES DE MANEJO ADMINISTRATIVO.
6.1 FORTALECIMIENTO INSTITUCIONAL
6.3.1.2 Departamental.
7.1.1.2 Deducciones de renta gravable.
7.1.1.3 Subsidios en tasa de interés sobre créditos.
BIBLIOGRAFIA.
LISTA DE TABLAS
Tabla 1. Manzanas y predios que conforman el área definida dentro del perímetro del Centro Histórico de Jericó.
Tabla 2. Manzanas y predios que conforman el área definida dentro del perímetro de la zona de influencia del Centro Histórico de Jericó.
Tabla 3. Indicador número de manzanas y predios en centro histórico y zona de influencia.
Tabla 4. Coordenadas de los puntos perímetros centro histórico y zona de Influencia
Tabla 5. Propuesta niveles de conservación PEMP CH 2014- N1 INTEGRAL.
Tabla 6. Nivel de conservación integral, N1, manzanas y predios del centro histórico y la zona de influencia.
Tabla 7. Clasificación de los inmuebles N1 nivel de conservación integral.
Tabla 8. Propuesta niveles de conservación PEMP CH 2014- N2: ARQUITECTÓNICO.
Tabla 9. Nivel de conservación arquitectónico N2, manzanas y predios del Centro Histórico y la Zona de Influencia.
Tabla 10. Clasificación de los Inmuebles del N2 de conservación Arquitectónicos
Tabla 11. Propuesta niveles de conservación PEMP CH 2014- N3: CONTEXTUAL.
Tabla 12. Nivel de conservación contextual N3-C manzanas y predios del Centro Histórico y la Zona de Influencia.
Tabla 13. Inmuebles de nivel contextual incompatibles.
Tabla 14. Predios en centros de manzanas.
Tabla 15. Lotes en Centro Histórico y ZI N3-L.
Tabla 16. Predios de vías, servidumbres o uso público en ZI y CH.
Tabla 1. Árboles propuestos para áreas abiertas.
Tabla 2. Especies propuestas para áreas con restricción de alturas y cercanas a infraestructuras.
Tabla 3. Especies recomendadas para sitios cercanos a corredores viales.
Tabla 4. Prioridades de actuación sobre equipamientos en inmuebles de valor cultural.
Tabla 5. Prioridades de actuación en nuevos equipamientos.
Tabla 6. Prioridades de actuación en áreas de espacios públicos existentes.
Tabla 7. Prioridades de actuación en áreas libres a articular como espacio público
Tabla 8. Prioridades de actuación en espacios públicos de valor cultural.
Tabla 9. Zona de usos del suelo y clasificación de actividades.
LISTA DE FIGURAS
Figura 1. Traza de poblamiento 1855.
Figura 2. Traza de poblamiento 1900.
Figura 3. Traza de poblamiento 1935.
Figura 4. Valoración.
Figura 5. Propuesta integración al perímetro Centro Histórico.
Figura 6. Puntos perímetro del centro histórico.
Figura 7. Puntos del perímetro zona de influencia.
Figura 8. Perímetro con puntos del centro histórico y su zona de influencia.
Figura 9. Área del centro histórico y su zona de influencia.
Figura 10. Nivel Integral de Conservación –N1-.
Figura 11. Nivel arquitectónico de conservación –N2-.
Figura 12. Nivel Contextual de conservación N3.
Figura 13. Niveles de conservación.
Figura 14. Propuesta Ambiental.
Figura 15. Equipamientos.
Figura 16. Propuesta Urbana General.
Figura 18. Áreas de la Terminal de Transportes.
Figura 19. Imaginario de la Terminal de Transporte.
Figura 20. Predios de oportunidad para la Escuela de Artes y Oficios.
Figura 21. Espacio público en la propuesta urbana.
Figura 22. Imaginario reestructuración del acceso al atrio de la Catedral y al Museo de Arte Religioso.
Figura 23. Imaginarios de posibilidades de reestructuración de La Terraza.
Figura 24. Imaginario reestructuración de las áreas libres alrededor del Templo Inmaculado Corazón de María.
Figura 25. Imaginario reestructuración de las áreas libres alrededor de la Capilla de San Francisco.
Figura 26. Corredores con prioridad peatonal en la propuesta urbana
Figura 27. Circulación vehicular en la propuesta urbana.
Figura 28. Detalle de Señalización propuesta en vías
Figura 29. Imaginario señalización del Centro Histórico en la carrera 5.
Figura 30. Imaginario señalización del Centro Histórico en la calle 1.
Figura 31. Propuesta urbana general.
Figura 32. Tratamientos urbanísticos en el EOT de Jericó.
Figura 33. Propuesta de delimitación de tratamientos urbanísticos en el Centro Histórico y su Zona de Influencia.
Figura 34. Propuesta de zonificación de usos del suelo en el Centro Histórico y su Zona de Influencia.
Figura 36. Esquema ampliaciones y construcción bajo rasante
Figura 37. Esquema normativa paramentos –corte-.
Figura 38. Esquema normativa de paramentos –planta-.
Figura 39. Esquema normativo dimensión del alero en las cubiertas.
Figura 40. Esquema normativo sentido y pendiente de las cubiertas.
Figura 41. Esquema normativo medición de la altura de las edificaciones.
Figura 42. Esquema para medición de altura.
Figura 43. Norma para muros colindantes.
Figura 44. Esquema normativo composición formal de fachada.
Figura 45. El color en fachadas.
Figura 46. Esquema normativa de voladizo de balcón, pasamanos y ornamentación.
Figura 47. Esquema normativo de materiales inconvenientes para balcones.
Figura 48. Esquema balcón corrido.
Figura 49. Ficha modelo por manzana resultante.
50. Propuesta esquemática de articulación institucional en una intervención de un BIC
LISTA DE FOTOS
Foto 1. Texto del Decreto. 1851.
Foto 2. Billete emitido por el Banco de Jericó 1902.
Foto 3. Recopilación de la Leyes de los Reynos de las Indias., Madrid, Edición facsimilar,1943. Edic.
Foto 4. Antigua La Terraza.
Foto 5. Plaza Jericó1875. Fuente CHJ.
Foto 6. Ángel del Silencio. Cementerio.
Foto 7. Ornamentación y calaos en madera.
Foto 8. Detalle puerta Centro de Historia.
Foto 9. Panorámica de Jericó hacia el sur en 1905. Arriba a la izquierda se observa el camino a Andes. Fuente: Centro de Historia de Jericó.
Foto 10. Hospital San Rafael.
Foto 11. Costado Norte de la Terraza 1935 aprox. Fuente CHJ.
Foto 12. Parque de Los Fundadores y reconstrucción del templo del Corazón de María, año 1956. Fuente: Centro de historia de Jericó.
Foto 13. Antigua catedral. Fuente: Centro de Historia de Jericó.
Foto 14. Demolición catedral antigua. Fuente: Centro de Historia.
Foto 15. Plaza de Jericó en un día de feria desde el costado sur a principios del siglo XX. Fuente: Centro de Historia de Jericó.
Foto 16. Desde la Catedral al parque Fundadores.
Foto 17. Calle típica.
Foto 18. Intervenciones institucionales deteriorantes.
Foto 19. Carta agradecimiento sobre el color Sector la Comba.
Foto 20. Plaza parque principal.
Foto 21. Plaza Garaje edicto. Fuente xxx..
Foto 22. Morro El Salvador. PEMPCH 2014.
Foto 23. Panorámica desde el Morro El Salvador.
Foto 24. Casa del Peregrino en Buga.
Foto 25. Posada San Agustín en Ráquira.
Foto 26. Patio interno antiguo Convento La Visitación.
Foto 27. Predio de la cárcel desde la carrera 6.
Foto 28. Predio junto al retiro de la quebrada El Matadero.
Foto 29. Situación actual accesibilidad al atrio de la Catedral y al Museo de Arte Religioso.
Foto 30. Situación actual del Monumento a la Madre Laura.
Foto 31. Ejemplo de escultura en nicho integrado a edificación.
Foto 32. La Terraza como espacio público y mirador en la década de 1960.
Foto 33. Situación actual de La Terraza.
Foto 34. Situación actual del Templo Inmaculado Corazón de María.
Foto 35. Situación actual a un costado de la Capilla San Francisco.
Foto 36. Área verde retiro de quebrada El Matadero desde carrera 7 hacia Av. Circunvalar.
Foto 37. Retiro de la quebrada Valladares al occidente de la carrera 5.
Foto 38. Retiro de la quebrada Valladares al oriente de la carrera 5 y obras de mitigación del riesgo al lado del Hospital San Rafael.
Foto 39. Andén en piedra en el Centro Histórico de Jericó.
Agradecimientos a todos aquellos que nos abrieron su casa, su espacio cotidiano y nos permitieron compartir tesoros familiares y municipales, anécdotas, historias, leyendas, risas, el asombro por una catleya o por una ventana, un calado o un contraportón, un piso, el techo, un patio; a los que se preguntan y se asombran cuando esto nos parece valioso, bello, cuando merece tiempo y cuando se convierte en único o especial. A Monseñor Nabor, Lucidia, Nelson Restrepo y Avelino Quemba del Centro de Historia que nos abrieron las puertas, rompiendo horarios, y nos apoyaron en todo momento. Carlos Mario Vanegas, Felipe Correa, la Administración en general a la cabeza de Fabio Alonso Pérez, al Concejo Municipal, la Diócesis y el ente religioso en pleno, seminario, monasterio, parroquias Monseñor. Al cuentero, escultor fotógrafo, transportador y todos aquellos que nos indagaron y con ello, nos simplificaban las respuestas y nos confirman el grado de pertenencia que tienen con este lugar. Creadores especiales del Plan Especial de Manejo y Protección de su Centro Histórico.
1. ASPECTOS GENERALES
1.1 VISIÓN
Reconocer, valorar y recuperar el patrimonio arquitectónico, cultural y ambiental del Centro Histórico de Jericó, bajo el marco de Ley existente que permite elevar su categoría a nivel nacional, logrando así mantener en el tiempo uno de los motivos de orgullo más importante de los Jericoanos.
1.2 OBJETIVOS
En el marco del Decreto 763 de 2009, la propuesta de manejo contenido en el presente PEMP, busca como fin último responder a los siguientes objetivos.
1. Definir el marco de actuación para lograr la articulación del patrimonio natural, cultural y arquitectónico del Centro Histórico de Jericó con su contexto socio ambiental y los instrumentos de planificación territorial.
2. Establecer los lineamientos y determinantes para el manejo de los inmuebles desde el punto de visto físico, administrativo y financiero.
3. Definir las políticas y acciones para la prevención, corrección y mitigación requeridas para la recuperación, conservación y administración del centro histórico.
4. Establecer las acciones encaminadas a difundir las cualidades y valores del Centro Histórico buscando con ello asegurar la participación y apropiación de la comunidad en la tarea de conservación del bien.
1.3 DIRECTRICES URBANÍSTICAS
Exaltar la ubicación geográfica estratégica y el medio natural de emplazamiento, como principales atributos de soporte del patrimonio cultural del Centro Histórico de Jericó, posicionándolos o reconociéndolos como estructurantes por excelencia.
Reconocer y conservar los elementos del sistema estructurante del espacio público del Centro Histórico, que evidencian y han dado cuenta del proceso histórico de poblamiento que permanece en las diferentes trazas históricas reflejadas en las vías, el espacio público y el emplazamiento de edificaciones, constituyen un sistema, y como tal debe ser manejado regulado y controlado.
Garantizar el perfecto equilibrio entre los elementos del espacio público, las edificaciones o emplazamiento construido y el medio natural de soporte, mediante una regulación de la morfología predial.
Garantizar un sistema vial funcional considerando al peatón y la necesidad del vehículo en armonía con la funcionalidad y el respeto por la estructura patrimonial existente.
2. CENTRO HISTÓRICO DE JERICÓ: "PA' TODA LA VIDA"(1)
Hay que decirlo de nuevo. Jericó es un caso particular en el estrecho margen de la historiografía local en Antioquia. Sus gentes tienen un fuerte sentido de pertenencia con el territorio, cuenta con un Centro de Historia consolidado, de larga trayectoria que lo hace sui generis a nivel departamental; es, además, un pueblo que se piensa trascendente en el tiempo y a través del tiempo. Distintos ámbitos de la historia de Jericó han sido abordados por diversos autores, siempre a la sombra del Centro de Historia. Temas de historia política, de la educación, social, urbana y cultural de Jericó se han desarrollado, muchos, casi todos, como artículos para la revista JERICÓ, "órgano del Centro de Historia", otros como pequeñas monografías para alimentar los Juegos Florales previstos para 1940 y que no llegan a realizarse.
Se han abordado algunos temas sobre la evolución histórica del casco urbano, desde su fundación hasta finales del siglo XX, cronologías históricas pero, y esto también hay que decirlo de nuevo, preocupa la ausencia de las fuentes documentales -indispensables para la investigación histórica- que soporten las descripciones y las afirmaciones que se realizan, generando con ello descripciones, y a veces explicaciones, más de carácter hipotético que verídico. Probablemente en muchos de los casos se recurrió a la revisión de fuentes documentales archivísticas, primarias, en otros a fuentes orales, pero, en cualquiera de los casos, si no se cita la fuente el texto pertenece más al ámbito de la ficción que al de la historia. Muchos datos y pocas fuentes. Estos datos. referenciales, estas descripciones son las que aquí se siguen, pero sobre las que se aclara su amplio margen de incertidumbre. Se retoma el texto elaborado en la primera fase del PEMP, por ser de nuestra autoría.
2.1 CONCESIÓN ECHEVERRI
Ya se explicó en el capítulo sobre dinámicas poblacionales y conformación territorial, en el diagnóstico, como para el siglo XIX se sabía que ésta era una región despoblada, sin vías de comunicación, sin cultivos, desierta y malsana. "el desierto comenzaba en Caldas, al sur de Medellín", describía Teodomiro Llano en 1935. Terminando Caldas, continúa don Teodomiro en su descripción, bajando hasta las orillas del Cauca, en todo su territorio y subiendo hasta las cimas de la cordillera Occidental, se exhalan efluvios palúdicos en abundancia. Hay que aclarar que animales en estado salvaje, vegetación exuberante y "tribus salvajes" –otra vez-, componen la noción de desierto en Colombia en el siglo XIX y hasta muy entrado el siglo XX. A quien se atrevía a explorar esta geografía, "no escapaba de la fiebre del Cauca", una enfermedad, al parecer endémica, producto de la "absorción de miasmas o gases pútridos, producidos por materias vejetales i (sic) animales corrompidos bajo el influjo de la humedad i el calor, por cambios bruscos de temperatura", describe Manuel Uribe Ángel en 1856, un médico que era geógrafo, en su trabajo Fiebre del Cauca i sus variedades.
Se sabía también, que pasando la cordillera estaban los distritos mineros de la provincia del Cauca, Marmato, Supía, Riosucio y Cartago por lo que se debían trazar caminos para el comercio con estas zonas y con la zona de influencia del río Atrato. Se plantea entonces la construcción de caminos transversales que permitan la ampliación de la frontera económica de Antioquia y la integración del espacio regional, creando con ello nuevos ejes poblacionales y la ampliación de la frontera agraria. Una estrategia implementada para la apertura vial fue la concesión de grandes globos de tierras a cambio de la construcción de caminos y, en menor medida, la entrega de predios a pobladores comunes que demostraran uso continuado de la tierra.
El proceso colonizador de esta región como ya se dijo, se realiza bajo dos modalidades, colonización espontánea y colonización dirigida, la que comprendió los terrenos ubicados en lo que se conocía como "la montaña de Caramanta", en la margen izquierda del río Cauca, entre los ríos San Juan y Arquía, y se denominó la Concesión Echeverri, que cubre los actuales municipios de Caramanta, Jericó, Támesis y las poblaciones que de ellos se desprendieron, Tarso, Pueblorico y Valparaíso. La colonización espontánea, comprendió el territorio de los hoy municipios de Concordia, Andes, Bolívar y Jardín. Este proceso se lleva a cabo a través de la construcción de caminos hasta llegar a límites con la provincia del Cauca.
Gabriel Echeverri, a través de la donación de parcelas a los colonos que trabajaran en la construcción del camino, logró su conclusión y la colonización de la montaña de Caramanta para 1841. Santiago Santamaría, hijo de Juan Santamaría, por su parte, siguiendo la misma estrategia de Echeverri, descuajó y colonizó con gentes venidas de Fredonia, Rionegro, Marinilla, El Retiro, Amagá, Caldas, Envigado y Titiribí los terrenos aledaños al río Piedras, banda occidental del río Cauca.
En 1851 Gabriel Echeverri y Juan Santamaría deciden deslindar los terrenos de la concesión, correspondiéndole a Santiago, la montaña vertiente al río Piedras, el terreno ubicado entre la margen derecha del río Mulato y los predios ubicados en las riberas de la quebrada Cruces.
Una naturaleza feraz, como dirían en este siglo XIX que nos ocupa, un paisaje generoso, donde "el verde es de todos los colores" (Arturo, A., s.f.), es el que conforma este pedazo de tierra que se conoce como Concesión Echeverri, de donde parte esta historia.
2.2 DEL BOSQUE SECULAR A LA ALDEA DE PIEDRAS
Todo el territorio comprendido desde las más culminantes alturas de Caramanta, en donde nacen las vertientes del riachuelo Arquía, siguiendo la corriente de éste hasta su desemboque al Cauca, y las aguas del prepotente río hasta la desembocadura del San Juan, y el curso de éste último hasta las más elevadas cumbres de la cordillera Occidental de los Andes colombianos, para continuar en el año cuarenta de éste siglo cubierto por bosque secular, en donde la planta del hombre había penetrado rara vez.(Uribe Á., M., 1978, p 345-347).
Que las tierras al otro lado del Cauca eran tierras inexploradas lo confirma Manuel Uribe Ángel en esta narración, en la que describe, con la minucia del geógrafo, el paisaje que ve, que oye, que huele, y, el que le cuentan, con sus árboles, montañas, ríos, valles, flora, fauna, olores, colores…:
Los cedros corpulentos, los laureles incorruptibles, los guayacanes de flores doradas, los cachimbos de forraje rojo, los yarumos de copas plateadas, los caunces de flores de color de gualda, los encenillos de hojas encrespadas, el diomate, el granadillo, el cerezo, el arizá, el algarrobo, el tamarindo, el abinge, y multitud de enredaderas con festones más o menos vistosos, crecían por todas partes. La vainilla embalsamaba el aire con sus efluvios; las parásitas ostentaban primores de belleza por sus pronunciados colores, por la profusión mímica de sus formas y por mil encantos más que no pueden ser rivalizados por la flora de ningún continente.
[…]La fauna era numerosa y sorprendente. Bajo la sombra de árboles centenarios, cruzaban majestuosos el tigre americano, el osos negro, el león amarillo, el tapir corpulento, el cerdo montés, el perro mudo, la guagua, los conejos; y entre los trepadores, la ardilla inquieta, de veloces saltos y de versátiles movimientos; variados monos, saltimbancos aéreos que ya trepaban por las ramas o se colgaban de las largas colas para ondular como péndulos de reloj y volar de punto en punto; (…)las gritonas guacamayas, la melancólica soledad, el turpial canoro y millares de avecillas más, ornato de la selva, pululaban por doquiera, alternando el apacible zumbar de su vuelo con el susurro de los insectos, entre los cuales resaltaban por el estuche córneo y abigarrado de su cuerpo, coleópteros que brillaban como brillan los distintos colores del espectro solar y como esos matices irisados, se veían con frecuencia los reflejos del lagarto que se deslizaba como flecha por encima de la hojarasca; del camaleón tornasolado, de la iguana, notable por la majestad de sus garganta, por la belleza de su cresta y por la simetría de su sierra dorsal.(Uribe Á., M., 1978, p 345-347).
En este paisaje generoso se encuentra la "comarca", adjudicada a estos señores Echeverri, Mondragón y Santamaría, y en la que Santiago Santamaría, en 1850, fundaría la Aldea de Piedras, entre los límites mencionados.
2.3 POBLAMIENTO Y FUNDACIÓN DE LA ALDEA DE PIEDRAS
Don Santiago Santamaría, "un mancebo de arrogante presencia y de simpática fisonomía. Alto de cuerpo, moreno de rostro, de facciones regulares, de sonrisa franca, de anchas espaldas, de pecho levantado, de forzudos brazos y sólidas piernas"(Uribe Ángel, Manuel, 1978, p 345-347), al igual que Gabriel Echeverri, "buen mozo, despabilado y diligente en los negocios" (LLano, T. s.f.) finalizando los años cuarenta, entregaron parcelas a los colonos que trabajaran en la apertura de caminos y firmaron contratos en los que los colonos se comprometían a desmontar el bosque y a entregarlo sembrado con pastos. Juan Pablo Arango, yerno don Santiago, describe su modus operandi:
Llevaba familias pobres a quienes protegía para hacer sus casas en los solares que les donaba y en el primer año los protegía con dinero y con parte de los muchos frutos que cosechaban, de los cuales solo tomaba lo necesario para los gastos de su familia.
A cada uno de los colonos les señalaba una porción de terreno para que la trabajara en beneficio propio, auxiliándolo con herramientas, dejándolos aprovecharse exclusivamente de los frutos cosechados por diez o más años y cuando ya en la respectiva abertura había algún pasto (…) les daba ganado a partir utilidades.
Todo lo organizaba con buen orden, de manera que las tierras así abiertas o en su mayor parte le representará (sic) al empresario un buen capital. Cuando en una misma porción de tierra colocaba a dos o más familias, les hacía emprender sus trabajos en sentido opuesto para evitar que se estorbasen, y cuando los trabajadores le pedían que les fijara la línea divisoria para demarcar la extensión correspondiente a cada uno, les contestaba que el punto divisorio era aquel en que se encontraran los filos de las dos hachas.
Cuando algún poblador conseguía alguna suma de dinero, con el intento de obtener un lote de tierra en propiedad, el patrón se lo vendía en condiciones tan favorables para el colono, que le ponía como precio, según la moneda de entonces a real la cuadra y para el pago del resto le daba largos plazos, y así se aumentó el número de propietarios rurales. (Arango B. En: Vélez, 2002, p 66).
Estas familias pobres eran seleccionadas en Fredonia, donde don Santiago estableció una "estación de cuarentena", denominación dada por varios autores, donde, en un tiempo prudencial, estudiaba y escogía las familias constituidas, rechazaba a vagos y a "elementos solos" pues con ellos se corría el riesgo de conductas disolutas. De esta forma se fue poblando el territorio, -la zona rural-a través de contratos de aparcería y de compañías de ganado con algunos colonos, territorio que luego se llamaría Aldea de Piedras. Además de los colonos llegados de El Retiro, Rionegro, Marinilla, Fredonia, Envigado, Caldas y Amagá, dice Álvaro Restrepo Eusse en su Historia de Antioquia, en 1905, que Santamaría introdujo también como colonos, individuos que cumplían prisión por deudas.(Vélez R. 1993, p.170).
Por otro lado, una vez deslindada la Concesión Echeverri, Santiago Santamaría vendió grandes lotes de terreno a inversionistas de Medellín quienes se dedicaron al montaje de haciendas ganaderas.
2.3.1 De Aldea a Departamento. Desarrollo Institucional
Es evidente que, el proceso de poblamiento de la aldea comenzó desde de los años cuarenta, finales, y que para el momento del deslindamiento de la Concesión ya se había configurado un territorio en el que, a decir de Guillermo Ángel González, ya había colonia de labriegos en los hoy denominados parajes de Palocalbildo, Palenque y La Mama.
Además de colonizar el territorio, de abrir caminos, debe dársele un orden a esta población, controlarla, y para ello deben crearse las condiciones para la vida en sociedad a través de la fundación. Con ella se sientan las bases para ejercer control institucional directo sobre los habitantes, concentrar parte de ella espacialmente en las tierras destinadas para ello, y, espiritualmente, a través de la celebración de la misa.
La fundación comienza con la selección del lugar, que, de acuerdo con la norma debía ser "un paraje sano, ventilado y de buenas aguas", según lo indicaba en 1843 el gobernador de Antioquia, Juan María Gómez. (Citado por Vélez, 1993, p 159). Luego venía el trazado de la plaza, la designación de solares para edificios públicos, casa consistorial, templo, escuela, cárcel y cementerio. Esto es un poblado, institucionalmente hablando. Y esto hace don Santiago Santamaría, una vez consolidado el proceso de poblamiento de la región. Un día, -cuya fecha se desconoce-, reunidos algunos de los colonos con don Santiago, a la sombra de un "robusto roble se dirimieron las condiciones de la fundación del pueblo y se determinó su ubicación, la misma de hoy". (Uribe A., Manuel. 1978, p 18). Dice un autor que el primer núcleo de familias se estableció en el paraje de Roblecabildo, hoy Palocabildo, hasta el año de 1850, año en que trasladaron su vivienda hasta el lugar que hoy ocupa la ciudad. (Orozco V.1957, p. 1).
Pero esta fundación de hecho, no es suficiente sin la fundación institucional, es decir, sin el "acto administrativo" que la avale.
El 28 de septiembre de 1850 la Ordenanza No 15 de la Cámara provincial de Antioquia ordena la creación de una aldea denominada Piedras, en tierras del Distrito de Caramanta:
"Art. 1. – Se crea una aldea denominada "Piedras", en territorio del Distrito de Nueva Caramanta.
Art. 2. – Los límites de la nueva "Aldea del Piedras" serán los siguientes: Desde el punto en que el río Cartama desemboca al Cauca; Cauca abajo hasta la desembocadura del río San Juan, este arriba hasta el punto en que desagua en él la quebrada La Ciudad, quebrada arriba hasta su nacimiento, de aquí siguiendo la cuchilla que divide las aguas del río Piedras y el San Juan hasta los nacimientos del Cartama; Cartama abajo hasta el Cauca, primer lindero.". (Marín B., A. 1986, p. 108)
Las aldeas, aunque tenían un regidor que cumplía las funciones de alcalde, tenían poco reconocimiento político e institucional, pues eran secciones territoriales que no podían sostener la administración parroquial ni podían depender de algún distrito parroquial.

El nuevo poblado está habitado, según censo realizado en 1851, por 709 personas que vivían en 130 casas, que no se describen, pero se presumen pajizas y rurales en mayor número. No aclara el censo, firmado por el regidor Antonio María López, la ubicación rural o urbana de los censados pero sí los oficios, siendo la mayoría de los habitantes labradores. Entre junio y julio de ese año -1851- se construyó una capilla pajiza y se dio inicio a la construcción del camino para unir la Aldea de Piedras y la Aldea de La Soledad, nombrada posteriormente como Andes.
La aldea de Piedras, que toma su nombre del río Piedras, un afluente del Cauca que "en invierno es una furia desencadenada, (y) no corre sino que vuela, con vuelo temerario, por sobre rocas enormes (Tejada C., V. 1906, p. 9), se erige Distrito Parroquial en 1852, con el nombre de Felicina, en "memoria del virtuoso patriota Dr. José Félix de Restrepo en el cantón de Amagá" (Ordenanza 11, 1952, Cámara Provincial de Medellín. Citado por: Marín B., A., 1986. p. 108).
La categoría de Distrito que le confiere estatus institucional, es el resultado de la gestión de don Santiago quien solicita en octubre de 1850 permiso para levantar una capilla, argumentando que los vecinos de la aldea de Piedras carecían de los auxilios espirituales y que existían los recursos, paramentos y útiles necesarios para celebrar el culto católico. Concedido el permiso se construye, como ya se dijo, el templo, pajizo, en el costado noroccidental de la plaza.
La urgencia de construir templo y de nombrar sacerdote en propiedad, está no solo y no tanto en la necesidad de "pasto espiritual" para los fieles, es que sin ellos no se accede al reconocimiento político e institucional explícito que supere la categoría de aldea, y, se hace más difícil el control social. Sin dios y sin ley.
El distrito conservó el nombre de Felicina hasta los primeros días de 1853, año en que se designa oficialmente como Jericó, mediante la Ordenanza 15 firmada por Mariano Ospina, conservando los límites de Piedras, y que divide el territorio de la provincia en Distritos parroquiales y aldeas, nombrando y delimitando el Distrito de Jericó:
Art. 2. Los distritos serán los siguientes Medellín, Amagá, Amalfí, Andes, Barbosa. Belén, Caldas, Concordia, Copacabana Heliconia Envigado. Estrella, Fredonia, Hato Viejo, Itagüí, Giradota, Jericó, Nechi, Nueva Caramanta, Remedios, San Cristóbal, San Bartolomé, Santo Domingo y Zaragoza.
Art. 4. El territorio del distrito parroquial de Jericó será el comprendido entre estos límites: Desde la influencia de los ríos San Juan y Cauca, el cauce de éste hacia arriba hasta la boca del Cartama, de allí el cauce de este último hasta la cima de la cordillera que por aquella parte divide este providencia del Cauca, continuando por la cumbre de dicha cordillera hasta el punto que toca a los límites de la de los Andes siguiendo éstos la confluencia del Guadalajero y el San Juan, y desde allí, el curso de este río hasta su desembocadura en el Cauca.
Dada en Medellín, a 13 de diciembre de 1853. El presidente, Mariano Ospina, el Secretario, Néstor Castro. Gobernación de la Provincia. Medellín 15 de diciembre de 1853.
Ejecútese. Juan Antonio Gómez.(Quemba G., Avelino.1993, p. 200).
Dos años después, en 1855, el Gobierno Eclesiástico de Antioquia, dispone que:
Gobierno Ecco. Antioquia 1. de enero de 1855. Siendo de absoluta necesidad para la administración de los fieles cristianos habitantes del distrito de Jericó, tanto por el crecido número de almas que él tiene como por la distancia a que la mayor parte de ellas se hallan de las cabeceras de la Parroquia a que han pertenecido el que dichos fieles sean administrados por un Cura propio, i por cuanto no hay constancia de la creación que se hiciera de la Parroquia del distrito mencionado; oyendo las repetidas solicitudes que canónicamente administre los Sacramentos a los fieles de aquel distrito, tenemos a bien, en uso de nuestras facultades disponer lo siguiente: que el territorio comprendido entre los límites que por la autoridad civil se señalaron al distrito de Jericó, en la Provincia de Medellín, sea administrado como Parroquia Eclesiástica, separándole de los curatos a que hasta ahora ha pertenecido i debiendo tener su Cura Propio. Los límites señalados por la autoridad civil al distrito de Jericó (…).(Marín B.,1986 p. 113).
En noviembre de 1857 se ratifica la erección de la parroquia de Jericó, teniendo como patrona la Santísima Virgen, bajo la advocación de las Mercedes:
"Más como los fieles de la nominada parroquia de Jericó han tomado todo interés para realizar este proyecto, ya edificando la capilla necesaria para ejercer el Divino Culto, ya paramentándola con sus varias limosnas i, erogaciones i conociendo la disposición que les anima para obtener el mejor resultado en tan laudable como piadosa empresa, les otorgamos pero tan sólo por la primera vez el derecho de postulación, para que a virtud de él presenten i designen el sacerdote hábil (…).(Marín B.,1986 p. 115).
Con respecto a la erección como municipio, -la denominación no existe aún en el siglo XIX, se entiende como erección municipal la de Distrito municipal-, Manuel Uribe Ángel dice que en 1867, "por Ley expresa" (Uribe A., 1885, p.399), Jericó asciende a la categoría de Distrito. Pedro Justo Berrío, gobernador de Antioquia, firma el Decreto. Lo cierto es que a partir de 1870 Jericó adquiere relevancia institucional y protagonismo político en la región del suroeste.
El Visitador ordinario de la Diócesis de Antioquia, en su recorrido por las parroquias del suroeste en 1870, dice que "Jericó es uno de los pueblos más importantes de esta diócesis, por su población, que según el censo civil levantado en el año pasado es de 8.191 habitantes; pero más que todo por la feracidad de sus terrenos y por la moralidad de sus habitantes, que se distinguen por la pureza de sus costumbres y de su religiosidad."(Vélez R.,1993, p. 225). Con respecto a la moralidad de sus habitantes, parece ser el resultado de las acciones realizadas por Santiago Santamaría y ya descritas, con el fin de forjar un orden y establecer un modelo de sociedad, a través de la obediencia de la población; la base y esencia de ese dispositivo de dominación es la propiedad de la tierra, siguiendo a Vélez Rendón, sumado a la selección de los colonos, de las familias, al establecimiento de relaciones de compadrazgo y la realización de acciones benefactoras y protectoras, y, la selección de las diversiones permitidas:
"El señor Santamaría propendió y trabajó siempre por conservar la moralidad en su pueblo, no tolerando ni billares, ni galleras, ni establecimientos de esa naturaleza." (Vélez R.,1993, p. 225).
En 1908, la Ley primera del cuatro de agosto dictada por la Asamblea Nacional Constituyente divide el territorio nacional en 34 departamentos, entre ellos crea el Departamento de Jericó, compuesto por los distritos municipales que conformaban las provincias del suroeste y de Fredonia. La Ley 65 de 1909 decreta: "Desde el 1 de Abril de 1910 se restablecerá la división territorial en los Departamentos que existían el primero de enero de mil novecientos cinco" (Congreso de Colombia, 1909); Departamento: Antioquia, capital: Medellín. Breve.(1)
El Departamento de Jericó estuvo constituido por los siguientes municipios: Amagá, Andes, Ángelópolis, Armenia, Bolívar, Caramanta, Concordia, Fredonia, Heliconja, Jardín, Carmen de Atrato, Salgar, Támesis, Titiribí y Valparaíso. Tiene vida civil y jurídica hasta 1910, año en el cual se instaura la actual división política administrativa.
No obstante el declive institucional, Jericó mantiene su estatus a nivel regional con la creación de la Diócesis de Jericó el 29 enero de 1915, mediante la bula "Universi Dominici Gregis" del Papa Benedicto XV, lo que eleva el municipio a la categoría de cabecera diocesana, y la iglesia, a la categoría catedralicia, categoría que se mantiene y que le permite ostentar la supremacía regional a nivel eclesiástico, tan importante para la región como el político.
2.3.2 Crecimiento Socioeconómico y Demográfico 1851-1890
Con respecto la región allende el río Cauca, Jericó, en la década del sesenta del siglo XIX ha ido aumentando su población; el número de hacendados pasó de 5 en 1851 a 37 en 1860, hacendados que montaron haciendas ganaderas; había también un comercio activo, proporcionado por los arrieros, quienes transportaban productos de adentro hacia fuera, y viceversa. El censo de 1864 da cuenta de una población fundamentalmente campesina, dedicada a la agricultura y la ganadería, entre ellos 2.142 agricultores, 7 ganaderos, 24 comerciantes, 114 artesanos - que indican la posterior consolidación del Distrito como mercado mayorista el suroeste, y que se reflejará en su arquitectura-, 179 estudiantes, y, la evidencia del crecimiento vegetativo que ya se estaba dando, 2.031 niños.
En 1871, la Legislatura del Estado de Antioquia a probó la creación del Circuito Judicial de Jericó, que comienza a funcionar el 1 de enero de 1872; al mismo tiempo se designa a Jericó como sede del Circulo de Notaría y Registro, integrados ambos, el Circuito y el Círculo por Andes, Bolívar, Concordia, Nueva Caramanta, Támesis y Valparaíso.
Jericó sigue creciendo, reforzando su protagonismo político, económico y social (educación). En 1883 se cuentan en Jericó 11.393 habitantes, de entre ellos 3.160 eran agricultores, 35 ganaderos, 151 comerciantes, 39 arrieros, 423 artesanos, 3.366 niños, 309 estudiantes y 16 vagos.(2) Además de ganadería, para esta década se cultiva y vende maíz y fríjol, y compra telas, sal, herramientas y algunos productos suntuosos como lino, paños y pana.
El número de comerciantes se incrementó notablemente, pasando de 24 en 1864 a 151 en 1883, entrando a conformar, junto con los hacendados, la elite local, con poder económico y político. Este aumento poblacional y económico que se registra trae consecuencias sociales, desequilibrios y desigualdades, desestabilizando gradualmente, y por estos años, la "sociedad perfecta" que había soñado y planeado Santiago Santamaría, que había muerto en 1868: "El pueblo ha ganado en pobladores, pero ha perdido inmensamente en moralidad. Los vagos, los ebrios, los tahúres y los matasiete pululan en las calles, en la plaza y en los garitos", describía el Prefecto de la provincia en 1872. (Vélez R.1993., p. 57).
Favorecen el crecimiento poblacional y el comercio dos caminos que lo comunicaban con Medellín. El primero, construido por los colonos que Santiago Santamaría introdujo en sus predios, salía de Jericó, pasaba por La Leona, El Basal, Fredonia y de allí seguía a Medellín, siendo la principal vía hasta los años 20 del siglo XX. El segundo camino, construido por los tres concesionarios, Gabriel Echeverri, Juan Santamaría y Juan Uribe Mondragón una vez adjudicada la concesión, el camino de Caramanta, no pasaba directamente por Jericó, pero fue la principal vía para el comercio, unía a Santa Bárbara y Fredonia con el centro minero de Marmato, Supía, y la región de Cartago.
El crecimiento demográfico en estos años no es privativo de Jericó. Durante la segunda mitad del siglo XIX Antioquia presentó un índice de crecimiento demográfico que la situaba en el país como una de las provincias con mayor dinámica poblacional entre 1843 y 1912, lo que puede deberse, dice Jorge Orlando Melo, y de acuerdo con las estadísticas de finales de siglo, a matrimonios más tempranos y un mayor número de hijos vivos por madre que en el resto del país. Esta tasa de natalidad más alta, dice Melo, parece radicar en la mayor duración y estabilidad de la unidad familiar en Antioquia, las condiciones de higiene, salud y alimentación de las zonas de colonización antioqueña. "Es evidente que la disponibilidad de tierras relativamente fértiles favoreció la conformación temprana de familias y el matrimonio temprano, y que la estructura de la propiedad en las áreas de colonización favoreció la estabilidad de la unión conyugal." (Melo, J. O.1992, p.32-33).
Este crecimiento demográfico, como se ve, es particular en el suroeste, zona de colonización, y en donde se presentan las condiciones señaladas por Melo, a las que se le suma una cierta disponibilidad y pocos miramientos con respecto a las relaciones extramatrimoniales, dado el alto número de hijos naturales que se muestran en el Ensayo de estadística general del departamento de Antioquia en 1898. (Vélez R.1993., p.139).
La educación tiene un buen desarrollo para estos años; desde 1856 se establece la primera escuela oficial con el aporte de los padres de familia, pero las guerras de la segunda mitad del siglo interrumpen constantemente sus labores. A partir de 1860 se fundan varias escuelas de carácter privado; una de niños y otra de niñas; en 1867 se funda el colegio de las Mercedes en el cual dictaban cátedras de latín, francés, historia universal y trigonometría (Vélez R.1993., p.170) y en 1868 inicia labores la Escuela Oficial de Niñas.
El siglo XIX se cierra con el café, cultivo que coge fuerza en los años noventa, favoreciendo aún más el poblamiento. A nivel nacional, a partir de 1890 el café va desplazando en interés, en productividad y en extensión al oro. La importancia del café, está, más que en los territorios que ocupó y en los adelantos técnicos que implicó para su cultivo, recolección, secado y trillado, en los cambios que generó en muchos aspectos de la vida nacional, por la cantidad de dinero que representó para el país, el aumento en circulación monetaria, la inserción en la economía internacional y el número de personas que involucró.
Todo esto sin contar las nuevas necesidades que creó, como la del transporte del grano a los puertos marítimos para su exportación, el incremento de insumos necesarios para su cultivo, para el comercio; "en efecto, del valor total de la cosecha sólo una parte se radicaba en las localidades productoras cafeteras. Otra parte destinada al pago de fletes alimentaba el sector de los transportes: por caminos a lomo de mula, por ferrocarril o por río. Otra parte se quedaba en el sector de la trilla. Una parte iba a los productores de sacos, una parte adicional se convertía en ingresos del Estado captados a través de impuestos de importación y exportación que por entonces representaba más del 50% del erario público. Y finalmente una porción de la cosecha se quedaba en el sector comercial, en manos de los intermediarios, que desde la fonda hasta el exportador pasando por la agencia municipal formaban una espesa red tejida alrededor de la compra-venta del grano".(López H. 1982, p.196).
En Jericó el café estimuló la industria de bienes de capital y el desarrollo de varias industrias anexas como trilladoras y la industria del fique.
2.3.3 Economía y Demografía 1900-1935. Desarrollo Socioeconómico
En los primeros años del siglo XX no solo Jericó, el suroeste todo se consolida como una región demográficamente importante, logrando una expansión social y económica sustancial en la que colaboró la monetización de la economía campesina por el cultivo del café, paralelo con el desarrollo de la ganadería y la agricultura. Entre 1883 y 1905 la población pasó de 11.393 habitantes a 20.693, aumento que se da tanto por crecimiento vegetativo como por migración; para 1912, luego de la segregación de Pueblo Rico en 1911, la población decae hasta 15.215.
En Jericó, el café se convierte en el producto que lo ubica como un centro económico fuerte en el que participan tanto familias poderosas como pequeños y medianos agricultores. Se alternaba con la ganadería y la agricultura de pan coger; "las estadísticas de Jericó lo colocan en el primer o segundo lugar en producción cafetera, ganadera; primer puesto en ganado vacuno con 25.000 cabezas; primer puesto en ganado caballar, mayor que Medellín, primer puesto en ganado porcino."(Ángel G.G. 1991, p.20). El posicionamiento del café permite el surgimiento en unos casos, o el afianzamiento en otras, de actividades productivas como las manufacturas, comercio e industrias como textiles, gaseosas, cerveza, fábrica de maquinaria agrícola. En Jericó el café no solo sustenta la economía, crea una estética y unas formas de habitar como ya se verá.
Además de su cultivo, como ya se dijo da lugar a un desarrollo industrial y a la conformación de un grupo de comerciantes del grano, que combinan, para estos años, la venta de productos de primera necesidad con la compra de café y cueros, y que se convertirán en agentes de casas exportadoras y en especuladores de los precios del grano. Se conforman además varias trilladoras, como la de Benjamín Correa y Salvador Abad.
El fortalecimiento de la economía cafetera y ganadera da lugar a la creación y fundación en 1902 del Banco Jericó, conformado por un grupo de ganaderos y comerciantes de Jericó y Andes, con el fin de facilitar las transacciones comerciales en la región, y que funcionó en el marco de la plaza hasta 1937, año en que fue liquidado.

Un hecho importante ocurre comenzando el siglo, un símbolo del progreso y generador de progreso llega a Jericó en la noche del 15 de abril de 1906:
"La noche, aunque seca y tranquila era obscura, al golpe de las siete en el reloj de la iglesia, grandes masas de pueblo se dirigían al templo: al hermoso, artístico, amplio y lujosos templo. (….) Los pechos se levantaban, los corazones se comprimían, faltaba la respiración y temblaban los músculos. Algo grandioso e inesperado al mismo tiempo iba a suceder. […] De repente, la luz de ochenta focos funde la negra obscuridad: surgen del seno de la noche, las rectas columnas, los imponentes arcos, los vidrios multicolores, los capiteles de acanto (…) entre gritos y vivas (…)"
Hay que anotar que Jericó tuvo energía eléctrica poco después de Medellín y antes que las demás poblaciones del Departamento, lo que indica la jerarquía y protagonismo del Municipio.
La energía eléctrica permite, además de iluminar las calles y las casas, la creación de algunas industrias importantes como la textil y de industrias relacionadas con maquinaria agrícola como la de Jesús María Estrada, "que se encargó de distribuir despulpadoras, trilladoras y ruedas peltón, fabricadas por Antonio Quintero e hijos; la fábrica de bebidas La Suiza, de propiedad de Juan de Dios Franco; una de cerveza de Eduardo Nicholls y dos fábricas de jabón de Pablo Tobón y Pedro Benjumea. Después de 1930, se encuentra en Jericó un taller de tejidos de sacos de fique, tres talabarterías, varias curtimbres, zapaterías, carpinterías y herrerías; fábricas de helados, tres trapiches de panela, cinco trilladoras, dos imprentas, tres fábricas de gaseosa, cuatro talabarterías, tres fundiciones, dos funerarias y tres sastrerías." (Vélez R. 1993., p. 153).
La educación, puede verse por el número de colegios fundados en sus primeros cincuenta años, es un asunto importante en Jericó, la educación y la formación moral de sus habitantes -al comenzar el siglo XX ya ha tenido cinco planteles de educación secundaria para varones y cinco para señoritas-. La iglesia tiene una participación activa y directa en este sector y en la cultura, promotora de instrumentos y de manifestaciones culturales fundando colegios como el colegio San Luis, en 1904; La Presentación, en 1906; San Juan Bautista de la Salle, en 1907. Los Padres Claretianos llegan en 1913 y con su obra incentivan las letras al promover la creación de los periódicos "La Verdad" y "Rosa de Jericó" y la biblioteca del Corazón de María. Otras comunidades que llegan a Jericó son La Visitación, las Franciscanas de Santa Clara, los Padres Eudistas, Las Mercedarias, Las Capuchinas, las Hijas de la Sagrada Familia, Las Hijas de la Iglesia y las Misioneras de la Madre Laura.
Es así como en 1917 en Jericó "hay estos establecimientos de instrucción pública:
I. Colegio oficial de varones de San José (…)
II Colegio semioficial de varones, regentado por 7 Hermanos Cristianos, (…)
III. Colegio semioficial para señoritas, llamado de María (…)
IV. Colegio semioficial de Señoritas, de La Presentación, regido por 12 Hermanas de la Caridad. (…) Hay allí mismo Escuela infantil con 54 niños (…). Escuela gratuita para niñas pobres, con 60 matrículas Orfelinato, con 55 muchachos asilados. (…)
V. Colegio semioficial de señoritas, llamado de La Trinidad, (…)
VI. Escuela urbana de varones, dividida en 5 secciones(…) VII. Escuela urbana de niñas, (…)
VIII. Tres Escuelas rurales de varones, tres de niñas y ocho alternadas, (…)
IX. Seminario mayor y menor, establecido en casa alquilada pero se empieza la construcción de una propia. (…) y está a cargo de Padres eudístas.
X. Escuela nocturna, con 73 matrículas, subvencionada por el Departamento (…).
Por junto hay en Jericó 2,192 estudiantes. " (Gutiérrez R. C. 2014, p.51)
Paralelo a los grupos sociales existentes, en Jericó se formó entre finales del siglo XIX y primeras décadas del siglo XX, "un grupo de artesanos constructores, conformado por carpinteros, ebanistas, armadores, tapieros y albañiles, quienes fueron construyendo paulatinamente el pueblo con base en una mentalidad antioqueña ya arraigada que combina un espacio habitacional amplio, seguro, bonito y duradero con los mejores materiales de la región." (Colcultura. U.N. 1996).
En lo eclesiástico Jericó adquirió preeminencia con la creación en 1915 de la Diócesis de Jericó, lo cual está asociado con el importante papel que cumplieron varios sacerdotes en el desarrollo de la población y con la instalación de varias comunidades religiosas que contaban con miembros provenientes de Europa, las cuales terminaron por dar a la iglesia de Jericó una especialización en labores educativas que atraían estudiantes de diversas poblaciones.
Dentro de los primeros sacerdotes que impulsaron el desarrollo, cabe mencionar al padre Nicolás Cadavid, a quien se atribuye la promoción del cultivo del café en la región y quien fomentó la instalación de varias trilladoras, fue gestor del Banco de Jericó, organizó la feria mensual de ganado, financió la instalación de una planta de energía eléctrica y fue socio de una fábrica de tejidos, además de fundar el colegio San Luis y el orfanato. Su sucesor, el padre Obdulio Naranjo, impulsó la construcción del templo de San Francisco y de un Seminario.
El censo de 1928 da un número de 20.741 habitantes, colige el autor de una monografía sobre el municipio en el año 1935, que para esa fecha la población podría haber aumentado a 23.000, aproximadamente.
Para los años cincuenta el café continúa ocupando el primer lugar dentro de la economía municipal con 3'812.556 árboles. Otros cultivos son frijol, arracacha, caña de azúcar, maíz, papa, plátano, yuca y tabaco. Ganadería y pequeñas industrias: cerrajerías, talabarterías, zapaterías, sastrerías, fábricas de gaseosa, carpinterías, tenerías. El comercio se ha ampliado ostensiblemente, entre la oferta se encuentra almacenes de telas, cacharrerías, "tiendas mixtas", cantinas, almacenes de abarrotes, boticas y agencias compradoras de café.
2.4 CONFORMACIÓN URBANA 1850-1900
Retomemos algo ya planteado. Con respecto a la fundación de pueblos, villas y ciudades en América en tiempos de Conquista y de Colonia, el modelo urbano lo dicta la Corona española; es un modelo preconcebido al que se le agregan particularidades locales e históricas:

"No elijan sitios para poblar en lugares muy altos, por la molestia de los vientos y la dificultad del servicio y acarreto, ni en lugares muy baxos por que suelen ser enfermos: fúndense en los medianamente levantados, que gocen descubiertos los vientos del Norte y Mediodía: y si hubieran de tener sierra, o cuestas, sean por la parte de Levante y Poniente (…) haciendo observación a lo que más convenga á la salud, y accidentes, que se pueden ofrecer y en caso de edificar á la ribera de algún río, dispongan la población de forma que saliendo el sol dé primero en el pueblo, que en el agua (…). Procuren tener el agua cerca, y que se pueda conducir al pueblo y heredades, derivándola si fuera posible, para mejor aprovecharse de ella y los materiales necesarios para edificios, tierras de labor, cultura y pasto, con que excusaran el mucho trabajo y costos que se siguen de la distancia." (Recopilación de la Leyes de los Reynos de las Indias. Libro III, Título Siete. V. Consejo de la Hispanidad, Madrid, 1943. Citado por: PERFETTI, Verónica., 1994, p. 96).
Para efectos de la colonización en América, siguiendo a Verónica Perfetti, la estructura espacial se configuró como un elemento de control, presencia y referencia política. Lo urbano configuró el elemento ordenador del espacio territorial, y materializó la idea de un núcleo poblacional de origen europeo, que incluía forma y distribución de los pobladores en los lugares correspondientes por su jerarquía social, correspondiendo el marco de la plaza a los españoles y criollos:
La Plaza Mayor donde se ha de comenzar la población, (…) si fuere lugar mediterráneo, en medio de la población: su forma en cuadrado prolongada, que por lo menos tanga de largo una vez y media de su ancho (…): su grandeza proporcionada al número de vecinos, y teniendo consideración a que las poblaciones pueden ir en aumento, no sea menos, que de doscientos pies en ancho, y trescientos de largo, ni mayor de ochocientos pies de largo y quinientos treinta y dos de ancho, y quedará de mediana y buena proporción, si fuera de seiscientos pies de largo y cuatrocientos de ancho(…) (Recopilación de la Leyes de los Reynos de las Indias. Libro III, Título Siete. V. Consejo de la Hispanidad, Madrid, 1943. Citado por: PERFETTI, Verónica., 1994, p. 96).
Contrario a las disposiciones de la Corona y de acuerdo con las particularidades locales e históricas mencionadas, en muchos lugares de la Provincia de Antioquia y del Nuevo Reino de Granada la iglesia fue mojón para la plaza.
Los poblados fundados a partir de 1785 en la provincia de Antioquia, obedecen, o mejor, deben obedecer, pues no siempre se cumple-, las disposiciones que para tal efecto dictara Juan Antonio Mon y Velarde:
"Procederá a formar un plan del nuevo sitio señalado: primeramente el terreno para edificar; colocará la plaza mayor en el centro de este globo, y medirá ocho cuadras por cada costado de a cien varas. Señalará terreno capaz y espacioso donde pueda hacerse la iglesia, con suficiente extensión y comodidad aunque se aumente la población." (Juan Antonio Mon y Velarde. En: Robledo, E. 1945, p.100).
Estas Leyes y estas normas llegan para quedarse, la fundación y trazado de poblados para la segunda mitad del siglo XIX parten de estos preceptos españoles. Trazado en retícula ortogonal, calles rectas y manzanas cuadradas – o rectangulares-.
Y cuando hagan la planta del lugar, repártanlo por sus plazas, calles y solares á cordel y regla, comenzando desde la plaza mayor y sacando desde ella las calles a las puertas y caminos principales, y dexando tanto compás abierto, que aunque la población vaya en gran crecimiento, se pueda siempre proseguir y dilatar en la misma forma.(Recopilación de la Leyes de los Reynos de la Indias. 1774. p.91).
La plaza mayor donde se ha de ha de comenzar la población, (…) si fuere lugar Mediterráneo, en medio de la población: su forma en cuadro prolongada, que por lo menos tenga de largo una vez y media su ancho, por que será mas á propósito para las fiestas de a caballo, y otras: su grandeza prporcionada al número de vecinos, y teniendo consideración á que las poblaciones pueden ir en aumento, no sea menos, que de docientos pies en ancho, y trecientos de largo, ni mayor de ochocientos pies de largo y quinientos y treinta y dos de ancho. (…)De la plaza salgan quatro calles principales, una por medio de cada costado, además de estar dos por cada esquina, las quatro esquinas miren a los quatro vientos principales, (…) toda en contorno, y las quatro calles principales que de ella han de salir, tengan portales para comodidad de los tratantes que suelen concurrir, y las opcho calles que saldrán por las quatro esquinas, salgan libres, sin encontrarse en los portales, de forma que hagan la acera derecha con plaza y calle.(Recopilación de la Leyes de los Reynos de la Indias. 1774. p.56).
Mandan las reformas borbónicas, además del trazado y las ocho calles, dejar solar para plaza, iglesia, cárcel, Casa Consistorial y monasterio. Y así se hizo.
2.4.1 Primer Trazado
No existen documentos gráficos sobre La aldea de Piedras y no se conoce un plano de la época o traza que indique su conformación inicial. Existen referencias a fuentes documentales que no se mencionan, que no se explicitan, y que son la base este trabajo.
Una vez elegido el sitio para el trazado de la población, "a la sombra de un robusto roble" don Santiago donó los terrenos con los que se da inicio al trazado urbano de Jericó: plaza, casa parroquial, casa consistorial –de gobierno-, monasterio y las ocho calles convergentes a la plaza principal, con ancho de nueve metros, dice Guillermo Ángel. (Ángel. G. 1996, p.56).
Coinciden algunas de las fuentes en que fue el ingeniero Carlos Segismundo de Greiff, quien a hilo realizó el trazado de la plaza y de las ocho calles. No se tiene el dato de la fecha en que se realizó el trazado, lo que sí se sabe es que en 1851, entre junio y julio, se construyó un templo pajizo luego de hacer sido aprobada la solicitud de construcción de la primera capilla en la aldea de Piedras, realizada por Don Santiago al Obispo, Juan de la Cruz Gómez Plata. El 9 de octubre de 1850 "se concede el permiso para levantar y erigir una capilla en la fracción denominada Las piedras, para que ella sea edificada en el sitio que se escoja en la fracción expresada, y luego que esté concluida con los paramentos suficientes para la celebración de la misa y administración de los sacramentos, se acuda por el permiso necesario para este efecto.".(citado Suárez, Nabor. 2009, p 34-36). Un año después Don Santiago notifica que ya está construida y solicita sacerdote. El lugar escogido para levantar el templo fue el costado noroccidental de la plaza, y, el 11 de abril de 1852 se celebra la primera misa y los primeros bautizos. Esta capilla, de bareque, pajiza, se remplaza por otra de tapias y techo de teja, ubicada en el costado sur de la plaza, en el que permanecerá desde entonces; para 1860, ya la capilla está casi terminada: el altar mayor está totalmente terminado, sencillo pero elegante, las puertas y ventanas todas tiene sus buenas cerraduras y el piso no ha sido enladrillado aún pero está parejo y afirmado. (Restrepo R. N. Documento inédito. 2013, p 49).
Esta era una capilla, al parecer bastante básica, tapia, madera, teja de barro, que cumplía con paramentos necesarios para el oficio. En 1871, sin embargo, los jericoanos aspiran a un templo de mayores cualidades, dimensiones, paramentos y que albergara el número en crecimiento de pobladores, necesitados de pasto espiritual, y solicitan permiso para construir un nuevo templo. Concedido el permiso, en 1872 se demuele la capilla y, en 1873, 5 de mayo exactamente, el presbítero Juan Francisco Gil colocaba y bendecía la primera piedra de la que sería la catedral de Jericó desde 1883, año en que se termina la construcción, hasta 1946, año en terminan sus días. La primera iglesia pajiza se construyó en el sitio donde funciona el Club Colombia; demolida la iglesia, en el mismo lote se construyó la primera casa cural, más tarde sería el Club Colombia.

Al tiempo que se consolidando el tema religioso, la plaza, "fue el terreno que recibió primeramente el favor de la nivelación y el afirmado, conservando, naturalmente, la forzada pendiente existente de oriente a occidente" (Ángel G.G., 1991 p. 51-58) y con ella, los barrancos frente a la capilla, que tantos problemas causaban, hasta que en 1853, el Distrito, procedió con su peculio a "rebanarlos".
Al parecer Don Santiago Santamaría, de la misma forma que seleccionaba quiénes podían ser o no colonos del nuevo poblado, al momento del trazado urbano, para el cual vendió algunos lotes y donó otros, lo hizo con el mismo rasero. De acuerdo con la calidad del colono era la calidad y ubicación del lote. "Así nació la zonificación por clases sociales en Jericó. Guillermo Ángel González, dice al respecto:
"es verdad que el fundador se reservó lo mejor para transacciones que no se hicieron esperar cuando fue apareciendo el fenómeno migratorio; quienes llegaban con dinero se hicieron con buenos lotes, y fueron apareciendo buenas edificaciones. Eran familias de clara estirpe y de notas mentales y éticas sobresalientes. Pronto la plaza estaba poblada de gentes de tal rango"(3).
Dice Ángel González que dentro de esa zona se construyeron las primeras viviendas y los primeros locales comerciales. "Se sabe que en la plaza se construyeron varias casas pajizas que pronto fueron sustituidas por otras, no ya de bahareque sino de tapias y tejas de roble, las dos más antiguas estuvieron donde hoy se levanta el edificio del Café, contigua a la casa del Doctor Gómez Zuluaga, y la otra, en el extremo sur de la Hostería del Piedras, cuya área daba espacio a tres edificaciones. Antes de terminar el siglo XIX, afirma Guillermo Ángel, ya la plaza estaba totalmente edificada, con perfección en los hilos de las calles y con una elegancia poco usual en las poblaciones colombianas. (Ángel G.G., 1992 p. 56).
Las calles donadas por Santiago Santamaría eran de dos cuadras cada una y correspondían a las actuales carreras 4 y 5, calles 6, 7, 8y 9. "Hay constancias de que fue esta –la carrera 5- la primera vía que se abrió, desmalezando y aligerando el terreno de los fuertes barrancos, a la vez que fue en esas dos cuadras –carrera 5, calles 7 y 8- donde se pusieron cercos para determinar el hilo de la vía". Estas dos cuadras, además de haberse establecido allí, "gente notable", -para 1866 ya se han levantado casas de tapias en buen número-, es la salida, para la aldea La Soledad –Andes- lo que la constituye en la calle más importante del Distrito, la primera en empedrarse. Un decreto del 5 de agosto de ese año "ordena empedrar la "Calle principal de esta población que es aquella por donde pasa el camino de Andes a Medellín". Ordena el decreto además, "blanquearan las paredes y asearan el exterior de ellas. Deben pedir "nivel" al Corregidor.". (Ángel G.G., 1992 p. 56).
En 1855 y dentro de las cuadras donadas por el fundador, sobre la carrera 5, en el cruce con la calle 9, hasta donde llegaba el trazado, se levantaron las primeras tapias de la Casa Consistorial, donde debía funcionar, en el primer piso la cárcel y en el segundo y la escuela elemental de varones. Años más tarde el edificio fue destinado a escuela, y la Casa Consistorial se construyó en la intersección de la calle 8 con carrera 5 donde por muchos años funcionaron dependencias judiciales y otras como la Inspección de Instrucción pública. En el mismo sitio se construyó el actual Palacio Municipal en 1942 luego de que un incendio destruyera la Casa Consistorial en 1939.

2.4.2 Inicios Desarrollo Urbano
Para la década de los setenta del siglo XIX se dictan normas "urbanísticas" y sobre ornato, que van dando orden al poblado, se comienza el empedrado de la plaza, de algunas calles:
–Se ordena construir empedrados que circuyan la Plaza, de una vara de ancho y dos fajas iguales diagonales; limpiar los caños de las calles; cercar los solares ubicados hasta a tres cuadras de la Plaza, empañetando y blanqueando tales cercos de tapia; que cada dueño empedré la parte de la calle que corresponda a su propiedad; que se construya un puente de madera muy sólido y empedrado por encima, en la calle de las Quebraditas; que cada seis meses se arreglen y blanqueen los frentes de las casas; que se corten los árboles que no sean de jardín o curiosos. (AHJ. Legajo 2, 1874, folio 3)
Ese mismo año el Alcalde ordena la construcción de una pila en la plaza – y la compra de tres pajas de agua para el efecto (AHJ. Legajo 2, 1874, folio 1) para surtir la pila de agua se contrata la conduccion del agua de la Quebrada la Troje.
Además del empedrado del frente de las casas, el resto eran mangas, según Ángel González. "Había agua en la plaza, además de la que llegaba a la esquina del actual teatro Santamaría, primera pila de abastecimiento de agua potable para el público que se estableció." (Gallego, P.1995 p.9). Había en la plaza, en los años setenta y a pesar de don Santiago Santamaría –muerto en 1868-, dos mesas de billar, tres almacenes de mercancía, dos tiendas para expendio de bebidas espirituosas, y velas de cebo y farolillos de tela que iluminaban las calles. Había algunas casas de dos pisos y un "comisario armado de larga peinilla para hacer la ronda nocturna". (Gallego, P.1995 p.9). Para 1871 se dicta un Decreto por el cual "todos los dueños de las casas situadas en la calle real por donde cruza el camino de Andes a Medellín, deberán construir en tapia y bahareque con tres metros de altura y empedrar el piso exterior de sus casas". (Acuerdos Municipio de Jericó. Archivo Municipal. Agosto 4, 1871). El servicio telegráfico se establece en 1876, entre Medellín y Jericó y en 1888 entre Jericó y Támesis. Para estos años, los caminos de salida al Cauca y a Andes definían un eje que estructuraría el crecimiento del Distrito, sobre el cual se reconocía la calle del comercio.
Las casas construidas en bahareque y techos de paja se habían ido cambiando por tapias y techos de teja de roble, hasta 1873, año en que El padre Francisco Gil estableció, a propósito de la "fábrica" del templo, un tejar, "y poco a poco los elementos no utilizados para la edificación del templo, se fueron vendiendo o permutando con los vecinos para entejar casas y adobes para algunos trabajos de obras públicas". Los primeros adobes utilizados por el Distrito fueron con los que se construyó la pila en la plaza, que los canjeó el padre Gil en 1886, por una paja de agua para proveer un chorro a la entrada de la iglesia, para que los feligreses se lavaran los pies antes de entrar al templo y no lo embarraran. Higiene.
En 1875 llega a Jericó el padre Cadavid, de quien ya se habló, y construyó su casa en el sitio donde se construyó el primer templo.

La infraestructura de servicios de Jericó también progresó si bien se encontró con grandes dificultades de terrenos y manejo de aguas. Al interior de los solares se construyeron letrinas con pozos sépticos. Las aguas lluvias y algunas aguas negras discurrían por caños bordeando las calles, los cuales inicialmente eran cavados directamente sobre el terreno, luego fueron forrados de piedra y a partir de 1874 con la construcción del primer tejar siguieron siendo forrados en ladrillo. Algunos de esos caños se llevaban hasta las quebradas y otros se infiltraban en el terreno aumentando la inestabilidad de los suelos. En 1877 se ordena tapar las acequias que salen de las casas y para 1890 se ordena cubrir los caños que discurren en medio de las calles del poblado. En la última década del siglo también se ordena la construcción y reparación de andenes en piedra pulida o ladrillo. La parroquia estableció el primer servicio público de agua a la entrada de la iglesia, en la pila de la plaza el servicio de agua fue instalado en 1891, así como otras pilas en varias esquinas y se llevó el agua a algunas edificaciones públicas mediante canoas construidas en comino según contrato de 1890.
En épocas de invierno las numerosas quebradas del casco urbano ocasionaban inundaciones y estragos. Hay referencias a que en 1881 y 1885 se llevaban los presos del Estado para aprovechar sus trabajos forzados en obras de defensa tales como canalizaciones y rectificaciones de quebradas.
Con faroles de petróleo se presta el servicio de alumbrado público -del cual están encargados los Comisarios de Policía-, y el acueducto con canoas de madera.
2.4.3 Crecimiento Urbano 1875-1900
[…] los campos ocupados hoy por Jericó y sus alrededores, estaban cubiertos por algunas habitaciones y por un reducido caserío en 1851, cuando se edificó una capilla pajiza que se administraba eclesiásticamente por el párroco de Nueva Caramanta.
[…] el plano sobre que reposa la población es bastante desigual, pero la briosa actividad de los pobladores, ha logrado establecer en él las bases de una bonita ciudad de regulares y aun elegantes edificios. El mayor inconveniente con que se ha tropezado para la fundación de Jericó, ha consistido en lo deleznable del terreno (…) (Uribe A. M.1885, p,399-400).
La primera traza urbana de Jericó, dada por la plaza y las ocho calles convergentes, partiendo de la calle 6 a la 9, carreras 4 y 5, se encuentra construida para 1875; en el crece de la calle 9 con carrera cuarta se construyó una casa que se destina para Escuela de Señoritas y que, casi cien años después, pasa a ser la sede del Centro de Historia. Sobre la carrera 4 está también la "casa del cura, la del primer médico radicado en Jericó, Zoilo Mesa, entre otros ciudadanos jericoanos. Igual ocurre con la cra 4 hasta Rincón Santo. La cra 5 hacia el norte, conocida como la salida hacia el Cauca o, la entrada al pueblo, se fueron ubicando las cacharrerías, estanquillos, fritangas, etc., llamada la calle del Comercio, la Calle del Chorizo, Calle Real en el periodo de gobierno liberal, 1877 a 1886; para 1898 ya se había realizado el trazado de toda la carrera quinta hasta la iniciación del camino del Estado, hasta el cementerio, que existía desde 1860. Calle 1.

La calle conocida como 100 escalas fue abierta a fines del siglo para acceder a las prolongaciones de las calles 4 y 5 hacia la parte alta del casco urbano, cerca de lo que sería la carrera 2, una de las vías periféricas del casco urbano para la época, zona conocida como la manga del convento y donde la gente recogía leña. Al comenzar la venta de predios se dejó la cuadra para el futuro monasterio, luego Normal Nacional, y se advertía a quienes compraban de la exigencia de dejar calles de 7 varas de ancho. Las otras vías limítrofes eran la carrera 7 conocida como Camellón, al oriente, que concentró familias de escasos recursos, y la calle 3 donde posteriormente se localizó el templo de San Francisco ( Ángel G. 1996 -1997). A principios de siglo también se inauguró el Puente Boyacá sobre la quebrada Valladares a la altura de la carrera 4.
Finalizando el siglo el trazado llega hasta la carrera 2 entre las calles 4 y 9, la carrera 7 ha comenzado a poblarse por los lados de la calle 7, pero en términos generales permanece en despoblado la parte baja.
Al terminar el siglo, alrededor de la pila de la plaza, la que se adornó con una fuente "de características altamente artísticas, en bronce". (Ángel G. 1996 -1997) se fue definiendo un parque, encerrado con una verja de hierro forjado, dos puertas en los costados norte y sur, con "profusión de flores, bien seleccionadas y cultivadas". (Ángel G. 1996 -1997).
El modelo de vivienda inicial es bastante sencillo, techo pajizo primero, o cubierta de tejas de roble después, muros de tapia o cancel, cocina y solar.

2.5 DESARROLLO URBANO 1900-1950
Las diferentes fases y frentes de colonización dieron lugar a diferentes formas de asentamientos urbanos y a diferentes estéticas y arquitecturas, cuya tipología se da en función del clima, de la topografía, de los materiales a disposición, de las necesidades sociales y que llevaron a plantear diversas soluciones constructivas y estéticas.
En Jericó, estas estéticas son el resultado de la memoria cultural de los colonos, de sus lugares de origen, reinterpretada y enriquecida por esta topografía, por este clima, por estos "bosques seculares", y por esa suma de memorias llegadas de El Retiro, de Rionegro, de Fredonia, de Medellín. Sincretismo.
Al entrar el nuevo siglo ya la plaza estaba edificada en su marco y sólo se aprovechó el progreso económico de los propietarios, para dar definitivo remate a las construcciones o mejorar, ya en busca de superación estética lo hasta entonces construido; bastante trabajo habían tenido los maestros talladores para que la ciudad tuviera un puesto de honor, quizá segundo en Antioquia, en lo tocante a puertas, ventanas, balcones, comedores y contraportones. (Ángel G. 1992 p. 52).
En el siglo XX, no solo se amplía el perímetro urbano, también se consolida una infraestructura urbana, y, dado que la mayor expansión se da hacia el oriente y el occidente, zonas de pendiente, se afianza el café como actividad económica y Jericó se apuntala como centro de poder político y económico, se dan las respuestas tipológicas y estructurales que lo caracterizan, el poder adquisitivo necesario para pagar la maestría estética y la mentalidad necesaria para llevarlas a cabo. En estos primeros treinta, treinta y cinco años del siglo XX Jericó se enseñorea. Su estructura urbana y sus detalles estilísticos se definen en este período.

"Lo importante a señalar es como "la vocación del paisaje", gracias a las notables irregularidades del terreno, lleva a una infinidad de soluciones estructurales y espaciales donde los corredores y las habitaciones en su afán de abrirse al horizonte crean un paisaje urbano lleno de motivos visuales y de colorido, donde la obra de ebanistería, claro reflejo de una bonanza económica que llega en muchos casos a verdaderos alardes de maestría."(Universidad Nacional de Colombia sede Medellín. 1979, p.184).

Efectivamente, el fortalecimiento de la economía cafetera, ganadera junto con el auge del comercio, estimulan la creación de industrias y dinamizan la economía del Distrito. Como resultado un grupo de ganaderos y comerciantes junto con el padre Ramón Nicolás Cadavid fundan en 1902 el Banco de Jericó para facilitar las transacciones comerciales allí y en la región del suroeste, promover la creación de industrias como las fábricas de gaseosas, de cerveza, chocolate y la fábrica de tejidos Jericó, también de estos primeros años del siglo XX y, consolidar las actividades agrícolas y ganaderas.
El banco funcionó primero, en la casa que fuera de la Gobernación, carrera 4 con calle 6, luego en otra, también en el marco de la plaza (dicen las fuentes que la segunda casa que sirvió de sede al banco se incendió, no dan la fecha, y en el lugar se construyó luego el edificio La Providencia).
Hay dinero circulando en Jericó. En 1908 Jericó pasa de Distrito a capital de Departamento, y, aunque esta categoría institucional solo la ostenta por un año largo, acondiciona una mentalidad de grandeza y dignidad que se va a manifestar, entre otras instancias, en su arquitectura y en su mobiliario, que ya venía ostentando, como lo describe con precisión Guillermo Ángel:
Parece un caso de excepción Jericó, que, terminada la guerra de los mil días no diera muestras de postración, y antes bien, mientras en otras latitudes se combatía, aún con soldados jericoanos y suroestanos, aquí se prospectaban empresas porque los negocios no se habían descuidado, y antes bien, habían llegado muchos a su máxima prosperidad: ello dio pávulo al lujo: se encortinaron los salones de las casas, se forraron en papel de colgadura extranjero, llegaron tapices, lámparas finas, vajillas de alta calidad, trajes suntuosos; y de cantera, las reuniones sociales, aunque no con mucho aspaviento, si eran de señalada distinción.( Ángel G., G. 1992, p. 55).
Resultado de este corto periodo es el Parque Reyes, construido en 1909 en memoria de del general Reyes, que fue quien sancionó la ley que creaba el Departamento de Jericó. El general Reyes compartirá luego honores con Simón Bolívar al remodelarse el parque en 1930 –cambio de la fuente por una alberca circular de azulejos- y recibir el nombre Plaza de Bolívar, en conmemoración al centenario de su muerte. El puente de San Francisco, en la cra 5, la reforma y ornato de la casa Consistorial, la carretera a Pueblo Rico son otras obras que se llevan a cabo este brevísimo período de capital de Departamento.

Para la segunda década, la estructura urbana se consolida alrededor de la plaza y se amplían los bordes:
"Está la población a 1.970 metros de altura sobre el nivel del mar, y su temperatura es de 18. La plaza, bastante plana, es de 80 metros en cuadro, está adornada en el centro con un jardincito rodeado de buena verja de hierro, con pila elegante y con bancas; tiene cómodas aceras, y en ella hay 14 casas de dos pisos. Las calles, más bien angostas que anchas, son rectas, bien empedradas y con regulares andenes; unas de ellas son llanas y otras muy pendientes. En la de la entrada se hizo en tiempo en que Jericó fue cabecera de Departamento, un altísimo puente de cal y canto sobre ancha y profunda cañada y se colocó una verja de hierro de más de 60 metros a lado y lado. La población esté dividida en 24 manzanas, edificadas compactamente, y la calle de entrada es bastante larga y poblada." (Gutierrez, R.C. 1977, p.136).
Además de plaza bien constituida y de templo, "que no tiene uno que le iguale en el Departamento"(Gutierrez, R.C. 1977, p.136), tiene Jericó:
"Casa Consistorial de dos pisos, en la cual hay algunas oficinas municipales y la Escuela Urbana de varones. El patio de este edificio tiene una especie de escenario, y como no hay coliseo en la población, es allí donde se dan las representaciones públicas. La Alcaldía y otras de las oficinas municipales están en una buena casa de dos pisos (…); Casa de dos pisos en que está la Escuela urbana de niñas (…) Un buen matadero de ganado mayor, y otro malo de menor. (…) Un colegio oficial de varones de San José, un Colegio semioficial de varones, regentado por 7 Hermanos Cristianos; un Colegio semioficial para señoritas, llamado de María, un Colegio semioficial de señoritas, de La Presentación, un colegio semioficial de señoritas, llamado de La Trinidad. Escuela urbana de varones; Escuela urbana; Escuela nocturna; Orfanato. La población es escasa en aguas (se han empezado trabajos para traer agua del río Piedras (…); el hospital, a cargo de las Hermanas de la Caridad (…); la notaría y la oficina de registro que empezaron a funcionar en 1872 (…); la oficina de correos funciona como anexa a la del Telégrafo (…) un hotel no del todo malo.
Jericó, por la ilustración de su vecindario, por el movimiento comercial, por su situación central, es la más importante población del suroeste y puede considerarse la metrópoli de las demás de la región." (Gutierrez, R.C. 1977, p.136).
El morro, hasta entonces un lugar de esparcimiento, al que se iba para divisar el pueblo, contar las casas y buscar la propia, comienza a hacer parte de esta historia. En 1928, el 28 de octubre se anuncia la "Inauguración de una estatua colosal de Cristo Rey en el morro El Salvador."(Suarez. N. 1978, p.33) En esta fecha se erigió el monumento que se convertiría, él y su emplazamiento, en un referente cultural tan fuerte para los jericoanos como la Catedral. "Dicen las crónicas de este acontecimiento que, terminada la ceremonia, el pueblo aclamó con vivas a Cristo Rey, al Papa, a Monseñor Francisco Cristóbal Toro, y a la religión católica." (Suarez. N. 1978, p.33). Durante las primeras décadas se continuó con el mejoramiento de los lugares simbólicos y representativos de Jericó y se construyeron otros nuevos que, además de fortalecer el espíritu religioso y la devoción del pueblo jericoano, amplían el perímetro urbano en los cuatro costados. Los padres Hijos del Inmaculado Corazón de María llegaron en 1913 a establecer su "casa misión"; en la carrera 5, hacia el sur, pasando el puente de la Calle de Andes, o Puente Bolívar (inaugurado en 1909), construyeron el Santuario del Corazón de María y una pequeña capilla, con la participación de los propios habitantes, cerca de 1918, conjunto que fue completado con el Parque de Los Fundadores, construido por la Sociedad de Mejoras Públicas en 1922. En la década de 1940 comenzó la reconstrucción del templo, en un eclecticismo historicista que se expresa en los elementos neogóticos que hoy lo caracterizan. En este mismo sector, en 1906, se había construido el Hospital San Rafael, que funcionaba desde 1874 en una casa situada en la carrera 7 con calle 8. Esta edificación que fuera un bello ejemplo de los nuevos parámetros de un estilo republicano adaptado a las construcciones tradionales, fue demolido en 1983 por "viejo", y se construyó la edificación que hoy existe.

De estos años es también el Seminario Diocesano en la calle 1 cuyas obras comienzan en 1915, el colegio de La Presentación y el templo de la Visitación, construido en 1918
Otro importante templo, el de San Francisco, conocido también como La Pollita, fue levantado hacia la década de 1920 para la Orden Tercera de Los Franciscanos. En frente de este templo se construyó el Convento de las Clarisas, que fue posteriormente demolido por problemas estructurales ocasionados por las aguas subterráneas y construido de nuevo, a mediados de siglo en la calle 1, salida hacia el Cementerio, calle del Estado, en el lugar donde, en la última década del siglo XIX "fue levantado el edificio, muy cómodo y amplio para la primera trilladora de café llegada al suroeste". (Angel G. 2001, p.89).

En términos pragmáticos, para 1935, de acuerdo con Catastro Municipal, Jericó tiene 741 "fincas" en la zona urbana, discriminadas así:
Propiedad particular urbana 713 fincas
Propiedad departamental urbana 3 fincas
Propiedad municipal urbana 7 fincas
Propiedad Instrucción Pública urbana 5 fincas
Propiedad Eclesiástica urbana 11 fincas
Propiedad beneficencia urbana 2 fincas (Departamento Antioquia. Tamesis.1935).
Algunos de los edificios que se resaltan: "En 1930 se terminó el elegante y lujoso Palacio Episcopal (…); la casa Consistorial donde funcionan la Alcaldía, Tesorería, Juzgados municipales, oficina de Correos, de Estadística y Catastro, de Sanidad, de Personería y el salón del Concejo. La Casa Departamental. Funcionan allí los Juzgados de Circuito 1 y 2, la telegrafía, Administración de Rentas Departamentales, Notaría y Registro, Recaudación de rentas nacionales y Cárcel. El teatro, con capacidad para 1.200 personas, y muchos otros edificios particulares, como también los hermosos templos que adornan la ciudad." (Departamento Antioquia. 1935).
La Sociedad de Mejoras Públicas, creada desde 1913, es un actor importante dentro del desarrollo urbano de Jericó, con obras de infraestructura y ornato. En los años veinte ejecuta obras sustantivas: parque Fundadores, en 1922; recibió en 1929, por parte del Municipio, el local construido inicialmente para Casa Consistorial, y que para entonces funcionaba como la escuela de varones, para ser adecuado como teatro, con el compromiso de "modernizar y embellecer el interior del edificio" (Departamento Antioquia. 1935), que, recibe el nombre de teatro Santamaría en 1938, por medio de un plebiscito abierto entre la ciudadanía. En 1929, a través de la Junta de Ornato, dotan los parques de filtros, alcantarillados y sardineles de cemento y el año siguiente, patrocinan una fuente de azulejos en el centro del Parque Reyes. Esta misma entidad pavimentó en 1937 dos kilómetros de aceras "en el centro de la ciudad", y llevó a cabo la construcción de "un magnífico andén" en el costado superior de la Plaza Bolívar, la terraza, para muchos, la sala de Jericó. Para amoblarla, regaló también, la S.M.P., seis bancas de granito y cuatro farolas.


Paralelamente al desarrollo del casco urbano, se mejoraron las vías de acceso a la población. La carretera que conectaba con la vía del ferrocarril se realizó en dos etapas, de 1926 a 1929 y de 1932 a 1934.
La inestabilidad de los terrenos, en la que inciden poderosamente las aguas subterráneas, ha sido un problema a lo largo de la conformación urbana de Jericó. Incluso el mismo Rufino Gutiérrez lo notaba en su visita de 1917:
"…Jericó, que está en una ladera inclinada, al pie de un cerro, del cual parece que hubo en tiempo no muy remoto grandes deslizamientos de tierra que vinieron a formar la ladera. Hace creer esto la forma y composición de ésta, la facilidad con que ocurren en ella derrumbamientos, los profundos abismos que han labrado las aguas que descienden de la montaña y las de las lluvias, y el hecho de no haberse encontrado terreno firme en excavaciones hechas para cimentar los edificios, en términos que la iglesia parroquial, o catedral, está sentada sobre bases tan movedizas, que a la simple vista se nota que ha sufrido una grave desnivelación que la amenaza seriamente para el porvenir."(Gutiérrez, R. 1977, p. 136-137).
Para estos años, puede decirse, Jericó está armado, su arquitectura típica, sus casas representativas, su plaza, su estructura urbana data de estos años de fortalecimiento político por su paso como capital de Departamento y su consolidación económica. De estos años son las viviendas de dos pisos. La economía cafetera dio lugar a una especificidad en la construcción; el "cielo raso" o "zarzo", un depósito de café construido un metro más abajo de las vigas de las casas, y los "bajos" o primeros pisos que se utilizaban como depósitos del grano o como agencias de compraventa. No siempre fue ni sigue siendo para el café, los bajos eran lugar de trabajo y podían ser talleres, almacenes, depósitos, panaderías, cacharrerías, cualquier negocio de los de Jericó. De estos años también es la maestría en balcones, ventanas, portones, contraportones. Las casas y edificaciones en general siguen siendo construidas en bahareque y/o tapia con cubierta de teja de barro y carpintería de madera, adaptadas a las altas pendientes de la topografía jericoana, y con materiales de la región, comino, macana, nogal, etc., características de la arquitectura de colonización antioqueña. "La armonía lograda con base en la utilización de elementos y materiales "simples" y enriquecida por el sentido humano que se da a cada detalle, crean un lenguaje sin paralelos donde el gran valor ambiental es consecuencia de la calidad expresiva lograda con dichos materiales y la incorporación del color, bajo una libre interpretación popular."(Universidad Nacional. 1996, p.188).
La Catedral, obra que concentra todos los afectos de los jericoanos, presenta deterioros de consideración. Hacia 1945 unos ingenieros del Ministerio de Obras Públicas conceptuaron sobre la necesidad de demoler parcialmente la catedral pero se ordena la demolición total, que se llevó a cabo en 1946.
En 1949 se da inicio a la construcción de la nueva Catedral. Veinte años más tarde, luego de terminada la obra, el 20 de septiembre de 1969, se realiza su consagración por Monseñor Augusto Trujillo Arango.
Se encontró en el Centro de Historia de Jericó un plano del centro urbano realizado a mediados de siglo por el Instituto Geológico Nacional, el cual presenta datos de grietas, deslizamientos y sondeos asociados con lechos cubiertos de quebradas.

La ejecución del puente Boyacá, sobre la cra 4, la inauguración del primer estadio de balompié el 20 de julio de 1924, la fundación de la Escuela Complementaria de Señoritas en 1933, que posteriormente se convertirá en Normal Nacional; el desprendimiento de Tarso que pasa a ser municipio en 1931, la inauguración de la carretera al Cauca en 1934, complementan este panorama urbano de la primera mitad del siglo XX.

En este periodo Jericó definió sus múltiples funciones urbanas, "generando los diversos espacios que requería y especializando sus lugares" (Colcultura- Universidad Nacional. 1996). La plaza es el lugar central y mantiene el esquema de las plazas dado por las Leyes de Indias de centro de poder institucional, religioso, económico y social, jerarquización que, al parecer es bastante clara en Jericó. "Durante este periodo se ratifica el lugar que ocupan los sectores sociales altos, en la parte alta y céntrica, y otros sectores más modestos en las partes bajas y en los bordes" Colcultura-Universidad Nacional. 1996), y se dota de los principales elementos de infraestructura.
El grupo de talladores, tapieros, migrados del oriente y los otros municipios, se fortalecieron y formaron escuela, carpinteros, ebanistas talladores, tapieros, albañiles, que fueron armando el pueblo, con base en una mentalidad antioqueña que se pensaba en casas grandes, amplias, iluminadas, ventiladas, con materiales bonitos, finos, y sobre todo, "pa' toda la vida".
2.6 DESARROLLO SOCIOECONÓMICO 1950 HASTA AHORA
La política centralista que concentró en Medellín el desarrollo comercial e industrial frenó el desarrollo de Jericó como núcleo regional. Por otra parte, con la decadencia y cierre del ferrocarril Jericó quedó nuevamente en condiciones de aislamiento y por tanto se requirió promover otras vías de acceso (Colcultura-Universidad Nacional. 1996, p.19) En este contexto desapareció la industria de Jericó, algunos grupos poblacionales emigraron y otros solo pudieron mantenerse gracias a la economía cafetera y a la acción de instituciones asociadas a ésta tales como la Federación de Cafeteros.
El café y la ganadería, pero, particularmente el café, se convierte en el norte económico y productivo que ocupa mucha gente y mucha tierra, pequeñas propiedades en su mayoría. La demanda internacional y las condiciones físicas necesarias para su cultivo extienden su producción y permiten incrementar las posibilidades adquisitivas de la población y la movilidad social, reforzando el comercio y absorbiendo la mano de obra inactiva que dejaron las industrias anteriores, de las que solo sobrevivió la guarnielerería con los carrieles y algo de peletería.
Para comienzos del siglo XXI la economía de Jericó se basa en la agricultura, con el café como primer producto; en los últimos años se ha diversificado con otros cultivos como maíz, fríjol, plátano, frutales, y se ha introducido otro cultivo, el cardamomo como producto de exportación, producto que ha aportado además la formación de pequeñas empresas que lo transforman como la dulcería y la confitería. El comercio se ha diversificado también: tiendas, papelerías, hoteles, residencias, bares, cantinas, restaurantes, cafés etc.
La elite jericoana se recompone -proceso que había comenzado en las primeras décadas del siglo- y a la aristocracia se le suma, como nueva elite, la que entran a conformar comerciantes, cafeteros e intermediaros. "Esta nueva elite tiene vínculos con el campesinado rico que adquiere movilidad social; ocupan el sector de la plaza y del barrio alto desalojada por la vieja aristocracia fundadora." (Colcultura-Universidad Nacional. 1996, p.19).
La educación sigue siendo un factor fuerte y de desarrollo en el Municipio, con un buen número de establecimientos educativos, la mayoría de comunidades religiosas y con alta calidad. Cuenta con educación en todos los niveles, preescolar, básica primaria, básica secundaria y superior, que se realiza en convenio con el SENA, la Universidad de Antioquia y el Politécnico Jaime Isaza Cadavid.
Paradójicamente, Jericó, un municipio con muchas aguas, ha tenido, a nivel urbano, un deficiente servicio de acueducto y alcantarillado. En la década del cuarenta el cambio del alcantarillado antiguo por uno de piedra produjo cuarteamientos en el área urbana que afectaron diversas edificaciones. Entre 1945 y 1950 la Cooperativa Municipal de Antioquia diseñó, y construyó un sistema de alcantarillado, pero la inestabilidad geológica del área municipal afectó las tuberías causando serios deslizamientos.
En los años cincuenta se realiza también la pavimentación y ensanche de las vías urbanas; se construye la conexión con Puente Iglesias y en los años siguientes se plantea con carácter de urgente el ensanche de la carretera al río Cauca, completar la carretera por Fredonia a Santa Bárbara y la de Río Frío a Támesis.
Con la crisis cafetera en la década del noventa la subregión toda se ve abocada a un cambio rápido y vira hacia el turismo utilizando a su favor la infraestructura de fincas cafeteras y el carácter patrimonial de El Jardín y Jericó. En esto ayuda la infraestructura vial que es la que garantizan la movilización de personas y productos.
La beatificación de la Madre Laura genera un peregrinaje desbordante de la capacidad de carga del Municipio. Cantidades insospechadas de peregrinos comenzaron a llegar luego de su canonización el 12 de mayo de 2013, peregrinaje que potenció el comercio religioso, imágenes, estampitas, novenas, escapularios, imágenes de culto, souvenires de todo tipo comienzan a ofrecerse en los bajos de las casas, los sótanos, garajes, que se convierten en pequeñas tiendas de objetos sacros para todos los que llegan día a día en busca de un milagro, de un favor de la Madre Laura, con todas las afectaciones estéticas que ello conlleva.
El turismo cultural y religioso de fines de semana también se incrementó hasta el punto de ser una de los renglones económicos de Jericó en la actualidad, con el incremento en la oferta de hoteles, fincahoteles y restaurantes.
Las vías principales de comunicación de la subregión son: La Troncal del Café, que comunica el Valle de Aburrá con el occidente del país; La vía Marginal del Cauca que va desde La Pintada hasta Santa Fe de Antioquia por la margen izquierda del río Cauca; La Troncal Occidental que comunica el sur occidente del país con el puerto de Buenaventura e intercomunica a Santa Bárbara, Montebello, La Pintada, Támesis, Valparaíso y Caramanta. Esta infraestructura vial se convierte en un aspecto de trascendental importancia para el desarrollo en la subregión en las últimas dos décadas.
2.7 DESARROLLO Y TRANSFORMACIONES URBANAS. 1950 HASTA AHORA
Durante la época se desarrollaron algunas mejoras en la infraestructura de servicios y en las vías.
Los cambios en la estructura urbana fueron menores, pero el declive económico ha incidido sobre la pérdida de influencia de los referentes culturales tradicionales. Aparecen nuevos elementos discordantes por el uso indiscriminado de materiales industrializados, paralelos a la escasez de materiales tradicionales y a la pérdida de conocimiento acerca de los procesos constructivos asociados a ellos. Comienzan a darse reemplazos de construcciones de vieja data, por la escueta edificación contemporánea. Alteraciones en las edificaciones que se dan reconstruyendo, añadiendo y extendiendo lo existente.
Con el crecimiento de la población se van configurando barrios o sectores de acuerdo con especificidades socioeconómicas. La clase alta estuvo y está en el marco de la plaza y en el sector noroccidental, de la Comba. Abajo de la carrera 5, sobre las carreras 6 y 7, entre calles 2 y 5, La Quebradita, se establecieron las familias menos adineradas, en la calle del Humo, Rincón Puto, el Matadero. Alrededor de la Plaza de Ferias se estableció la zona de tolerancia, La Bomba. La diferencia está en que la clase alta ya no es un asunto de cuna. Capacidad adquisitiva.
La periferia comenzó a poblarse con programas de vivienda como el barrio Sierra, construido por la Sociedad San Vicente de Paúl, el sector Los Patios y El Faro.
En cuanto a los cambios y transformaciones, hay que decirlo, los cambios en el marco del parque han sido impactantes. En la década de 1940 se construyó la terraza es decir, el acondicionamiento del andén amplio a un costado de la plaza donde se localizaron mesas y sillas de los negocios aledaños. El costado noroccidental de la plaza, luego de los primeros años donde estuvo emplazado el primer templo, y luego la casa del cura, comenzó ocuparse con clubes, almacenes, negocios públicos, y adquirió el carácter de lugar de diversión, de bohemia, de baile, pero, debido a la topografía en pendiente la circulación resultaba un tanto complicada, a veces riesgosa, ni qué decir en invierno. La construcción de la terraza soluciona estos inconvenientes, nivelando y construyendo un piso menos pendiente que lo comunique con el parque. El gran acierto fue sacar los negocios a la calle, mesas, sombrillas. Ganar un espacio para socializar, tomar un café al aire libre, en medio de una de las arquitecturas más bellas del Departamento. Luego viene el desacierto. Posteriormente se instalaron techos de distintos materiales y alturas y se demolieron construcciones con un gran valor estético, cuando no histórico como la antigua casa del padre Cadavid, que había también sido sede del Club Colombia. La arquitectura comienza a deteriorarse.
Otro cambio importante es la nueva Catedral y el cambio de escala, más grande que la catedral Metropolitana de Medellín, dicen algunos jericoanos. En este conjunto, además de la catedral, se destaca la construcción de la cripta iniciada hacia 1953. Un pequeño parque al lado de la catedral se construyó a fines de la década de 1950, el cual serviría para el acceso a la cripta y a la Alcaldía. La nueva catedral fue consagrada en 1969 y, entre marzo y junio de 1974 fue remodelado su atrio cubierto para mejorar el acceso al centro de cultura y a la catedral por las gradas, así como para proteger la cripta de inundaciones y evitar accidentes de tránsito en la esquina de la calle séptima con la carrera 4, obra durante la cual se encauzó un manantial subterráneo. (Villa, L., N. S. 1974, p. 260). La catedral se convierte en el mayor referente urbano desde su construcción y hasta ahora, por su dimensión, por su advocación y por la participación de los feligreses en su construcción, pues cada domingo eran instados desde el púlpito a donar dinero o ladrillos para su feliz consecución, y muchos, o todos, lo hicieron.
A finales de los años cincuenta el conjunto de la plaza tiene una nueva intervención. Contiguo a la catedral, se construye un pequeño parque, o plazoleta, en honor del primer obispo de la diócesis, Monseñor Francisco Cristóbal Toro, con el que se buscaba hacer, "de ese basurero un paseo hermosísimo que armonizara con la belleza de la cripta parroquial y hermoseara la plaza principal de Jericó." (Mi hojita parroquial. 1969, p 713). El parque comunica el edifico de la Alcaldía con la cripta de la catedral y extendió la Plaza de Bolívar.

El parque cerrado con jardines que había sido alterado a fines de 1940 con el retiro de las rejas, sufrió aún más con el crecimiento de los vehículos que tendía a convertir la plaza en un gran parqueadero y terminal de transporte. Otros damnificados que caen bajo el peso del progreso fueron el colegio San José, el hospital San Rafael, la casa Episcopal que ceden paso a edificaciones "modernas".
Otras obras de la época localizadas en el centro urbano, aunque a distancia del parque, fueron el Estadio de fútbol que data de mediados de siglo y la piscina de 1972. (Ángel G.G. 1991)
Colcultura emite en 1981 la Resolución de propuesta de algunos sitios e inmuebles de Jericó como Monumento Nacional, pero apenas en 1996 se desarrolla una fase de estudios para la reglamentación del Centro Histórico de Jericó por parte de la Facultad de Arquitectura de la Universidad Nacional.
Con posterioridad a la Resolución de Colcultura se han llevado a cabo intervenciones en el marco de la plaza; entre 1992 y 1993 se ejecutó la remodelación del parque Reyes y Plaza de Bolívar, protegiendo del tráfico automotor pero con carencias en cuanto a la calidad de materiales utilizados. Se ha permitido la construcción de edificaciones en el marco de la plaza que no armonizan con la arquitectura tradicional, de manera que hoy solo conserva un valor patrimonial destacado el costado norte.
El morro, propiedad de un particular, Gildardo Loaiza, en 1986 lo dona a la Sociedad de Mejoras Públicas, donación que se hace efectiva en 1987; en 1994 la S.M.P., entregó en comodato el terreno para la construcción del Jardín Botánico.

Con patrocinio institucional se han llevado a cabo intervenciones que afectan el patrimonio inmueble del Centro Histórico de Jericó. La reconstrucción de una institución educativa, se realizó sin respeto por la arquitectura del lugar, siguiendo los cánones de una construcción utilitaria y al menor costo que representa una inmensa pérdida para ese contexto.
Otras obras en cambio han tenido otra oportunidad. Es el caso del teatro Santamaría, que en 2006 acusaba ruina y fue objeto de unas intervenciones realmente deteriorantes; en el 2007 se presentan los estudios preliminares para su restauración, la obra se comienza en 2013 y se entrega en 2014, devolviendo no solo el teatro a su condición inicial, salvándolo de la ruina y devolviéndole la dignidad al patrimonio construido. Restaurando la memoria.
Como consecuencia lógica de la sede del Obispado, Jericó es lugar de asiento de comunidades religiosas lo que favorece la construcción de templos o capillas que en la actualidad son diecisiete en todo el territorio.
Un cambio que salta a la vista, que tiene detractores y defensores es el color. Jericó cambió su epidermis en los últimos años. Sobre este tema hay un antecedente que lo regula.
Dentro de los méritos de Jericó se resalta el haber sido el primer municipio en haber formulado un Estatuto Municipal de Medio Ambiente, y de haber sido pionero en el programa Municipios Verdes. En 1992 se promulga el Estatuto que "pretende ser instrumento de protección y conservación del medio ambiente". (Municipio de Jericó. Decreto No. 046, 1992). Dentro del ítem de contaminación visual se contempla el tema de avisos publicitarios, luminosos y fachadas, que incluye el tema del color:
ARTÏCULO 28: Fachadas. Las fachadas y en general las partes de las edificaciones que tengan vista inmediata o aún lejanas hacia el exterior se cubrirán de colores. Tendrán estructura que no riña con el contexto y la apacibilidad del paisaje arquitectónico. Las autoridades podrán prohibir las pinturas con colores que no armonicen con el contexto o que de alguna manera atenten contra el espíritu del inciso anterior. (Municipio de Jericó. Decreto No. 046, 1992, p Capítulo IV Contaminación Visual).
Años más tarde, un programa de la Alcaldía en el año 2009, Mi casa, una joya de color y vida, dirigido al sector Las Quebraditas, parte baja de Jericó, se volvió viral, y hasta la gobernación de Antioquia lo respaldó y copió como prueba piloto para un plan posterior de la gobernación, Pinta tu casa, en el que este ente donaba la pintura. De las Quebraditas el programa pasa a La Comba y a san Vicente, en 2011, y de allí se extiende a todo el pueblo. Para algunos, tal vez muchos, el programa representó un impulso, un estímulo que propició un cambio de actitud de los pobladores de los sectores más deprimidos hacia sus casas y sus barrios, que muestran con orgullo. Otros opinan que Jericó parece "un gorro rasta", que "lo empayasaron, que "no son elegantes y le quitaron sobriedad al pueblo"(4). Lo cierto es que hay una intensa presencia del color en Jericó, no siempre con aciertos compositivos, pero sí con un gran vigor expresivo. Cada cual tendrá su opinión. Las sociedades, su forma de ver el mundo, la cultura, mudan, mutan. Como diría Germán Téllez, la libertad de colores es uno de los pocos refugios de expresión de su individualidad que le quedan a los habitantes de las ciudades actuales.

2.7.1 Usos Cotidianos de Algunos Espacios del Centro Histórico de Jericó
Con respecto a la pregunta por la relación ciudad e historia, Gabriel Moser dice: "¿Por qué referirse a la historia de los lugares es tan importante? La relación del individuo con su espacio de vida es importante no solo desde un punto de vista individual -procura identidad y bienestar, permite el desarrollo armónico del individuo, la realización de sí mismo, procura seguridad-, sino también desde un punto de vista social y político, en la medida en que la identidad urbana y nacional del individuo favorece su expresión como ciudadano responsable, y por consiguiente, la participación a nivel local y nacional."(5)
La ciudad es una superposición de historias diferentes. Historias oficiales, historias fabricadas, historias que la gente ha vivido, historias ocultadas e historias olvidadas. Existe sin duda, continuando con Moser, una dialéctica del espacio urbano de la cual las referencias históricas participan activamente. Esta dialéctica del espacio urbano –lo visible y lo oculto, lo tangible y lo intangible-tiene una dimensión temporal y una dimensión sociocultural -quiénes, cómo y cuándo-. Preguntarse por los usos y representaciones socioculturales de los espacios que conforman un centro histórico es una pregunta que pone el acento en esa dialéctica que ha sido descuidada, -en realidad la historia ha sido descuidada- y cuya respuesta requiere investigación. Es una pregunta abierta y por responder.
Se reseñan aquí algunos usos socioculturales de algunos espacios del Centro Histórico de Jericó, más como enunciados de preguntas que como respuestas identificadas.
2.7.2 La Plaza, Usos y Categorías Sociales
La plaza, todo lo que contiene y lo que la circunda ha sido desde los primeros años de Jericó, como aldea, como Distrito y como Municipio, el centro de prácticas sociales y rutina cotidiana. El lugar de socialización por excelencia, donde las personas se involucran y hacen parte de la vida colectiva. Procesos urbanos-arquitectónicos y sociales comienzan allí. La pila que surtía de agua a los vecinos desde 1874, el empedrado de las calles del pueblo comienza allí, igual que la calle Real y el camino a Andes. Decretos y Acuerdos sobre higiene y ornato en los que se prohíbe botar basuras, hacer ferias de ganado, blanquear y asear las casas que dan a la plaza:
Acuerdo 39 de marzo 9, de 1899: Por el cual se dispone el aseo y blanquimiento de las paredes que dan a la plaza o calles Públicas. (Municipio de Jericó. Acuerdos 1871 – 2002.)
Acuerdo 63 de diciembre 25 de 1910: Por el cual dispone el aseo y ornato de los frentes a la plaza por dos veces al año (Municipio de Jericó. Acuerdos 1871 – 2002.).
Vigilancia, "cuerpo de serenos para servicio nocturno en la plaza", impuestos sobre fiestas en la plaza. La plaza concentra tal cantidad de actividades que debe normatizarse su uso –y aprovechamiento:..Acuerdo 02 de enero 22 de 1938: Por el cual se cobra $1 por mes a los vehículos que estacionen en la plaza o vías públicas."-. El mercado, los sábados primero, luego los domingos después entre semana, los miércoles. Es el marco de la plaza el que primero se urbaniza.
En cuanto a lo arquitectónico, de la mano de lo social, esta elocuente descripción de Guillermo Ángel evidencia otro significado de la plaza, el de las jerarquías sociales, muy marcadas en Jericó, y una consecuente sectorización y usos diferenciados del marco de la plaza. Dice don Guillermo:
Para dar una idea de la marcha de la urbanización de la Plaza principal, debe anotarse que la inmigración de familias prestantes que llegó a radicarse en Jericó, no eran simples aventureros que venían en busca de oportunidades que favorecieran instintos y apetencias sin sentido ético; no. Eran personas de limpia historia familiar, ampliamente apreciados y valiosos en la sociedad de su procedencia y que raían dinero para invertir. La mayor parte de las casas que se fueron levantando en el marco de la plaza tiene ese origen. Y no solo trajeron dinero sino aún operarios calificados de Guarne, El Retiro, Medellín, Fredonia, para que sus habitaciones, además de cómodas y amplias tuvieran rasgos estéticos que le dieron a la plaza en no largo tiempo, un aspecto como muy pocas en el Departamento y el País ha tenido. A propósito, Jericó es digna heredera del preciosismo en tallas de madera que llegó del Retiro para dar elegante altivez a puertas, balcones, ventanas, contraportones y comedores, de los cuales aún hay muchos escapados a la avaricia de quienes cambiaron el arte por la práctica del modernismo frío y denudo y de los que destruyeron y desfiguraron una casa para sacar de ella tres o cuatro habitaciones. (Ángel G. 1991, p 52).
La sociedad jericoana de finales del siglo XIX y primera mitad del siglo XX, además de su preocupación por la educación, se preocupa por la conformación de una "selecta sociedad", lo que consigue a través de varios hechos, según el análisis realizado por el mismo autor y que se comprueba en las conversaciones con diferentes personas:
"Tuvo Jericó la suerte de poblarse y llegar a su adultez mediante aporte y la presencia y noción de gentes, adornadas de virtudes distinguidas desde los primeros colonos hasta las encumbradas gentes de salón (…). Se tenía muy en cuenta en Jericó los caracteres genealógicos de las gentes, y no se tome a hipérbole ni a ridículo sino a peculiaridad, que no desunió pero sí pudo llegar a constituir estímulo, pero se contaban más de tres clases sociales, al determinar la estirpe, la educación, el buen trato, la finura de modales, la calidad de la habitación y la manera de sostenerla en presentación.
Influyó también el aspecto ocupacional (...); la radicación en la ciudad de jefes de alto rango militar, la autoformación adquirida mediante las lecturas, (…) fueron creando estos factores una fronda burocrática que impelía a los caballeros y a sus familias a llevar una vida ajustada a las costumbres de las gentes aristocráticas, para sostener así su posición en el empleo y también en la escala social.
La educación tuvo incremento, no sólo en los planteles que se abrían en la ciudad sino que ya se pensó y se realizó el traslado de muchos jóvenes a Medellín y aún a Bogotá para adelantar los estudios. Eso daba lustre y acrecentaba la aristocracia de la familia. ". (Ángel G. 1992 ).
Esta es la explicación del origen de esta selecta sociedad. Esta jerarquización se evidencia en la sectorización, en el lugar donde se hallara ubicada la vivienda, siendo el marco de la plaza, además del centro institucional, comercial y de servicio, el lugar de residencia de la elite aristocrática durante estos años. A partir de la segunda mitad del siglo XX el marco de la plaza comienza a ser ocupado por la nueva elite que ha ido surgiendo de entre comerciantes, ganaderos y cafeteros.
Hasta 1940 la plaza era un sector de alta selección: casas magníficas, bien sostenidas, decoradas con sumo gusto, de frentes bien enlucidos, y habitados por gente de especial cultura (…). (Angel G. 1991, p 54).
Estas jerarquías se plasman, en las casas de habitación y en los lugares para la diversión en los diferentes costados de la plaza. Los lugares selectos, ubicados en el costado noroccidental, sobre la carrera 4, como el Club Colombia, con un "sello de selección y elegancia", "solo para socios o presentados por socios"; "no fueron pocas las personas de nombradía que fueron recibidas con ajuste a sus méritos", y "con derecho de recepción reservado". (Ángel G. 1991).
Otros lugares de la plaza, menos elegantes pero de uso y reconocimiento de los caballeros jericoanos eran los cafés "Ramonerre" y "Tosca", donde "se cuajó la generación brillante que engrandeció a Jericó en los campos de la intelectualidad"(Ángel G. 1991), y que se conoce como "La Gruta Bohemia". Las mujeres también tenían su lugar en la plaza en el "Café Femenino", fundado en los años treinta y frecuentado generalmente por "gentes jóvenes de buen recibo social." (Ángel G. 1991).
Se resalta el uso exclusivo de la plaza en cuanto a diversión y esparcimiento. "La gente del pueblo" se divertía en el costado opuesto, cra 5 hacia abajo, " generalmente con juegos permitidos y con alcohol en las tiendas de la calle de Andes (cra 5 entre 7 y 9), o en los establecimientos de la "Calle del Chorizo" (cra 5 entre calle 4 y 6), y aún en la calle de "El Alto" (cra 1), donde va en busca de alimentos muy variados." (Ángel G. 1991) -Merece anotarse que para los caballeros de los Gruta Bohemia, los "etílicos estimulaban el entusiasmo estético", mientras que "las gentes del pueblo", simplemente se divertían "con el alcohol"-. Estaba también el Centro Social, al lado del Club Colombia, "era donde las muchachas nos volábamos a bailar, al medio día, desde las dos de la tarde." (Entrevista con Gloria Elena Tobón de Restrepo, agosto 19 de 2014).
Con la Terraza, se acentuó la división social en el aspecto de la diversión, "el campesino no se atrevía a sentarse a libar copas con las señoritas de abolengo y fincas." (Ángel G. 1992) "La Terraza era exclusiva para la clase alta, la clase baja era en la cuadra de abajo, del Piedras" (Entrevista con Gloria Elena Tobón de Restrepo, agosto 19 de 2014). Como consecuencia se aumenta la oferta de cantinas, billares, ventas de comida en el otro costado, sobre la cra 5, para ofrecer espacios de solaz y diversión a los menos afortunados.
Había otros usos de la plaza más "pluralistas", los usos religiosos, las "fiestas públicas" o "fiestas de la plaza", que incluían riñas de gallos, carreras de caballos, "juegos permitidos"(6). Retretas los domingos en la noche y mercado público, los sábados en los primeros años, dominicales luego -no se tiene el dato de la fecha o época en que cambian-, que incluían venta de ganado.
Los usos cotidianos de la plaza de Jericó, eran pues asunto de la aristocracia, el pueblo hacía uso eventual de ella, en las fiestas.


Dentro de la plaza la "Iglesia Catedral", la gran obra urbana de Jericó. Siempre el templo de Jericó, no importa cuál. La capilla pajiza de los primeros años la sustituyó un templo de teja y tapia que se demuele en 1870, luego se construye otra catedral que en 1930 comienza a presentar fallas, hasta obligar su demolición –se sugiere demolición parcial pero se realiza demolición total-, y en 1949 se coloca la primera piedra del templo actual y que consagra en 1969. En 1905 se cree, aún sin terminar, que "el templo de Jericó es uno de los más hermosos con que cuenta el departamento, y aunque aún no está terminado, si puede cualquiera formarse una idea de la magnificencia que ostentará cuando esté concluido" (Tejada Córdoba. 1906,p. 11).
La nueva catedral no mengua el valor y el significado para los jericoanos, al contrario, lo exalta: "muy fotogénica por donde quiera que la mires, en picada y en escorzo, de cerca y de lejos". (Villegas, M. A. 1975, p. 277).
El templo, la Catedral, genera otros usos, las fiestas y procesiones religiosas, Corpus Cristi, Semana Santa y las Patronales el 24 de septiembre de cada año; las visitas de los obispos también congregaban a la plaza a todos los habitantes jericoanos, y por sobre todas, la misa dominical. A la salida de la misa, los que no visitaban La Terraza ni las cantinas y billares de enfrente, se ponían al tanto de lo ocurrido en la semana. Puede decirse que las celebraciones religiosas son las de mayor trascendencia para los jericoanos.
Hubo un tiempo, en los años cincuenta y sesenta del siglo XX, en que la plaza se volvió garaje. El trasporte público y el privado tomaron la plaza como parqueadero, con obvias consecuencias estéticas y, en ocasiones, con mortales perjuicios para los ciudadanos.

En 1993 se remodela, plaza, el parque, "con sus necesario anexos: bancos, iluminación, estructura aporticada con su respectivo condicionamiento". (Jaramillo D. 1995,p.19).
Un lugar de enorme significado cultural en el marco de la plaza es La Gruta Bohemia, que "tuvo origen entre la segunda y tercera década del siglo XX, cuando se retaban a duelo de prosa y verso los más connotados intelectuales". (Correa R., R. 2002, p. 31). Lugar ubicado en el extremo sur de la terraza, y donde "hicieron tertulia edificante, jocunda y fecunda" (Ángel G. 1998), entre los que se encuentran José Restrepo Jaramillo, Dolly Mejía, Fernando Prieto, Luis Guillermo Echeverri, entre otros, reconocidos en Jericó como grandes poetas y escritores, y por los que se auto reconocen como la Atenas del Suroeste.
El comercio ocupaba otro sector. Los bajos de las casas se utilizan para boticas, misceláneas. Muy probablemente hay otros usos que se escapan, que no registran las fuentes consultadas, y sí las por consultar. Usos políticos, afectivos, u otros que no se sospechan siquiera. En todo caso, se tiene la certidumbre de que la Plaza principal, de Bolívar, Parque Reyes, ha sido y es el centro de todas las funciones cívicas como son, ceremonias religiosas, mercado, festivales, ferias, fiestas, terminal de buses, además de patio de juego de los niños, lugar de encuentro y de citas, de reuniones. Es el lugar que reúne la actividad social de la población en sus diversos ámbitos. En ella y en torno a ella ha discurrido la vida de los jericoanos, allí empezó su conformación urbana y todos los hilos de esta trama, de esta traza, han pasado por allí, y allí sigue, vive y persiste un patrimonio vivo.
Cómo no mencionar que dentro del devenir de este paisaje urbano tres personajes nacidos aquí, hicieron que el mundo se asomara a este poblado; tres personajes que caminaron estas calles y hacen parte de su patrimonio, de su identidad. La Madre Laura, nacida en 1874, Manuel Mejía Vallejo en 1923 y Darío Lemos, en 1942.
"(…) pero yo considero que donde el valor no puede nada, le queda la victoria a la debilidad, entre los débiles y pequeños, el triunfo está reservado a la mujer". Madre Laura, 1907
Yo conozco vuestro corazón y Vos el mío y vea aquí el mundo nuestra amistad. ¿La habrá semejante? Madre Laura
De niño encerraba en mi cuarto el silbo de los pájaros, y el rumor de unas huellas en el pasto. Todo cabía en mi silencio recién recuperado. Abrir la puerta era la soledad.
Manuel Mejía Vallejo, Memoria del olvido
Ahora que puedo no sólo mirar sino "ver" desde mi cama las aguas de un mar sin sal y sin ahogados; ahora que puedo guardar esas montañas en el bolsillo donde guardaba los cigarrillos amargos; ahora que ya casi viajo donde el animal tiene que viajar, voy a mirarlo todo con sonrisa de armonía sangrante, voy a ponerme nuevamente la pierna derecha, voy a poner un serrucho en cada encía y voy a "vivir" hasta que muera. Y posiblemente amaré las mañanas y nuevamente algún crepúsculo peinará mis cejas. ¿Crees alma mía que este cuerpo fatigado y rebelde, medio cuerpo que antes fuera armónico, quiera soportar más esta tierra deslucida y cruel? ¿O mi cuerpo agrietado permanecerá eterna tea? ¿Llegarán los vientos como las argollas que llegaban a mi niñez de pececito sabio a refrescar los latigazos de bambalina con que mis padres y sacerdotes españoles castigaban mi manera de mirar azul? Último poema de "daríolemos"
Morro el Salvador. Hay un referente natural, paisajístico que definitivamente hace parte de la historia urbana de Jericó y de su centro histórico, un referente natural que se vuelve urbano, cultural. El morro El Salvador. "Formando un cono casi perfecto, de un hermoso color verde el morro El Salvador se destaca contra el azul purísimo del cielo. Sobre su cima descansa una colosal estatua de Cristo Rey." (Sossa, Oliva. 1978 p. 47).

"Pocas ciudades tan afortunadas en poseer un morro con la redondez de formas y simétrica belleza, de éste; así lo han atestiguado viajeros y turistas que se llegan hasta nosotros…" (Sossa, Oliva. 1978 p. 47).
La memoria lo recuerda como el lugar de paseo, miles de fotografías se le han tomada a Jericó desde su cima, y miles de fotografías se le han tomado al morro desde la plaza de Bolívar, tantas como viajeros han llegado a Jericó en toda su historia. Lugar de peregrinaje y de procesiones desde que se instaló en él el Cristo Rey, instadas por los diferentes párrocos, quienes "amonestaban a los fieles para subir en procesión de luces, el día de Cristo rey, hasta la cumbre de la montaña, para hacer protestación de fe y renovar el juramento de fidelidad a los principios católicos", dice Monseñor Nabor Suarez, a propósito del cincuentenario de la imagen del Salvador.
Se celebra en el morro el Festival de la Cometa en el mes de agosto; montones y montones de cometas y de personas lo invaden, desde 1978, cuando se instauró esta festividad en la que el morro es el centro de la fiesta. Pero no es necesario este festival para subir allí; siempre, cotidianamente es visitado por hombres, mujeres y niños en busca de diversión o de solaz. La fiesta y la meditación, lo sacro y lo profano tienen un lugar en El Salvador, lugar, además, con un gran valor arqueológico.
2.8 CAMBIO DE USO DE ALGUNOS INMUEBLES A TRAVÉS DEL TIEMPO
Son recurrentes en Jericó los cambios de uso, tanto en inmuebles institucionales como en los residenciales, un día hay un colegio, otro, una estación de policía, otro, un museo… la vida que discurre.
En el edificio de la Normal, en la carrera 2 funcionó, durante la guerra de los mil días, una parte del Batallón Restrepo. Luego, funcionó allí el Colegio San Luis. Posteriormente se destinó para el Colegio de La Presentación. Hay que anotar que este fue el lote señalado por Santiago Santa María, al momento de la donación, para monasterio, por lo que se le conocía como "la manga del convento".
En la parte posterior de la Normal funcionó la fábrica de hilados y tejidos de Jericó, fundada en 1912, y, que apagó máquinas en 1916, cuando fueron vendidas a personas de Medellín y trasladadas allí.
En la carreara 2 con calle 6, esquina, funcionó el Monasterio de la Visitación, en tres casas que se unieron para su conformación. Las madres Visitandinas salieron de Jericó en 1952. Ocupa entonces el lugar el colegio Santa Rosa de Lima. En 1977 se instala La Casa de la Joven.
El Palacio Episcopal fue, en primera instancia, casa de habitación de la familia de Ángel Abad, conocido como don Abad. Luego, por los años de 1915 se radicaron los Claretianos. Fue adquirida luego por la Diócesis y funcionó entonces le Seminario Menor. Posteriormente la toma en arriendo el Municipio y establece un kínder; de kínder pasó a ser centro de salud, hasta que la toma de nuevo la Diócesis y la remodela en 1983, y pasa a ser de nuevo Palacio Episcopal.
En la sede de la Sociedad de Mejoras Públicas, en la carrera 4 funcionó la Casa de la Cultura.
En el edificio ubicado en la carrera 4 con calle 6, esquina Plaza de Bolívar, funcionó la Gobernación del Departamento de Jericó, entre 1908 y 1910. En el primer piso funcionó el Banco de Jericó.
La primera casa que se construye en la aldea de Piedras, según las fuentes consultadas, es donde se construyó luego el edificio del Café.
El Club Colombia ocupó el emplazamiento del primer templo pajizo construido en la Aldea.
La casa donde está ubicado el Centro de Historia fue construida para Escuela de niñas.
El teatro Santa María, fue construido para ser casa Consistorial y Escuela de Varones.
La Escuela Madre Laura estuvo ubicada en el local del Colegio San José, parque Fundadores, funcionó también allí, antes de su construcción en la clle 1 en 1918, el Seminario Dioceasano. Luego la Escuela Madre Laura se trasladó al local donde funcionaba la Escuela Gómez Cadavid.
El Monasterio de Las Clarisas también se movió en varias oportunidades. En sus inicios funcionó en "el crucero de la calle 7 con cra 2, poco después pasaron a un edificio de la parroquia en la cra 3 entre calles 9 y 10" (Orozco V.B. s.f.), más tarde pasan "al crucero de la cra 6 con calle 6, donde estaba el Supermercado de la Cooperativa de Caficultores de Jericó…"(Ángel G. 1995,p.88).
En el edificio donde funciona la Escuela Madre Laura se instaló y funcionó el Batallón San Mateo, una guarnición de artillería destinada para Jericó en 1933 y hasta enero de 1937. El casino del batallón funcionó en la casa de la calle 7 donde hoy se encuentra el restaurante de la abuela o conocido como "casa rosada".
Al Maja lo antecedieron el colegio Departamental de Varones, el Colegio de María, el Kindergarten, la Escuela Complementaria de Señoritas, la Normal Rural de Señoritas (!), EL Liceo Industrial Antonio José Jaramillo, El Hogar Juvenil Campesino, la Casa de la Cultura. Dicen las fuentes que en 1986 fue restaurada. Como Museo inicia su historia en el 2009, al ser declarada sede del Museo Municipal. Entre el 2010 y el 2012 se remodela la casa conservando solo unos pocos elementos de su estructura original.
3. DELIMITACIÓN DEL ÁREA AFECTADA O CENTRO HISTÓRICO Y DE SU ZONA DE INFLUENCIA
3.1 ANTECEDENTES DE DELIMITACIÓN
En primer lugar es importante considerar que el actual perímetro oficial del Centro Histórico de Jericó, Antioquia está determinado por el Esquema de Ordenamiento Territorial, Acuerdo Municipal 02 de 2010. Conforme se indicó tanto en la primera Fase del PEPCH del año 2007, así como en el Documento de Diagnóstico del presente PEMP CH 2014, perímetro que obedece e incluye los elementos patrimoniales propuestos como Monumento Nacional en la Resolución 005 de 1981, expedida por Colcultura, adscrita al Ministerio de Educación Nacional.
Si bien la mencionada Resolución incluyó la descripción de estos elementos, no incluyó ni delimitó en su momento un perímetro específico, posteriormente Colcultura en el año 1996, plasmó en un mapa, y es precisamente con este instrumento con el que se ha delimitado este perímetro.
En consecuencia el Artículo 20, numeral 6) del Esquema de Ordenamiento Territorial, Acuerdo Municipal 02 de 2010, determina los inmuebles identificados como patrimonio arquitectónico y cultural que coinciden con el contenido de la propuesta como Monumento Nacional, según Resolución 005 de 1981, expedida por Colcultura.
Al respecto y como antecedente fundamental para la definición de perímetros que nos ocupa, se hace necesario aclarar que la Propuesta de Declaratoria según Resolución 05 de 1981 (Colcultura, 1985), requiere su perfeccionamiento jurídico, para que se consolide, como acto administrativo que trascienda a la Declaratoria en firme, sin embargo este perímetro asumido desde el ordenamiento territorial municipal como Centro Histórico, así como la delimitación de una Área de Influencia, han permitido la conservación de este Centro Histórico.
A partir del esclarecimiento de este antecedente y considerando que el concepto actual de Centro Histórico, establecido en la reglamentación nacional vigente(7) coincidente con el concepto "Área Afectada", corresponde a la delimitación o demarcación física, del perímetro que comprende los Bienes Inmuebles de mayor significación cultural, y que en el caso de Jericó, Antioquia, corresponde al conjunto de inmuebles, constituido tanto por las áreas construidas, como por las áreas libres inmersas en este perímetro, cuyos valores culturales han sido reconocidos históricamente por la colectividad, declarados en el ámbito municipal y verificados en el año 2014, con el objetivo de obtener un reconocimiento de índole nacional, es decir, para su declaratoria como Bien de Interés Cultural -BIC (8).
La actualización de diagnóstico adelantada con motivo del PEMP CH 2014, permitió verificar la exclusión del Perímetro del Centro Histórico, de elementos estructurantes físico espaciales, referentes simbólicos esenciales, tales como formaciones geográficos del relieve natural, estructurantes del espacio público (vías y parques), y también la exclusión de edificaciones y sectores de valor patrimonial. Todos estos elementos de alta significación cultural, dentro del proceso de poblamiento del territorio, referentes por excelencia y que permiten conexiones y vínculos, se constituyen en elementos a considerar dentro de la propuesta de delimitación de perímetros.
Por lo anteriormente expuesto se concluye la necesidad redefinir los perímetros del Centro Histórico y la Zona de Influencia, fundamentados en la necesidad de consolidar el patrimonio cultural inmueble del municipio de Jericó Antioquia como un sistema, que vincule los diferentes elementos y componentes que lo conforman espacio público- espacio privado y sus interrelaciones con la estructura de soporte; definir la zona de influencia de forma tal que garantice ser la zona de amortiguamiento, propicia tanto para la mitigación de impactos que puedan afectar los valores patrimoniales del Centro Histórico, así como para propiciar el desarrollo de potencialidades que posibiliten su sostenibilidad y permanencia en el tiempo.
3.2 CRITERIOS DE SUSTENTACIÓN DESDE LA HISTÓRIA
Cuando se habla de arquitectura de la colonización antioqueña, Jericó es un referente inmediato. Puede decirse, sin temor a equivocarse que es un símbolo dentro de la paradójica mentalidad antioqueña, en la cual el orgullo por lo tradicional es aún importante, y la quimera del progreso, el desarrollo y ciudades innovadoras ha mandado al traste el patrimonio construido.
Su emplazamiento en una geografía abrupta, empinada, su trazado ortogonal, de calles rectas y manzanas cuadradas en esta geografía y sus repuestas prácticas, estructurales y estéticas lo convierten en arquetipo de desarrollo urbano y diseño arquitectónico, en el que se recurre a "lo que hay" para resolver obstáculos y necesidades con resultados más que acertados.
Sin embargo, dos peligros amenazan hoy a Jericó. El turismo masivo que, además de menoscabar todo lo que toca, por exceso, conduce a un readecuamiento, hasta ahora sin control. El segundo viene de la mano. La idea de progreso, una idea vieja que aquí no había hecho estragos mayores, y que es sinónimo implacable de reemplazo de lo antiguo y tradicional, por "viejo", casos Hospital San Rafael y Colegio San José.
En los últimos siete años vimos pasar estos dos peligros que amenazan quedarse porque se vuelven mentalidad. Puestas así las cosas, puede decirse que Jericó resuelve aquí una coyuntura histórica, como es la de decidir su destino urbanístico y decidir si quiere y puede conciliar un proceso de desarrollo urbanístico contemporáneo, conservando su centro histórico, controlando tendencias destructivas, o darle paso, parafraseando a Germán Tellez, a la menesterosa edificación contemporánea, barata.
El asentamiento urbano de Jericó, su estética, su arquitectura, su tipología se dan en función del clima, de la topografía, de los materiales a disposición, de las necesidades sociales de los colonos y que llevaron a plantear diversas soluciones constructivas y estéticas.
En Jericó, estas estéticas son el resultado de la memoria cultural de los colonos, de sus lugares de origen, reinterpretada y enriquecida por esta topografía, por este clima, por estos "bosques seculares", y por esa suma de memorias llegadas de El Retiro, de Rionegro, de Fredonia, de Medellín. Sincretismo.
Su estructura urbana adaptada a las altas pendientes de la topografía jericoana y sus detalles estilísticos que se plasman en la maestría en ventanas, portones, contraportones y balcones. Tapia emboñigada, carpintería en madera o en materiales de la región, comino, macana, nogal etc. todas estas, características de la arquitectura de colonización antioqueña y que se manifiesta con todo su esplendor en el periodo de 1900 y 1935.
Efectivamente, en el siglo XX, no solo se amplía y consolida el perímetro urbano, también se consolida una infraestructura urbana, y, dado que la mayor expansión se da hacia el oriente y el occidente, zonas de alta pendiente, se afianza el café como actividad económica y Jericó se apuntala como centro de poder político y económico, se dan las respuestas tipológicas y estructurales que lo caracterizan, el poder adquisitivo necesario para pagar la maestría estética y la mentalidad necesaria para llevarlas a cabo. En estos primeros treinta, treinta y cinco años del siglo XX Jericó se enseñorea. Su estructura urbana y sus detalles estilísticos se definen en este período.
Así pues, devenir histórico de Jericó nos da los elementos necesarios y suficientes que evidencian, tanto por su emplazamiento como por sus características estéticas descritas, resultados de un proceso sinérgico y diacrónico cultural, económico, social y político, que su centro histórico, cada calle, cada casa, es en sí mismo un documento para la historia, de Jericó y de la arquitectura en Colombia, un documento para leer una forma de ver y entender el mundo, como lo es la mentalidad del antioqueño de estos años, austero en el diseño pero generoso en detalles estilísticos, en espacios amplios, aún, con todas las intervenciones ocurridas en los últimos siete años.
El valor histórico y el valor simbólico están plenamente presentes y desplegados en este Municipio en el que población ha reconocido y apreciado históricamente su alto valor patrimonial, se ha posicionado como garante de la conservación de su patrimonio cultural entendido como un sistema integral: histórico, simbólico y estético, reflejados respectivamente en su proceso de poblamiento, sus costumbres y el alto grado de apropiación del patrimonio por parte de sus gentes.
El resultado de este proceso de poblamiento y la definición simbólica de recorridos religiosos, cívicos, fúnebres o de celebraciones convierten tanto la traza urbana como sus delimitadores en marcas de ruta y lugar (fachadas y sitios) de tal manera que al asignar valores (históricos y simbólicos) en los predios nos acercamos al área de un Centro Histórico.

3.3 CRITERIOS DE SUSTENTACIÓN DESDE LA VALORACIÓN FÍSICO – ESPACIAL
De acuerdo con la valoración histórica y simbólica realizada en el área de verificación se parte de esta y de los perímetros oficiales vigentes, establecidos en el Esquema de Ordenamiento Territorial para Jericó, Acuerdo Municipal 02 de 2010. En primer lugar se consideran los aportes y avances del aludido instrumento de planificación, en materia de ordenamiento territorial, en tanto, genera insumos valiosos a considerar en la definición de los perímetros aludidos, entre otros:
En el Capítulo V, los Suelos de Protección y en el Artículo 19, las Categorías de las áreas destinadas a Suelo de Protección, particularmente en el numeral 1) Suelo Urbano de Protección, literal f) incluyó los inmuebles de patrimonio arquitectónico y cultural, y en el Artículo 20, Identificó las áreas urbanas destinadas a Suelo de Protección, numeral 1), por conservación de recursos naturales, incluyó, El Morro El Salvador, el área de amoblamiento del sistema del cable aéreo (teleférico) y el área destinada en la actualidad al Jardín Botánico los Balsos. Adicionalmente, en este mismo Artículo 20, numeral 6) Identifica los siguientes inmuebles, como patrimonio arquitectónico y cultural:
Las ocho manzanas aledañas al parque principal (cuatro que lo enmarcan y cuatro diagonales); las casas y predios que dan a la carrera quinta, desde la calle cuarta hasta "El Caño"; las casas que dan a la carrera cuarta desde la calle cuarta hasta la novena; las casas, predios y edificaciones de la carrera tercera desde el Morro del Salvador hasta la calle novena; las casas de la calle cuarta entre las carreras cuarta y quinta; las casas y edificaciones de la calle séptima desde el parque principal hasta la carrera primera; las casas de la calle novena desde el frente de la Iglesia de San Francisco hasta la carrera quinta; el Santuario del Corazón de María y la Casa de los Misioneros Claretianos; la Iglesia de San Francisco ("La Pollita"); la Escuela Normal Superior y la Casa de la Cultura.
Esta delimitación oficial de perímetros obedece a inicial enunciado de sectores e inmuebles, seleccionados en los Pre inventarios (Colcultura, 1981).y en el Estudio del Centro Histórico de Jericó (Colcultura 1996). Como se indicó en el Documento Técnico de Soporte, diagnóstico del PEMP CH Jericó, la exclusión de áreas e inmuebles estructurantes en el territorio, y fragmentación de manzanas, conllevó, transformaciones urbanísticas y arquitectónicas de las áreas e inmuebles individuales ubicados por fuera de este perímetro del Centro Histórico, enunciado en 1981 (Resolución 005 d, e 1981, Colcultura) y posteriormente delimitado cartográficamente en 1996. (Estudio del Centro Histórico e Jericó, Colcultura 1996).
En consecuencia de lo mencionado y con el objetivo de poner en valor importantes elementos y componentes que conforman el conjunto de bienes inmuebles del Centro Histórico de Jericó, cuya visión integral, se estima conveniente asumir:
Como primera estrategia, la inclusión de manzanas completas, conformadas por conjuntos de bienes de interés cultural, reconocidos históricamente en los diferentes ámbitos, con el objetivo de eliminar fraccionamientos, frenar los transformaciones que desvirtúan los valores urbanísticos y arquitectónicos que originaron la declaratoria y lograr la resignificación del patrimonio cultural inmueble, actualmente en vía de transformación y en algunos casos de extinción o inminente desaparición.
Esta primera estrategia permite, de un lado, la protección de los inmuebles individuales en los diferentes niveles de conservación asignados, acorde con sus valores históricos, simbólicos y estéticos, y de otro lado, permite la conservación del Centro Histórico como sector, garantizando que se mantenga sus atributos de conjunto. Adicionalmente los inmuebles contextuales colindantes a bienes de interés cultural, cumplen la doble función de custodiar - garantizando su conservación- y contrarrestar el riesgo de desaparición.
Como segunda estrategia, se propone, incluir dentro de los perímetros del Centro Histórico y la Zona de Influencia, Bienes de Interés Cultural aislados, actualmente excluidos del perímetro del Centro Histórico, Bienes de Interés Cultural BIC, así como de otros elementos estructurantes naturales y del espacio público, tales como: Morro el Salvador (Estructurante Natural); Parque Fundadores (Estructurante Espacio Público); Sectores urbanos, Seminario, Cementerio, Templo Inmaculado Corazón de María, la actual sede de la Escuela Madre Laura, la Normal Superior (Estructurantes Patrimonio inmueble), con el objetivo de vincularlos e incluirlos al sistema de patrimonio cultural inmueble, a través de ejes viales estructurantes (también se incluyen), constituidos históricamente, como recorridos ceremoniales de alto valor simbólico, fundamentales en el proceso de poblamiento, tales como:
El Camino del Estado, calle 1, sur oriente del área urbana, vinculando a esta con, El Morro El Salvador, El Monasterio de las Clarisas, El Seminario, El Cementerio y edificaciones de arquitectura habitacional, que aportan a la significación del contexto del Centro Histórico y su Zona de Influencia.
Las Carreras 4 y 5, su continuidad hacia el sur occidente del área urbana, vinculando esta, con el Templo de Nuestra Señora del Inmaculado Corazón de María, y el Parque Fundadores y edificaciones de arquitectura habitacional, que de igual forma, aportan a la significación del contexto del Centro Histórico y su Zona de Influencia, como se sintetiza e ilustra en el esquema "Propuesta de Perímetros del Centro Histórico –CH (Área Afectada) y Zona de Influencia- ZI.

3.4 CENTRO HISTÓRICO (ÁREA AFECTADA)
Delimitación del perímetro del Centro Histórico - Área Afectada- Jericó, Antioquia:
El límite del perímetro del Centro Histórico de Jericó, fue elaborado con base en la metodología combinada de puntos arcifinios y límites prediales, donde no es posible la delimitación por límites naturales, aclarando que en todo caso, la delimitación por límites prediales, no puede ser alterada ni modificada, en el posible caso de futuras sub divisiones prediales, por tanto se deberá respetar el perímetro del CH y su ZI definido según formación catastral 2013.
Para tales efectos, atendiendo el Régimen de Protección del Patrimonio Cultural Inmueble -RPCI, se deberá efectuar la declaratoria como Bien de Interés Cultural, la cual debe inscribirse en el folio de matrícula inmobiliaria, por tanto esta, quedará inscrita con la respectiva referencia cartográfica, aclarándose que para el caso de modificaciones del límite predial, relacionado con estos perímetros, se deberá efectuar el ejercicio de colocación de mojones que mantengan los puntos que delimitan los perímetros, tanto del Centro Histórico como de la Zona de Influencia.
A continuación se describe el límite propuesto del perímetro del Centro Histórico de Jericó, Antioquia:
Punto de inicio, Punto 1, ubicado en el costado nor oriental del área urbana del municipio de Jericó, en la intersección de la vía que conduce a Medellín, con la el línea que define el perímetro urbano; desde este punto, en sentido oriente, continuando la línea del perímetro urbano, hasta el Punto 2, localizado en la intersección con la vía calle 2N; desde este punto en sentido sur, por el eje de esta vía, calle 2N, bordeando el Cerro El Salvador, hasta su intersección con la carrera 6, Punto 3; desde este punto, en sentido sur occidental, por el eje de la vía carrera 6, hasta su intersección con la prolongación de la línea del límite nor oriente del predio 000200076, Punto 4; desde este punto en sentido sur oriental, bordeando el límite nor oriental del predio 000200076 hasta su intersección con el límite sur de éste mismo predio, vértice, Punto 5; desde este punto en sentido sur occidental hasta su intersección con el límite norte del predio 000200061, vértice, Punto 6; desde este punto en sentido sur oriental, bordeando el límite nor oriental los predios 000200061, 000200060, 000200059, 000200058, 000200057, 000200056, hasta su intersección con el límite nor occidental del predio 000200055, Punto 7; desde este punto en sentido oriente por el límite nor occidental de este predio hasta su intersección con el límite oriental de este mismo predio,000200055, vértice, Punto 8; desde este punto en sentido sur oriental, bordeando el límite nor oriental de los predios 000200055, 000200054 y 000200080, hasta su intersección con el límite occidental del predio 000200053, Punto 9; desde este punto en sentido sur oriental, bordeando los límites nor occidental, norte y nororiental de este mismo predio y el límite nororiental de los predios 000200079, 000200052 en el cual, la delimitación del perímetro del Centro Histórico incluye la edificación que alberga el Monasterio de Las Clarisas, para posteriormente continuar por el límite nor oriental de los predios 000200051 y 000200050, 000200048, 000200047, 000200046 000200045, 000200044 000200043, 000200042 y 000200041, hasta la intersección, entre la prolongación de límite de este último predio 000200041, con la carrera 8ª; Punto 10, desde este punto en sentido suroriental atravesando esta vía, hasta su intersección con el límite nor occidental del predio 00020150, Punto 11; desde este punto, en sentido sur oriental bordeando el límite nor oriental de los predios 000200150, 000200038, 000200037, 000200036, 000200035, 000200034, 000200032, y el límite norte de los predios 000200031, 000200030, 000200028, 000200025 y 000200020, hasta su intersección con la carrera 9, Punto 12; desde este punto en sentido sur siguiendo la carrera 9 hasta su intersección con la calle 1, vértice predio 000200077, Punto 13; desde este punto, en sentido oriental bordeando el límite sur de los predios 000200077, 000200018 y 000200017, hasta la intersección con el límite del predio,000200016 Punto 14; desde este punto, en dirección sur, por la vía Carrera 9a, hasta su intersección con el vértice suroriental del predio 00300087, cementerio, Punto 15; desde este punto en sentido occidental bordeando el límite sur del predio 0003000018, Cementerio, hasta la intersección con el límite occidental, esquina, de este mismo predio 0003000018, cementerio, Punto 16; desde este punto, en sentido norte, en línea recta, hasta su intersección con el límite sur oriental, esquina, del predio 000300017, seminario, Punto 17; desde este punto en sentido sur occidental bordeando este límite sur del seminario, hasta el punto que demarca el vértice del límite sur del seminario y cambia de sentido hacia el nor occidente, Punto 18; desde este punto, en sentido el nor occidente, hasta su intersección con el límite nor oriental del predio identificado con número catastral 00030083, Punto 19; desde este punto, en sentido nor occidental, por el límite de este predio, hasta su intersección con el predio 0000300076, vertice, Punto 20; se continua en dirección nor oriental por el costado de este predio, hasta su límite con el predio 0000300012, Punto 21; desde este punto en dirección nor occidental se continua por el costado norte de los predios 0000300076, 0000300025, 0000300072, 0000300073, 0000300026, 0000300029, Punto 22; desde este punto se continua por el límite de los predios 0000300030, 0000300038, hasta llegar al límite con el predio 0000300032, Punto 23; se continua por la línea sur oriental que delimita los predios 0000300032, 0000300033 y 0000300040, hasta la intersección con la carrera 7, Punto 24; desde este punto y hacia el sur occidente por eje de la vía de la carrera 7 hasta su intersección con la calle 2, Punto 25; desde este punto, en sentido nor occidental, en línea recta continuando por el eje de la vía calle 2, hasta su intersección con el eje de la vía carrera 6, Punto 26; desde este punto en sentido sur occidental, en línea recta por el eje de la vía carrera 6, hasta su intersección con el eje de la vía calle 9, Punto 27; desde este punto en sentido nor occidental, en línea recta, por el eje de la vía calle 9, hasta su intersección con el eje de la vía, carrera 5, Punto 28; desde este punto en sentido sur occidental, por el eje de la vía carrera 5, hasta su intersección con la prolongación del límite sur occidental del predio 007000017, Punto 29; desde este punto, en sentido nor occidental bordeando el límite sur occidental de los predios 007000017, 007000016, 007000097 (Edificación que alberga el Templo Nuestra Señora del Inmaculado Corazón de María), 007000105 y 007000071, hasta la intersección de la prolongación del límite sur occidental de este último predio 007000071, con la carrera 4, Punto 30; desde este punto en sentido nor oriental, por el eje de la vía carrera 4, hasta su intersección con el eje de la vía calle 9, Punto 31; desde este punto en sentido nor occidental, en línea recta por el eje de la vía calle 9, hasta su intersección con la carrera 2, Punto 32; desde este punto, en sentido nor oriental por el eje de la vía carrera 2, hasta su intersección con la calle 8, Punto 33; desde este punto en sentido nor occidental, en línea recta, por el eje de la vía calle 8, hasta su intersección con el eje de la vía carrera 1, Punto 34; desde este punto en sentido nor oriental, en línea recta por el eje de la vía carrera 1, se encuentra el Punto 35, en intersección con la prolongación del límite noroccidental del predio 0003200011, continuando por el eje de la vía carrera 1 hasta su intersección con el eje de la vía calle 4, Punto 36; desde este punto en sentido nor occidental, en línea recta por esta vía, hasta su intersección con la prolongación del límite nor occidental, esquina, de la edificación que alberga la escuela de la Madre Laura, predio 001800016, Punto 37; desde este punto en sentido nor oriental, en línea recta bordeando este límite de la edificación de la escuela de la Madre Laura, hasta su intersección con el límite nor oriental, esquina, de esta misma edificación, Punto 38; desde este punto en sentido sur oriental, bordeando el perímetro límite de esta edificación y proyectado, hasta su intersección con el eje de la vía carrera 1, Punto 39; desde este punto en sentido nor oriental, en línea recta, por el eje de la vía carrera 1, hasta su intersección con el eje de la vía calle 3, Punto 40; desde este punto en sentido sur oriental, en línea recta, por el eje de la vía calle 3, hasta su intersección con el eje de la vía carrera 1 A, Punto 41; desde este punto en sentido nor oriental, en línea recta, por el eje de la vía carrera 1 A, hasta su intersección con el límite nor occidental del predio 001100051, Punto 42; desde este punto en sentido nor occidental bordeando este límite nor occidental hasta su intersección con el límite norte, esquina, de este mismo predio 001100051, Punto 43; desde este punto, en sentido nor oriental, en línea recta, bordeando este límite en toda su extensión, hasta la intersección de su prolongación con eje de la vía calle 1, salida a Medellín, Punto 44; desde este punto, en sentido oriental y sur oriental por el eje de esta vía, hasta su intersección con el Punto 1, punto de partida. A continuación se expone el plano con la delimitación de puntos arcifinios de los perímetros del Centro Histórico de Jericó, Antioquia, cuyas coordenadas se presentarán en formato Anexo A al presente documento Técnico de Soporte –DTS- de Formulación del PEMP del Centro Histórico de Jericó y su Zona de Influencia.
A continuación se describen las Manzanas y Predios que conforman el área definida dentro del Perímetro del Centro Histórico de Jericó, Antioquia: Tabla 1... Manzanas y predios que conforman el área definida dentro del perímetro del Centro Histórico de Jericó

A continuación se describen las Manzanas y Predios que conforman el área definida dentro del Perímetro del Centro Histórico de Jericó, Antioquia: Tabla 1... Manzanas y predios que conforman el área definida dentro del perímetro del Centro Histórico de Jericó




3.5 ZONA DE INFLUENCIA CENTRO HISTÓRICO
La propuesta de perímetro de la zona de influencia delimita el área circundante al Centro Histórico, en algunos casos, o próximo a éste en otros casos, área requerida para la conservación, recuperación, sostenibilidad de los valores del Centro Histórico y la mitigación de impactos naturales, o físico espaciales, derivados de las dinámicas de crecimiento constructivo, sobre el conjunto de Bienes de Interés Cultural –BIC-que conforman el Centro Histórico de Jericó.
La propuesta del perímetro de la Zona de Influencia, obedece a la inclusión de áreas que representan una potencialidad para la preservación de los valores del Centro Histórico, como es el caso de la ubicación estratégica del lote previsto para solucionar el problema del impacto de la movilidad, sobre los bienes inmuebles del C.H., referida a la terminal de transporte, o las áreas de futuro desarrollo que requieren direccionamiento normativo, para que aporten a la adecuada contextualización del Centro Histórico o áreas de riesgo natural para la realización de acciones que minimicen riesgos que puedan afectar tanto bienes de interés cultural individuales, sectores o al conjunto del centro histórico como tal.
La delimitación de los Perímetros que conforman la Zona de Influencia, del Centro Histórico, se describe en primer lugar para el polígono del costado oriental, y posteriormente el polígono de los costados sur occidente y norte del Centro Histórico:
Polígono 1: localizado al nororiente del casco urbano del Municipio inicia su descripción en el Punto 88, localizado en la confluencia de los predios 0000200138, 0000200164 y 000020052, localizado entre la vía Circunvalar y la carrera 6; desde este punto (punto 88), se continua por el límite norte del predio 000200052, Monasterio de Santa Clara, en sentido oriente, hasta la intersección con el eje de la vía Circunvalar, Punto 89; desde este punto, por el eje de la vía circunvalar, en sentido sur oriental hasta la intersección con la prolongación del límite oriental del predio 000200052, Monasterio de Santa Clara, Punto 90; desde este punto, por este límite en sentido sur occidental, hasta la intersección con el límite norte del predio 010300099, vértice, Punto 91; por el límite nororiental del predio 010300099, en sentido sur oriental, hasta la intersección de su prolongación con el eje de la vía carrera 8, Punto 92; desde este punto en sentido nor oriental, por el eje de la vía carrera 8, hasta su intersección con el eje de la vía calle 2N, Punto 93; desde este punto, por el eje de la vía calle 2N, hasta la intersección con el límite occidental del predio 000200012, Punto 94; desde este punto, por el límite occidental del predio 000200012, en sentido sur hasta la intersección con el límite nor occidental, vértice, del predio 000200017, Punto 95; desde este punto en sentido oriental bordeando el límite norte de los predios 000200017, 000200016, 000200014, 000200013 hasta la intersección de la prolongación del límite norte del predio 000200013 con el eje de la vía carrera 10, Punto 96; desde este punto por el eje de la vía carrera 10, en sentido sur hasta su intersección con el eje de la vía calle 1, Camino del Estado, Punto 97; desde este punto, en sentido sur occidental, atravesando la vía calle 1, hasta la intersección, con el eje de la vía carrera 10, Punto 98; desde este punto y continuando por el eje de esta vía carrera 10, en sentido sur hasta su intersección con la prolongación del límite sur del predio 010600001, Punto 99; desde este punto, en sentido occidental, bordeando el límite sur de los predios 010600001 y 010600002, hasta la intersección entre la carrera 9 A y la prolongación del límite sur del edificio del cementerio predio 0003000018, Punto 15; desde este punto en sentido occidental, bordeando el límite sur del edificio del cementerio hasta la intersección con el límite sur occidental, esquina, del predio 0003000018, Punto 16; desde este punto, en sentido norte, en línea recta, hasta su intersección con el límite sur oriental, esquina, del predio 000300017, Seminario, Punto 17; desde este punto en sentido sur occidental bordeando este límite sur del seminario, hasta el punto que demarca el vértice del límite sur del seminario y cambia de sentido hacia el nor occidente, Punto 18; desde este punto, en sentido nor occidente, hasta su intersección con el límite nor oriental del predio identificado con número catastral 000300083, Punto 19;desde este punto, por el límite sur oriental del predio 000300083, en sentido sur occidental, hasta la intersección del límite sur occidental, vértice del predio 000800029, Punto 101, desde este punto, en sentido sur oriental, por la línea que demarca el retiro de 80 m, medido desde las edificaciones que conforman el Seminario Conciliar y El Cementerio, respectivamente, cordón fitosanitario, hasta la intersección de esta línea de retiro con el eje de la vía carrera 9 A, Punto 100; desde este punto, y pasando por el Punto 15, se continua por el eje de la vía carrera 9 A, en sentido nor oriente hasta la intersección con el eje de la vía calle 1 Camino del Estado, Punto 14; desde este punto, por el eje de la vía calle 1, hasta la intersección con el eje de la vía carrera 9, Punto 13; desde este punto por el eje de la vía carrera 9, en sentido norte hasta la intersección con el límite sur del predio 000200168, Punto 12; desde este punto en sentido occidental bordeando el límite norte de los predios 000200020, 0002000025, 000200028, 000200030, 000200031, 000200032, 000200034, 000200035, 0002000036, 0002000037, 000200038, 000200150, hasta la intersección de la prolongación del límite norte del predio 000200150 con el borde de la vía carrera 8, Punto 11; desde este punto atravesando esta vía carrera 8, en sentido noroccidente, hasta la intersección con el límite sur del predio 000200099, Punto 10; desde este punto en sentido nor occidental bordeando el límite norte de los predios, 000200041, 000200042, 000200043, 000200044, 000200045, 000200046, 000200047, 000200048, 000200049, 000200050, 000200051, 000200052, 000200079, 000200053, 000200080, Punto 9; desde este punto en sentido nor occidental, bordeando el límite nor oriental de los predios 000200080, 000200054 y 000200055, hasta su intersección con el límite norte del predio 000200055, Punto 8; desde este punto en sentido sur occidente por el límite nor occidental del predio 000200055, hasta la intersección con el límite nor oriental del predio 000200056, Punto 7; desde este punto en sentido nor occidental bordeando el límite nor oriental los predios, 000200056, 000200057, 000200058, 000200059, 000200060 y 000200061 hasta su intersección con el límite sur del predio 000200076, vértice, Punto 6; desde este punto en sentido nor occidental hasta su intersección con el límite oriental del predio 000200076, vértice, Punto 5; desde este punto en sentido, nor occidental bordeando el límite nor oriental del predio 000200076 hasta la intersección de la prolongación de este límite, con el eje de la vía carrera 6, Punto 4; desde este punto, en sentido nor oriental, por el eje de la vía carrera 6, hasta la intersección con el eje de la calle 2N, Punto 3; ascendiendo en dirección norte por calle 2N hasta encontrar la línea de limite urbano Punto 2; desde este punto y siguiendo la línea de perímetro urbano, luego de un recorrido de 50 m, se llega al Punto 102; en sentido sur se desciende conservando un retiro de 50 m a la calle 2N hasta el vértice nororiental del predio 0007100011, Punto 103; de este predio se desciende en dirección sur occidente por el límite inferior de este predio, hasta llegar al vértice nor occidental del predio 0007100008, Punto 104; se continua por el límite de los predios 0007100008 y 0007100009 hasta interceptar la carrea 6, Punto 105; se desciende por la carrera 6 hasta la prolongación del límite nor oriental del predio 0000200139 Punto 106; por el limite nor oriental de este predio, hasta el encuentro con el predio 0000200164, Punto 107; se desciende en sentido sur occidente por el límite de estos dos predios, hasta toparse con el límite del predio 0000200138 Punto 108; se continua en sentido sur oriente, por el límite de los predios 0000200138 y 0000200164, hasta encontrar el Punto 88; punto de partida del polígono 1. Ver plano.
Polígono 2: Localizado al sur del morro del Salvador, entre las calles 1 y 2. Inicia su descripción en el Punto 20; vértice sur del predio 0000300076, se continua en dirección nor oriental por el costado de este predio, hasta su límite con el predio 0000300012, Punto 21; desde este punto en dirección nor occidental se continua por el costado norte de los predios 0000300076, 0000300025, 0000300072, 0000300073, 0000300026, 0000300029, Punto 22; desde este punto se continua por el límite de los predios 0000300030, 0000300038, hasta llegar al límite con el predio 0000300032, Punto 23; se continua por la línea sur oriental que delimita los predios 0000300032, 0000300033 y 0000300040, hasta la intersección con la carrera 7, Punto 24; desde este punto y hacia el sur occidente por eje de la vía de la carrera 7 hasta su intersección con la calle 2, Punto 25; se continua por el eje de la vía de la calle 2, hasta encontrar el Punto 20 donde cierra este polígono.
Polígono 3: Inicia en la esquina norte de la manzana 0007, en la intersección del eje de la vía carrera 6 con el eje de la vía calle 2, Punto26, punto de partida; desde este punto en sentido sur oriente, por el eje de la vía calle 2, hasta su intersección con el eje de la vía carrera 7, Punto25; desde este punto en sentido sur occidente, por el eje de la vía carrera 7, hasta su intersección con la prolongación del límite nor oriental del predio 002400020, Punto41A; desde este punto, en sentido sur oriente, bordeando el límite nor oriental del predio 002400012, por vía peatonal, vértice, Punto 42A; desde este punto en sentido sur occidental, por el límite del predio 00002400012, hasta la intersección con la proyección del eje de la vía peatonal, Punto 43A; desde este punto por el eje de la vía peatonal de acceso a los predios 002400012, 002400037, 002400011, 002400010 y 002400046, hasta la intersección con el límite oriental 002400045, vértice, Punto 44A; desde este punto, por el límite oriental del predio 002400045, en sentido sur, hasta la intersección de la prolongación de este lindero con el eje de la vía Circunvalar, Punto 45; desde este punto, por el eje de la vía Circunvalar, en sentido occidental, hasta la intersección con los ejes de las vías carrera 5 A y 7B, Punto 46; desde este punto en sentido sur occidental por el eje de la vía carrera 7B, hasta su intersección con el eje de la vía calle 9, Punto 47; desde este punto en sentido nor occidente, por el eje de la vía calle 9, hasta su intersección con el eje de la vía carrera 7, Punto 48; desde este punto en sentido sur occidental, por el eje de la vía carrera 7, hasta su intersección con el eje de la vía carrera 9 A, Punto 49; desde este punto en sentido nor occidental, por el eje de la vía carrera 9 A, hasta su intersección con el eje de la vía carrera 6, Punto 50; desde este punto en sentido noroccidental, en el línea recta hasta la intersección entre la prolongación del límite occidental del predio 006100027, con el límite sur del predio 006100028, vértice, Punto 51; desde este punto en sentido sur occidental, bordeando el límite sur oriental del predio 006100003 hasta su intersección con la quebrada Valladares, Punto 52; desde este punto, aguas abajo por la quebrada Valladares, hasta su intersección con el límite sur oriental del predio 0006100031, Punto 53; desde este punto, bordeando el límite sur de los predios 0006100031 y 0006100001 (Hospital), hasta la intersección con la vía calle 10, Punto 54; desde este punto en sentido sur occidente, atravesando la vía calle 10, hasta su intersección con el límite nor oriental del predio 0010400015 Punto 55; desde este punto en sentido sur occidental, bordeando el límite oriental de los predios 010400015, 010400010, 010400009, 010400008, 010400007, 010400006, 010400005, 010400021, 010400022 y 010400001, hasta la intersección de la prolongación del límite sur de este último predio (0010400001), con la vía calle 11, Punto 56; desde este punto, en sentido sur occidente, atravesando la vía calle 11, hasta su intersección con el límite norte del predio 010500102, Punto 57; desde este punto en sentido oriental bordeando el límite nor oriental del predio 010500102, hasta encontrar el vértice que define el límite oriental de este mismo predio, Punto 58; desde este punto en sentido sur occidental bordeando el límite oriental de los predios 010500102, 010500098, 010500025, 0010500024, hasta su intersección con la quebrada Pinillos, Punto 59; desde este punto en sentido nor occidental aguas arriba por la quebrada Pinillos, hasta su intersección con la carrera 5, Punto 60; desde este punto, atravesando la vía carrera 5 en sentido norte, hasta su intersección con la quebrada Pinillos, Punto 61; desde este punto en sentido nor occidental continuando aguas arriba, por la quebrada Pinillos, hasta su intersección con la carrera 3, Punto 62; desde este punto, en sentido nor oriental, por el eje de la vía carrera 3, hasta su intersección con la quebrada Valladares, Punto 63; desde este punto, en sentido nor occidental aguas arriba por la quebrada Valladares, hasta su intersección con la vía carrera 1, Punto 64; desde este punto en sentido nor oriental por el eje de la vía carrera 1, hasta su intersección con la prolongación del límite sur occidental del predio 004600011, Punto 35; desde este punto en sentido nor oriental, bordeando el límite occidental del predio 004600011, hasta el punto de quiebre de este lindero donde toma la dirección norte, Punto 65; desde este punto en dirección norte, siguiendo por el lindero del predio 004600011, hasta su intersección con el límite occidental (vértice) del predio 004600005, Punto 66; desde este punto, en sentido nor occidental por el lindero sur occidental de los predios 004600005, 004600004, 004600003, 004600002, 004600001, hasta el límite sur occidental (vértice) del predio del 004600001, Punto 67; desde este punto, en sentido nor oriental, bordeando el límite occidental del predio 004600001, hasta su intersección con la vía calle 7, Punto 68; desde este punto en sentido oriental atravesando la vía calle 7, hasta su intersección con el límite sur occidental del predio 003200012, Punto 69; desde este punto, en sentido nor oriental, bordeando el límite occidental del predio 003200012, hasta su intersección con el límite norte de este mismo predio, punto de quiebre hacia el sur oriente, Punto 70; desde este punto en sentido sur oriental, hasta su intersección con el límite occidental (vértice) del predio 003200003, Punto 71; desde este punto, en sentido nor oriente, bordeando el límite nor occidental de los predios 003200003, 003200002, 003200001 y 003200016, hasta la intersección del límite norte de este último predio 003200016, con la vía calle 6, Punto 72; desde este punto en sentido norte, atravesando la vía calle 6, hasta su intersección con el límite occidental del predio 003200013, Punto 73; desde este punto en sentido nor oriental bordeando el límite nor occidental del predio 003200013,hasta encontrar el límite norte (vértice) de este mismo predio 003200013, punto de quiebre hacia el sur oriente, Punto 74; desde este punto en sentido sur oriente, bordeando el límite nor oriente del predio 003200013, hasta su intersección con el límite occidental del predio 003200006 (vértice), Punto 75; desde este punto en sentido nor oriental bordeando el límite occidental de los predios 003200006 y 003200005, hasta la intersección con el límite occidental del predio 003200004 (vértice), Punto 76; desde este punto en sentido nor occidental bordeando el límite sur occidental de los predios 003200002 y 003200001, hasta la intersección con el límite occidental del predio 003200001 (vértice), punto de quiebre del límite hacia el nor oriente, Punto 77; desde este punto bordeando el límite nor occidental del predio 003200001, hasta la intersección de la prolongación de este límite, con el eje de la vía calle 5, Punto78; desde este punto, en sentido nor occidental, por el eje de la vía calle 5, hasta su intersección con la prolongación del límite nor occidental del predio 001800015, Punto 79; desde este punto, en sentido nor oriental, bordeando el límite nor occidental del predio 001800015, hasta la intersección con el límite sur occidental del predio 001800014, Punto 80; desde este punto en sentido nor occidental, hasta su intersección con el límite occidental del predio 001800014 (vértice), punto de quiebre, Punto 81; desde este punto en sentido nor oriental bordeando el límite nor occidental del predio 001800014 hasta su intersección con el límite norte (vértice), punto de quiebre con dirección sur oriente del predio 001800014, Punto 82; desde este punto en sentido sur oriental hasta la intersección con el límite occidental del predio 001800002 (vértice), Punto 83; desde este punto en sentido nor oriente bordeando el límite norte del predio 001800002, hasta su intersección con el límite nor oriental del predio 001800002, punto de quiebre hacia el suroriente, Punto 84; desde este punto, en sentido sur oriente, hasta su intersección con el límite nor occidental del predio 001800001, Punto 85; desde este punto en sentido nor oriente bordeando el límite norte de los predios 001800001 y 001800013, hasta la intersección del límite oriental (vértice) del predio 001800013, Punto 86; desde este punto en sentido sur, bordeando el límite oriental del predio 001800013, hasta la intersección de la prolongación de este límite con el eje de la vía calle 1, salida a Medellín, Punto 87; se continua en dirección oriente por la call1, hasta encontrar el límite occidental del predio 0007300002, Punto 87A; desde este punto se continua en dirección norte por el límite de dicho predio, hasta encontrar la línea que se define como perímetro urbano, Punto 87B; desde este punto se continua en dirección oriente en línea recta por el perímetro urbano hasta encontrar el Punto 1, donde se da inicio a la descripción del límite interno del polígono 3 coincidente con el perímetro del centro histórico en esta zona. Desde este Punto 1 en sentido sur occidental por el eje de la vía calle 1, salida Medellín, hasta la intersección del eje de esta vía con la prolongación del límite oriental del predio 001700011, Punto 44; desde este punto en sentido sur occidental bordeando el límite de los predios 001700011 y 001700001, hasta su intersección con la vía calle 2, Punto 43; desde este punto en sentido sur oriental hasta la intersección del límite occidental del predio 001100051, Jardín Botánico, con el eje de la vía carrera 1 A, Punto 42; desde este punto en sentido sur occidental, por el eje de la vía carrera 1A, hasta su intersección con el eje de la vía calle 3, Punto 41; desde este punto en sentido nor occidental por el eje de la vía calle 3, hasta la intersección con el eje de la vía carrera 1, Punto 40; desde este punto en sentido sur occidental por el eje de la vía carrera 1, hasta la intersección con la prolongación del límite oriental de la edificación que alberga la escuela Madre Laura, Punto 39; desde este punto en sentido nor occidental bordeando el límite nor oriental de la edificación de la escuela Madre Laura, hasta el límite norte (vértice), punto de quiebre en sentido sur occidental, Punto 38; desde este punto en sentido sur occidente bordeando el límite noroccidental de la edificación de la escuela Madre Laura, hasta la intersección de su prolongación con el eje de la vía calle 4, Punto 37; desde este punto, en sentido sur oriente por el eje de la vía calle 4, hasta la intersección con el eje de la vía carrera 1, Punto 36; desde este punto en sentido sur occidental, por el eje de la vía carrea 1, hasta la intersección con la prolongación del límite sur occidental del predio 004600011, Punto 35; desde este punto en sentido sur occidental, continuando por el eje de la vía carrera 1, hasta la intersección con el eje de la vía calle 8, Punto 34; desde este punto en sentido sur oriente, por el eje de la vía calle 8, hasta la intersección con la carrera 2, Punto 33; desde este punto en sentido sur occidental, hasta la intersección con la calle 9, Punto 32; desde este punto, en sentido sur oriental por el eje de la vía calle 9, hasta la intersección con el eje de la vía carrera 4, Punto 31; desde este punto en sentido sur occidental, por el eje de la vía carrera 4, hasta la intersección con la prolongación del límite sur occidental del predio 005300071, Punto 30; desde este punto en sentido sur oriental bordeando el límite occidental de los predios los predios 005300071, 005300105, 005300097, 005300015 y 005300017, hasta la intersección de la prolongación del límite occidental de este último predio 00530017, con el eje de la vía carrera 5, Punto 29; desde este punto en sentido nor oriental, por el eje de la vía carrera 5, hasta su intersección con el eje de la vía calle 9, Punto 28; desde este punto, en sentido sur oriente, por el eje de la vía calle 9, hasta su intersección con el eje de la vía carrera 6, Punto 27; desde este punto en sentido nor oriental por el eje de la vía carrera 6, hasta su intersección con el eje de la vía calle 2, punto 26, punto de partida.

A continuación se describen las manzanas y predios que conforman el área definida dentro del perímetro de la Zona de Influencia del Centro Histórico de Jericó, Antioquia. Se anota, que dos áreas en el costado al oriente del Morro El Salvador y en el costado sureste del Seminario se estima una franja de 100 m rodeando los predios correspondientes. Parte de la franja se encuentra en zona rural y afecta en proporciones diferentes a diversos predios.
Tabla 2... Manzanas y predios que conforman el área definida dentro del perímetro de la zona de influencia del Centro Histórico de Jericó.



A continuación se muestra la gráfica síntesis del número total de manzanas y predios que conforman el Centro Histórico de Jericó y la Zona de Influencia.
Tabla 3... Indicador número de manzanas y predios en centro histórico y zona de influencia

A continuacion, se expone las imagenes que ilustran la demarcacion de las areas incluidas en cada uno de estos perimetros y finalmanete la tabla que contiene los puntos y sus respectivas coordenadas.


Tabla 4. Coordenadas de los puntos perimetros centro historico y zona de Influencia




4. NIVELES DE CONSERVACIÓN DIRIGIDOS A LAS INTERVENCIONES PERMITIDAS
4.1 ANTECEDENTES
Conforme se indicó en el numeral propuesta de delimitación del perímetro del Centro Histórico- CH- y Zona de Influencia –ZI-, El Esquema de Ordenamiento Territorial para Jericó, Antioquia, Acuerdo Municipal 02 de 2010, estableció en el Capítulo V, Suelo de Protección, Artículo 19, Categorías de las áreas destinadas a Suelo de Protección, numeral 1) Suelo Urbano de Protección, literal f) Inmuebles de patrimonio arquitectónico y cultural. De igual forma y en este mismo Artículo 20, numeral 6) Identifica los inmuebles patrimonio arquitectónico y cultural.
El análisis de antecedentes permitió deducir que el perímetro (Colcultura, 1981), se fundamentó en su momento en la selección de Inmuebles de Carácter Monumental, con altos estándares de valoración, razón por la cual, en el plano del E.O.T, asumen para estos inmuebles la declaratoria de carácter nacional, así mismo establece que los inmuebles fuera de estos perímetros tres (3) inmuebles con declaratoria de carácter municipal (Monasterio de Las Clarisas, El Seminario y la actual sede de la Escuela madre Laura).
Finalmente se establece un tercer grupo de inmuebles, también fuera de estos perímetros, con la denominación "inmuebles en transición", sin embargo, entre la clasificación del plano protocolizado y el texto del Acuerdo Municipal 02 de 2010 no existe correlación, situación que se presta para ambigüedades al momento de la aplicación de la normativa y el control urbanístico y que será corregida con la delimitación de perímetros y la asignación de niveles de conservación.
Considerando que el ejercicio de valoración estética permitió reconocer atributos de calidad artística, de diseño, composición, técnica de elaboración o construcción, así como en las huellas de utilización y uso dejadas por el paso del tiempo, entre otras, se puede concluir de manera general, que las edificaciones de arquitectura tradicional del Centro Histórico de Jericó y su Zona de Influencia, catalogadas por el PEMP de Jericó 2014, en los niveles de conservación Integral y Arquitectónico, destinadas a diferentes usos, se caracterizan por la prevalencia de condiciones apropiadas de habitabilidad conforme se precisó en el diagnóstico, y que se evidencian en:
Una adecuada implantación en el contexto guardando alineamientos verticales y horizontales de estricta paramentalidad salvo raras excepciones; con predominio de lotes regulares rectangulares, que aprovechan la pendiente del terreno para disponer balcones y patios interiores con visuales hacia el paisaje circundante; adecuada relación espacial exterior - interior con la disposición de vanos de puertas y ventanas sobre el espacio público; accesos exteriores vinculados a esquemas de circulación interior, desarrollados con facilidad, utilidad y comodidad, a través de corredores dispuestos alrededor de patios, o lo largo de los mismos, en torno a los cuales a su vez, se vinculan y distribuyen los espacios interiores: habitaciones, áreas sociales y de servicios.
El principal atributo de esta distribución espacial, es garantizar la iluminación y ventilación directa y de forma natural, a través de fachadas, patios interiores y solares, de todos los espacios interiores de las edificaciones. La amplitud en las dimensiones de largos, anchos y alturas en los espacios interiores, denotan comodidad y confort.
Se evidencian técnicas constructivas tradicionales, tales como muros en tapia, en bahareque o combinado en tapia y bahareque; predominan los pisos de las habitaciones y zonas sociales en madera de comino crespo o nogal, los corredores y la cocina en baldosa monocolor; solares engramados, arborizado y con huertas caseras; techos en teja de barro, dispuestos sobre armazón de madera y esterilla algunos con cielo rasos ornamentados y en general se presenta un predominio del buen estado de conservación de las edificaciones y una cuidadosa elaboración de la ornamentación de los elementos compositivos de puertas, contra portones, ventanas, aleros, pasamanos, balcones, entre otros destacados en el conjunto arquitectónico.
4.2 PROPUESTA NIVELES DE CONSERVACIÓN
4.2.1 Justificación
La propuesta de asignación de Niveles de Conservación dirigidos a las posibles intervenciones, pretende en comienzo reconocer y validar los esfuerzos de la administración municipal consignados en sus instrumentos de ordenamiento territorial; actualizar tales disposiciones normativas ajustándolas tanto al ejercicio de formación catastral adelantado por el municipio (Formación Catastral 2013), en tanto, el Plan Especial de Manejo y Protección del Centro Histórico de Jericó, está dirigido a bienes inmuebles, y a la actualización normativa, la cual, debe ajustarse a los preceptos establecidos en legislación vigente en materia de patrimonio cultural inmueble, con el objetivo de facilitar su comprensión, aplicación y consolidación desde el Municipio, al sistema de patrimonio cultural inmueble(9).
Tales ajustes se precisan en un instrumento normativo de fácil entendimiento, manejo y aplicación, que parten de una clara diferenciación de: definiciones y conceptos inherentes a cada nivel de conservación, acordes con la caracterización respectiva de cada inmueble valorado; una vez definido el concepto se remite a los procedimientos y las posibles intervenciones, dirigidas en todo caso, a su protección y permanencia en el tiempo.
Conceptualización: en primer lugar es indispensable establecer el concepto de cada una de las categorías de "Niveles de Conservación", acorde con su respectiva caracterización, e independizarlo de las intervenciones posibles y los objetivos, entre otros, para efectos de claridad y entendimiento. Una vez definido el concepto de cada categoría del "Nivel de Conservación", se establecen las intervenciones mínimas establecidas en la legislación vigente, así como las intervenciones generales permisibles en cada nivel de conservación con miras a la conservación de sus valores.
4.2.2 Propuesta de Niveles de Conservación, Dirigidos a Posibles Intervenciones
A continuación se exponen los niveles de conservación, a partir del concepto que caracteriza cada Nivel de Conservación y se efectúa un paralelo entre el Esquema de Ordenamiento Territorial -EOT -para Jericó, Antioquia, Acuerdo Municipal 02 de 2010, Artículo 76: "Categorías de Intervención" y la Propuesta de Actualización acorde con la legislación, normatividad vigentes y la situación actual de los inmuebles del Centro Histórico de Jericó, derivada del ejercicio de valoración adelantada dentro del proceso de formulación del PEMP CH 2014:
4.2.2.1 Nivel 1 Integral (N1)
En este nivel se incluyen los inmuebles del grupo arquitectónico caracterizado por su excepcional valor, por ser irremplazables y por tanto deben ser preservados en su integralidad, en los cuales, cualquier intervención puede poner en riesgo sus valores e integridad, por lo que las obras deben ser legibles y dar fe del momento en el que se realizaron.
En cuanto a las posibles intervenciones, siempre y cuando el inmueble lo permita, se podrán realizar ampliaciones, en función de promover la revitalización y sostenibilidad del bien.
Tabla 5... Propuesta niveles de conservación PEMP CH 2014- N1 INTEGRAL

En la siguiente tabla se especifican las manzanas y predios del Centro Histórico- CH y la Zona de Influencia –ZI, con Nivel de Conservación Integral:
Tabla 6... Nivel de conservación integral, N1, manzanas y predios del centro histórico y la zona de influencia

Son 59 predios que corresponden a 41 inmuebles clasificados de la siguiente manera.


4.2.2.2 Nivel 2 del Tipo Arquitectónico (N2)
Se aplica a inmuebles con características representativas en términos de implantación predial, volumetría, distribución espacial y ornamentación, las cuales deben ser conservadas. Se permite la modificación de los espacios internos del inmueble, siempre y cuando se mantenga la autenticidad de su estructura espacial: disposición de accesos, vestíbulos, circulaciones horizontales y verticales.
Tabla 8... Propuesta niveles de conservación PEMP CH 2014-N2: ARQUITECTÓNICO

En la tabla siguiente se especifican las manzanas y predios del Centro Histórico y la Zona de Influencia con Nivel de Conservación Arquitectónico.
Tabla 9. Nivel de conservación arquitectónico N2, manzanas y predios del Centro Histórico y la Zona de Influencia


Algunos de los predios tiene subdivisiones pero pertenecen a un mismo inmueble, según la clasificación se tendrían:


4.2.2.3 Nivel 3 Contextual (N3)
En este nivel se incluyen los inmuebles caracterizado por carecer de características arquitectónicas representativas, sin embargo, son inmuebles esenciales en la búsqueda de la implantación armónica en el contexto urbano patrimonial, en tanto que, en este grupo se encuentran inmuebles compatibles e incompatibles con el contexto en el cual se insertan, así como predios sin construir.
El E.O.T denomina este nivel como "Reestructuración" y separa una cuarta categoría, denominándola "Nueva Edificación". La propuesta específica del PEMP 2014, para este nivel de conservación es adoptar la definición legalmente establecida y reconocer los subgrupos particularmente encontrados en el área Urbana del Municipio de Jericó en aras de la aplicación de una norma que permita un "continum" urbano que es de destacar:
Construcción Tradicional o Nueva Compatible (N3-C), Tradicional o Nueva Incompatible (N3-I), y Lote (N3-L) (predios sin construcción). Con esta clasificación, se busca, de un lado, reconocer numerosos ejemplos de esfuerzos por armonizar con el contexto y de otro lado orientar la adecuada inserción en el contexto, de los inmuebles con edificaciones incompatibles (demolición-adecuación) y de las nuevas edificaciones. Son 1203 predios de un total de 1377 registros
Tabla 11... Propuesta niveles de conservación PEMP CH 2014- N3: CONTEXTUAL


- Sub grupo Contextual Compatible N3-C
Este grupo está conformado por edificaciones tradicionales o nuevas, que si bien carecen de cualidades y características arquitectónicas representativas, por haber sido transformadas, aún son compatibles con el contexto en el cual se insertan, alturas, lenguajes de vanos, aleros, cubiertas, zócalos. En esta definición se aclara que en la aproximación al centro histórico de Jericó 2014, se encontraron gran cantidad de ejemplos de intervenciones acertadas, en términos de compatibilizar con el contexto, tanto en edificaciones individuales, como en conjuntos de vivienda de interés social, que denotan homogeneidad arquitectónica y urbanística. Los predios clasificados como N3- C son 545 predios en total, 308 en CH y 237 predios se encuentran en ZI.
- Subgrupo Contextual Incompatible N3-I
Este grupo está conformado por edificaciones tradicionales o nuevas que si bien carecen de cualidades y características arquitectónicas representativas, son incompatibles con el contexto en el cual se insertan. por tanto, son susceptibles de demolición parcial o total con el objetivo de compatibilizar o armonizar con el contexto patrimonial de ubicación. Se aclara que muchas de las edificaciones son el resultado de subdivisiones de predios que no alcanzan un mínimo del área en frente, ni fondo y/o sus intervenciones se presentan con lenguajes nuevos o foráneos al contexto municipal. Son 535 predios N3-I, 261 en Centro Histórico y 274 en ZI.
- Subgrupo Lote N3-L (predio sin construcción)
Este grupo está conformado por inmuebles carentes de edificación, por tanto se constituyen en potenciales para el desarrollo de edificaciones dirigidas a compatibilizar o armonizar con el contexto específico donde se localizan. Se marcaron igualmente los lotes asignados como vías, servidumbre, canchas los predios son 102 predios.
A continuación se especifican las manzanas y predios del Centro Histórico y la Zona de Influencia con Nivel de Conservación Contextual.
Tabla 12... Nivel de conservación contextual N3-C manzanas y predios del Centro Histórico y la Zona de Influencia



En la siguiente tabla se listan los predios del nivel contextual "incompatible" (N3-I), que por efecto de la afectación aparece como contextual y debera cumplir la normativa en los casos de nuevas licncias, reformas o demolición. No seran objeto de compensaciones.



Finalmente se incluye los listado con los predios y construcciones resultado de particiones que se ubican en centros de manzana, que carecen de frente a la vía pública a la cual se vinculan exclusivamente por puerta de acceso y zaguan o a través de corredores. Así mismo, queda pendiente una verificación de estos centros, pues se encontraron inconsistencias con catastro 2013. Las cualidades especiales de la topografia y emplazamiento del area urbana de Jericó, merece especial cuidado con los lotes de borde, como con los centos de manzana, pues la tipologia de vivienda se desarrolla con visuales amplias hacia éstos; y es evidente la obstrucción de algunas construcciones en altura con esta característica. Se ha denominado en algunos predios como zona de protección paísajistica.
Para el caso de los Lotes (N3-L) que pertenecen igualmente al gran grupo de N3 contextual, (predios sin construcción al momento de desarrollar el Plan Especial de Manejo y Protección), se listan en una tabla y se incluyen todos los predios que de una u otra forma se ven afectados por riesgos (movimiento de masa), zona de protección ambiental (franja qque se determina en el EOT para la protección de las quebradas que atraviezan el áea urbana), y franjas que se determinaron como zonas de influencia que merecen especial atención en el desarrollo de proyectos, pues afectan directamente el area considerada Centro Histórico. Para estos predios se aplicará la normativa desarrollada en el numeral de Las Condiciones de Manejo.



En la tabla siguiente se encuentran los predios en Centro Histórico y ZI que pertenecen a vías, servidumbres, canchas, parques infantiles, o zonas verdes de urbanizaciones consideradas como espacio público.



4.2.3 Consideraciones Generales Respecto a las Intervenciones en Bienes Inmuebles de Interés Cultural
Respecto a las intervenciones en Bienes de Interés Cultural declarados o que se pretendan declarar, es importante destacar, tres aspectos fundamentales a considerar en el proceso de manejo y gestión y que están regulados de forma detallada en la legislación vigente conforme se sintetiza a continuación a manera de ilustración.
4.2.3.1 Principios generales de intervención
Se refieren a las medidas mínimas básicas a considerar, para asegurar la permanencia y conservación de los Bienes Inmuebles de Interés cultural, al momento de una posible intervención, están regulados por el Artículo 40 del Decreto Nacional 763 de 2009, como se sintetiza a continuación:
Conservar los valores culturales del bien; efectuar la mínima intervención: acciones estrictamente necesarias para la conservación del bien, con el fin de garantizar su estabilidad y sanearlo de las fuentes de deterioro; tomar las medidas necesarias que las técnicas modernas proporcionen para garantizar la conservación y estabilidad del bien; permitir la reversibilidad de la intervención si en el futuro se considera necesario; respetar la evolución histórica del bien y abstenerse de suprimir agregados sin que medie una valoración crítica de los mismos; reemplazar o sustituir solamente los elementos que sean indispensables para la estructura. Los nuevos elementos deberán ser datados y distinguirse de los originales; documentar todas las acciones e intervenciones realizadas; las nuevas intervenciones deben ser legibles.
4.2.3.2 Intervenciones mínimas de bienes inmuebles de interés cultural
La Resolución 983 de 2010 del Ministerio de Cultura, regula los casos de intervenciones mínimas, que no requieren autorización previa, pero que en todo caso deben ser informadas por parte del propietario a la instancia que haya realizado la declaratoria del Bien de Interés Cultural y son las siguientes:
Limpieza superficial de fachadas sin productos químicos; Mantenimiento de pintura de interiores o exteriores, con excepción de superficies con pintura mural o papel de colgadura; Mantenimiento de cubiertas mediante acciones tales como limpieza, reposición de tejas e impermeabilizaciones superficiales que no afecten las condiciones físicas del inmueble y mantenimiento de canales, bajantes, y alfajías, entre otros; Además de las anteriormente enunciados, también son intervenciones mínimas, las siguientes:
Reemplazo de elementos de acabado, puntuales y en mal estado, así como de elementos no estructurales; Remoción de elementos ajenos a las características constructivas y arquitectónicas del bien; Obras de primeros auxilios, apuntalamiento de muros o elemento estructurales, sobrecubiertas y cerramientos provisionales que eviten el saqueo de elementos y/o partes del inmueble, carpinterías, ornamentaciones, bienes muebles, entre otros, siempre y cuando no alteren la integridad del bien.
4.2.3.3 Tipos de obras permisibles
El artículo 41 del Decreto Nacional 763 de 2009, establece detalladamente en qué consisten los tipos de obra permisibles, de acuerdo con los niveles de conservación (intervención), por tanto estos deben ser acatados conforme lo regula esta norma de superior jerarquía. En síntesis las obras permisibles de acuerdo con el nivel de conservación, previa autorización de la autoridad competente, son las siguientes:
Primeros auxilios obras urgentes en inmuebles en peligro de ruina, riesgo inminente, o que ha sufrido daños; Reparaciones Locativas: mantener las condiciones de higiene y ornato; Reforzamiento Estructural: consolidar la estructura a las normas de seguridad sismo - resistente; Rehabilitación o Adecuación Funcional: adaptar un inmueble a un nuevo uso, preservando de sus características; Restauración: recuperación y adaptación para conservar y revelar valores estéticos, históricos y simbólicos; Obra Nueva: construcción en terrenos no construidos; Ampliación: Incremento de área construida en edificación existente; Además de las anteriormente enunciadas, también son tipos de obra, las siguientes:
Consolidación: Fortalecimiento de una parte o de la totalidad del inmueble; Demolición: derribar total o parcialmente de una o varias edificaciones; Liberación: retirar adiciones o agregados que ocultan los valores y características del inmueble (implica las acciones de: Remoción, Reapertura de vanos, Retiro de elementos estructurales y no estructurales, Supresión de elementos constructivos u ornamentales); Modificación: variación del diseño arquitectónico o estructural; Reconstrucción: rehacer total o parcialmente la estructura espacial y formal; Reintegración: restituir elementos perdidos o a reemplazar por deterioro irreversible.
5. CONDICIONES DE MANEJO FÍSICO ESPACIALES
Las condiciones de manejo en el aspecto físico – técnico involucran una propuesta ambiental, una propuesta urbana general con varios proyectos, y una propuesta normativa.

5.1 PROPUESTA AMBIENTAL
5.1.1 Manejo de Zonas de Protección Ambiental y de los Sitios Naturales en la Zona del Centro Histórico
El área urbana del municipio de Jericó, se localiza en un sistema de planicies con declives longitudinales y transversales, delimitado al occidente por el escarpe rocoso formado por el cerro La Nubes y cubierto por vegetación protectora, donde se observan caídas de agua que dan origen a las quebradas La Merced, Don Tito, Valladares, y Pinillos, a las que el EOT (2010) les ha definido áreas de protección a partir de retiros, los cuales se cumplen parcialmente en algunas zonas rurales, mas no en las relacionadas con el casco urbano.
Las planicies inclinadas donde se localiza el área urbana corresponden a depósitos denominados flujo de escombros, afectados por deslizamientos, los cuales son ocasionados por la excesiva cantidad de agua superficial que discurre por el escarpe remojando el subsuelo de alta permeabilidad y plasticidad, generando alta inestabilidad que afecta tanto las construcciones del casco urbano del municipio como las laderas aledaña a éste.
Desde principios del siglo XX se han realizado algunos proyectos tendientes a estabilizar los suelos del casco urbano del municipio de Jericó, sin que hasta el momento se hayan logrado soluciones definitivas, siendo un problema que en la actualidad se agrava, de un lado por el deterioro de los filtros construidos inicialmente y de otro, por el cambio de prácticas en el uso de las aguas al abandonarse los aljibes construidos de tiempo atrás y contarse con sistemas de distribución de aguas para consumo humano y evacuación de aguas lluvias y servidas, que en la actualidad presentan algunas falencias que agravan el problema de inestabilidad en algunos sectores del casco urbano.
En el paisaje rural que envuelve el casco urbano se destaca el escarpe donde termina el cerro Las Nubes, en cuyo costado norte se presenta el cerro tutelar más importante constituido por el Morro El Salvador, estando el resto del perímetro conformado por las laderas cortas y extendidas que terminan finalmente en los fuertes escarpes que van hacia el cañón del Cauca y el río Piedras, predominando en estas partes altas potreros dedicados al pastoreo de bovinos, algunas áreas con reforestaciones de eucaliptos, además de otras dedicadas al cultivo de café en combinación con plátano.
El Jardín Botánico Los Balsos, localizado entre la base del Morro El Salvador y el casco urbano, se constituye en el conector ambiental entre lo urbano y lo rural más importante del Municipio, con calidades ambientales que se pueden disfrutar a partir de infraestructuras consistentes en senderos y sitios de estar, cubiertos por la vegetación nativa más representativa de la región, recordando que al interior del área urbana, por fuera de los parques Reyes, Fundadores y los centros de manzana, no se cuenta con espacios verdes de relevancia, dado que por el tipo de trazado con que cuenta este centro histórico no se tienen antejardines o separadores de vía que se puedan constituir en zonas verdes con alguna importancia ambiental.
Es importante resaltar la presencia de plantas ornamentales que conforma jardines de gran atractivo en zaguanes, patios, solares y jardineras de parques, que son tradicionales y de gran valor cultural dentro del Municipio, sobre lo cual el Ministerio de Cultura viene adelantando programas tendientes a la generación de incentivos a la jardinería doméstica, además de este Municipio, en municipios como Jardín y Támesis, por lo que las nuevas intervenciones en el espacio público deben estar acompañadas de actividades de jardinería acordes a las potencialidades del lugar.
5.1.2 Consideraciones de Integración de El Morro El Salvador y El Jardín Botánico al Centro Histórico
Tres aspectos técnicos permiten aseverar que el Morro el Salvador, puede ser considerado parte integrante del Centro Histórico del Municipio de Jericó, en tanto sus características culturales y ambientales, permiten afirmar que es parte integrante y no existe solución de continuidad entre lo histórico, arquitectónico y cultural con lo natural asociado al Centro Histórico.
Dichos aspectos tienen que ver con lo siguiente:
- Las determinantes ambientales asociadas al Morro El Salvador.
- Las riquezas arqueológicas existentes y estudiadas y el vínculo cultural de la comunidad entre el Morro el Salvador y el Centro Histórico.
- Las especies de flora vinculadas al Jardín Botánico y que merecen una protección especial, como patrimonio natural.
El término DETERMINANTE, fue establecido en la Ley 388 de 1997, específicamente en su artículo 10, el cual se refiere a las "determinantes de los planes de ordenamiento territorial" y de manera taxativa las enuncia en los numerales 1 al 4.
Por su parte el Decreto – Ley 2811 de 1974, en su artículo 9o Literal f), convoca a lograr un "desarrollo equilibrado en lo urbano y lo rural". No existe una separación diametral entre lo urbano y lo rural al momento de la planeación y gestión, como no lo existe entre el Centro Histórico de Jericó y el Morro el Salvador.
El Documento CONPES 3718 de 2012, sobre "Política Nacional de Espacio Público", enmarcado dentro de la estrategia "Construir Ciudades Amables" de la Visión Colombia 2019, plantea que para lograr una sociedad más justa y con mayores oportunidades es de gran importancia la consolidación de un espacio público accesible, adecuado y suficiente para la totalidad de los ciudadanos.
En el mismo sentido, el Plan Nacional de Desarrollo (PND) 2010–2014: Prosperidad para Todos, establece la construcción de la Política Nacional de Espacio Público, mediante la cual se apoyará a las entidades territoriales en el fortalecimiento de su capacidad institucional y administrativa para la planeación, gestión, financiación y sostenibilidad del espacio público. Tanto el Morro el Salvador, como el Centro Histórico de Jericó, contribuirían de manera importante a consolidar desde lo municipal la política nacional en materia de espacio público.
El espacio público en este caso verde, entre lo urbano y lo rural, se concibe para este estudio como un "sistema" o "trama", en el que deben relacionarse aspectos tan necesarios como la comunicación e interacción, que la comunidad y sus pobladores tienen entre el Centro Histórico y el Morro El Salvador, en sus desplazamientos y como sitio de ocio y esparcimiento. A través de los años, el Morro el Salvador se ha integrado a las tradiciones culturales del municipio de Jericó, permitiendo la conexión de la comunidad con fiestas que los identifican y brindan un sitio de esparcimiento e interés cultural, como lo es el vuelo de las cometas; dicha actividad se ha posicionado a tal punto que realizan las "Fiestas de las cometas" en el mes de agosto, lo cual atrae un gran número de visitantes y está vigente desde el año 1978. También existe el monumento de carácter simbólico del Cristo El Salvador, que hace parte de la cultura Jericoana, permitiendo que este cerro sea un sitio multicultural y de visita por tradición de los habitantes y forasteros del Municipio.
Integrar el Morro El Salvador al Centro Histórico, el cual fue asumido en el E.O.T. (Acuerdo 02 del 17 de Julio de 2010) como suelo urbano de protección; contribuye a mantener y proteger el patrimonio histórico, arquitectónico y cultural, de igual manera al desarrollo social y la protección del medio ambiente, y al mantenimiento e incremento de la diversidad biológica y la potenciación de la diversidad cultural, como quiera que su pobladores pueden contribuir a la conservación de los entornos naturales.
En efecto el Morro El Salvador, atendiendo a sus características geográficas, paisajísticas o ambientales, forma parte de la zona de utilidad pública, entre otros de protección. Es una zona, que por tradición genera interés cultural, paisajístico e histórico, es el sitio de mayor calidad ambiental urbana, de disfrute y regocijo. Esto debido a que por su ubicación permite visualizar la riqueza paisajística del casco urbano del Municipio y su entorno, cuya vegetación existente corresponde a algunas especies nativas y otras introducidas que fueron adaptándose completamente y formando parte de un sitio diverso y de interés cultural para la comunidad, llamada "Jardín Botánico Los Balsos", el cual tiene 100 especies entre árboles y arbustos sin contar la riqueza florística de sus jardines (Véase Figura zonas verdes urbanas).
El Jardín Botánico creado en 1993, dentro de su riqueza florística contiene especies de alto interés para su conservación debido al estado de amenaza que posee como son el Comino (Aniba perutilis), Roble (Quercus humboldtii), Chaquiro (Podocarpus oleifolius), Pino Romeron (Retrophyllum rospigliossii), éste último declarado como árbol insignia de Jericó
Además de la riqueza paisajística y biológica que presenta el Morro El Salvador, éste contiene un valor arqueológico debido a los hallazgos de tumbas de pozos con cámaras, guaqueadas y de las cuales se registró algún material cerámico del estilo Marrón Inciso. También cuenta con la historia que se narra y que hace parte este Morro relacionadas con las diversas campañas de guaquería que se han realizado por todo el suroeste de Antioquia, donde el municipio de Jericó tenía su mayor representatividad en personal formando un referente para sus habitantes desde épocas muy tempranas.
En la Constitución Política de Colombia de 1991 se acoge la protección y la defensa del medio ambiente desde varios puntos de vista. En primer lugar, como una obligación en cabeza del Estado y los particulares; en segundo lugar, como un factor determinante del modelo económico que se debe adoptar; y por último, como una limitación al ejercicio pleno de algunos derechos.
Para el caso del Morro El Salvador se trata de la materialización de la función social y ecológica de la propiedad consagrada en la Constitución Política de Colombia en su artículo 58, y que puede implicar una limitación al ejercicio pleno del derecho de propiedad, en la perspectiva de lograr un desarrollo local sostenible.
Las riquezas arqueológicas, las especies de flora existentes y conservadas ex situ, por ejemplo en el Jardín Botánico, son una muestra clara de esta función ecológica de la propiedad, que el Morro El Salvador sustenta y que amerita ser conservado e integrado en el tiempo al Centro Histórico.
En ese sentido, el artículo 58 de la C.P. establece que:
[…] Se garantizaran la propiedad privada y los demás derechos adquiridos con arreglo a las leyes civiles, los cuales no pueden ser desconocidos ni vulnerados por leyes posteriores. Cuando de la aplicación de una ley expedida por motivo de utilidad pública o interés social, resultaren en conflicto los derechos de los particulares con la necesidad por ella reconocida, el interés privado deberá ceder al interés público o social.
Esta posibilidad de integrar el Morro El Salvador al Centro Histórico, encuentra su sustento a nivel constitucional con lo consagrado el artículo 311 de la Constitución Nacional, como quiera que corresponde a los municipios como entidad fundamental de la división político-administrativa del Estado, además de prestar los servicios que determine la ley, construir las obras que demande el progreso local y de manera especial, ordenar el territorio promoviendo la participación efectiva y real de la ciudadanía en pro del mejoramiento de la calidad de vida de los habitantes.
La ley 388 de 1997, establece objetivos, dentro de los cuales cabe resaltar la posibilidad que tiene el Municipio en el ordenamiento de su territorio, definir el uso equitativo y racional del suelo, la preservación y defensa del patrimonio ecológico y cultural localizado en su ámbito territorial así como la ejecución de acciones urbanísticas eficientes.
Lo ambiental se constituye para el ordenamiento territorial en un determinante, consagrado en la Ley 388 de 1997, y se convierte en un referente obligado como elemento normativo de jerarquía nacional al momento de ordenar el territorio, como quiera que tiene que ver con temas relacionados con la propiedad, su uso y distribución, consagrando principios relativos al desarrollo territorial que materializan los postulados ambientales y sociales de la Constitución Nacional, tales como:
a) La función social y ecológica de la propiedad
b) La prevalencia del interés general sobre el particular
c) La participación de los municipios en las plusvalías generadas en el desarrollo urbano, con miras a una distribución equitativa de cargas y beneficios.
La posibilidad de considerar el Centro Histórico y el Morro El Salvador, como una Determinante Ambiental del Municipio de Jericó, establecidas en la Legislación Colombiana, específicamente en la Ley 388 de 1997, se constituyen hacia el futuro en materia de planeación como una posibilidad de aplicar en la práctica los principios de rigor subsidiario, precaución, prevención y coordinación. Los determinantes ambientales serán una realidad en la planeación y gestión, si existe coordinación entre todas las entidades públicas y privadas que tienen que ver con el Centro Histórico, y si en orden descendente las normas de policía se hacen más estrictas y no más flexibles, si se actúa con prevención y precaución ante los impactos ambientales y la posibilidad del riesgo de desastres en las localidades y regiones.
Las Determinantes Ambientales son a nivel municipal una posibilidad de aplicar el mandato constitucional del artículo 313 que le asigna a los Concejos Municipales la función de reglamentar los usos del suelo, que es una forma, tal vez la más expedita, de ordenar el territorio municipal y de esa manera concretar y definir, el tipo de desarrollo que aspira el Municipio.
La Ley 388 de 1997, tiene en el campo municipal para el Ordenamiento Territorial las siguientes posibilidades en su artículo primero:
1. El establecimiento de los mecanismos que permitan al Municipio, en ejercicio de su autonomía, promover el ordenamiento de su territorio, el uso equitativo y racional del suelo, la preservación y defensa del patrimonio ecológico y cultural localizado en su ámbito territorial y la prevención de desastres en asentamientos de alto riesgo, así como la ejecución de acciones urbanísticas eficientes.
2. Garantizar que la utilización del suelo por parte de sus propietarios se ajuste a la función social de la propiedad y permita hacer efectivos los derechos constitucionales a la vivienda y a los servicios públicos domiciliarios, y velar por la creación y la defensa del espacio público, así como por la protección del medio ambiente y la prevención de desastres.
3. Promover la armoniosa concurrencia de la Nación, las entidades territoriales, las autoridades ambientales, las instancias y autoridades administrativas y de planificación, en el cumplimiento de las obligaciones constitucionales y legales que prescriben al Estado el ordenamiento del territorio, para lograr el mejoramiento de la calidad de vida de sus habitantes.
Y se establecen en los objetivos del artículo segundo, uno fundamental que justifica legalmente la integración de los histórico, arquitectónico y cultural con lo natural en el Morro El Salvador al establecer lo siguiente:
1. Propender por el mejoramiento de la calidad de vida de los habitantes, la distribución equitativa de las oportunidades y los beneficios del desarrollo y la preservación del patrimonio cultural y natural.
En conclusión, la integración del Morro El Salvador al Centro Histórico, considerando lo natural, cultural y arqueológico, tiene sustento legal y constitucional, y posibilitará hacia el futuro, restringir la intervención humana sobre ese territorio, evitándose de esta manera una ruptura comunicacional, y que se generen procesos de ocupación desorganizados, la fragmentación de los predios y la expansión urbana, afectando los valores ecosistémicos y naturales en él existentes.
Finalmente, se propone cambiar el nombre del Jardín Botánico Los Balsos, por el de Jardín Botánico Sigifredo Espinal T., considerando que éste fue uno de los ilustres botánicos en Antioquia oriundo de Jericó, y uno de los precursores del sistema de clasificación de zonas de vida de Colombia y particularmente de Antioquia, además de ser autor de múltiples textos de ecología y botánica tales como Árboles de Antioquia, publicado en 1986, y de investigaciones desarrolladas para la clasificación de formaciones vegetales o zonas de vida, tanto para Antioquia como para Colombia, siendo además durante muchos años profesor de Ecología, de la Facultad de Ciencias de la Tierra, de la Universidad Nacional de Colombia, sede Medellín.
Este ilustre personaje jericoano nacido en el municipio de Jericó el 25 de junio de 1929 y fallecido el 7 de febrero de 2008 en la ciudad de Medellín, quien se suma a la gran lista de artistas, escritores e intelectuales del Municipio, siendo uno de los investigadores naturistas de Colombia con una vida dedicada a aportar en el conocimiento de la ecología y la botánica de nuestro diverso país, principalmente a través de la Facultad de Ciencias Agropecuarias de la Universidad Nacional de Colombia.
El herbario de la Universidad del Valle, donde fue profesor en una etapa de su vida lleva su nombre por Ordenanza de la Asamblea Departamental del Valle.
5.1.3 Movimientos del Agua en el Suelo y Sistema de Drenajes para la Evacuación de las Mismas
Durante la realización del diagnóstico del PEMP de Jericó se detectó que una de las mayores afectaciones del patrimonio arquitectónico de Jericó tiene que ver con el material de constitución del suelo, el cual corresponde a un material con una expansibilidad superior al 4%, que aunado a la alta saturación de agua en el suelo, donde el nivel freático, en algunos casos alcanza la superficie, lo vuelve supremamente inestable, y es por ello que las construcciones presentan una alta humedad en sus paredes, principalmente sótanos y/o bajos, con presencia de fisuras, algunas de ellas afectando las construcciones a nivel estructural.
Para remediar esta situación, desde mediados del siglo pasado se implementaron algunas obras como filtros, localizados en la calles superiores del pueblo, tendientes a evacuar las aguas de escorrentía hasta los drenajes naturales, lo cual en parte dio solución a los problemas de inestabilidad presentes al momento de su construcción, pero estos filtros después de más de 50 años de construidos y sin el mantenimiento adecuado, han cumplido su vida útil, perdiendo su efectividad, volviendo aún más vulnerable la estabilidad del patrimonio arquitectónico del Centro Histórico de Jericó.
Esta situación plantea la necesidad de reconstruir la historia de los filtros y proponer, de acuerdo a técnicas modernas, unos nuevos que den solución en el tiempo al movimiento del agua en el suelo, de una manera que no afecte la estabilidad de las construcciones.
Es por ello que se hace necesario realizar un diagnóstico de los movimientos del agua en el suelo del Centro Histórico que comprenda las siguientes actividades:
- Realizar un inventario de los drenajes existentes, verificando como mínimo su localización, longitud, dimensiones, estado actual, método constructivo, profundidad, entre otras.
- Realizar un estudio geoeléctrico del suelo para determinar los niveles de agua en el suelo del Centro Histórico de Jericó y poder identificar los puntos críticos.
- Proponer alternativas de manejo al movimiento del agua en el suelo con el fin de garantizar la estabilidad de las construcciones presentes en el Centro Histórico y de igual modo considerar la reforestación de las laderas de las quebradas que atraviesan el área urbana, con miras a evacuar la mayor cantidad de agua del suelo mediante procesos de evapotranspiración de las plantas.
5.1.4 Sistema de Alcantarillados Públicos y Privados
Como resultado del diagnóstico del Centro Histórico se identificó, que se está en la etapa de implementación de las diferentes fases del plan maestro de acueducto y alcantarillado de Jericó, el cual cubre el cambio y modernización de las conducciones de acueducto, alcantarillado y aguas lluvias, desde o hasta la parte externa de las conducciones o medidor de las construcciones, sin entrar a realizar cambios al interior de éstas, lo cual plantea inquietudes con respecto a la solución integral del manejo de las aguas servidas en el municipio de Jericó, pues al igual que las conducciones externas, las internas ya cumplieron su vida útil y es posible que se encuentren en avanzado estado de deterioro y no cumplan las funciones para la cual fueron construidas.
De otro lado, se identificó en los recorridos de campo, que en algunas construcciones los sistemas de alcantarillado no se conectan directamente desde la misma propiedad al sistema de recolección público, sino que parte de éste se conecta internamente con otros o atraviesa por predios privados para terminar vertiendo en colectores diferentes, presentándose situaciones complejas en el manejo y administración de las mismas propiedades.
Como resultado de esta situación, es necesario realizar un diagnóstico del estado actual de los sistemas de acueducto y alcantarillado a nivel interno de las construcciones y plantear soluciones que saneen el sistema de conducción interno, así como cumplir lo establecido en la Ley 142 de servicios públicos, las normas que tenga planeación municipal al respecto, así como proteger el patrimonio arquitectónico del Centro Histórico de Jericó.
Para la realización de este diagnóstico es necesario implementar métodos modernos de teledetección de las tuberías existentes y las posibles fugas de agua que puedan existir.
5.1.5 Manejo de las Áreas de Retiro de las Quebradas que Atraviesan en Área Urbana
El EOT de Jericó (EOT, 2010) considera como corredores bióticos los retiros de las quebradas Valladares, Pinillos y La Merced, pero no existe una continuidad en cuanto a coberturas vegetales a lo largo de los retiros, los cuales fueron reglamentados desde este mismo instrumento de planificación. Estos retiros, están siendo alterados por las intervenciones humanas principalmente por las construcciones con métodos constructivos de gran peso como lo es el concreto y de varias plantas, que en algunos casos llegan hasta el mismo cauce, afectando la estabilidad de las construcciones vecinas y disminuyendo la funcionalidad ecosistémica y reguladora hídrica de las quebradas urbanas (Véase zonas verdes urbanas).
Aunado a lo anterior, los usos presentes en los retiros como cultivos de café, frutales y otros, disminuyen de igual modo la función ecológica de éstos, fragmentando los ecosistemas del lugar y disminuyendo la capacidad reguladora de éstos.
De otro lado, algunos de los cauces de estas quebradas fueron canalizados en su base y costados, sin dejar canales o filtros de evacuación de las aguas de escorrentía de los terrenos aledaños, contribuyendo de este modo a la saturación de agua en el suelo, y favoreciendo los procesos de desestabilización de las construcciones aledañas.
Como consecuencia de lo anterior, se han presentado derrumbamiento de viviendas con pérdidas de vidas humanas, desestabilización de construcciones por movimientos del terreno y generación de procesos erosivos, entre otros, por lo que es necesario tomar medidas encaminadas a remediar dichas situación.
Dentro de las medidas propuestas a la luz del PEMP se tienen:
- Respetar los retiros de las quebradas de acuerdo a lo reglamentado en el Acuerdo 02 del 17 de julio de 2010.
- Cambiar los usos del suelo en cultivos, por vegetación protectora y nativa de la región para favorecer los procesos de conectividad ecológica y permitir el flujo genético de flora y fauna a través de estos espacios.
- Los canales en concreto de las quebradas urbanas deben adecuarse con filtros o desagües ("oídos") diagonales a la pendiente para que se permita el flujo de las aguas del suelo hasta los drenes naturales y evitar su saturación.
- Las construcciones existentes en la zona de influencia directa de los retiros de las quebradas no pueden reconstruirse en materiales de alto peso como el concreto y otros. Las reparaciones que se deban hacer, serán con el uso de materiales livianos como bareque, guadua y otros de menor peso.
- En caso de el derrumbamiento de alguna vivienda en la franja de retiro, no se debe reconstruir nuevamente, porque se trata de una zona que presenta riesgo, debiéndose garantizar la función ecológica del lugar y salvaguardar la vida humana.
Así mismo en la parte posterior del seminario, el cementerio y algunas viviendas aledañas, localizados al costado sur de la calle primera, se encuentra una franja de terreno o zona verde cuya cobertura actual consiste en pastos y plantaciones forestales de eucalipto, la cual se convierte en una prolongación más de este espacio, al brindar un ambiente tranquilo y natural. Por lo anterior, la zona verde debe conservarse como tal, además de que corresponde a un área de inestabilidad geológica, que no permite otro uso diferente a la protección.
5.1.6 Recomendación para la Arborización de la Zona Urbana
El municipio de Jericó tiene en su área urbana zonas verdes espacialmente discontinuas localizadas en pequeñas áreas coincidentes con los parques de Reyes, Monseñor Francisco Cristóbal Toro, Parque Fundadores, además de la vegetación arbórea existente en el pasaje peatonal Palacio Municipal, Complejo deportivo, y algunos sitios relacionados con las quebradas Valladares, Pinillos y La Merced, además del cordón proyectado para la vía circunvalar.
Es de mencionar igualmente la vegetación que se conserva al interior de algunas manzanas del casco urbano, además de espacios verdes de instituciones religiosas, educativas y algunos predios privados.
Dentro de estos espacios verdes urbanos se resalta el Jardín Botánico Los Balsos, conectado igualmente al Morro El Salvador, uno de los espacios verdes más importantes del Municipio, integrado directamente, a través de las infraestructuras del Jardín botánico y su límite en la carrera quinta, donde se conserva vegetación arbórea perteneciente al Morro y asociada a este tramo de vía (Véase Figura zonas verdes urbanas).
Las áreas verdes urbanas del Centro Histórico de Jericó, están constituidas en su gran mayoría por individuos representativos de la flora nativa, con un alto valor el contexto de biodiversidad como: ceibas (Ceiba pentandra), ceiba verde (Pseudobombax septenatum), chaquiros (Retrophyllum rospigliosii), Guayacanes amarillos (Tabebuia chrysantha), guayacanes rosados (Tabebuia rosea), cedros negros (Juglans neotropica), laureles (Aniba sp.), carboneros (Calliandra pittieri), cascos de vaca (Bauhinia kalbreyeri), caimito (Chrysophyllum cainito), carbonero zorro (Pithecellobium arboreum), los cuales corresponden, en términos generales a especies que hoy revisten un grado de amenaza, vulnerabilidad o protección desde instituciones como CITES (Convención sobre el Comercio Internacional de Especies Amenazadas de Fauna y Flora Silvestres) y IUCN (Unión Internacional para la Conservación de la Naturaleza) que son los estamentos surgidos desde la UNESCO para identificar la fragilidad y el riesgo de desaparición y definir acciones para la conservación de la biodiversidad a nivel mundial.
Las especies más importantes que conforman el tramado verde urbano en Jericó, corresponden a aquellas de mayor tamaño y desarrollo, lo que hace suponer que acompañaron el proceso de consolidación del Centro Histórico de Jericó, siendo individuos adultos, que en términos generales se encuentran en buen estado, pero algunos de ellos presentan signos de deterioro por ataque de hongos o plagas y otros sencillamente están llegando al final de su ciclo de vida.
Esta situación ha hecho que algunos de los elementos arbóreos hayan sido remplazados por árboles jóvenes de porte medio o arbustivo, en donde los criterios de selección en cuanto a especie y funcionalidad se desconocen, pero que desde el punto de vista de la continuidad de la conservación de la flora nativa, generan una interrupción, debido a la introducción del especies exóticas que hoy dominan la flora joven urbana del Parque Reyes, la calle quinta entre carreras 1 y 3, el barrio El Faro, y el área deportiva contigua a la escuela Madre Laura. Dentro de las especies más comunes se tienen: palma payanesa (Archontophoenix cunninghamiana), palma fénix (Phoenix canariensis), tulipán africano (Spathodea campanulata), pino libro (Thuja orientalis), Azahar de la India (Murraya paniculata), acacia amarilla (Caesalpinia peltophoroides), pero de agua (Syzygium malaccense), escubillón rojo (Callistemon speciosus), pino (Pinus patula), entre otras.
Aunque las especies aquí enunciadas enriquecen el paisaje al imprimirle mayor variabilidad, rompen con el esquema del entorno del lugar, ya que:
- Las zonas verdes urbanas estaban constituida principalmente por árboles nativos con característica de ser de gran porte y frondosos, llenando el espacio con su volumen y altura, sobresaliendo por encima de las edificaciones tradicionales, dándole carácter al Centro Histórico al incorporarse en su estructura paisajística y cultural, y haciendo parte del paisajismo urbano, lo cual se constituye en un atractivo más al no pasar desapercibido ante los visitante.
- Del espacio público urbano también hace parte el Morro El Salvador (Acuerdo 02, 2010 EOT), donde se encuentra además un Jardín Botánico que conserva un importante número de individuos de especies nativas, por lo que la arborización urbana de Jericó debe continuar su estructura para generar lazos de conectividad con el entorno, lo cual genera una valoración estética más significativa y favorece el desplazamiento de la fauna típica al encontrar elementos de su hábitat natural en espacios urbanos.
- A escasos metros del área urbana se encuentra la zona natural declarada por Corantioquia como Distrito de Manejo Integrado de Los Recursos Naturales Las Nubes, La Trocha, La Capota, donde se conservan elementos típicos de la flora y la fauna del suroeste antioqueño.
Por lo anterior, las zonas verdes urbanas de Jericó deben conservar los elementos arbóreos nativos, y los que han sido remplazados por especies exóticas, deben ser sustituidos en el corto plazo, por las mismas especies que fueron plantadas originalmente en el área urbana, así como incorporar especies típicas presentes en la reserva Las Nubes, La Trocha, La Capota.
Es necesario tener cuidado en la selección de los árboles, de acuerdo al lugar. Para las zonas abiertas como los Parques, se deben seleccionar especies con volumen y altura, que generen sombra y embellecimiento paisajístico, y de las cuales aún subsisten ejemplares en la actualidad, como los que se listan a continuación
Tabla 1. Árboles propuestos para áreas abiertas

Para nuevas áreas de antejardines, infraestructuras de servicios públicos aéreos o terrestres caso líneas de energía, acueductos y alcantarillados, además de obras relacionadas con nuevos procesos de expansión urbana, y en general aquellas áreas con limitaciones para el desarrollo de especies arbóreas de gran porte, se proponen especies nativas de palmas, arbustos y otros, que cumplan con los siguientes requisitos:
- No deben tener exudados cáusticos o venenosos.
- El sistema radicular no debe ser muy profundo.
- Deben ser con generación de frutos y flores para atraer la fauna nativa.
- La altura no debe superar la línea de transmisión de energía, para que no sea necesaria la ejecución de podas que puedan afectar la arquitectura de los árboles a plantar.
- Deben ser aparasolados para generar sombra y por consiguiente un microclima fresco.
- No deben generar mucha hojarasca.
- Que los árboles se articulen con la estructura de las edificaciones cercanas, con el fin de prevenir podas o cortes a futuro por falta de planeación.
- Que permitan definir espacios y darles privacidad Algunas de estas especies pueden ser las que se listan a continuación:
Tabla 2. Especies propuestas para áreas con restricción de alturas y cercanas a infraestructuras


Para nuevos corredores viales, el paisajismo arbóreo debe estar asociado a especies con las siguientes características:
- Deben ser de troncos rectos y de porte alto que generen copa a gran altura para permitir la circulación fluida de los vehículos, al brindar la visibilidad a los conductores.
- Dependiendo de la disponibilidad del espacio, el sistema radicular pude ser profundo o radial.
- Deben presentar en menor mantenimiento posible, para conservar su estructura.
- Que contribuyan a la captura de partículas de polvo y demás generadas por el flujo vehicular.
- Que se conviertan en barreras anti ruido para los habitantes de los alrededores.
- Generar la diversidad de especies
Algunas de las especies recomendadas para estos espacios son las siguientes:
Tabla 3. Especies recomendadas para sitios cercanos a corredores viales


5.2 PROPUESTA URBANA GENERAL
5.2.1 Objetivos y Estrategias
Objetivos
El objetivo general de la propuesta urbana del PEMP es facilitar la apropiación y protección del espacio público y el paisaje del Centro Histórico de Jericó. Los objetivos específicos de la propuesta urbana son los siguientes:
- Mitigar los conflictos entre la movilidad peatonal y el tráfico vehicular, el cual está creciendo e incluye el aumento de la disponibilidad de parqueaderos y de frecuencias de transporte intermunicipal y local.
- Restablecer la conectividad ecológica de áreas verdes y retiros de quebrada donde sea viable esta articulación como espacio público.
- Mitigar las inundaciones e inestabilidad del suelo en tramos urbanos de retiros de quebrada.
- Ampliar la dotación de espacio público de ámbito barrial.
- Corregir las limitaciones de accesibilidad y apropiación de algunos equipamientos y espacios públicos.
- Subsanar la necesidad de un equipamiento que aporte nuevas posibilidades de desarrollo socio-económico basado en el patrimonio y saberes tradicionales.
- Remediar la precariedad de la señalización, iluminación y mobiliario urbano en el Centro Histórico.
Estrategias
La estrategia general de la propuesta urbana consiste en cualificar elementos y recorridos patrimoniales significativos y articularlos entre ellos y con nuevos componentes y trayectos asociados a la mejora de la calidad ambiental y urbanística del sector, al igual que a la ampliación de oportunidades socio-económicas para los habitantes.
Se combinan estrategias específicas de mejoramiento del paisaje, la materialidad y seguridad peatonal de las calles, espacios públicos y atrios, con proyectos específicos que atienden la necesidad de organizar la movilidad y el transporte, la necesidad de articular de mejor manera lugares patrimoniales al espacio público, la necesidad de recuperar y fomentar saberes que sustenten la posibilidad de generar nuevas empresas y empleos en el municipio, mejorando además la articulación del sector urbano menos dotado. Los nuevos espacios públicos en retiros de quebrada aportarán lugares de encuentro vecinal y significarán mejoras en la gestión del riesgo geológico y en la conectividad ecológica de las zonas verdes.
La propuesta involucra tres categorías: intervención de los equipamientos, intervención del espacio público efectivo e intervención de la movilidad. A continuación se indican las actuaciones y proyectos por cada categoría.
5.2.2 Intervención de los Equipamientos
Los equipamientos son elementos estructurantes que albergan profundas asociaciones históricas y de reconocimiento ciudadano por las actividades que en ellos se han desarrollado a lo largo del tiempo. No obstante, algunos equipamientos se encuentran en edificaciones de valor patrimonial deterioradas o que están en riesgo adicional por cambio de uso. Adicionalmente, por falta de las entidades y los equipamientos correspondientes en el municipio, algunas actividades se desarrollan de manera precaria (abordaje del transporte) o no se desarrollan (capacitación en artes y oficios relacionados con la conservación del patrimonio).
En consecuencia, dentro de la estrategia general del PEMP se priorizan actuaciones para recuperar edificaciones patrimoniales que albergan equipamientos, y se plantea crear dos nuevos equipamientos específicos que inciden en la protección y conservación del patrimonio cultural del centro histórico. Por ello se definen para los equipamientos los siguientes tipos de actuación:
- Mantener o recuperar, según sea el caso, inmuebles de valor cultural destacados, donde se localizan equipamientos.
- Generar nuevos equipamientos necesarios asociados al ordenamiento de la movilidad y a la ampliación de oportunidades socio-económicas para los habitantes con base en los saberes tradicionales y al patrimonio.
Son actuaciones de prioridad alta las de recuperación de inmuebles en alto riesgo. Son actuaciones de prioridad media, las de recuperación de inmuebles que han sufrido intervenciones deteriorantes o que requieren albergar nuevos usos, al igual que las de generación de nuevos equipamientos. Son actuaciones de prioridad baja las de mantenimiento y reparación. Algunos inmuebles no requieren intervenciones actualmente.
En la siguiente tabla se presentan los equipamientos con sede en edificaciones patrimoniales y las prioridades de actuación.
Tabla 4... Prioridades de actuación sobre equipamientos en inmuebles de valor cultural


Por su parte, los nuevos equipamientos planteados por el PEMP para dar sostenibilidad y permanencia en el tiempo al patrimonio cultural del centro histórico, se presentan en la siguiente tabla con sus prioridades de actuación.
Tabla 5. Prioridades de actuación en nuevos equipamientos

La prioridad de actuación en estos nuevos equipamientos se clasifica como media o baja pues dependen de la terminación previa de otros proyectos; la Terminal de Transporte depende de la pavimentación de la Avenida Circunvalar y la Escuela de Artes y Oficios depende del proyecto de capacitación y generación de fuentes de empleo mediante la recuperación de técnicas tradicionales.
Como herramienta para promover los valores históricos de Jericó, para estos nuevos equipamientos se recomienda elegir nombres relacionados con la historia y el patrimonio del municipio.


En conclusión, de la categoría de Intervención de los Equipamientos, se desprenden un proyecto de Recuperación de BIC donde se localizan equipamientos y dos proyectos de generación de nuevos equipamientos.
El proyecto de Recuperación de BIC donde se localizan equipamientos tiene los siguientes componentes, los cuales se explican posteriormente:
- Recuperación y nuevo uso del convento La Visitación... Recuperación de la I. E. Normal Superior.
- Recuperación Templo Inmaculado Corazón de María.
- Recuperación e implementación de Archivo Histórico en el Centro de Historia.
- Recuperación de la Escuela Madre Laura.
Los proyectos de construcción de nuevos equipamientos son los siguientes:
- Construcción de la Terminal de Transporte.
- Construcción de la Escuela de Artes y Oficios.
Las fichas en Metodología General Ajustada (MGA) para los proyectos de recuperación de BIC donde se localizan equipamientos, y de construcción de la Terminal de Transporte, se presentan en el anexo B.
Vale anotar que otros dos nuevos equipamientos se encuentran actualmente en proceso de diseño por parte de entidades gubernamentales:
- Parque Educativo (proyecto de la Gobernación de Antioquia).
- Parque arqueológico del Morro El Salvador (proyecto de la Alcaldía y el Viceministerio de Turismo).
5.2.2.1 Proyecto de recuperación e intervención de BIC donde se localizan equipamientos
A continuación se explican los componentes específicos del proyecto de recuperación e intervención de BIC.
- Recuperación y nuevo uso del antiguo Convento La Visitación
El antiguo convento, donde han funcionado a lo largo de su historia diversas instituciones educativas y culturales, es uno de los de mayor valor simbólico, histórico y estético del centro histórico, pero se encuentra en riesgo, no sólo por su regular estado de conservación, sino especialmente porque la mayor parte quedó sin uso desde el mes de septiembre 2014, cuando se trasladaron las actividades de la Casa de la Cultura hacia otra sede. Se localiza a dos cuadras del parque principal, por lo cual es óptimo para su uso comunitario.
La Curia Diocesana, institución propietaria del inmueble, ha venido pensando alternativas como la de restaurar el conjunto para residencias de sacerdotes o para un albergue de peregrinos. Cualquiera de estos usos sería apropiado, siguiendo las lógicas de la arquitectura del inmueble, pues éste cuenta con espacios de tamaño mediano y habitaciones individuales (sin baños) que se pueden adaptar con relativa facilidad.
En Colombia se encuentran precedentes de alojamientos turísticos en áreas históricas, manejadas por instituciones religiosas, tales como el Hotel Casa del Peregrino en Buga o la Posada San Agustín en Ráquira.
El Hotel Casa del Peregrino, localizado en la Plazoleta del Señor de los Milagros en Buga, es manejado por la Congregación de los Padres Redentoristas, y tiene entre sus servicios, además de las habitaciones para grupos, librería, venta de artículos religiosos, parqueadero, salones de eventos y restaurante. La Posada San Agustín, en Ráquira, es manejada por la Orden de Agustinos Recoletos y presta servicios de alojamiento y de centro para ejercicios espirituales, convivencias, congresos y similares (Kienyke, 2013)


Se requiere en primer lugar, estudiar la viabilidad financiera de esas alternativas, u otras para un nuevo uso. La oferta hotelera del municipio ya es bastante amplia, aunque no hay hoteles o casas de convenciones especializadas en ejercicios espirituales, función que también tendría cabida en las instalaciones del Seminario San Juan Eudes.
En segundo lugar, se requiere realizar los estudios técnicos y diseños (levantamiento, patología, diseños arquitectónicos y de ingeniería), considerando que el área estimada de intervención es de 1.765 m2, según los datos de área construida del predio en la base de datos catastral. En tercer lugar se requiere gestionar los recursos y empezar a crear la estructura administrativa que permita poner en funcionamiento y mantener adecuadamente el nuevo uso. En cuarto lugar, se requiere ejecutar las obras.
- Recuperación de la Institución Educativa Normal Superior
La Normal ocupa una manzana completa del Centro Histórico, con edificaciones de un antiguo convento, y edificaciones modernas bordeando un área libre central. Las intervenciones de reparación de las edificaciones antiguas, realizadas en el 2011 dejaron el equipamiento en muy mal estado. Ante la grave situación, el proyecto de recuperación de la Normal tiene una alta prioridad para mantener un inmueble de alto valor cultural y su uso educativo, que aporta al aprecio de la comunidad de Jericó por su patrimonio arquitectónico e histórico.
Se requiere en primer lugar, lograr el acuerdo de la Gobernación y la Alcaldía frente a la solución de los problemas legales pendientes por la intervención anterior. En segundo lugar, para definir las obras posibles en la sede, se requiere realizar los estudios de patología de las edificaciones antiguas y el plan de manejo arqueológico. En tercer lugar, se requiere realizar los estudios técnicos y diseños (levantamiento, patología, diseños arquitectónicos y de ingeniería), considerando un área estimada de edificaciones deterioradas de 1.800 m2. En cuarto lugar, se requiere gestionar los recursos para realizar la intervención. En quinto lugar se requiere ejecutar las obras.
- Restauración Templo Inmaculado Corazón de María
Este templo, construido por la comunidad de los Hermanos Claretianos en la década de 1920, y actualmente de propiedad de la Curia, tiene un alto valor cultural pero se encuentra en una zona de riesgo y presenta agrietamientos y problemas en su estructura. Desde distintas instituciones religiosas y públicas se ha planteado la idea de promocionarlo como Santuario de la Madre Laura. Este proyecto tiene una alta prioridad para poner en valor el Centro Histórico, pero su viabilidad depende de la disminución del riesgo geológico en el sector, por medio de las obras que se deberán estudiar e implementar según lo especificado en la Propuesta Ambiental del PEMP.
Luego de ello, se podrá gestionar los recursos, realizar los estudios y diseños, y ejecutar las obras de recuperación del templo, considerando un área construida de 1.387 m2 según los datos de área construida del predio en la base de datos catastral.
- Creación de Archivo Histórico en Centro de Historia
El Centro de Historia es una entidad privada para la promoción de la historia y la conservación de documentos de valor histórico de Jericó, la cual funciona en un inmueble patrimonial de propiedad de la Alcaldía, mediante un convenio de comodato. La edificación ha estado integrada de diversas formas con algunas construcciones vecinas para diversos usos institucionales a lo largo del tiempo.
Según se ha planteado desde el estudio histórico de este PEMP, la implementación de un archivo histórico especializado que permita mantener y divulgar la valiosa información de este Centro, es un proyecto prioritario. Los detalles del proyecto se presentan en la ficha MGA correspondiente, teniendo en cuenta que se podrá gestionar el apoyo del Ministerio de Cultura y el Archivo Histórico Nacional. Por su parte, la sede, además de las adecuaciones técnicas necesarias para albergar el archivo histórico, requiere mantenimiento. Cualquier proyecto de intervención deberá mantener los principales elementos de su arquitectura y tener en cuenta el manejo adecuado hacia los predios vecinos. El área construida estimada de intervención es de 400 m2.
- Recuperación de Escuela Madre Laura
La edificación donde actualmente funciona la Escuela Madre Laura, tiene alto valor cultural; en ella, además del uso educativo se han localizado otros usos como el Batallón San Mateo. Es además muy visible para propios y visitantes pues se localiza cerca del Complejo Deportivo y de la entrada al área urbana por el acceso actual desde Medellín.
Desafortunadamente, la fachada lateral que se abría hacia un antejardín por la carrera 1, ha perdido su iluminación natural y ventilación transversal como producto de intervenciones de las administraciones municipales; en la década de 1990 para la construcción de la Casa de la Juventud y el Deporte, y este año 2014 para la construcción de un gimnasio público. Las intervenciones afectaron la edificación patrimonial y deben revertirse, pues además de la afectación al patrimonio, generan conflictos con el uso educativo por la disminución de ventilación e iluminación y por el ruido. Por otra parte, la Escuela requiere la recuperación de los baños públicos que se encuentran en mal estado y de algunos muros y techos.
Este es un proyecto de prioridad media, que si bien es menos urgente que otros en inmuebles en alto riesgo, deberá realizarse a futuro para rehabilitar este importante patrimonio del Centro Histórico. El área construida estimada de intervención es de 500 m2.
5.2.2.2 Proyectos de construcción de nuevos de Equipamientos
A continuación se explican los dos proyectos de construcción de equipamientos que se enmarcan en el componente Equipamientos de la Propuesta Urbana.
- Construcción de la Terminal de Transporte
La actual terminal y oficina de despacho de los buses intermunicipales, se encuentra ubicada en el costado nororiental de la Catedral de Jericó, en la carrera 4 con calle 6, al lado del parque principal. Allí se estacionan los buses y buses-escalera generando impacto visual que impide el disfrute de la arquitectura patrimonial, y un impacto en la ocupación de espacios requeridos para el desplazamiento peatonal, especialmente a la hora de entrada y salida de las diferentes misas que se celebran durante el día. Igualmente, el transporte veredal (chiveros), tiene su acopio en el parque principal del pueblo, ocupando un área importante de éste, en inmediaciones de la Catedral, impidiendo una vista completa de esta y del parque principal. También existe una flota de mototaxis que se parquean sobre la carrera 4 a la altura de la calle 5 a una cuadra del parque principal.
La alternativa consiste en la ubicación estratégica y construcción de un equipamiento que unifique las zonas de llegada y despacho de transporte intermunicipal, veredal y urbano, y que a la vez sea la puerta de llegada del visitante, en la cual pueda estacionar su vehículo y obtener información para su recorrido histórico y patrimonial del municipio. La ubicación del equipamiento debe ser tal que su accesibilidad no se realice por las vías donde se encuentran las edificaciones históricas y patrimoniales y que esté lo más cerca posible del Parque principal y del Centro Histórico.
Para ello se plantea la posibilidad de un lote ubicado entre la carrera 7 y la futura vía Circunvalar proyectada en EOT del municipio, y entre las calles 8 y 9. Su acceso sería por la Circunvalar evitando el cruce por las vías del Centro Histórico, logrando de esta manera liberarlo de dicho tránsito y permitiendo más espacio y seguridad para el desplazamiento peatonal de habitantes y visitantes. Estaría localizado a tres cuadras del parque principal, teniendo como corredores principales de conexión la carrera 7 y la calle 7, vías que presentan la mejor pendiente longitudinal frente a otras posibles, como la calle 8.

La nueva terminal tendría un espacio edificado a nivel de la carrera 7, con oferta de oficinas para la operación de los diferentes transportes, así como una oferta de servicios turísticos, gubernamentales y comerciales para los habitantes y visitantes.
Por debajo de la edificación (en sótano) se habilitaría una primera terraza para albergar las diferentes flotas de transporte, zonas de abordaje seguro, lavado y aseo de vehículos, zona de estar para conductores y ayudantes.
En el resto del lote se habilitarían terrazas para estacionamiento de visitantes y buses turísticos.
Figura 18. Áreas de la Terminal de Transportes

Se debe construir la edificación con especificaciones constructivas para mitigar el ruido que puede generar la operación de los vehículos de transporte. Asimismo, implementar reductores de velocidad y demás elementos viales para disminuir el impacto por el tráfico vehicular generado por la terminal.
Figura 19. Imaginario de la Terminal de Transporte

Áreas aproximadas de la Terminal de Transporte:
- Área edificada: 500 m2.
- Área terrazas de parqueo y zonas verdes: 6.500 m2.
- Construcción de Escuela de Artes y Oficios
Entre los diversos temas examinados en el diagnóstico se encontraron dos problemáticas que pueden abordarse integralmente: por una parte, la escasez de oportunidades laborales para los jóvenes, y por otra parte, la pérdida de oficios y saberes en construcción y producción artesanal, fundamentales para la preservación y posibilidad de uso del patrimonio material del municipio. Un aporte a la solución integral de estas problemáticas consiste en la implementación de una Escuela de Artes y Oficios que permita involucrar a las nuevas generaciones en oficios relacionados con la reparación del patrimonio mueble e inmuebles, o con la producción artesanal apoyada en saberes tradicionales.
Como antecedentes, se puede mencionar por una parte las tradicionales Escuelas de Artes y Oficios que durante el siglo XIX se implementaron en el país, imitaban el modelo francés, y fluctuaron entre la enseñanza de oficios tradicionales y de oficios modernos (Portilla, 2009).
De tiempos más recientes, el Programa de Escuelas Taller, iniciado en la década de 1990 y cofinanciado inicialmente por la Agencia Española de Cooperación Internacional, AECI, tiene por objeto de facilitar el empleo asociado a la formación y actuación sobre obras patrimoniales, mediante el entrenamiento de mano de obra calificada en oficios como albañilería, carpintería, cantería, forja, pintura, cerámica, jardinería, entre otros (Ministerio de Cultura, Dirección de Patrimonio, Programa Escuelas Taller de Colombia, s.f.). El Ministerio de Cultura sigue promoviendo el programa, y en varios centros históricos del país funcionan Escuelas Taller como las de Mompox, Cartagena o Barichara. Otras instituciones también promueven estos saberes, como es el caso de la Escuela de Artes y Oficios Santo Domingo en Bogotá.
El primer paso para implementar un proyecto de este tipo, ajustado a las necesidades del Centro Histórico de Jericó, es indagar acerca las experiencias y aprendizajes de esas instituciones existentes. Paralelamente se requiere referenciar las personas y grupos que conservan y están dispuestas a transmitir saberes tradicionales como la guarnielería, la marroquinería, la gastronomía típica, la carpintería, la cantería, y buscar instructores para el manejo de la tapia y el bahareque, que hacen falta en Jericó. A partir de allí se plantea la entidad a futuro, con los espacios y la estructura administrativa requerida. Luego se podrán gestionar los recursos y las alianzas con entidades como el SENA y la Secretaría de Productividad y Competitividad de la Gobernación de Antioquia, entre otras, que den viabilidad al proyecto.
En una primera etapa, la Escuela podrá funcionar en espacios de alguna de las instituciones educativas del municipio. Cuando esté más consolidada, se plantea que tenga su propia sede, para la cual se propone esta construcción a futuro. En consecuencia, a esta edificación se le asigna una prioridad baja en la actualidad.
Con objeto de aportar a la equidad en la distribución espacial de los equipamientos culturales y educativos en el área urbana, se propone que la construcción específica para la Escuela de Artes y Oficios se localice al oriente del Centro Histórico, en cercanías del sector de Quebraditas, donde habita población con vulnerabilidad económica. Este sector sólo cuenta con los equipamientos de la Cárcel y el Matadero. Se han identificado dos predios de oportunidad cercanos, sin perjuicio de otros que puedan definirse para ello en el sector:
- Predio identificado con el código catastral 00045 y 00047 de la manzana 0024, de uso mixto, con frente hacia la calle 5. Es un predio adecuado por su localización entre el Centro Histórico y la Avenida Circunvalar, con espacio libre y construido disponible, y que permite una lectura amplia del paisaje al conectarse con el retiro de la quebrada El Matadero.
- Predio identificado con los códigos catastrales 00026, 00032 y 00033 de la manzana 023, donde se ubica la Cárcel, con frente sobre la carrera 6. Es un predio de propiedad pública, que puede quedar disponible si en algún momento se traslada la cárcel hacia la zona de expansión urbana.


Áreas aproximadas de la Escuela de Artes y Oficios:
- Área edificada: fase inicial mínima 400 m2, con posibilidad de ampliación según programa y disponibilidad de suelo.
- Área libre: variable según programa y disponibilidad de suelo.
5.2.3 Intervención del Espacio Público Efectivo
El espacio público efectivo está constituido por los lugares preferentes de esparcimiento, encuentro y reconocimiento ciudadano, los cuales son estructurantes urbanos. No obstante, en algunas áreas del espacio público del Centro Histórico de Jericó se encontraron dificultades para la libre apropiación ciudadana por problemas de accesibilidad o de formas construidas que limitan la utilización pública. Además, en el Centro Histórico y su zona de influencia hay escasez de espacios públicos vecinales, aunque existen áreas libres privadas que podrían convertirse en espacio público y algunas que incluso permitirían mejorar la conectividad ecológica. Por ello, en la propuesta urbana se definen los siguientes tipos de actuación relacionados con los espacios públicos:
- Recuperar áreas del espacio público con problemas de accesibilidad o dificultades para la libre apropiación ciudadana.
- Generar espacio público efectivo en áreas libres contiguas a equipamientos y en tramos de zonas verdes de retiros de quebradas.
- Dotar de señalización, mobiliario urbano, e iluminación a los espacios públicos existentes y futuros.
- Mantener de espacios públicos existentes.
Puesto que no se encontró ningún espacio público en alto riesgo, no se señalan actuaciones de prioridad alta. Son actuaciones de prioridad media, las de recuperación de áreas del espacio público con problemas de accesibilidad o dificultades para la libre apropiación ciudadana, y las de generación de espacio público efectivo en áreas libres contiguas a equipamientos y en tramos de zonas verdes de retiros de quebradas. También son actuaciones de prioridad media, las de dotación de señalización, iluminación y mobiliario urbano. Son actuaciones de prioridad baja, las de mejoramiento y mantenimiento de espacios existentes. Esos espacios se presentan en las siguientes tablas:

Los espacios publicos existentes que se encuentran en estado bueno o regular y que se propone mantener y mejorar en el marco de la propuesta urbana, se presentan en la siguientes tabla con sus prioridades de actuacion.
Tabla 8. Prioridades de actuacion en espacios publicos de valor cultural.


De la categoría de Intervención del Espacio Público Efectivo se desprende el proyecto de Generación y Recuperación de Espacios Públicos Efectivos, con los siguientes componentes, los cuales se detallaran adelante.
- Recuperación del acceso al atrio de la Catedral y al Museo de Arte Religioso.
- Recuperación de La Terraza.
- Generación de plazoletas y jardines alrededor del Templo del Inmaculado Corazón de María.
- Generación de plazoletas alrededor de la Capilla de San Francisco.
- Generación de espacio público efectivo en retiro de la quebrada El Matadero entre carrera 7 y Avenida Circunvalar.
- Generación de espacio público efectivo en retiro de la quebrada Valladares entre carrera 4 y Avenida Circunvalar.
- Implementación de señalización, mobiliario urbano, e iluminación para el centro histórico.
5.2.3.1 Proyecto de Intervención del Espacio Público Efectivo.
- Recuperación del acceso al atrio de la Catedral y al Museo de Arte Religioso
Actualmente se presenta un conflicto en la accesibilidad peatonal y en la articulación visual entre la Catedral, el Museo de Arte Religioso y el parque principal debido a las escalas y las rejas no invitan ni facilitan el ingreso. Este problema afecta la percepción y apropiación de estos lugares desde el espacio público.

Se requiere llevar a cabo un proyecto para reorganizar esos elementos y su articulación urbana, el cual requerirá de la participación comunitaria, por la significación de la Catedral y el parque en el imaginario colectivo. Al respecto se pueden plantear alternativas que acompañen adecuadamente este equipamiento, combinando rampas y escaleras en tramos que sean visual y espacialmente más acogedores.
Áreas aproximadas del proyecto:
- Área libre modificación escalas: 200 m2.
- Área construida modificación ingreso al Museo: 200 m2.

El proyecto también podrá incluir un espacio que acoja el Monumento a la Madre Laura que se instaló recientemente en el atrio pero que no quedó integrado plenamente a la Catedral. Al respecto es posible definir alternativas como por ejemplo la construcción de un nicho en la fachada.

- Recuperación de La Terraza
En la carrera 4 frente al parque principal se ubica un espacio público usado durante varias décadas como mirador sobre el parque, por estar situado levemente por encima de éste.

Si bien es espacio público, este lugar tiene en la actualidad unas cubiertas opacas que lo convierten en una extensión de los restaurantes vecinos, las cuales fueron instaladas aproximadamente desde la década de 1980, según información de la comunidad. A pesar de que el lugar es reconocido por los habitantes y visitantes, la baja calidad estética de las cubiertas y su poca trasparencia impactan negativamente el paisaje del parque principal y la posibilidad de apropiación del espacio por parte del público en general.

Por ello se propone la reestructuración de este lugar para el mejoramiento de su posibilidad de apropiación ciudadana y del paisaje urbano del parque principal y del Centro Histórico.
Para la gestión del proyecto se requiere primero consultar la figura bajo la cual los restaurantes están haciendo usufructo de ese espacio. Luego, definir los contratos de ocupación del espacio y su renta como aporte a la financiación y el mantenimiento de las obras. Luego se deberá realizar un proceso de diseño participativo que permita definir con los habitantes una alternativa de mejor calidad y mayor posibilidad de apropiación como espacio público. Entre las alternativas se cuentan el cambio por tapasoles retráctiles, por sombrillas grandes frente a cada local o por sombrillas individuales por mesa, entre otras.

Áreas aproximadas del proyecto:
- Área libre modificación: 300 m2.
- Generación de plazoletas y jardines alrededor del Templo del Inmaculado Corazón de María
El templo del Inmaculado Corazón de María cuenta con áreas libres en el costado occidental (una parte usada como parqueadero) y en el costado sur, las cuales representan una oportunidad para un proyecto de articulación con el espacio público, considerando el posible re-direccionamiento de este templo como Santuario de la Madre Laura. El proyecto deberá incluir obras de mitigación del riesgo geológico, y deberá articularse con la restauración del templo.

Una posibilidad para el desarrollo del proyecto, que puede implementarse por fases, es adecuar dos tipos de espacios: al costado occidental una plazoleta, integrada con el atrio, que permita apreciar mejor el monumento y realizar eventos con los visitantes al Santuario; al costado sur un parque o jardín para el descanso y el disfrute del paisaje y la naturaleza.
Figura 24. Imaginario reestructuración de las áreas libres alrededor del Templo Inmaculado Corazón de María

Áreas aproximadas del proyecto:
- Plazoletas al costado occidental del Templo: 1.900 m2.
- Jardines al costado sur del Templo: 1.200 m2.
- Generación de plazoletas alrededor de la Capilla de San Francisco
La Capilla de San Francisco colinda por sus costados con predios sin edificar que constituyen oportunidades de dotación de nuevo espacio público vecinal.

El proyecto puede irse ampliando y articulando con otros predios de la misma manzana que pueden albergar usos diversos, dependiendo de las necesidades futuras del Municipio.
Áreas aproximadas del proyecto inicial:
- Área libre al costado de la Capilla: 200 m2.
Figura 25. Imaginario reestructuración de las áreas libres alrededor de la Capilla de San Francisco

- Generación de espacio público efectivo en retiro de la quebrada El Matadero entre carrera 7 y Avenida Circunvalar
De la carrera 7 hacia la Avenida Circunvalar el retiro de la Quebrada El Matadero está despejado con cobertura en pastos y la quebrada pasa bajo una cobertura, de la cual no se conoce su estado actual. Esta área libre constituye una oportunidad de generación de espacio público vecinal para el ocio y el contacto con la naturaleza, y para mitigar el riesgo de inundación. El proyecto aportaría a la articulación entre el Centro Histórico con la zona de expansión, y se conecta con uno de los predios de oportunidad para la Escuela de Artes y Oficios en la manzana 24.

Áreas aproximadas del componente:
- Área retiro quebrada El Matadero entre carrera 7 y Av. Circunvalar: 1.900 m2.
- Generación de espacio público efectivo en retiro de la quebrada Valladares entre carrera 4 y Avenida Circunvalar
El retiro de la quebrada Valladares entre la carrera 4 y 5, al lado del Parque Fundadores, constituye una oportunidad de generación de espacio público para el ocio y el contacto con la naturaleza, además de su función de mitigar el riesgo de inundación y geológico. Hacia el sur occidente de la carrera 5, el retiro pasa al lado del Hospital San Rafael, donde actualmente se ejecutan obras de mitigación del riesgo de inundación, las cuales se requiere complementar con un manejo paisajístico adecuado.
Estas obras se pueden realizar por fases, buscando llegar hasta la Avenida Circunvalar, de manera que se articule el Centro Histórico con la zona de expansión a través del espacio público. En el ámbito local, este espacio articula los equipamientos Hospital San Rafael, Centro de Bienestar Social y, a través del Parque Fundadores, el futuro Santuario Madre Laura.

Áreas aproximadas del componente:
- Retiro quebrada Valladares entre carreras 4 y 5: 1.700 m2.
- Retiro quebrada Valladares entre carrera 5 y Av. Circunvalar: 8.300 m2.
5.2.4 Intervención de la Movilidad
La propuesta parte de identificar los corredores de prioridad peatonal por los cuales se desplazarían con más frecuencia los residentes y visitantes en sus recorridos. Estos corredores se definieron a partir de las vías con mayor presencia de edificaciones patrimoniales, equipamientos y espacios públicos (existentes y propuestos), y de las vías por las que pasan las procesiones y desfiles.
En esos corredores se busca mejorar en el corto plazo las condiciones de seguridad y orientación para la circulación peatonal. Durante los fines de semana, podrán cerrarse algunos de ellos para la circulación vehicular, considerando que en esos días hay mayor número de visitantes en el centro histórico. Involucran los siguientes tramos viales:
- Calle 1 entre carrera 5 y Cementerio.
- Calle 5 entre carreras 1 y 2.
- Calle 5 entre carreras 5 y 7.
- Calle 6 entre entrada a Camino al Viacrucis y carrera 5.
- Calle 7 entre carreras 1 y 7.
- Calle 8 entre carreras 3 y 5.
- Calle 9 entre carreras 2 y 5.
- Carrera 1 entre calles 4 y 5.
- Carrera 1 entre calles 6 y 7.
- Carrera 2 entre calles 5 y 7.
- Carrera 3 entre acceso a Jardín Botánico y calle 9.
- Carrera 4 entre calles 6 y 9.
- Carrera 5 entre calle 1 y Quebrada Pinillos.
- Carrera 7 entre calles 7 y 9
A continuación se muestran los corredores con prioridad peatonal.

A partir de lo anterior, se redefine también la circulación vehicular prioritaria de ingreso y salida del casco urbano para el momento actual, cuando la Avenida Circunvalar aún no está pavimentada y es de difícil tránsito para automóviles. Se busca que esta circulación vehicular impacte lo menos posible los recorridos con prioridad peatonal, y se tiene en cuenta que la ruta de ingreso vehicular debe permitir al visitante la orientación e identificación de los parqueaderos activos existentes.
Hacia estos estos corredores de ingreso y salida del Centro Histórico, se pretende orientar la mayor circulación vehicular mediante una adecuada señalización, manteniendo buenos niveles de seguridad para los peatones. Involucran los siguientes tramos viales del centro histórico y su zona de influencia:
- Calle 1 entre carrera 6 y cementerio.
- Calle 6 entre carreras 1 y 2.
- Calle 7 entre carreras 1 y 3.
- Calle 7 entre carreras 5 y 7.
- Calle 8 entre carreras 2 y 6.
- Calle 9 entre carreras 2 y 6.
- Carrera 1 entre calle 2 y salida a Pueblo Rico.
- Carrera 2 entre calles 6 y 8.
- Carrera 3 entre calles 7 y 9.
- Carrera 5 entre calle 8 y quebrada Pinillos.
- Carrera 6 entre calles 1 y 9.
- Carrera 7 entre calles 1 y 7
La circulación vehicular a través del Centro Histórico disminuirá a partir del momento en que la Avenida Circunvalar esté pavimentada. Para ese momento se plantea la construcción de la Terminal de Transporte, en una localización con fácil acceso vehicular desde la Circunvalar y con acceso peatonal vinculado a la carrera 7, en la zona de influencia del Centro Histórico.

El tipo de actuación en estos recorridos consiste en priorizar la dotación de señalización, acompañada de mobiliario urbano e iluminación, y recuperar la calidad y accesibilidad de los andenes.
Para los algunos tramos viales donde se superponen los corredores de prioridad peatonal y los corredores de ingreso y salida vehicular del Centro Histórico, se propone aumentar la iluminación pública y las señales de límite de velocidad, e instalar algunos reductores de velocidad. Esos tramos son los siguientes:
- Calle 1 entre carrera 6 y cementerio.
- Calle 6 entre carreras 1 y 2.
- Calle 7 entre carreras 1 y 3.
- Calle 7 entre carreras 5 y 7.
- Calle 8 entre carreras 3 y 5.
- Calle 9 entre carreras 3 y 5.
- Carrera 1 entre calles 4 y 5.
- Carrera 2 entre calles 6 y 7.
- Carrera 3 entre calles 7 y 9.
- Carrera 5 entre calle 8 y quebrada Pinillos
De la categoría de Intervención de la Movilidad se desprenden los siguientes proyectos, los cuales se detallarán adelante, exceptuando el proyecto de la Terminal que se explicó anteriormente:
- Construcción de Terminal de Transporte.
- Implementación de señalización para el centro histórico.
- Recuperación de andenes.
5.2.4.1 Proyecto de Intervención para la Movilidad.
- Implementación integral de señalización, mobiliario urbano e iluminación del centro histórico
En la actualidad, se evidencian varias problemáticas con respecto a la señalización den el Centro Histórico de Jericó. Por una parte, los elementos de señalización son escasos y están desarticulados, lo cual dificulta la orientación de los visitantes e incluso de los propios residentes. También se manifiesta la falta de conciencia del visitante, de que se encuentra en un sitio patrimonial y por lo tanto debe atender unas reglas de orden que permitan el disfrute de lo que fueron a apreciar en el Centro Histórico. Además, pese a que en el Centro Histórico se tiene una buena oferta de celdas de estacionamiento, no se tiene una clara información, ni señalización de su ubicación, por lo que el visitante opta por lo más fácil que es estacionarse en la vía pública. La señalización vial reglamentaria prohibiendo el estacionamiento prácticamente no existe, por lo que el resultado es la alta ocupación vial con vehículos estacionados.
Por lo anterior, se requiere la implementación de un conjunto de señalización unificado, articulado con nuevos elementos de mobiliario e iluminación, el cual se deberá poder realizar por fases, para facilitar la gestión de los recursos y la intervención de las distintas entidades que hoy tienen competencia sobre el espacio público en el municipio. A continuación se indican los principales requerimientos por cada componente.
- Señalización
El componente consiste en la planeación e instalación de las señales de orientación para la circulación vial y de interpretación del patrimonio cultural, para informar al visitante y a los habitantes en el Centro Histórico.
Las señales de orientación para la circulación vial se plantean de acuerdo con el Código Nacional de Tránsito y el Manual de Señalización del Ministerio de Transporte, para generar condiciones de circulación peatonal y vehicular segura en el casco urbano del municipio.
Además de los sentidos viales y rutas de ingreso y salida, es fundamental informar al visitante, a su llegada al caso urbano, que está ingresando a una zona patrimonial y que por lo tanto, no podrá circular a una velocidad mayor de 30 Km/h y que no podrá parquear sobre las vías públicas. Se plantea la identificación de estacionamientos públicos en el casco urbano y la orientación a los visitantes para llegar hasta estos y estacionar allí sus vehículos durante su permanencia en el Centro Histórico. La señalización debe resaltar los cruces peatonales sobre el sistema vial principal y las restricciones de circulación por vías locales de sectores patrimoniales.
En la siguiente imagen, se presenta un ejemplo de localización de la señalización propuesta con las consideraciones anteriores. El planteamiento de localización de la señalización vial para el Centro Histórico es tenido en cuenta como proyecto ver fichas MGA. Anexo B.
Figura 28. Detalle de Señalización propuesta en vías

Una vez se implemente el proyecto de Terminal de Transporte y de accesibilidad por la Circunvalar, se debe revisar la señalización vehicular y complementarla, para que se restrinja totalmente la circulación vehicular de visitantes por las calles del Centro Histórico.
Por otra parte, las señales de interpretación del patrimonio cultural brindan la información requerida para guiar al visitante a los sitios de interés patrimonial y para darle a conocer la significación y trascendencia de éstos.
Es importante considerar las restricciones existentes en la infraestructura vial para la localización de las señales (andenes muy estrechos) y el impacto que pueden generar estos elementos sobre el espacio público, especialmente los elementos requeridos para portar los paneles que contienen las señales y la información. Por tal motivo, se deben buscar elementos de señalización, que cumpliendo con las normas, mitiguen el impacto visual sobre el patrimonio. Sobre ello existen precedentes en el manejo de la señalización en ciudades históricas en otros países.
Figura 29. Imaginario señalización del Centro Histórico en la carrera 5


- Componente de mobiliario urbano e iluminación
En el Centro Histórico se requiere definir el conjunto de mobiliario urbano e iluminación peatonal, que facilite la apropiación del espacio público con seguridad y comodidad.
Estos elementos deberán ser poco intrusivos y podrán ser asociados a las fachadas. En todo caso no podrán ir soportados en postes de concreto, pues las secciones viales son angostas y estos postes interrumpen los andenes y afectan la calidad del paisaje. Sobre ello existen precedentes en el manejo del mobiliario y la iluminación en áreas históricas.
- Recuperación de andenes
Los andenes del Centro Histórico tienen una alta problemática de interrupción con escalas y otros elementos que dificultan la movilidad peatonal. Existen todavía en el Centro Histórico tramos de andenes en piedra de alta calidad funcional y estética, que sirven de ejemplo para un proyecto de recuperación.

La realización del proyecto debe ser posterior al cambio de redes y a la ejecución de filtros según la propuesta ambiental.
5.2.5 Consolidado de la propuesta urbana
Finalmente, los tipos de actuación y componentes enunciados para las categorías de intervención de la propuesta urbana, se articulan tal como se muestra en la siguiente imagen.
Figura 31. Propuesta urbana general

5.3 PROPUESTA NORMATIVA URBANA
5.3.1 Determinación de tratamientos urbanísticos
De acuerdo con la legislación nacional vigente, los tratamientos urbanísticos "son las determinaciones del plan de ordenamiento territorial, que atendiendo las características físicas de cada zona considerada, establecen normas urbanísticas que definen un manejo diferenciado para los distintos sectores del suelo urbano y de expansión urbana. Son tratamientos urbanísticos el de desarrollo, renovación urbana, consolidación, conservación y mejoramiento integral." (Decreto nacional 4065 de 2008, art. 2o)
En el actual EOT de Jericó no hay claridad conceptual en la definición y delimitación de los tratamientos urbanísticos según la legislación nacional. Al tratar este tema, en el EOT se presenta una división administrativa de sectores en la zona urbana, que se pueden asimilar a barrios, y para cada uno de ellos se indican, por una parte, más de un tratamiento, y por otra parte, algunos tipos de tratamiento que no existen en la legislación nacional y más bien se asimilan a usos del suelo. Como ejemplos, para el sector definido en el EOT con el nombre de Residencial Parte Baja se establecen los tratamientos de Consolidación, Desarrollo y Conservación; para el sector definido en el EOT con el nombre de El Matadero se establecen los tratamientos de Conservación Ambiental y Densificación. Esta falta de claridad dificulta la aplicación de las normas urbanísticas en el área urbana.

En el presente PEMP se recomienda que en la revisión del EOT se definan los polígonos de tratamiento urbanístico al interior del Centro Histórico y su zona de influencia a partir de lo que establece la legislación nacional vigente y de la identificación de zonas homogéneas. De acuerdo con ello, se proponen los siguientes tratamientos urbanísticos.
Conservación: "tratamiento urbanístico que por razones ambientales, históricas o arquitectónicas limita la transformación de la estructura física de áreas del municipio o distrito, de inmuebles particulares, de obras públicas, y de elementos constitutivos del espacio público." (Decreto nacional 151 de 1998, art. 2o). Este tratamiento se propone para el Centro Histórico.
Consolidación: tratamiento urbanístico que regula el afianzamiento de la estructura urbana existente, buscando que haya una adecuada correlación entre la intensidad de uso del suelo y los sistemas estructurantes naturales y construidos. Este tratamiento se propone para las manzanas (en suelo urbano) de la Zona de Influencia, que rodean el Centro Histórico.
Desarrollo: tratamiento urbanístico que regula "…la urbanización de predios urbanizables no urbanizados en suelo urbano o de expansión urbana". (Decreto nacional 4065 de 2008, art. 2o). Este tratamiento se propone para las manzanas de la Zona de Influencia que se localizan entre las manzanas de tratamiento consolidación y la Avenida Circunvalar.
En el siguiente plano se muestran los polígonos de tratamiento urbanístico propuestos para el Centro Histórico y su Zona de Influencia.

Considerando la problemática identificada en el diagnóstico con respecto a la falta de claridad de las normas del EOT relativas a los usos del suelo en el Centro Histórico de Jericó, el PEMP recomienda para la revisión del EOT:
- Construir una zonificación de usos del suelo consistente, sin mezclar con otras temáticas como la división barrial.
- Construir una clasificación de actividades específicas más detallada de la que contiene el EOT actualmente.
- Definir las actividades específicas permitidas, limitadas y prohibidas para cada zona de uso del suelo.
De acuerdo con esas recomendaciones, se propone la siguiente zonificación de usos del suelo:
Residencial (R): En las manzanas donde predomina el uso residencial y existen algunos comercios y servicios vecinales complementarios.
Comercial (C): En las manzanas donde predomina el uso comercial y existe algunos pisos con residencia.
Dotacional - Institucional (I): Correspondiente a equipamientos existentes de servicios, institucionales, educativos, religioso, salud, entre otros.
Protección (P): Correspondiente a áreas que se busca proteger como espacio público.
Residencial con intensidad comercial tipo 1 (RC1): En las manzanas que rodean al parque principal, donde se permite una alta mezcla de usos variados.
Residencial con intensidad comercial tipo 2 (RC2): En las manzanas cercanas al Parque Fundadores y al Hospital, donde se permite una mezcla de usos con predominio de servicios y comercio local.
Residencial con intensidad de servicios (RS): En las manzanas que rodean el área propuesta para el futuro equipamiento Terminal de Transporte.
Residencial con intensidad institucional (RI): En las manzanas donde los equipamientos representan un alto porcentaje del suelo, pero en coexistencia con viviendas y comercio. Esta zonificación se presenta en el siguiente plano.
Figura 34. Propuesta de zonificación de usos del suelo en el Centro Histórico y su Zona de Influencia

En segundo lugar, la clasificación de usos específicos parte de los contenidos en el EOT. No se planteó seguir la Clasificación Industrial Internacional Uniforme (CIIU) actualizada y adaptada para Colombia, no obstante, si en la revisión del EOT de Jericó se plantea usar la clasificación CIIU para todo el territorio municipal incluyendo el centro histórico y su zona de influencia, se requerirá en ese caso la adaptación de las presentes recomendaciones a dicha clasificación, sin afectar el contenido de fondo de la normativa propuesta en el PEMP. En consecuencia, la clasificación del grupo de actividades específicas ajustada por el PEMP es la siguiente:
G1: Culturales, educativos o de culto dotacionales
G2: De salud y sanitarios DOT
G3: Transporte DOT
G4: Seguridad e Infraestructura DOT
G5: Comercio y servicios mayores COM-1
G6: Comercio y servicios medianos COM-2
G7: Comercio y servicios pequeños COM-3
G8: Comercio y servicios a mitigar ruido
G9: Comercio y servicios específicos
G10: Industria mayor y mediana.
G11: Industria menor, pequeños talleres de artesanías. Locales inferiores a 100 m², en primer piso, y condiciones de ventilación adecuadas para el uso
G12: Vivienda uni - bifamiliar
G13: Vivienda multifamiliar
G14: Vivienda compartida e inquilinato
Las propuestas de equipamientos requieren de un proyecto de impacto que deberá ser autorizado por el Ministerio de Cultura este en el área afectada como en la zona de influencia. Tanto el uso residencial como mixto debe respetar los mínimos de habitabilidad para vivienda.

Anotaciones de la tabla:
(*) COM1-El uso en la zona Residencial se condiciona a una superficie mínima de predio de 250 m² y a un porcentaje máximo del uso en manzana, que en este caso podría ser el 50%. La propuesta de uso debe tener el concepto previo favorable por parte de la entidad competente.
COM2>50 m²<200 m²
COM3 <=50 m²
(*) G3 y G4, Los predios deben estar definidos, bien por el Plan Especial de Manejo y Protección, o por el Instrumento de Ordenación Territorial.
5.3.2 Normas de Espacio Público
Las normas relacionadas con el espacio público que contiene EOT vigente (Acuerdo 02 de 2010), han servido de guía a la actuación sobre estos espacios, pero requieren ser complementadas y ajustadas para una mejor protección del Centro Histórico y su zona de influencia. A continuación se presentan las recomendaciones de modificación y complementación de los respectivos artículos del EOT vigente (Acuerdo 02 de 2010).
5.3.2.1 Antejardines y retiros frontales(10)
En los predios donde no existen antejardines, no se admite generarlos y se debe mantener la línea de paramento predominante en el costado de manzana.
Se conservan los antejardines y retiros frontales existentes, siete en total, para los cuales no se modificaran las condiciones urbanísticas ni arquitectónicas. Para los antejardines existentes se mantiene lo estipulado en el artículo 95 del Acuerdo 02 de 2010:
"Los antejardines no se podrán ocupar con elementos construidos. Sólo se podrán dotar de rampas y escaleras cuando por las condiciones topográficas del terreno resulten diferencias entre el andén y el primer nivel de la edificación, y se requieran para acceder cómodamente a ella."
Además, se propone la siguiente norma:
Se admitirá la construcción de rejas sobre la línea de paramento para aquellos predios con retiro frontal de antejardín, siempre y cuando su diseño sea armónico con el diseño del inmueble, garantizando la transparencia a la zona verde interna, y contando con la licencia expedida por la autoridad competente. Estas rejas no podrán superar una altura de 2,10 m. y deberán ser en hierro; no se admiten rejas en aluminio ni en malla eslabonada. Podrán contar con un muro de base cuya altura no podrá superar los 0,60 m.
5.3.2.2 Marquesinas y tapasoles
Se propone modificar el artículo 96 del Acuerdo 02 de 2010 así:
Dentro del perímetro urbano no se permite la utilización de marquesinas para cubrir antejardines o andenes.
Se permiten los tapasoles frente a espacios públicos tipo plazas o parques, solamente cuando correspondan a un proyecto integral de espacio público aprobado por el ente encargado con competencia sobre el Centro Histórico y previa aprobación del Ministerio de Cultura. Deben ser soluciones homogéneas que formen parte de un proyecto común para la totalidad del espacio público.
5.3.2.3 Amoblamiento urbano
Se propone modificar el artículo 99 del Acuerdo 02 de 2010 así:
El amoblamiento urbano está compuesto de elementos de tamaño reducido que se instalan en el espacio público de manera repetitiva para prestar algún servicio que aporte a la comodidad o seguridad de los usuarios. Por ejemplo: bancas, basureras, bicicleteros, bolardos, casetas, hidrantes, juegos infantiles, luminarias, sombrillas con mesas y sillas, teléfonos públicos, entre otros.
El amoblamiento urbano debe ser fácil de utilizar, mantener y limpiar. Su ubicación no podrá obstaculizar la movilidad peatonal, ni distorsionar el paisaje urbano. Para evitar la afectación al patrimonio inmueble, el amoblamiento urbano no podrá ser ubicado a menos de 8,00 m de distancia frente a las fachadas de bienes de interés cultural. En todos los casos de implementación de amoblamiento y usos de los mismos, deberán obtener el permiso de la autoridad competente del Centro Histórico.
Con respecto a los distintos elementos se establece lo siguiente:
Bancas: no podrán instalarse en los andenes de las calles que tienen circulación vehicular, puesto que éstos son muy angostos en el Centro Histórico y en ese caso se obstaculizaría la circulación peatonal. Por lo tanto deben estar ubicadas en plazas, plazoletas y parques. Deben instalarse con un sistema de anclaje fijo sobre los pisos duros de dichos espacios. Su forma debe ser ergonómica y permitir una rápida evacuación del agua. Las bancas móviles se pueden localizar en las vías, cuando estas se encuentren peatonalizadas y en ningún caso serán permanentes.
Basureras: deben estar ubicadas en espacios que no obstaculicen la circulación peatonal. Si el basurero tiene la abertura en la parte superior, ésta debe estar a una altura máxima de 0.80 m. sobre el piso acabado. Si la abertura es lateral al sentido de circulación, la altura debe estar entre 0.80 m. y 1.20 m.
Bicicleteros: no podrán instalarse en los andenes de las calles que tienen circulación vehicular, puesto que éstos son muy angostos en el Centro Histórico y en ese caso se obstaculizaría la circulación peatonal. Por lo tanto, en el espacio público, deben estar ubicadas en plazas, plazoletas y parques. Deben instalarse con un sistema de anclaje fijo sobre los pisos duros de dichos espacios.
Bolardos: deberán localizarse a 0,30 m. del bordillo en los tramos viales y esquinas donde se requieran para la seguridad de los peatones. Deben ser en materiales resistentes a impactos. En su diseño se pueden prever argollas para la instalación de cadenas.
Casetas móviles para ventas (toldos): no se permiten en los andenes, y se permitirán en los parques, y plazoletas solamente cuando correspondan a un programa en el espacio público aprobado por la Oficina de Planeación o la entidad con competencia sobre el Centro Histórico. No se permiten las casetas estacionarias.
Hidrantes: deberán localizarse a 0,30 m. del bordillo en los tramos viales y esquinas donde se requieran para el adecuado funcionamiento del sistema de bomberos.
Juegos infantiles: se permitirán en los parques y plazoletas solamente cuando correspondan a un programa en el espacio público aprobado por la Oficina de Planeación o la entidad con competencia sobre el Centro Histórico. Deberán ser en materiales seguros para el uso por parte de los niños, sin tornillos o elementos cortantes que sobresalgan, y sin fibra de vidrio. No podrán instalarse sobre superficies en concreto, asfalto o adoquín. Deberán instalarse sobre piso de superficie de caucho triturado con subcapa de base elástica que permita la amortiguación de los golpes. Se podrán instalar sobre piso en arenilla suelta, siempre y cuando se garantice presupuesto para el mantenimiento periódico (semestral) de su espesor de 0,30 m en adecuadas condiciones de limpieza.
Luminarias: No se permitirá la colocación de postes en el borde del andén para luminarias de las calles del Centro Histórico y su zona de influencia. En estos casos la iluminación se realizará a través de luminarias a una altura mínima de 3,50 m, siempre y cuando el alero lo permita, ubicadas bien sea adosadas a las fachadas o postes metálicos delgados a 10 cm de distancia horizontal de las fachadas.
Para iluminación de pasajes peatonales, plazoletas y parques se podrán utilizar postes metálicos con luminarias centrales colocadas a una altura aproximada de 5,00 m y la distancia entre ellas depende del diseño de iluminación.
También se podrán utilizar luminarias bajas adosadas a las fachadas de muros de cerramiento para evitar la aparición de fachadas largas y oscuras sobre el espacio público.
Se requiere realizar un proyecto integral de iluminación aprobado por la Oficina de Planeación o la entidad con competencia sobre el Centro Histórico.
Sombrillas con mesas y sillas: únicamente se permitirán dentro de los espacios públicos tipo parques o plazoletas del Centro Histórico y su zona de influencia, previo permiso de ocupación del espacio público por parte de la autoridad competente. Se podrán permitir para la venta de alimentos pre-elaborados (helados, golosinas) o de bebidas por vaso. No se admitirán para el servicio de alimentos preparados en el restaurante (desayunos, almuerzos, comidas) ni para la venta de bebidas por botella completa.
Teléfonos públicos: deberán localizarse en lugares de fácil acceso sin obstaculizar la visibilidad general del lugar. El área de piso adyacente a los teléfonos públicos debe tener una textura rugosa para su fácil detección por parte del usuario limitado visual.
La señalización del teléfono debe permitir la fácil comprensión a los usuarios en general, teniendo precauciones para facilitar su uso también por parte de los usuarios analfabetos o que no hablan el idioma español.
5.3.2.4 Accesos para discapacitados
Se mantiene lo estipulado en el artículo 100 del Acuerdo 02 de 2010:
"En todo proyecto que haya de destinarse a la prestación de un servicio directo al público, deberá permitir el fácil ingreso de los limitados físicos, conforme las normas legales. Entre estos proyectos se encuentran hospitales, puestos de salud, centros médicos, laboratorios clínicos, industrias, iglesias, funerarias, centros educativos, instalaciones deportivas, instalaciones culturales, pasajes comerciales, supermercados, centros de acopio, estaciones de policía y terminales de transporte."
5.3.2.5 Andenes
Se mantiene lo estipulado en el artículo 101 del Acuerdo 02 de 2010 y se agrega una frase al final:
"Toda construcción nueva, reforma o adición, deberá construir y adecuar los andenes que le correspondan en toda la extensión del frente de su lote, cumpliendo con las especificaciones establecidas para su construcción y si ésta se ubica en esquina, deberá disponer de al menos una rampa en el andén para circulación de discapacitados.
Los andenes tendrán un ancho mínimo de 1,00 m y una altura aproximada de 20 cm sobre el nivel de la calzada."
Se agrega: En ningún caso se admitirán escalas o rampas perpendiculares al andén para acceder a las edificaciones.
5.3.2.6 Acabados de andenes
Se propone modificar el artículo 102 del Acuerdo 02 de 2010 así:
No se permitirá en ningún caso el empleo de materiales cerámicos, vitrificados, baldosines, retal de mármol y otros materiales no antideslizantes que originen riesgo al peatón o distorsionen la unidad del andén.
El Municipio debe adelantar una cartilla de espacio público que determine las pautas de los materiales a utilizar en los nuevos diseños. Es necesario incluir aquí la importancia y el valor histórico del trabajo en piedra para el acabado de andenes.
5.3.2.7 Garajes
Se propone modificar el artículo 105 del Acuerdo 02 de 2010 así:
Sólo se admitirá un acceso de garaje por cada unidad de fachada en el caso de los inmuebles de nivel contextual (N3), cuando la norma lo permita. El acceso no debe obstaculizar la libre circulación del peatón y por tanto en ningún caso se permitirán rampas fijas sobre el andén para el acceso a los garajes, y para los casos en que el garaje no está al mismo nivel del andén, sólo se podrán implementar rampas móviles.
PARÁGRAFO: Entiéndase unidad de fachada exterior promedio, la que tiene mínimo seis (6) metros de longitud. Para el caso de los Niveles de conservación N1 y N2 se debe presentar el proyecto a la autoridad competente.
5.3.2.8 Parqueaderos
Se propone modificar el artículo 106 del Acuerdo 02 de 2010 así:
Las áreas cubiertas para este fin se tendrán en cuenta para la liquidación del impuesto de construcción.
Las dimensiones mínimas libres de las celdas de parqueo serán de 2,50 m por 5,00 m y la sección del carril de circulación será de 6,00 m para parqueo en doble crujía y de 5,50 m para parqueo en un solo costado.
La pendiente de las rampas de acceso y de circulación interna será máxima de un 16%.
Las rampas internas de los parqueaderos no deben invadir el espacio público ni desembocar directamente a los andenes públicos. Entre esas rampas internas y el espacio público debe realizarse una plataforma de máximo el 5% de pendiente y longitud 5 metros.
Todos los parqueaderos públicos deben disponer de una celda para vehículos que transporten personas con discapacidad, por cada 25 celdas totales. Estas celdas deben ubicarse lo más próximo posible a los accesos de los espacios o edificios servidos por los mismos, preferentemente al mismo nivel de estos. Los desniveles en los recorridos peatonales del estacionamiento deben presentar rampas.
5.3.2.9 Tableros y avisos
Se propone modificar el artículo 108 del Acuerdo 02 de 2010 así:
No se permiten avisos comerciales perpendiculares a las fachadas; esta disposición sólo se admite para la señalización de orientación para la movilidad o interpretación del patrimonio.
No se permite la colocación de avisos sobre las alas de puertas y ventanas, en culatas o medianeros.
Están prohibidos en el espacio público los anuncios publicitarios de las marcas comerciales. Se permitirá la colocación, hacia las vías públicas, de un aviso de identificación por local, excepto para los locales en esquina, los cuales podrán colocar un aviso sobre cada fachada, debiendo ser iguales en forma, dimensiones y color.
En los casos de que en una misma edificación exista más de un local con acceso independiente hacia la vía pública, se podrá colocar un aviso en cada acceso, cumpliendo con la condición de que todos tengan las mismas características de forma y dimensiones.
Los avisos deberán colocarse de forma armónica con la arquitectura y la modulación de los vanos de la fachada, sin deteriorar los materiales ni la ornamentación de ésta.
No se permiten avisos luminosos.
El ancho máximo de los avisos corresponderá al ancho de los vanos sobre los cuales se localicen, sin sobrepasar un máximo de 2,00 m. La altura máxima de los avisos será de 1/3 del ancho de éstos sin sobrepasar un máximo de 0,60 m de altura. Se colocarán a una distancia mínima de 3,00 m del nivel de piso del andén. Deben respetar una distancia mínima de 0,30 m con respecto a los elementos de fachada tales como dinteles o jambas.
Los avisos serán de materialidad compatible con el entorno, (piedra, madera, acero corten o envejecido, etc.) Los avisos deberán ser aprobados por la autoridad competente del Centro Histórico, previo concepto del Ministerio de Cultura.
5.3.2.10Señalización
Se propone un artículo nuevo así:
La señalización vertical urbana deberá mantener un paso peatonal de 1,00 m de ancho mínimo, libre de obstáculos.
Los elementos de señalización adosados a construcciones deberán dejar libre una altura mínima de 4,00 m entre su nivel de enrase inferior y el nivel del andén.
Los elementos que requieran estar adosados a una altura menor de 4,00 m como mapas de localización por ejemplo, no podrán proyectarse más de 0,10 m de la línea de paramento.
5.3.2.11 Monumentos y esculturas
Se propone un artículo nuevo así:
Su localización y diseño debe responder a una concepción integral del espacio público donde vayan a ser implantados. Su ubicación no podrá obstaculizar la movilidad peatonal.
El Municipio, para el patrimonio mueble en espacio público, debe definir el protocolo para su intervención, mantenimiento y conservación.
5.4 NORMAS ESPECÍFICAS Y GENERALES
La normativa arquitectónica general y específica aquí propuesta, tanto para los bienes inmuebles que conforman el Centro Histórico, como la Zona de Influencia, está dirigida fundamentalmente a la conservación de los valores culturales y los atributos tipológicos característicos de los Bienes de Interés Cultural, posibilitando a su vez, el aprovechamiento de estos bienes culturales, en términos de edificabilidad, es decir, la posibilidad de edificar, ampliar, reformar, entre otras, acorde con los Niveles de Conservación (Intervención).
Para su entendimiento se precisa reconocer el antecedente normativo oficial y actualmente vigente, a saber Esquema de Ordenamiento Territorial, para Jericó, Acuerdo Municipal 02 de 2010, con el objetivo de armonizar, ajustar o modificar sus preceptos, así como para establecer los lineamientos normativos en materia de patrimonio cultural inmueble, para futuros ejercicios de actualización del E.O.T. Es pertinente anotar que las normas que en adelante se exponen actualizan y complementan, entre otras, las normas establecidas en los artículos: 73, 74, 75, 76, 91, 95, 97, 98, 102, 103, 104 y 105, del citado Acuerdo Municipal E.O.T.
5.4.1 Normas Específicas para los Bienes Inmuebles de Interés Cultural –BIC- del Centro Histórico y la Zona de Influencia
Ámbito de aplicación: a continuación se expone la propuesta normativa para regular todos aquellos atributos patrimoniales, que caracterizan y otorgan singularidad al Centro Histórico de Jericó y su Zona de Influencia, por ser relevantes y por estar aún presentes, otorgándole valor cultural a los inmuebles y significación cultural al conjunto urbano como Paisaje Cultural, razón por la cual, deben ser conservados y mantenidos, asegurando su permanencia en el tiempo. Tal normativa será expresada de forma escrita y gráfica, con el objetivo de facilitar su entendimiento y aplicación. Así mismo, se anexan las fichas normativas por manzana, que contienen la norma predio a predio.
En este orden de ideas, para la aplicación de la normativa arquitectónica general, se deberá consultar previamente y en todos los casos, las normas específicas referidas a los Niveles de Conservación (Intervención). Así mismo deben ser consultadas las respectivas intervenciones y obras admisibles, acordes con el Nivel de Conservación, expuestos en el numeral 4.2.3. Consideraciones Generales Respecto a la Intervenciones en Bienes de Interés Cultural, del presente documento de formulación, a continuación se establecen las normas específicas aplicables a cada Nivel de Conservación (Intervención):
5.4.1.1. Nivel de conservación N1 Integral en área afectada y zona de influencia. Para inmuebles de Nivel 1 de intervención, los parámetros y normas de intervención son los definidos por el Decreto 763 de 2009 y las normas que lo complementes, modifican o sustituyan.
5.4.1.2 Nivel de Conservación N2 Arquitectónica y N3 Contextual en área afectada y zona de influencia
Todas las intervenciones permisibles en los inmuebles catalogados en el nivel de conservación N2 Arquitectónica y nivel de conservación N3 Contextual deberán ajustarse a las siguientes normas específicas:
Ocupación: El índice máximo de ocupación será del 60%, estando en cualquier caso supeditado al centro de manzana a conservar y a las dimensiones mínimas de patio establecidas en esta norma.
La edificabilidad o índice de construcción: Será el resultado de aplicar el número de pisos permitidos al índice de ocupación.
Volumen y Cubiertas: Se deben conservar íntegramente la forma y el tamaño de los elementos básicos que conforman el volumen de la edificación a proteger, bien sean crujías a conservar de manera integral en los inmuebles de nivel 2 de conservación, o bien el volumen de las crujías en fachada de los inmuebles N3 contextuales determinados en las fichas reglamentarias.
Las cubiertas existentes conservarán las pendientes (dirección y ángulo o porcentaje de pendiente) y las alturas (altura de enrase y altura del caballete) originales en sus tejados; sobre estos tejados, no se permiten sobre-elevaciones (levantar, elevar o alzar otros elementos constructivos o pisos), ni adición de elementos tipo buhardilla (ventana que se levanta por encima del tejado), ni la colocación de tejas plásticas o vidrios.
Queda prohibida la abertura de huecos en los faldones que conforman la cubierta así como la instalación en los mismos que conforman fachada de elementos tales como sistemas de climatización, antenas parabólicas y paneles solares.
Los muros que conforman las crujías a conservar, sea en un N2 o en un N3 conservarán las alturas, formas y alineamientos (retiro a eje de vías), constitutivas del volumen edificado original, por tanto, no se permiten retrocesos ni adelantamientos de la fachada.
No se permite demolición alguna de los elementos a conservar (ver ficha normativa por manzana) antes descritos. Las liberaciones de elementos impropios deberán estar debidamente justificadas.
Alturas: La altura máxima permitida en edificaciones consecuencia de ampliaciones será la establecida bien por la cumbrera o por la línea bajo alero por el elemento a conservar que genera imagen urbana (fachada). En ningún caso la altura libre será inferior a 2,50 metros.
Ampliaciones: Se permiten ampliaciones en inmuebles de nivel N2 y N3 contextual siempre y cuando lo indiquen la fichas normativa por manzana en los N2 (área de movimiento), y lo permita el índice de ocupación máximo en ambos casos. El índice de ocupación máximo permitido que es 0,60 % siempre quedará supeditado al área de centro de manzana a conservar y a las dimensiones mínimas de patio establecidas.
Las ampliaciones seguirán crecimientos tipológicos en L, C y O en torno a patio (ver figura siguiente), respetando las dimensiones tradicionales de crujía que no sobrepasarán los 7,00 metros de ancho. Para edificaciones con uso dotacional, y dada la singularidad de la edificación se permitirán dimensiones mayores de ancho de crujía, siendo necesaria la autorización por parte del Ministerio de Cultura.

Quedan prohibidas las ampliaciones en altura de las crujías que conforman fachada salvo quede indicado en las fichas normativas. Se permiten ampliaciones en alturas de elementos construidos al interior del predio, siempre y cuando no sobrepasen la altura máxima permitida establecida en las fichas reglamentarias de manzana.
Construcción bajo rasante: Se permite la construcción bajo rasante, entendiendo esta como el piso que aparece debido a la pendiente del predio, y entendiendo la rasante como la altura de referencia 0,00 metros, tomada en el punto medio de la fachada.
En cualquier caso el inmueble tendrá como máximo (2) dos pisos.
La construcción bajo rasante cumplirá con condiciones de ventilación e iluminación para espacios habitables.
Figura 36. Esquema ampliaciones y construcción bajo rasante


Línea de referencia 1 y 2: Corresponde a la horizontal, cuya altura es 1 metro por encima de la altura de la cumbrera.
Línea de referencia 3: línea que une los puntos consecuencia de la intersección de la línea de fachada del edificio y de su línea de referencia correspondiente.
Patios interiores: Los patios y vacíos de patios de todas las edificaciones del Centro Histórico de Jericó y su Zona de Influencia, en todos los Niveles de Conservación, se mantendrán descubiertos y libres de todo tipo de cerramiento.
Toda edificación, para todos los usos y en todos los pisos que la conformen, deberá disponer para todos sus espacios de iluminación y ventilación natural directa por medio de fachadas, patios, vacíos de patios o solares.
En los patios producto de ampliaciones o de obra nueva, tendrán una dimensión mínima tal que se pueda inscribir una circunferencia de diámetro mínimo de tres (3) metros.
Los pisos de los patios serán permeables en aras a facilitar que el mismo traspire y evitar de este modo patologías derivadas de las humedades por capilaridad.
Para las edificaciones existentes en el Centro Histórico de Jericó y su Zona de Influencia, catalogadas en los niveles de conservación N2 Arquitectónico, se conservarán las dimensiones de lado y áreas de patios y vacíos de patios originales, en consecuencia no se permitirá el fraccionamiento de estos espacios, excepto, para el caso de subdivisión predial siempre y cuando se ajuste a la normativa específica de los Niveles y sea aprobada la propuesta por entidad competente.
Los patios y vacíos de patios son espacios descubiertos dispuestos para garantizar la iluminación y ventilación natural de zonas o espacios habitables de una o varias destinaciones o unidades y para cualquier uso, la distancia mínima entre ventanas de otras edificaciones debe ser de seis (6) metros.
Mezanines: Se permiten los mezanines en las construcciones a conservar siempre y cuando cumplan las siguientes condiciones:
-Este separados de la fachada como mínimo dos (2) metros, en aras a que estos no fraccionen la misma.
-Se formalicen con una materialidad que permita la reversibilidad del mismo sin afectar a las construcciones con valor patrimonial.
-La superficie del mezanine no sea superior al 60% de la planta del primer piso.
-Las nuevas estancias tenga una altura libre mínima de 2,30 metros.
Aislamiento posterior: El aislamiento posterior será el definido en el plano de centro de manzana a conservar.
Fachada de la edificación: se debe conservar la integralidad, referida a forma, tamaño, dimensión, ubicación y disposición, así como los materiales constructivos y los acabados de todos los elementos formales compositivos de la fachada, si las fichas normativas no dicen los contrario, tales como: aleros y alfardas, vanos de puertas y ventanas, balcones, voladizos para balcones, ornamentación de la carpintería en madera (alfardas, balaustres, bolillos, cornisas y pasamanos, entre otros).
No se permite demolición alguna de los elementos formales compositivos de la fachada, anteriormente descritos, ni la clausura de vanos, ni la apertura de nuevos vanos, si las fichas normativas no indican lo contrario.
En los casos de posible subdivisión predial, la accesibilidad deberá solucionarse con los vanos existentes en la fachada y en todo caso deberá verificarse la factibilidad de la subdivisión en cumplimiento de las normas previstas en esta materia (accesibilidad, frentes y áreas mínimas de lotes, lados y áreas de patios, composición formal de la fachada, entre otras), previa aprobación del proyecto por parte del Ministerio de Cultura.
Así mismo, se permite la recuperación de vanos clausurados o de elementos formales compositivos de la fachada perdidos, previo proyecto de restauración, aprobado por el Ministerio de Cultura.
Los acabados de la fachada, serán mediante pañetado de mortero de cal y arena y pintura a la cal cuando la estructura portante del inmueble lo exija (tapia, bahareque). En cuanto al color, tanto en muros, como en carpintería, se mantendrán los colores tradicionales de la arquitectura Jericoana establecidos en esta norma.
En los inmuebles de nivel 3 de conservación catalogados como 3N-C se deberá proteger la fachada. Se entiende por proteger la fachada, como el volumen de la crujía frontal del inmueble, no así en cuanto a la materialidad del acabado que en muchos casos será susceptible de modificación.
Zócalos: Los zócalos de las edificaciones existentes en el Centro Histórico de Jericó y su Zona de Influencia, deben mantener exclusivamente acabado en pintura monocolor, bien sea un color más oscuro que el resto de la fachada (predominio del café, verde oscuro y verde Jericó) o con el mismo color de la fachada.
No se permite ningún tipo de enchapes en la superficie de la fachada, para la adecuación de zócalos, en tanto alteran el sistema constructivo original conformado por muros en bahareque o tapia con recubrimiento en pañete y con acabado final o pintado con cal y que a su vez generan cargas estructurales adicionales e impidiendo la ventilación necesaria de estos materiales constructivos, por tanto, no se permite la colocación de molduras, ni el recubrimiento o enchape de los zócalos con ningún tipo de material: pétreo (piedra), cemento, cerámica, baldosa, baldosín, ladrillo, gres o algún otro tipo de material adicional.
Los inmuebles existentes con zócalos en enchapes de algún tipo, deben eliminar el revestimiento en aras a devolver la conformación original del mismo.
Cuando en inmuebles N2 arquitectónico, y N3 contextual, aparezcan nuevos zócalos debido a ampliaciones, estos deben seguir la altura, y color de los existentes en aras a la continuidad de la imagen urbana.
Culatas: Tanto la aparición de nuevas cultas debido a ampliaciones como las existentes deben ser tratadas como las fachadas.
Conductos en fachadas: Tanto en ampliaciones, como en edificación existente se permite la aparición de bajantes y canoas vistas en fachadas, siempre y cuando sean metálicas.
Aleros: En ampliaciones de inmuebles de tipo N2 tipológico y N3 contextual, los aleros, al igual que la altura bajo el mismo y la altura de cumbrera, serán una continuidad de los existentes, tanto en cuanto a la dimensión como en cuanto a la materialidad.
Cuerpos volados y balcones: Se prohíbe la aparición de balcones en fachada en las edificaciones de nivel 2 arquitectónico y nivel 3 contextual a conservar a no ser que esté debidamente documentada la existencia de los mismos con anterioridad.
Para ampliaciones que generan fachada, la normativa en cuanto a la existencia de balcones o cuerpos volados será la misma que para obra nueva.
Sótanos y semisótanos: Quedan prohibidos los sótanos y semisótanos en toda el área afectada.
Distribución espacial: Las edificaciones catalogadas en el nivel de conservación N2 deben conservar la distribución espacial interna, conformada por zaguanes, corredores para circulación y distribución, espacios internos, patios, vacíos de patios y solares, (ver ficha normativa) en consecuencia, se deben mantener las dimensiones (alto, ancho y largo) de estos espacios. La formalización de entrepisos y distribuciones interiores en aras a adecuar funcionalmente un inmueble deben ser reversibles y permitir la legibilidad de los elementos que dotan de valor al inmueble.
Centro de manzana: Los solares que conforman centros de manzana deben ser conservados, manteniendo la superficie empradizada, arborizada, y con huertas caseras así como las pendientes naturales del terreno y las terrazas preexistentes, por tanto, no se permiten pisos duros o desarrollos constructivos que alteren la condición natural del solar, atributo arquitectónico y ambiental del Centro Histórico de Jericó.
Subdivisión predial: En los Niveles de Conservación N2 arquitectónico y N3 contextual se permitirá la sub división predial, para los inmuebles que cumplan con la normativa específica establecida para cada Nivel de Conservación (Intervención), y que conserven las características básicas de implantación de la edificación tales como: la unidad volumétrica y de fachada original, el esquema funcional de circulaciones, las condiciones básicas de habitabilidad en términos de espacialidad, iluminación y ventilación directa, a través de fachadas y patios (descubiertos), y se conserven los solares que conforman centros de manzana, entre otras, como se especifica a continuación:
- Para adecuación de accesos se aprovecharan los portones de acceso secundarios (comúnmente destinado al ingreso y salida de animales e insumos doméstico, para la agricultura y ganadería); accesos por fachada laterales, cuando la edificación de frente a dos vías o cuando se comparte para dos o más predios.
- Se mantendrán las características volumétricas y de alturas de la edificación, respetando la composición de la cubierta y sus materiales. No se permiten mansardas, terrazas, ni retrocesos de fachada en ninguno de los pisos de la edificación.
- Se mantendrá el lenguaje formal de la fachada, conservando: tamaños, alineamiento superior e inferior, formas, materiales y diseños ornamentales de los vanos de puertas y ventanas y demás elementos compositivos de la fachada, garantizando que se mantenga la unidad de fachada.
- Área mínima de los predios resultantes después de la subdivisión: 70 m2.
- Frente mínimo de los predios resultantes después de la subdivisión: 6.0 m. siempre dando frente en toda su extensión con la vía pública.
- Toda subdivisión de inmuebles N2 arquitectónico y N3 contextual con elementos a conservar requiere de autorización por parte del Ministerio de Cultura.
Englobes: Cuando se realicen englobes, el nuevo predio heredara el nivel de conservación más restrictivo de los inmuebles originales. Así mismo, el englobe estará condicionado a la elaboración de una nueva ficha normativa aprobada por el Ministerio de Cultura.
Materiales de la edificación: Los elementos a conservar de los inmuebles catalogados en el nivel de conservación N2 arquitectónico y N3 contextual deben conservar los materiales con los cuales fueron concebidos originalmente. Así mismo toda ampliación debe materializarse con elementos compatibles con los existentes.
Lenguaje: Las ampliaciones de las edificaciones existentes deben ser entendidas como nueva arquitectura dentro de un contexto histórico, es decir el lenguaje debe estar en armonía con lo existente diferenciándose del mismo en aras a que no aparezcan falsos históricos. La nueva arquitectura debe propender por el uso de materiales constructivos tradicionales. (tapia, bahareque, adobe etc.).
Antenas: Queda prohibida la instalación de antenas parabólicas en los faldones de cubierta que generan fachada, balcones o muros de fachada en general.
Restitución: Las intervenciones realizadas que han afectado los valores de los inmuebles catalogados en los niveles 2 y 3 contextual deben reversarse cuando se solicite licencia de construcción o cambio de uso.
Intervención en construcciones que se deben conservar:
Las reparaciones en edificaciones de conservación deben realizarse con los mismos materiales de su construcción, o aquellos que sean totalmente compatibles con los mismos: adobes, tapia pisada y bahareque.
Cuando el estado de la edificación sea irrecuperable o existan fallas técnicas irremediables en sus elementos estructurales, puede buscarse su reconstrucción mediante materiales acordes con las técnicas constructivas tradicionales o con las actuales, siempre que mantengan las características relacionadas con los valores arquitectónicos protegidos y se empleen, en la medida de lo posible sistemas similares a los sustituidos, sin generar falsos históricos ni patologías a los materiales originales que van a conservarse.
5.4.1.3 Nivel de conservación N3 sin valor contextual y obra nueva en el área afectada y zona de influencia
Se aplica a inmuebles que no son compatibles con el contexto, así como a predios sin construir que deben adecuarse a las características del sector urbano. Este nivel busca la recuperación del contexto urbano en términos del trazado, perfiles, paramentos, índices de ocupación y volumen edificado.
Índice de ocupación:
El índice de ocupación máximo permitido es del 60%. Este índice queda condicionado a los centros de manzana a conservar y a la dimensión mínima de patio establecida.
Dimensión de las crujías:
La aparición de la nueva arquitectura seguirá modelos de crecimiento tradicionales, siendo la máxima crujía permitida de ancho 7,00 metros.
En el caso de obra nueva con uso dotacional que requiera de mayor dimensión de crujía, requerirá de estudio específico y de autorización del Ministerio de Cultura.
Paramento: En todo el perímetro del Centro Histórico y la Zona de Influencia de Jericó, se mantendrá la línea actual de paramento, en toda la extensión de la fachada y en todos los pisos que conformen la edificación. La línea de paramento está definida por el borde interno del andén, salvo para las tipologías que actualmen cuentan con retroceso en el paramento, las cuales mantendrán esa condición, particularmente para los predios del Centro Histórico, identificados con el código predial: 004300012 (Casa Cural); 004400008 (Residencia); 002700011(Residencia); 001100027 (Residencia); 000200052 (capilla Monasterio Santa Clara); 000300017 (seminario Conciliar) y 005300097 (Templo Inmaculado Corazón de María).
Figura 37. Esquema normativa paramentos –corte-

Las nuevas edificaciones, admisibles en el Nivel de Conservación Contextual N3, en las categorías incompatible y obra nueva (N3-I, N3-L), deberán dar continuidad a la línea de paramento de las edificaciones vecinas y en todo caso mantendrá la misma distancia entre la edificación existente colindante y el eje de la vía sobre la(s) cual(es) tenga(n) frente el lote a construir, es decir, siempre con referencia al retiro del eje vial. Adicionalmente deberán consultar los lineamientos normativos predio a predio, definidos en la Ficha Normativa por Manzana. Para los niveles de intervención N1 y N2 siempre deberán contar con el proyecto aprobado por el Ministerio de Cultura o autoridad competente cumpliendo estas normas generales.
Figura 38. Esquema normativa de paramentos –planta-

Adicionalmente, para garantizar la conservación de la línea de paramento de las edificaciones, se deben respetar los siguientes preceptos normativos:
- Mantener el paramento en toda la extensión de la fachada y en todos los pisos que conformen la edificación.
- Generar voladizos única y exclusivamente para balcones que correspondan a la ubicación de puertas y ventanas, siempre y cuando se acojan los lineamientos para la construcción de balcones de la presente normativa.
- No se permiten voladizos de ninguna dimensión en fachada cerrada.
Patios interiores: Los patios tendrán una dimensión mínima tal que se podrá inscribir una circunferencia de diámetro de 3 metros.
Los pisos se materializaran mediante materiales que permitan la permeabilidad de los mismos en aras a evitar humedades en muros por capilaridad.
Está prohibida la cubierta de los patios.
Aislamiento posterior: El aislamiento posterior queda determinado en la planimetría de los centros de manzanas a proteger. Esta área libre obligatoria forma parte del área total libre que el inmueble debe tener establecido en el índice de ocupación.
Cubiertas y aleros:
Las cubiertas de las edificaciones nuevas del Centro Histórico y la Zona de Influencia de Jericó, se proyectarán, siempre, con pendiente hacia la(s) vía(s) pública sobre la(s) cual(es) tengan frente los inmuebles y deberán terminar en aleros (es la parte del tejado que sale fuera de la pared de la fachada o paramento). Excepto las edificaciones que originalmente se concibieron con muros áticos, las cuales están referenciadas en la ficha normativa por manzana.
Los aleros tendrán un ancho mínimo igual a la proyección del ancho del andén, el cual, oscila entre 0.80 m. (dimensión mínima) y 1.00 m., esto para garantizar el adecuado salpique de aguas lluvias. El acabado de la cubierta será en teja de barro. La altura máxima del frente del alero será de 15 cm.

Toda construcción deberá cubrir con techos inclinados con pendiente mínima del treinta por ciento (30%) y máxima del cuarenta y cinco por ciento (45%). En ningún caso se admitirán placas de concreto como acabado definitivo en cubiertas. Figura 40. Esquema normativo sentido y pendiente de las cubiertas

En ninguno de los pisos de la edificación se permiten terrazas, ni adecuación de elementos constructivos que sobresalgan o alteren la pendiente de la cubierta. Así mismo queda prohibido la abertura de vanos en los faldones de la cubierta.
Las edificaciones ubicadas en el Centro Histórico y la Zona de Influencia de Jericó, que se encuentren cubiertas en teja de asbesto cemento, zinc, o algún otro material diferente a teja de barro, deberán ser reemplazadas por teja de barro con las especificaciones técnicas indicadas en la presente normativa, para este tipo de cubierta.
Alturas:
Para las nuevas edificaciones a construir en el Centro Histórico y la Zona de Influencia de Jericó, correspondientes al nivel de conservación N3 sin elementos a conservar y obra nueva, con las cuales se busca compatibilizar con el entorno o contexto de ubicación, se mantendrá la altura predominante, en el costado de manzana en la cual se localicen, referenciándola, con los inmuebles colindantes catalogadas en los niveles Integral, Arquitectónico y Contextual Compatible, como se establece, en la ficha normativa por manzana.
Los condicionantes de altura en metros (m) son los siguientes:



Medición de la altura: la altura de las edificaciones -tanto máxima como mínima-, se mide desde el punto medio de la fachada.
Adicionalmente, para la medición de la altura de la edificación se tendrán en cuenta los siguientes parámetros:
La altura máxima de la edificación para inmuebles ubicados entre medianeros y con pendiente cero o leve, se acoge la máxima permisible.
Figura 41. Esquema normativo medición de la altura de las edificaciones

Cuando el lote se ubica en esquina y ambas fachadas presentan pendientes considerables, la altura máxima de la edificación se medirá desde el punto medio de cada fachada tomando como altura máxima única la media entre la máxima de ambas fachadas.
Línea de referencia 1: Altura máxima permitida medida desde el punto medio de la fachada 1. La altura máxima puede determinarse por el cuadro genérico que relaciona n° de pisos con altura en metros, o por la establecida por edificación con nivel de conservación.
Línea de referencia 2: Altura máxima permitida medida desde el punto medio de la fachada 2. La altura máxima puede determinarse por el cuadro genérico que relaciona n° de pisos con altura en metros, o por la establecida por edificación con nivel de conservación.
Hmax: Corresponde a la altura media entre la determinada por las dos líneas de referencia.
En el caso de fachadas en viales con pendiente pronunciada, se provocará el escalonamiento de cubiertas de forma que la diferencia de altura entre el punto medio de la fachada y los extremos no exceda de 1,5 metros.
Figura 42. Esquema para medición de altura

Medianeras: Para ampliaciones, reformas y construcciones nuevas debe mantenerse la condición original de muros de las edificaciones colindantes, por tanto, no se permite la intervención o modificación de ningún tipo de muro medianero o colindante, que modifique la condición original del mismo y que vaya en detrimento de sus características estructurales, tales como: demolición parcial o total, cambio de material, cambio de conformación, cambio de dimensión, cambios de posición de muros colindantes en tapia, bahareque, o la combinación de estos dos materiales.
Figura 43. Norma para muros colindantes

Adicionalmente se considerarán los siguientes preceptos normativos:
- Debe construirse muro independiente, para la nueva edificación.
- Las adiciones y reformas permisibles según Nivel de Conservación (Intervención), deben consultar las normas vigentes en materia de sismo resistencia, para efectos de anclajes entre muro existente y muro nuevo, al momento de la intervención.
- Debe efectuarse acabado de muros posteriores y laterales de la edificación nueva o adición, que sean colindantes o medianeros, garantizando el mismo acabado de la fachada principal. Mínimamente se debe revocar y encalar.
- Fachadas:
Composición Formal
El diseño de las fachadas del Centro Histórico de Jericó y su Zona de Influencia, aporta valores estéticos de simetría y armonía al conjunto patrimonial, conservando aún el lenguaje formal tradicional, destacado por el ritmo en los vanos de puertas, ventanas y balcones, la utilización de elementos decorativos de gran riqueza ornamental, la presencia de aleros y techos con pendientes generosas, predominio de colores claros en fachada y tonos más oscuros, en zócalos, balcones, puertas, ventanas y pasamanos, con combinaciones armónicas que exaltan elementos ornamentales específicos y que en todo caso denotan sobriedad, en el manejo del color para el enlucimiento y mantenimiento de fachadas.
Por lo anterior, se garantizará la conservación de la unidad de fachada, manteniendo el lenguaje formal de sus elementos compositivos, para lo cual se deberán atender los siguientes preceptos normativos:
Alineamiento de los vanos: conservar el alineamiento superior e inferior de vanos de puertas y ventanas, de las edificaciones con valor patrimonial colindantes. Esta condición solo cuando las calles sean planas.
Correspondencia de los vanos: garantizar la correspondencia en la ubicación de vanos en pisos superiores con relación a la disposición y ubicación de vanos del primer piso.
Forma de los vanos: mantener la forma geométrica rectangular y en sentido vertical, de los vanos de las ventanas, con una proporción 1:2, en la cual, "a" corresponde al ancho del vano, a = uno (1); y "b" corresponde a la altura del vano b = dos (2), consultar gráfico
Tamaño de los vanos: mantener la uniformidad en los tamaños de los vanos de las ventanas y los vanos de las puertas, acordes con las jerarquías por ubicación en la fachada, por ejemplo, la puerta principal sobre fachada principal, de mayor dimensión.
Materiales de la carpintería: mantener la madera como único material para la elaboración de todos los elementos compositivos de la fachada a saber: marcos, alas, tableros, pasamanos, calados y ornamentación en general de ventanas, puertas, portones, contra –portones y divisiones interiores de comedores; pasamanos, tableros, voladizos y ornamentación de balcones; estructura de los techos y particularmente las alfardas ornamentales de los aleros.
Diseño de la carpintería: mantener los diseños ornamentales tradicionales de los elementos compositivos de la fachada, tales como: marcos, alas, tableros, pasamanos, voladizos y balcones; estructura de los techos y las alfardas de los aleros (los aleros permanecerán a la vista, libres de cielo raso), así como los calados y la ornamentación en general de ventanas, puertas, portones, contra – portones y balcones y demás elementos constitutivos de la carpintería.
Fachadas en edificaciones esquineras: toda edificación de esquina deberá tener fachada abierta hacia ambos costados de las vías sobre las cuales dan frente.
Figura 44. Esquema normativo composición formal de fachada

Acabados de Fachadas: Los acabados de fachadas serán mediante pañetados pintado a la cal, como material de recubrimiento y protección contra la humedad, estas fachadas, deben permanecer libres de enchape de cualquier tipo.
Así mismo, se mantendrán las características de identidad referida al conjunto de rasgos propios de la colectividad Jericoana, expresada entre otras, en el color, cuyas características históricas lo diferencian frente a las tendencias de los demás municipios de Antioquia, por tanto, para garantizar que se mantenga este atributo, se respetarán los siguientes preceptos normativos:
Color de la fachada: se debe mantener el color predominante históricamente y que dio origen a la declaratoria del Centro Histórico de Jericó y su Zona de Influencia(11): las paredes exteriores de la fachada color blanco de cal, matizados con tonos pastel; en contraste, las puertas, balcones y ventanas, con colores verde y azul -en diversas tonalidades-, crema, café, rojo, naranja y blanco; las molduras de los elementos compositivos de puertas y ventanas, se resaltan mediante la combinación de dos, máximo tres colores.
Zócalos en la fachada: los zócalos de las edificaciones existentes en el Centro Histórico de Jericó y su Zona de Influencia, deben mantener exclusivamente acabado en pintura monocolor, bien sea un color más oscuro que el resto de la fachada (predominio del café, verde oscuro y verde Jericó como lo tiene la carpintería) o con el mismo color de la fachada.
No se permite la incorporación de recubrimientos de cualquier tipo en la superficie de la fachada para la adecuación de zócalos, en tanto alteran el sistema constructivo, por tanto, no se permite la colocación de molduras, ni el recubrimiento o enchape de los zócalos con ningún tipo de material: pétreo (piedra), cemento, cerámica, baldosa, baldosín, ladrillo, gres o algún otro tipo de material adicional.
Los zócalos deberán desarrollarse buscando una solución armónica con respecto a las edificaciones colindantes y a las que conforman el costado de la cuadra donde se ubiquen, con el objetivo de coadyuvar con este elemento a mantener la homogeneidad urbanística en las fachadas.
Se debe mantener la altura y la pendiente predominante de los zócalos jericoanos, los cuales, no serán inferiores a 1.0 m. de altura, ni supere los 1.50 m. Esta medida se toma desde el andén y mantienen el alineamiento de la pendiente de la vía sobre la cual da frente la edificación. Para edificaciones en esquina debe efectuarse empate en esquina, el cual, armonizará la altura entre ambas fachadas.
Acabado de Muros laterales o posteriores: todos los muros de cerramiento de las edificaciones, posteriores, laterales medianeros colindantes o no, así como los muros provisionales de cerramiento de predios baldíos, deberán contar con acabado, permanecer pintados o con acabado en cal.

Conductos visibles en fachadas: Se permite la instalación de canoas y bajantes vistas siempre y cuando sean en cobre.
Chaflanes o retranqueos en fachadas y antejardines: Quedan totalmente prohibidos los chaflanes, los retranqueos en fachadas y los antejardines.
Cuerpos volados y balcones: Para nuevas edificaciones la dimensión máxima del voladizo para balcones será de 0.50 m. El único material admisible para construcción de balcones, es la madera la cual será utilizada para la construcción y elaboración de pisos, pasamanos y cerramiento inferior; Así mismo, los pasamanos serán elaborados en madera ornamentada con calados o en macana, si se opta por cerramiento inferior del balcón, este también será en madera y con un área de cerramiento de máximo el cincuenta 50% del área total del balcón.
Figura 46. Esquema normativa de voladizo de balcón, pasamanos y ornamentación.

No se permiten balcones cerrados en un 100%, en ningún tipo de material, ni ornamentados con balaustradas de concreto, cerramientos en ladrillo, vaciados en concreto, ni en hierro forjado. Las fichas normativas por manzana establecen los casos específicos en los que se requiere adecuación de fachadas que presentan este tipo de materiales, o que presentan dimensiones y formas incompatibles, por tanto, la adecuación de balcones inconvenientes, así como los voladizos para balcones en obra nueva, adiciones y reformas, respetarán los lineamientos normativos, establecidos en el presente numeral.
Figura 47. Esquema normativo de materiales inconvenientes para balcones

La longitud de los balcones no excederá en un 60% de la longitud de la fachada. En cualquier caso los balcones deben permanecer abiertos, sin cerramientos laterales, contra muros colindantes. Los balcones corridos deberán separarse una distancia mínima de un (1) metro del muro medianero y no tendrán cerramientos laterales, contra muros colindantes.

En todos los pisos de la edificación, se debe conservar la misma línea de paramento existente, (retiro a eje de vía, acorde con el plan vial), en ningún caso son permisibles los cuerpos volados en fachada cerrada.
Construcción bajo rasante: Ver el mismo apartado para inmuebles de conservación N2 y N3 contextual.
Sótanos y semisótanos: Quedan prohibidos los semisótanos tanto en el área afectada como en la zona de influencia.
Se permiten los sótanos solo en la zona de influencia, y siempre y cuando se destinen a uso de parqueadero o bodegaje. Los parqueaderos deberán seguir los siguientes condicionantes:
Las dimensiones mínimas libres de las celdas de parqueo serán de 2,50 m por 5,00 m y la sección del carril de circulación será de 6,00 m para parqueo en doble crujía y de 5,50 m para parqueo en un solo costado.
La pendiente de las rampas de acceso y de circulación interna será máxima de un 16%.
Las rampas internas de los parqueaderos no deben invadir el espacio público ni desembocar directamente a los andenes públicos. Entre esas rampas internas y el espacio público debe realizarse una plataforma de máximo el 5% de pendiente y longitud 5 metros.
Todos los parqueaderos públicos deben disponer de una celda para vehículos que transporten personas con discapacidad, por cada 25 celdas totales. Estas celdas deben ubicarse lo más próximo posible a los accesos de los espacios o edificios servidos por los mismos, preferentemente al mismo nivel de estos. Los desniveles en los recorridos peatonales del estacionamiento deben presentar rampas.
Los sótanos deben cumplir con los mínimos exigidos de renovación del aire para el uso propuesto.
Estacionamientos: Cada unidad nueva de vivienda en la zona de influencia deberá incorporar una plaza de parqueadero. Si por condiciones del predio no fuese posible, esta reserva de deberá realizar en otro inmueble, o en áreas de parqueaderos públicos.
Habitabilidad: Todos los espacios habitables deben tener iluminación y ventilación natural, bien sea a fachada o a patio interior. Los núcleos húmedos y áreas de bodegaje podrán ventilar de forma natural o mecánica mediante ductos de ventilación.
Lenguaje: El lenguaje de la nueva arquitectura debe responder a una interpretación del existente en aras a no generar falsos históricos. En ese orden de ideas las nuevas construcciones deben respetar tanto el lenguaje compositivo de las fachadas que generan contexto urbano, como el manto de cubierta o quinta fachada.
Tanques de agua: Los tanques de agua deberán localizarse en el primer piso en espacios para tal, u ocultos bajo cubierta. En ningún caso se permite la ubicación de los tanques de aguas vistos en cubiertas.
Área mínima del predio: La dimensión mínima de los predios para obra nueva en área afectada y zona de influencia será de 72 m², con un frente mínimo de fachada de (6) seis metros. Si un predio no cumple con lo anterior deberá englobarse con predios colindantes para el desarrollo del inmueble. No obstante, cuando un predio no cumpla con los mínimos exigidos pero colinde con inmuebles consolidados, se permitirá la construcción cumpliendo con los condicionantes de habitabilidad.
Subdivisión predial: Se permitirá la subdivisión predial en Centro Histórico y la Zona de Influencia para nueva edificación, exclusivamente en predios que garanticen indefectiblemente el cumplimiento del frente mínimos de lote de seis (6.0) metros, una superficie mínima de predio de 72 m² y toda la extensión o longitud del frente esté sobre la vía pública garantizando la continuidad en las conformación de unidad de fachada urbana y cuenten con accesibilidad directa por vía pública, además deberá garantizar, el cumplimiento de paramento exterior sobre vía pública y paramento interior hacia centro de manzana, respectivamente, como parámetros que define el índice máximo de edificabilidad, siempre y cuando se dé cumplimiento a la normativa del presente capítulo.
Paramento de construcción: Los predios sin construir deben mantener como cerramiento una barda de al menos 1,80 metros, que guardará continuidad del paramento de la manzana y asegurará la continuidad del espacio y el ambiente urbano del municipio. Su acabado se hará con materiales permitidos para la fachada.
Obras en inmuebles fuera de ordenación: En inmuebles fuera de ordenación, es decir que no cumplen la norma del Plan Especial de Manejo y Protección para el área afectada y zona de influencia del municipio de Jericó, las obras de reparación y adecuación deben suponer una mejora de la escena urbana y no una consolidación de una situación no conforme.
5.4.1.4 Normas generales para áreas por desarrollar en zona de influencia.
Cuando en la zona de influencia existan áreas por desarrollar establecidos en el instrumento de planificación territorial, se debe reglamentar los siguientes aspectos:
Nuevos desarrollos: Los nuevos desarrollos se darán a continuación de áreas consolidadas en aras a no generar islas de manzanas aisladas.
Superficie mínima de parcelación. La dimensión mínima de parcelación para nuevos desarrollos será de 160 m².
Frente mínimo: El frente mínimo de la nueva parcelación será de (8) ocho metros.
Ocupación máxima: La ocupación máxima de los nuevos desarrollos será del 60%.
5.4.1.5 Fichas normativas
Los inmuebles con niveles de intervención de conservación arquitectónica N2 y contextual N3, quedan reglamentadas mediante las correspondientes fichas reglamentarias. Dentro de estas aparecen los siguientes condicionantes:
Área a conservar; Superficie construida que posee valores tipológicos y que solo se permite acciones de restauración, consolidación, conservación, rehabilitación y reforzamiento estructural. En ningún caso se permite la demolición.
Elementos a liberar; Corresponde a elementos añadidos o impropios que se propone eliminar ya que no forman parte de los valores tipológicos del inmueble.
Área libre a proteger; Corresponde a áreas libres (libres), que forman parte de los elementos tipológicos que dotan de valor a los inmuebles.
Centro de manzana a conservar; Área libre de centro de manzana característica de este tipo de arquitectura.
Área de movimiento; Área delimitada donde se permiten ampliaciones o modificaciones de los elementos construidos en los inmuebles.
Fachada a proteger; Volumen de la crujía que conforma la fachada, así como la composición de vanos y líneas de altura, tanto bajo alero como de cumbrera.A diferencia del área a conservar, donde se conserva la totalidad de los elementos construidos, en esta condición se conserva el volumen total de la primera crujía, y la materialidad de la fachada.
A continuación se expone la fichas normativas por manzana, cuyo objetivo es ilustrar la forma de aplicación de la normativa general y específica, expuesta tanto en el presente capítulo, como en los Documentos Técnicos de Soporte tanto de Diagnóstico como la Propuesta Integral del PEMP del Centro Histórico de Jericó y su Zona de Influencia, el Atlas que contienen la Cartografía y los Levantamientos Fotográficos predio a predio por manzanas, son parte constitutiva de la normativa y por tanto deben ser consultados al momento de la aplicación y el control.
Las fichas son 64 que corresponden a las manzanas de Centro Histórico y ZI de Jericó. Con un conteo inicial de predios que corresponde a Catastro 2013 (el cual posee incongruencias en algunos predios) el resultado en la siguiente tabla debe considerar que varios predios pertenecen a un solo inmueble, así El Templo del Inmaculado Corazón de María posee 7 predios, una de las edificaciones se encuentra subdividida en 4 predios y es un solo inmueble; así mismo en una manzana aparecen predios de centro histórico y zona de influencia se cuenta en el área de mayor cantidad. Por ello se advierte la importancia de realizar las consultas normativas con los otros documentos, listados y levantamiento fotográfico.

6. CONDICIONES DE MANEJO ADMINISTRATIVO
6.1 FORTALECIMIENTO INSTITUCIONAL
Es necesario recordar que a partir de la vigencia de la Ley 1185 de 2008, el Consejo Nacional de Patrimonio Cultural (CNPC) es el encargado a nivel nacional de todo lo relacionado con la protección y el manejo del patrimonio cultural de la Nación, mientras que los Consejos Departamentales y Municipales de Patrimonio Cultural cumplirán funciones análogas al CNPC.
Así las cosas, al Ministerio de Cultura, previo concepto favorable del CNPC le corresponde la declaratoria y el manejo de los BIC del ámbito nacional, mientras que los BIC del ámbito departamental o municipal, serán declarados por la respectiva autoridad competente.
Para la administración del Centro Histórico de Jericó como BIC del ámbito Nacional, es necesario contar con una gestión coordinada desde éste ámbito, pasando por el departamental, para llegar al municipal, para lo cual se requiere interlocutores que, además de conocer la especificidad del Centro Histórico de Jericó, mantengan un canal de comunicación directo que les permita ser ágiles al momento de tomar cualquier decisión relacionada con la intervención, mantenimiento o administración del Centro Histórico del Municipio.
El fortalecimiento institucional propuesto para el municipio de Jericó, facilita la implementación de las medidas de protección del Centro Histórico, planteadas en el PEMP, entendiendo que este requiere interlocución directa con la administración municipal y así armonizar la incorporación de una nueva estructura organizacional, para la ejecución del PEMP y adaptada a los roles y responsabilidades del Municipio en sus funciones básicas como autoridad encargada del cumplimiento de las políticas departamentales y nacionales sobre el manejo del patrimonio cultural.
Se busca con ello definir líneas claras para la gestión e implementación del PEMP, para lo que se requiere procesos de apoyo donde cada dependencia y los servidores que las constituyen, comprendan y asuman completamente el sentido y el significado del Centro Histórico en toda su extensión.
Es de recordar que actualmente, existe dentro de la estructura administrativa del Municipio la Secretaría de Educación, Cultura y Turismo, la cual tiene como misión gerenciar el sistema Educativo y Cultural a partir de programas y proyectos direccionados por ella, al igual que la gerencia del sector turístico, además de velar por la protección y divulgación del patrimonio cultural material e inmaterial del Municipio.
Para ello, y luego de un análisis de oportunidades y fortalezas de la administración municipal y los nuevos roles generados a partir de políticas de manejo y protección del patrimonio, se propone el fortalecimiento institucional a través, de la incorporación de una Secretaría de Patrimonio Cultural y Turismo, además de un Comité Técnico de Patrimonio Cultural y la Fundación Centro Histórico Jericó de carácter público privado, para viabilizar las acciones propuestas por el Plan Especial de Manejo y Protección del Centro Histórico. Dentro de este programa de fortalecimiento se debe realizar la formación y capacitación por parte del Ministerio de Cultura a los técnicos designados.
Así las cosas, y con la necesidad de darle la importancia al sitial que entra a ocupar el patrimonio cultural del Municipio con su declaratoria, es que se hace relevante la creación de esta nueva Secretaría, a la cual se le destinarían los recursos de Cultura y Turismo que actualmente se encuentran en el mismo rubro de educación, y los cuales se deben fortalecer con la gestión que debe realizar esta Secretaría, siendo potestad ésta decisión (de crear la Secretaría) del Concejo Municipal quien en principio manifiestan su viabilidad.
A renglón seguido se presenta la propuesta de esta nueva Secretaría dentro de la estructura administrativa del Municipio y el enfoque que debe tener su gestión desde la visión estratégica del PEMP.
6.1.1 Secretaría de Patrimonio Cultural y Turismo
Para el caso del municipio de Jericó, la protección del patrimonio inmueble en el momento actual, recae sobre la Secretaria de Planeación, de algún modo apoyada por la Secretaría de Educación, Cultura y Turismo, considerando que se está minimizando la importancia del Centro Histórico en la amplitud de los requerimientos y las condiciones de manejo exigentes de una mayor experticia y especificidad. A continuación se presenta el organigrama actual de la estructura administrativa del municipio de Jericó, con la inclusión de la nueva Secretaría y las modificaciones propuestas.

En este sentido, el municipio de Jericó podrá mantener la Secretaría de Educación y crear una nueva Secretaria de Patrimonio Cultural y Turismo con todas sus categorías para el ámbito rural y urbano: patrimonio histórico, arquitectónico y cultural de Jericó.
No se trata de nueva burocracia, y aunque al principio podrá generar para el Municipio nuevos gastos, en la medida en que esta nueva Secretaría se consolide y los objetivos de conservación y promoción del patrimonio se mantengan, es posible que vía impuestos y por la generación de nuevas fuentes de empleo e ingresos posiblemente por aumento de visitantes, los recursos del Municipio se incrementen en el mediano plazo.
Se deberá entonces modificar el Decreto 144 de 2005 del municipio de Jericó, y crear en la estructura organizacional la nueva Secretaria de Patrimonio Cultural y Turismo, la cual dependerá y reportará directamente al Alcalde Municipal. Ver el numeral 2 de Documentos Jurídicos, donde se propone el Acuerdo para que el Concejo Municipal autorice al Alcalde para la modificación de la Estructura Administrativa, además de la propuesta de Decreto para la creación de la nueva Secretaría de Patrimonio Cultural y Turismo.
Es de anotar, que igualmente se resalta aquí la importancia de potenciar el Turismo, con el enfoque cultural que amerita, como unos de los renglones a desarrollar para lograr integrar decididamente ésta actividad al uso y usufructo del Patrimonio Cultural, asumiendo éste como una de las fuentes más importantes, a partir de las cuales se puede generar la "utilización económica" de éste patrimonio.
En ese orden de ideas, a continuación se presenta la propuesta de alcance del nuevo cargo:
- IDENTIFICACIÓN GENERAL.
- Nombre del cargo: Secretario de Patrimonio Cultural y Turismo.
- Código: 020 Grado Salarial: 07.
- Unidad de Gestión: Secretaría de Patrimonio Cultural y Turismo del Centro Histórico.
- Número de cargos en la Entidad: 1.
- Cargo Jefe Inmediato. Alcalde Municipal.
- MISIÓN (Propósito Principal)
Contribuir a definir y estructurar un modelo de desarrollo integral para el Municipio, que integre el Patrimonio Cultural del Centro Histórico y el Municipio, en articulación con las demás secretarias, en especial con la de educación, planeación y con la activa participación de la sociedad civil.
- FUNCIONES ESENCIALES.
- Cumplir la misión en un ambiente de respeto, compromiso, amabilidad e integridad que propenda por el fortalecimiento de valores individuales y colectivos como la lealtad y la honestidad, donde los funcionarios garanticen y aseguren el uso eficiente, eficaz y óptimo de los recursos y las actuaciones se realicen de forma oportuna, confiable y veraz.
- Garantizar que en la elaboración, aprobación, ejecución, seguimiento, evaluación y control del Plan de Desarrollo y el Esquema de Ordenamiento Territorial del Municipio, con visión prospectiva en armonía con los planes departamentales y nacionales, sea considerado el Patrimonio Cultural y de manera especial el Centro Histórico, realizando así implementación y seguimiento al Plan Especial de Manejo y Protección.
- Elaborar, proyectar, gestionar, los proyectos en el Plan de Desarrollo en lo atinente al Patrimonio Cultural del Centro Histórico, con el fin de cumplir con lo dispuesto en el Plan Especial de Manejo y Protección... Con el apoyo de la comunidad y sus organizaciones, garantizar que los bienes de uso público y el Patrimonio Cultural del Centro Histórico sean conservados, manejados adecuadamente y promocionados a nivel local, regional, nacional e internacional.
- Reevaluar el plan sectorial de turismo con que actualmente cuenta el Municipio, a partir de un enfoque integral que asuma el Patrimonio Cultural como el eje estructurante del sector.
- Direccionar y garantizar la aplicación del Plan Especial de Manejo y Protección Centro Histórico de Jericó.
- FUNCIONES BÁSICAS.
- Gestionar y velar por la aplicación del PEMP, y hacer seguimiento y evaluación a las políticas de que en tal sentido se aprueben en el ordenamiento territorial.
- Direccionar revisar y conceptuar las propuestas de intervención que se realicen para el Patrimonio Cultural del Municipio en sus diferentes niveles, para la decisión que deberá aprobar la instancia competente para ello.
- Afianzar metodologías para el seguimiento y evaluación del Esquema de Ordenamiento Territorial EOT, así como la participación ciudadana en el proceso de planeación, en lo atinente al Patrimonio Cultural del Centro Histórico.
- Ajustar políticas y acciones en materia de Patrimonio Cultural del Centro Histórico, de acuerdo con las directrices del nivel superior, en el campo departamental y nacional, aplicando los principios de armonía regional y gradación normativa.
- Asegurar la calidad y entrega oportuna de los proyectos contratados por la Administración Municipal.
- Garantizar la asignación efectiva de los recursos a fin de que se preste el servicio a la comunidad de manera oportuna y eficiente, elevando la calidad de vida de los mismos.
- Dirigir y coordinar las políticas, programas y proyectos con respecto al Patrimonio Cultural del Centro Histórico y del Municipio.
- Formular proyectos para el Banco de Programas y Proyectos Municipal.
- CONTRIBUCIONES INDIVIDUALES.
- Apoyo al modelo de planeación y gestión apropiado y desarrollado.
- Fomentar el Banco de Programas y Proyectos, con portafolio de programas y proyectos en materia de Patrimonio Cultural del Centro Histórico y municipal.
- Definir parámetros de seguimiento, evaluación y retroalimentación de la gestión estratégica, definida y establecida.
- Contribuir con los Planes Estratégicos formulados para el Patrimonio Cultural del Centro Histórico.
- ELEMENTOS DE COMPETENCIA
1. Direccionar el seguimiento y evaluación a las políticas, proyectos y actividades formulados a los planes estratégicos de desarrollo del Municipio, teniendo como apoyo la evaluación de gestión y resultados de la administración, específicamente en lo que tiene que ver con el Patrimonio Cultural del Centro Histórico.
2. Mantener actualizado el sistema de información patrimonial del Centro Histórico y municipal, para una mejor planeación y gestión del Municipio.
3. Promover políticas para recuperar el Patrimonio Histórico, Arquitectónico y Cultural del Centro Histórico, formular programas y proyectos que orienten el accionar de la Administración Municipal, articulándolos con el desarrollo económico, social, físico y corporativo.
4. Coordinar la evaluación de los resultados obtenidos en la aplicación de los planes, programas y proyectos por la Secretaría, y proponer los ajustes que considere conveniente para alcanzar los objetivos y metas proyectadas.
5. Concertar y ejecutar proyectos de formación y capacitación para mejorar la capacidad de gestión y prestación de un servicio esencial a favor de la comunidad.
- CONOCIMIENTOS BÁSICOS O ESENCIALES.
- Leyes reglamentarias del nivel nacional para la Administración Pública.
- Leyes 388 de 1997, 152 de 1995, Ley 1185 de 2008, Decreto 763 de 2009, Resolución 0983 de 2010 y todas las relacionadas con patrimonio, cultura y arqueología.
- Código de Convivencia Ciudadana Ordenanza 019.
- Normas de carácter local: Estatuto Tributario, Estatuto Ambiental, Plan Vial, Estatuto de Valorización.
- Ley Catastral.
- Marco de actuación sobre el diseño organizacional y estructura Administrativa, mapa de riesgos de los procesos, información para el seguimiento y control a planes de acción.
- Tendencias sociales, macroeconómicas, jurídicas, legales y de mercado.
- Prospectiva: Planes de Desarrollo del ámbito Nacional, Departamental y Municipal; Planes de Desarrollo sectorial de las áreas económica y financiera, corporativa, ambiental, turística, cultural, educativa, territorial, servicios públicos, comunicaciones; planes de gestión y resultados.
- Diagnósticos existentes con relación o incidencia en la planeación: Inventario de necesidades, problemáticas, recursos disponibles y satisfactores.
- REQUISITOS DE ESTUDIO Y EXPERIENCIA ESTUDIOS.
- Título de Pregrado en la modalidad Profesional Universitario especialista en patrimonio, en programas académicos tales como:
- Arquitecto, Abogado, Administrador de Empresas.
EXPERIENCIA.
- 36 meses de experiencia profesional y 24 de experiencia especifica en planificación, administración y gestión de bienes patrimoniales.
- COMPETENCIAS COMUNES.
- Parágrafo 1, Artículo 15 de este Decreto.
- COMPETENCIAS COMPORTAMENTALES.
- Parágrafo 2, Artículo 15 de este Decreto.. COMPETENCIAS FUNCIONALES
- Conocimientos y habilidades en la planeación y manejo de sitios de patrimonio histórico y arquitectónico.
- Habilidad para evaluar situaciones, procesos y resultados.
- Capacidad de motivación al personal para obtener los resultados propuestos.
- Capacidad de transferir conocimientos, habilidades y destrezas a sus dependientes para facilitar el logro de los objetivos propuestos.
- Planificación del trabajo de la dependencia con su equipo de trabajo.
6.1.2 COMITÉ TÉCNICO DE PATRIMONIO CULTURAL
Con el propósito de reunir los representantes de las fuerzas vivas que operan en el Municipio y que tienen injerencia directa con el patrimonio cultural de éste, se propone la creación de un Comité Técnico de Patrimonio Cultural, el cual será el filtro para todas las intervenciones que puedan proponerse al respecto, así como las acciones de conservación y protección del patrimonio del Centro Histórico y su Zona de Influencia, facilitando así las decisiones que deba tomar el Ministerio de Cultura.
Serán 7 miembros de la Junta Local de Patrimonio con voto, que se listan a continuación:
Representante Consejo Departamental de Patrimonio Cultural
Representante del Instituto de Cultura y Patrimonio de Antioquia
Representante del Consejo Municipal de Cultura
Secretario de Patrimonio y turismo
Representante del sector a intervenir (cuadra)
Representante de la comunidad religiosa
Representante de las organizaciones ambientales
Representante de la Fundación Centro Histórico de Jericó (con voz pero sin voto)
El Comité Técnico de Patrimonio evaluará los proyectos de intervención y obra nueva en área afectada y zona de influencia y emitirá concepto previo para aval final de Mincultura.
La Secretaria de Planeación emite la licencia de construcción previo concepto del Comité Técnico de Patrimonio por parte del Ministerio de Cultura.
6.1.3 Fundación Centro Histórico de Jericó
Asumiendo que tanto la Nación como el Departamento cuentan con los entes encargados para la administración del patrimonio a nivel Nacional y Departamental, se estaría requiriendo para el municipio de Jericó, la creación del ente encargado de administrar el Centro Histórico de dicho Municipio, para lo cual se propone la constitución de una nueva sociedad, tipo fundación, de carácter mixto que permita cumplir a cabalidad con dichas funciones y demás, que posibilite a la administración municipal el juntar las capacidades y voluntades de entidades públicas y privadas, que integre personas naturales y jurídicas.
La Fundación, sería una entidad privada sin ánimo de lucro, regida por el derecho privado. Esto último la convertiría en una entidad dinámica, ágil y eficiente en lo administrativo, como quiera que su planeación y ejecución dependen de la iniciativa privada y no de los múltiples tramites, requisitos y supervisiones derivadas del derecho y la administración pública, que la hacen en muchas oportunidades lenta, restringida y por qué no ineficiente.
Esta entidad privada de carácter civil y regido por el derecho privado, también puede tener como socios a entidades públicas del orden nacional, departamental e incluso nacional. En este último caso, sería una entidad regida por el derecho privado pero de carácter mixto.
La importancia de una integración publica privada en esta Fundación, puede radicar en la agilidad de los tramites, vistos buenos y gestiones ante las otras entidades públicas del Municipio, pero además, porque se pueden canalizar recursos desde lo público para la Fundación, principalmente mediante contratos y convenios, que permitan la ejecución de proyectos específicos en favor del patrimonio histórico, arquitectónico y cultural, y al mismos tiempo, mediante un porcentaje del total del presupuesto del proyecto, a título de ganancia o utilidad, se pueda contribuir a financiar a la propia Fundación, en la perspectiva de hacerla en el mediano plazo auto sostenible.
Aun cuando las entidades públicas por mandato constitucional no pueden hacer transferencias directas a las entidades privadas o sin ánimo de lucro, si es factible que puedan contratar con ellas, pero al mismo tiempo, que para su ingreso a la Fundación como socios, puedan hacer un aporte inicial en dinero a título de pago por vinculación, como lo deben hacer los otros socios o miembros. También la Fundación podrá recibir donaciones, incluso de entidades públicas, que en muchos casos, tienen muebles y enseres que estando en buen estado, pueden servir para el funcionamiento inicial.
También los municipios o incluso los particulares pueden tener casas que pueden ser entregadas a la Fundación por un número de años, lo cual facilitaría su operación en el tiempo, sin perder de vista la posibilidad que brinda la Ley, para que esta Fundación pueda administrar Centros Históricos o proyectos de patrimonio de otros municipio Antioquia.
Considerando que Jericó ha tenido y tiene importantes personalidades con capacidad económica suficiente, podrá también recibir donaciones de estas personas principalmente naturales, pero también puede ser de personas jurídicas, para la creación y sostenimiento de la Fundación. Creada la Fundación, esta podrá certificar tal donación con lo cual podrán recibir beneficios tributarios.
La Fundación también podrá tener como socios a entidades jurídicas ya existentes, por ejemplo otras asociaciones, fundaciones o corporaciones. Lo importante es que quede claro en los estatutos que este tipo de socios, tendrá un derecho a voto igual a uno (1); independientemente de su carácter de entidad jurídica o del tipo de aporte que haga para el sostenimiento, para garantizar igualdad en la administración, una democracia en la toma de decisiones y evitar el abuso de unos socios sobre los otros. Este derecho a voto igual a uno (1), también debe operar para las entidades públicas, en caso que se constituya una entidad jurídica de carácter mixto. La Fundación podrá tener socios fundadores o adherentes, la selección inicial es fundamental para los fundadores, pues al momento de estipular los estatutos, se define la forma de administración y manejo. Son los socios fundadores los que establecerán las reglas básicas de administración y sus principales funciones.
En los estatutos, se deben estipular tres aspectos fundamentales; las funciones de la Asamblea de Socios, los integrantes y funciones de la Junta Directiva, y la forma de Administración.
La Asamblea, que debe citarse siempre en los tres primeros meses del año, y que está integrada por los socios, debe aprobar los aspectos estructurales de la Fundación, tales como los siguientes:.
- Elegir para cada sesión su Presidente y su Secretario;
- Velar porque la Fundación permanezca dentro de los principios que inspiraron su creación y trazar su política general;
- Adoptar su propio reglamento y los que rijan su funcionamiento interno;
- Aprobar anualmente el programa de inversión, los planes y el presupuesto de ingresos y gastos, que deberán ser presentados por el Director Ejecutivo;.
- Designar al Revisor Fiscal y su suplente y asignarle los respectivos honorarios;
- Considerar el informe anual que deberá rendir la Junta Directiva y el Director Ejecutivo sobre las actividades desarrolladas por la Fundación.
- Examinar y fenecer las cuentas, balances y estados financieros anuales;
- Aprobar el informe del Revisor Fiscal sobre los estados financieros y balances;
- Ratificar la admisión de nuevos asociados presentados por la Junta Directiva;
- Ratificar la pérdida de la calidad de asociado presentada por la Junta Directiva.
- Ratificar los reglamentos de afiliación, pérdida de la calidad de asociado, aportes, donaciones, contribuciones presentados por la Junta Directiva;
- Determinar los aportes ordinarios o extraordinarios que deben sufragar los asociados;
- Elegir los cinco (5) miembros integrantes de la Junta Directiva. Los integrantes de la Junta Directiva serán elegidos entre los asociados activos de la Asamblea General;
- Elegir de entre los cinco (5) integrantes de la Junta Directiva, el Presidente de la misma;.
- Aprobar eventuales asociaciones de la Fundación con terceros.
- Decretar la disolución de la Fundación, nombrar el liquidador o liquidadores y disponer a quien se debe pasar los bienes que compongan su acervo.
- Modificar o reformar los estatutos; y.
- Las demás que le correspondan como órgano máximo de dirección de la Fundación.
Por su parte, la Asamblea General designara entre sus socios a los Miembros Principales y suplentes de la Junta Directiva, la cual tendrá las siguientes funciones posibles:
- Reglamentar los estatutos para su buen funcionamiento.
- Dictar y establecer su propio reglamento.
- Elegir de su seno al Vicepresidente, Secretario y Tesorero.
- Elegir al Director Ejecutivo de la Fundación y señalar los términos de su vinculación laboral.
- Dirigir la Fundación hacia el cumplimiento de sus objetivos de conformidad con los presentes estatutos, los principios y las decisiones de la Asamblea General.
- Dar orientación a los planes, programas y proyectos que ha de ejecutar la Fundación en un periodo determinado, de conformidad con las directrices trazadas por la Asamblea General.
- Adoptar el presupuesto para cada año fiscal, con base en el proyecto que le presente el Director Ejecutivo.
- Aprobar el balance de cuentas a 31 de diciembre de cada año, para llevarlo a examen y fenecimiento de cuentas por parte de la Asamblea General.
- Determinar la estructura administrativa interna, la planta de personal, el manual de funciones, las escalas de remuneración que deben observarse en el proceso de contratación laboral y los requisitos y formalidades para la contratación, de acuerdo con los criterios básicos que sobre el particular adopte la Asamblea General.
- Autorizar al Director Ejecutivo para celebrar todos los convenios o contratos con personas naturales o jurídicas de derecho privado, público o mixto nacionales o extranjeras cuya cuantía supere a las cuantías que la misma Junta establezca.
- Cumplir y hacer cumplir estos estatutos, los acuerdos de la Asamblea General y sus propias decisiones.
- Suministrar a las entidades y personas aportantes, los informes que sean requeridos sobre la utilización y destino de los recursos suministrados, así como los resultados de la evaluación y auditoria de los programas y proyectos que hayan sido financiados con tales recursos.
- Aprobar la conformación de Comités Regionales propuestos por los asociados según reglamentación que se expida para tal efecto.
- Autorizar la apertura de sedes en el país o en el exterior.
- Aprobar el reglamento para la admisión de nuevos asociados, donaciones, contribuciones.
- Aprobar la admisión de nuevos asociados.
- Reglamentar y tramitar la pérdida de calidad de los asociados.
- Conformar los Consejos Consultivos que para diversos fines se establezcan con la participación de asociados o de terceros.
- Evaluar posibles causas para la disolución de la Fundación y emitir concepto al respecto ante la Asamblea General.
- Las demás que le asigne la Asamblea General que estén previstas en estos estatutos y todas las que no estén atribuidas a un órgano o autoridad determinado de la Fundación.
De los aspectos más importantes en esta Fundación en concreto son sus propios objetivos y actividades con los cuales se determinara el papel que debe cumplir el Director Ejecutivo y los empleados y trabajadores que se vinculen a la misma.
El objeto principal de la Fundación será construir oportunidades para la sostenibilidad del Patrimonio Histórico, Arquitectónico y Cultural de Jericó, y en concreto garantizar la consolidación, conservación, mantenimiento y promoción del Centro Histórico de Jericó, contribuyéndose de esta manera al bienestar y mejoramiento de la calidad de vida de personas, familias, comunidades o de la sociedad en su conjunto, basándose en un enfoque participativo de intervención institucional orientado por la defensa de los intereses públicos, el ordenamiento y manejo territorial, siempre con fundamento en el respeto por los derechos humanos y dentro de ellos los Colectivos, como son los bienes históricos, arquitectónicos y culturales.
Derivado de este objeto superior, se pueden desprender para la Fundación los siguientes objetivos, los cuales deben orientar el trabajo del Director Ejecutivo y de su equipo de apoyo:
- Contribuir a defender, proteger, mantener, manejar y difundir el patrimonio histórico, arquitectónico y cultural de Jericó, y a la defensa del bien común y del interés público;
- Promover y apoyar procesos sociales encaminados a la valoración, reapropiación y recuperación del patrimonio histórico, arquitectónico y cultural de Jericó y su centro histórico, recuperando y redimensionando los conocimientos, tradiciones, usos y costumbres que favorezcan la pervivencia del patrimonio tangible e intangible del Municipio.
- Acompañar iniciativas de comunidades locales y regionales encaminadas a fortalecer conductas sociales autogestionarias, capacidades y liderazgos de organizaciones de base, reconociendo sus derechos y deberes, sirviendo por esta vía a la veeduría, control y seguimiento a la gestión pública y privada en favor del patrimonio histórico, arquitectónico y cultural de Jericó y su Centro Histórico.
- Considerando la articulación del Morro El Salvador al Centro Histórico, aportar a la conservación de la diversidad biológica y paisajística del medio natural en beneficio de la presente y futuras generaciones, partiendo de un enfoque equilibrado de reconocimiento de la diversidad cultural, de los derechos fundamentales y colectivos, apoyando el desarrollo de economías y formas de trabajo sostenibles, y de prevención o solución de conflictos de ordenamiento territorial.
- Servir de garante y apoyo a la actividad de las Entidades Públicas, tipo Planeación Municipal, en la definición, seguimiento y control a los sitios de patrimonio dentro del Centro Histórico, para lo cual podrá otorgar vistos buenos a desarrollos y modificaciones urbanísticas, previo convenio o acuerdo con las autoridades Municipales y Departamentales;
- Difundir e incentivar en la población conocimientos, comportamientos y prácticas que susciten la participación, la solidaridad y la conciencia pública sobre el cuidado del patrimonio histórico, arquitectónico y cultural de Jericó y su Centro Histórico y la sostenibilidad de un medio ambiente sano mediante procesos de formación, capacitación, divulgación, comunicación, investigación acción participativa y diálogo entre formas de conocimiento;
- Propiciar condiciones de sostenibilidad tecnológica, económica, social y ambiental de los sistemas de producción, o de uso de la biodiversidad, a nivel urbano o rural, teniendo en cuenta la equidad en la satisfacción de necesidades humanas, el cuidado del hábitat, el control de la contaminación, la preservación de los ciclos vitales y los procesos ecológicos de los ecosistemas, y en general, todo aquello que favorezca la sucesión intergeneracional de condiciones estables de convivencia humana y de relación con la naturaleza;
- Procurar el fortalecimiento de organizaciones sociales, autoridades públicas y aquellas políticas de intervención institucional del Estado en cualquiera de sus niveles, que sean la expresión transparente de valores humanos, motivaciones morales, entrega, solidaridad y compromiso ético con la justicia, la equidad y la paz;
- Aportar al diseño e implementación de políticas públicas, instrumentos, programas, planes o proyectos, de carácter nacional o internacional encaminados a ofrecer opciones para la coexistencia de sociedades pluriétnicas y multiculturales, la participación, el desarrollo de base, la búsqueda de la calidad de vida, la protección de la naturaleza, el ordenamiento de usos y destino del territorio y sus recursos, la producción, protección o aplicación de conocimientos en beneficio público y el mantenimiento del patrimonio histórico, arquitectónico y cultural de Jericó y su Centro Histórico.
- Diseñar, ejecutar, evaluar y extender metodologías de intervención institucional o de relacionamiento intercultural, que fomenten prácticas de acompañamiento a colectividades para la generación de la capacidad de autogestión de grupos y la transformación de realidades a través de instancias o acciones que establezcan estructuras de entendimiento y cooperación entre comunidades, y entre éstas y el Estado;
- Gestionar el tratamiento y resolución de conflictos que enfrentan las personas, comunidades o sociedades con base en el diálogo, la concertación y el respeto de las diferencias, principalmente de aquellos que afecten o pudieran afectar el mantenimiento en el tiempo del patrimonio histórico, arquitectónico y cultural de Jericó y su Centro Histórico.
- Contribuir al desarrollo de estrategias de sostenibilidad financiera de planes, programas, proyectos y que estén orientados a la consecución de fines similares a la conservación y manejo del patrimonio histórico, arquitectónico y cultural de Jericó y su Centro Histórico.
En general, estudiar, proponer y conceptuar sobre los siguientes asuntos:
- Políticas, estrategias, programas, proyectos y/o reglamentaciones encaminadas a la protección del patrimonio cultural inmueble del Municipio de Jericó.
- Intervenciones y cambios de usos en inmuebles declarados y propuestos como bienes de interés cultural y otros componentes patrimoniales del municipio de Jericó.
- Obras de infraestructura, incluyendo obras nuevas, reparaciones y arreglo de los elementos constitutivos de las secciones viales en espacios públicos, que afecten los diversos componentes del patrimonio cultural inmueble.
- Anteproyectos y proyectos de intervención sobre los inmuebles declarados bienes de interés cultural y de los diversos componentes patrimoniales de municipio de Jericó.
- Mecanismos para incentivar la protección del patrimonio inmueble.
- Estrategias educativas, de divulgación y promoción del patrimonio cultural Inmueble.
- Nuevas declaratorias o exclusiones de Bienes Inmuebles de Interés Cultural
Para desarrollar tales objetivos, la Fundación a través de sus órganos de dirección y administración podrá desarrollar las siguientes actividades:
- Adquirir, enajenar, administrar y gravar bienes muebles o inmuebles;
- Efectuar todo tipo de actos comerciales que tengan relación directa con su objeto social;
- Efectuar operaciones financieras de todo tipo en territorio nacional o extranjero;
- Realizar contratos, convenios, consorcios, acuerdos con entes públicos, privados o mixtos, uniones temporales para la prestación directa o indirecta de servicios o consultorías relacionadas con su objeto social;
- Abrir cuentas corrientes o de ahorros a nombre de la Fundación y efectuar operaciones bancarias y de financiación de toda clase;
- Fundar, adquirir o participar en organizaciones con o sin ánimo de lucro, cuyo objeto social sea compatible o auxiliar con las actividades que constituyen el objeto social de la Fundación.
- Restructurarse jurídica o administrativamente, respetando el derecho vigente;
- Negociar sus obligaciones civiles y comerciales;
- Recibir donaciones, aportes y ayudas de personas naturales y jurídicas, tanto nacionales como extranjeras; y.
- Adelantar todas las gestiones y actividades que se estimen convenientes para el desarrollo del objeto de la Fundación y que posibiliten mantener en el tiempo el patrimonio histórico, arquitectónico y cultural de Jericó y su Centro Histórico.
El Director Ejecutivo de la Fundación, dado el carácter de la misma y los retos que tendría derivado de su objeto, objetivos y actividades, debe ser un perfil con capacidad de gestión local, nacional e internacional; así mismo con experiencia no menos de 5 años en la administración de entidades similares y con resultados y éxitos comprobados.
Su equipo de apoyo deberá ser como mínimo, un abogado, especialista en temas de patrimonio histórico y arquitectónico, un arquitecto, que pueda respaldar técnicamente los conceptos (con experiencia en patrimonio) y vistos buenos, una secretaria y un auxiliar administrativo.
El Director Ejecutivo será elegido y contratado por la Junta Directiva por un periodo de un (1) año, quien será el Representante Legal de la Fundación y quien podrá ser reelegido para el periodo indefinidamente.
Las funciones propias de un Director Ejecutivo son las siguientes:
- Ejercer la Representación Legal de la Fundación.
- Convocar a la Asamblea General y al Junta Directiva de conformidad con lo señalado en los estatutos.
- Cumplir y hacer cumplir los presentes estatutos, los reglamentos y demás decisiones de la Asamblea y de la Junta Directiva.
- Dirigir la Fundación de conformidad con lo dispuesto por la Asamblea General, el Junta Directiva y los estatutos.
- Dirigir, coordinar y controlar el personal que haya sido asignado a la entidad y la ejecución de las funciones de estos.
- Suscribir, como representante legal, los actos o contratos que para el cumplimiento de sus objetivos deban expedirse o celebrarse y obtener la autorización previa del Junta Directiva cuando ello sea necesario.
- Adelantar las gestiones que sean necesarias para obtener recursos para la Fundación.
- Elaborar el proyecto de presupuesto anual para ser presentado al Junta Directiva.
- Rendir a la Asamblea General y al Junta Directiva los informes que le soliciten.
- Administrar el patrimonio de la Fundación de acuerdo con lo dispuesto por la Asamblea General, la Junta Directiva y los presentes estatutos.
- Someter a aprobación de la Junta Directiva el Balance de cuentas a 31 de diciembre de cada año.
- Delegar en otros empleados algunas de sus funciones, de conformidad con el reglamento que para tal efecto se expida.
- Promover y mantener comunicación con los Comités que se establezcan.
- Las demás que le asigne la Asamblea General o el Junta Directiva.
6.2 PROPUESTA DE FUNCIONAMIENTO
6.2.1.1 Actos administrativos y jurídicos Proyecto de Acuerdo que crea la Secretaría de Patrimonio Cultural y Turismo
Para el fortalecimiento institucional propuesto en relación a la creación de la nueva Secretaría de Patrimonio Cultural y Turismo, se requiere modificar la estructura organizacional actual del municipio asumido en el año 2005 mediante el Decreto 144.
Acto jurídico de creación de estatutos
Para la aprobación del Acuerdo municipal es necesario que la Secretaria de Planeación elabore el proyecto de Acuerdo municipal, donde además de la parte normativa que está basado en este documento, presente una exposición de motivos que dé cuenta de la importancia de esta Secretaria considerando la importancia del Centro Histórico del municipio de Jericó.
Elaborado el proyecto de acuerdo la Secretaria de Hacienda realizará un análisis de viabilidad financiera y presupuestal, que garantice la viabilidad de la Secretaria en el largo plazo.
Finalmente, el proyecto de acuerdo elaborado y viabilizado legal y financieramente se presentará al honorable Concejo Municipal para sus respectivos debates y aprobación.
Creación de la Fundación Centro Histórico de Jericó
La creación de la fundación como un organismo de carácter civil y regido por el derecho privado, requerirá la elaboración de unos estatutos en los que se definan los aspectos básicos tales como los objetivos, presupuestos, actividades, funciones, organismos de dirección entre otros.
Como se trata de una organización de carácter mixto regida por el derecho privado, con participación de entidades del gobierno, el a en caso de querer hacer parte de este ente, el Alcalde requerirá el visto bueno de hacienda y la aprobación del concejo municipal, para su participación en una entidad de carácter privado.
Aprobado los estatutos, estos deberán registrarse ante la Cámara de Comercio, y por tener de alguna manera una relación con el tema ambiental, es conveniente inscribirla frente a la Corporación Autónoma Regional, en este caso Corantioquia.
Esta entidad de carácter mixto, puede recibir algunos convenios o contratos que le ayuden a cumplir las funciones que tiene el Municipio para preservar el Centro Histórico. Dentro de ellas la ejecución del Plan Especial de Manejo y Protección del Centro Histórico de Jericó.
Fuentes de financiación de la Fundación Centro Histórico de Jericó
Una corporación de ese estilo de carácter mixto, puede adquirir recursos del Municipio, bien porque el Municipio haga parte de la entidad y haga sus aportes o bien porque a través de convenios de cooperación esta entidad de carácter mixto pueda suplir o acompañar al Municipio en parte de sus funciones en este tema, recordando además que los diferentes miembros pueden hacer igualmente sus aportes.
Igualmente, esta corporación está habilitada para presentar proyectos de cooperación nacional e internacional, para lo cual es importante que cuente con un dirigente o líder con capacidad de gestión y negociación. Estas entidades, también, al momento de gestionar sus recursos, deben prever un margen de utilidad para sus gastos operativos y administrativos.
Otra forma de financiación, está dada por donaciones y en esto se ha pensado claramente que los Amigos de Jericó pueden hacen aportes en especie y en dinero a esta entidad, lo que les representara a ellos deducción de impuestos y a la entidad un fortalecimiento técnico y económico. Sobre esto la experiencia en Colombia son cuantiosas.
Finalmente, es de recordar que esta entidad de carácter mixto puede participar como una entidad regida por el derecho privado en licitaciones, concursos y contrataciones con cualquier entidad privada o pública, con lo cual puede convertirse en un asesor cualificado y en un competidor en el medio, fortaleciéndose como tal la entidad.
6.3 Gestión Institucional
6.3.1 Articulación Interinstitucional
En correspondencia con el Decreto 763 de 2009, Título 1, en lo relacionado con el Sistema Nacional de Patrimonio Cultural de la Nación, Artículo 3o y con la nueva declaratoria de BIC del Centro Histórico de Jericó se generan nuevas dinámicas y compromisos para los cuales es necesario asumir una estructura y uno nuevos roles que permitan que los esfuerzos realizados para la gestión y aplicación del PEMP sea efectiva en su planeación y ejecución, dentro de la estructura municipal actual y propuesta, recordando que para ello se proponen los siguientes campos de articulación:
6.3.1.1 Municipal
De acuerdo con el Decreto 763 de 2009, Título 1, en lo relacionado con el Sistema Nacional de Patrimonio Cultural de la Nación, Artículo 4o, numeral 4, le corresponde a la administración municipal cumplir con las siguientes competencias:
- Como política general y de aplicación inmediata, se requiere que los entes administrativos del orden municipal, específicamente Concejo y Alcalde, gestionen la aprobación del proyecto de acuerdo para la adopción del PEMP y asuman con prontitud la creación de la Secretaría de Patrimonio Cultural como parte del fortalecimiento institucional para la ejecución del PEMP.
- Garantizar que el PEMP, una vez sea aprobado, se constituya en norma de obligatorio cumplimiento, incorporándose ésta como norma de superior jerarquía dentro del EOT del Municipio.
- Se requiere igualmente que la Alcaldía Municipal, a través de la nueva Secretaría de Patrimonio Cultural y Turismo, se empodere de la reglamentación de los instrumentos de manejo y gestión del PEMPCH, su Plan de Divulgación y Plan de Acción, entendiendo la importancia de apoyar la gestión de los recursos técnicos y financieros necesarios para ello.
- La Secretaría de Planeación y Desarrollo Territorial, encargada de estructurar el modelo de desarrollo integral para el municipio y diseñar y construir la infraestructura de uso público, respetando los espacios históricos, culturales, arquitectónicos y ecológicos considerados como patrimonios, debe asumir y tener clara la hoja de ruta para dar salida a la nueva dinámica que se puede generar luego de la declaratoria del Centro Histórico, facilitando la claridad en los trámites y la oportuna respuesta a las solicitudes que se presenten al respecto.
Igualmente, se requiere el fortalecimiento de ésta Secretaría, para manejar conjuntamente con la reforzada Secretaría de Patrimonio Cultural y Turismo y la Fundación Centro Histórico de Jericó todas las intervenciones que se requieran en el espacio público del Centro Histórico y su área de influencia, haciendo énfasis en vías, parques y servicios públicos y manejo de cables eléctricos, de comunicaciones, tanto aéreos como subterráneos.
- Corresponde a la oficina de Instrumentos Públicos de acuerdo con el Artículo 13, numeral 10 del Decreto 763: Cuando se trate de bienes inmuebles, la autoridad competente deberá remitir a la Oficina de Registro de Instrumentos Públicos copia del acto de declaratoria y de aprobación del PEMP, si fuere pertinente, para efectos de su registro en él(los) folio(s) de matrículas respectivo(s) dentro de los quince (15) días hábiles siguientes a la entrada en vigor de la declaratoria. De conformidad con lo previsto en el artículo 11 de la Ley 397 de 1997, modificado por el artículo 72 de la Ley 1185 de 2008, este tipo de inscripciones no tiene ningún costo. Del mismo modo deberá procederse en caso de revocatoria de la declaratoria.
- La Secretaría de Hacienda, a quien le corresponde garantizar los recursos financieros y económicos necesarios para financiar los planes y programas del Municipio, le corresponde igualmente gestionar e implementar la propuesta de incentivos tributario, definidos en el marco de la gestión del PEMP.
- A través de la Secretaría de Gobierno, se propone mantener apoyo directo para la implementación del PEMP, de acuerdo a su misión, encaminada a proponer políticas públicas municipales de cultura y coordinar la ejecución de las políticas de Administración de personal y lo concerniente a Servicios Administrativos.
- Con la Secretaría de Educación, se generarán sinergias encaminadas a la educación en Turismo Cultural, programas de emprendimiento, entre otros, integrando de manera decidida el Centro Histórico a ésta, de tal manera que se puedan captar recursos económicos para su mantenimiento y administración, en el marco de actuación del PEMPCH.
- Con el Consejo Municipal de Cultura creado mediante Acuerdo 08 de 2013, quien se propone sea el encargado de hacer veeduría a la gestión del PEMP, dentro del cual se propone haga parte de él un representante del Instituto de Cultura y Patrimonio de Antioquia, es necesario crear articulaciones de acuerdo con las funciones estipuladas en el Artículo del citado acuerdo y entre las cuales se citan: b) Actuar como ente articulador de las actividades relacionadas con el fomento, la promoción y la difusión del patrimonio cultural y artístico del municipio; d) Hacer seguimiento a la ejecución del gasto público invertido en cultura; F) Liderar y promover la formulación, seguimiento y evaluación del plan municipal de cultura. Finalmente, se propone adicionar en el Artículo 6 de dicho Acuerdo, la representación de la Secretaria de Patrimonio Cultural y el Ente Gestor, como miembros del Consejo Municipal de Cultura de Jericó. De otro lado, este Consejo Municipal será un miembro del Comité Técnico de Patrimonio Cultural, quien es la instancia encargada de avalar las propuestas de intervención que se realicen sobre los bienes inmuebles del Centro Histórico y la Zona de Influencia.
- Con la Oficina de Comunicaciones del Municipio, se debe lograr la interiorización por parte de esta del Plan de divulgación del PEMPCH, el cual deberá de anteceder toda comunicación oficial que se expida desde esta área.
6.3.1.2 Departamental
De acuerdo con el Decreto 763 de 2009, Título 1, en lo relacionado con el Sistema Nacional de Patrimonio Cultural de la Nación, Artículo 4o, numeral 6 y 10, le corresponde a la administración departamental cumplir mínimamente con las siguientes competencias:
- Como política general, se deberá mantener una comunicación permanente entre los organismos propuestos para el fortalecimiento institucional del patrimonio del ámbito municipal con el Instituto de Cultura y Patrimonio de Antioquia, quien se espera, defina un delegado para su interlocución directa con el municipio de Jericó. Los bienes que no se encuentren en Centro Histórico serán regulados como municipales y por ende tiene competencia de conceptos el Consejo Departamental de Patrimonio Cultural.
- Dentro de las siguientes funciones del Consejo Departamental de Patrimonio Cultural de Antioquia, se puede lograr la articulación interinstitucional con el Municipio:..Ejercer un adecuado apoyo técnico en las áreas del patrimonio cultural material e inmaterial, mueble e inmueble, con el concurso calificado e idóneo de sus integrantes institucionales e individuales;·orientar a las entidades territoriales, a las autoridades departamentales y a las comunidades étnicas y grupos sociales, en lo relacionado con la declaratoria, manejo, preservación, difusión y aprovechamiento de los bienes culturales existentes en sus localidades, teniendo en cuenta los principios de descentralización, autonomía y participación de las entidades territoriales; Conceptuar acerca de las intervenciones sobre los BIC de carácter nacional para su aprobación por parte de la Dirección de Patrimonio del Ministerio de Cultura; Conceptuar acerca de las declaratorias e intervenciones sobre los BIC de carácter departamental o municipal, previo concepto favorable del respectivo Comité Técnico Asesor, para su aprobación por parte de la Gobernación de Antioquia o las administraciones municipales; Apoyar a las entidades estatales del Departamento de Antioquia en la obtención de recursos para las tareas de preservación del patrimonio cultural; nombrar un delegado para que haga parte del Consejo Municipal de Patrimonio Cultural del municipio de Jericó.
6.3.1.3 Nacional
En el ámbito Nacional de acuerdo con el Decreto 763 de 2009, Título 1, Artículo 2o:
Sistema Nacional de Patrimonio Cultural de la Nación. El Sistema Nacional de Patrimonio Cultural de la Nación -SNPCN-, está constituido por el conjunto de instancias públicas del nivel nacional y territorial que ejercen competencias sobre el patrimonio cultural de la Nación, por los bienes y manifestaciones del patrimonio cultural de la Nación, por los bienes de interés cultural y sus propietarios, usufructuarios a cualquier título y tenedores, por las manifestaciones incorporadas a la Lista Representativa de Patrimonio Cultural Inmaterial, por el conjunto de instancias y procesos de desarrollo institucional, planificación, información, y por las competencias y obligaciones públicas y de los particulares, articulado entre sí, que posibilitan la protección, salvaguardia, recuperación, conservación, sostenibilidad y divulgación del patrimonio cultural de la Nación.
El SNPCN tiene por objeto contribuir a la valoración, preservación, salvaguardia, protección, recuperación, conservación, sostenibilidad, divulgación y apropiación social del patrimonio cultural, de acuerdo con lo establecido en la Constitución Política en la legislación, en particular en la ley 397 de 1997, modificada por la ley 1185 de 2008 y bajo los principios de descentralización, diversidad, participación, coordinación y autonomía.
De conformidad con el Artículo 5o R de la Ley 397 de 1997, modificado por el Artículo 2o de la Ley1185 de 2008, el SNPCN está bajo la coordinación general del Ministerio de Cultura, el cual tiene la facultad de fijar normas técnicas y administrativas, a las que deberán sujetarse las entidades y personas que integran dicho sistema, en consonancia con la ley y con las previsiones del presente decreto.
Para promover la apropiación social del patrimonio cultural, el SNPCN propenderá por la implementación de programas y proyectos formativos y procesos de información a nivel nacional y regional, que incentiven la participación activa de las comunidades, instituciones, entes territoriales, colectividades y agentes culturales, en los procesos de valoración y reflexión sobre el patrimonio cultural.
En el mismo Decreto en Artículo 4 numeral 1 y numeral 9 se definen las competencias del ámbito nacional y territorial, las cuales enmarcan todas las actuaciones del ámbito departamental y municipal en relación a las articulaciones entre los entes gestores.
El Ministerio de Cultura, a través Consejo Nacional de Patrimonio Cultural, será quien avale las intervenciones propuestas sobre los bienes inmuebles, previo concepto del Comité Técnico de Patrimonio Cultural de Jericó.
6.3.1.4 Gestión para la intervención
De acuerdo con el artículo 39 del Decreto 763 de 2009 y entendiendo que una intervención comprende desde la elaboración de estudios técnicos, diseños y proyectos, hasta la ejecución de obras, se plantea que toda intervención deberá contar con la previa autorización de la autoridad competente que hubiera efectuado la declaratoria.
En relación a la solicitud de autorización, el artículo 43 del citado Decreto señala que la solicitud de autorización para Intervenir un BIC deberá presentarse ante la autoridad competente, por su propietario o representante legal o por el profesional debidamente autorizado por el propietario, según requisitos que señalará el Ministerio de Cultura tanto para los BIC del ámbito nacional como territorial. Dicha solicitud de autorización tiene como requisitos (Resolución 0933 de 2010, artículo 31), contener estudios técnicos detallados; levantamiento arquitectónico, calificación y diagnóstico del estado de conservación del bien y la propuesta de intervención. Se recuerda que existe un registro de profesionales idóneos para la intervención de BIC a nivel nacional, lo que igualmente se replica en el ámbito territorial, pudiendo contar un Municipio con su registro de profesionales propio.
La autorización constará en resolución motivada, en la cual se señalará el tipo de intervención aprobada, cuando no se trate de intervenciones mínimas. Figura 50. Propuesta esquemática de articulación institucional en una intervención de un BIC

Este es la propuesta esquemática de cómo funcionaría la aprobación de las intervenciones de los BIC en Jericó, en donde la Fundación apoya técnicamente a los propietarios para la planificación de sus intervenciones. Cualquiera sea el nivel de intervención deberá pasar por el Comité Técnico de Patrimonio Cultural, el cual emite concepto previo y se reenvía al Ministerio de Cultura quien emite Resolución, para finalmente ser remitida a Planeación Municipal quien expedirá la respectiva licencia.
Se sugiere que sea el equipo de la Fundación Centro Histórico, en coordinación con la Secretaría de Patrimonio Cultural y Turismo, quienes informen y asesoren al propietario sobre el estado del inmueble en los ámbitos de Centro Histórico y ZI., además de monitorear todas las intervenciones que se realicen sobre el área. El equipo de la Fundación y la Secretaria de Patrimonio Cultural y Turismo deben estar en la capacidad técnica de revisar los mínimos de norma de habitabilidad e intervenciones permitidas, logrando con ello viabilizar en forma ágil y oportuna las solicitudes con mayor opción de intervención. Estos primeros filtros del proceso permiten un ahorro de tiempo y de recursos económicos de los propietarios de los BIC, siendo esta una de las mayores preocupaciones frente a este tipo de declaratorias.
Sólo hasta que se posea la declaratoria se puede aplicar normas como la del Artículo 44. Relacionadas con la obligación de restitución de BIC por demolición no autorizada del Decreto 763 de 2009. Así mismo se prevé la entrada en vigencia de la reforma de este Decreto, con lo cual se estaría siendo más estricto frente a la intervención del área afectada como su zona de influencia.
6.3.1.5 Manejo de intervenciones mínimas en los BIC
Al respecto, la Resolución 0983 de 2010 en su Artículo 26. Plantea que: El Ministerio de Cultura podrá reglamentar los casos de intervenciones mínimas de BIC inmuebles y muebles que no requieren autorización previa. En estos casos, el propietario deberá informar el tipo de intervención realizada a la instancia competente que haya realizado la declaratoria. En el artículo 27: de esta Resolución se definen las intervenciones mínimas que se pueden efectuar en BIC inmueble, las cuales se relacionan continuación:
1. Limpieza superficial de fachadas sin productos químicos.
2. Mantenimiento de pintura de interiores o exteriores, con excepción de superficies con pintura mural o papel de colgadura.
3. Mantenimiento de cubiertas mediante acciones tales como limpieza, reposición de tejas e impermeabilizaciones superficiales que no afecten las condiciones físicas del inmueble y mantenimiento de elementos para control de aguas como canales, bajantes, goteros y alfajías, entre otros.
4. Remplazo o restitución de elementos de acabado, puntuales y en mal estado, así como de elementos no estructurales.
5. Remoción de elementos ajenos a las características constructivas y arquitectónicas del bien.
6. Obras de primeros auxilios tales como apuntalamiento de muros o elementos estructurales, sobrecubiertas y cerramientos provisionales que eviten el saqueo de elementos y/o partes del inmueble, carpinterías, ornamentaciones, bienes muebles, entre otros, siempre y cuando no alteren la integridad del bien.
Las intervenciones mínimas quedaran reglamentadas en el presente PEMPCH y se propone que estas, sean aplicadas bajo el concepto y supervisión del equipo del Ente Gestor quien deberá reportar periódicamente al Ministerio de Cultura.
6.3.1.6 Requisitos para autorizar la intervención de un BIC
Los requisitos para intervención en Bienes de Interés Cultural (BIC), se encuentran consignados en los artículos 30, 31 y 31 de la Resolución 0983 de 2010, algunos de los cuales se listan a continuación, siendo de consulta obligada la ficha normativa de manzana contenida en el Documento respectivo, estando condicionada la licencia a la elaboración de la ficha normativa específica para la intervención propuesta:
- Solicitud de autorización expresa del propietario, representante legal o poseedor del BIC para la ejecución del proyecto de intervención con la descripción general del mismo y datos básicos de contacto. Así mismo, la solicitud incluye la autorización del propietario o poseedor del BIC a un profesional idóneo, para presentar el proyecto y los documentos que acrediten dicha condición. (Matrícula profesional del arquitecto o ingeniero civil cuando se trate de bienes inmuebles y el título profesional o la credencial de restaurador cuando se trate de bienes muebles).
- Documentos que sustenten la propiedad o posesión del BIC.
- Ficha de identificación del proyecto diligenciada, la cual podrá ser obtenida en la página WEB del Ministerio de Cultura.
- Estudios técnicos preliminares.
- Levantamiento arquitectónico, calificación y diagnóstico del estado de conservación del bien.
- Propuesta de intervención
6.3.1.7 Gestión de BIC de acuerdo a su clasificación.
- Espacios Públicos, área de conservación de recursos naturales
Las posibilidades de intervención en el espacio público, actualmente están dependiendo de la Subsecretaría de Medio Ambiente, Productividad y Competitividad, la cual depende a su vez de la Secretaria de Planeación, ello en relación a las áreas verdes. En cuanto a los pisos duros y elementos construidos, es directamente la Secretaría de Planeación. A su vez, el alumbrado público lo maneja en algunos sitios del casco urbano EPM y en otros las empresas públicas del municipio de Jericó.
Es de resaltar que cada una de estas dependencias gestiona recursos en las diferentes instituciones, siendo de destacar el apoyo que ha dado Corantioquia para el mantenimiento de la arborización del parque principal y algunas intervenciones en el morro El Salvador, en donde también se hacen algunas inversiones con recursos provenientes de las transferencias del sector eléctrico.
Como puede observarse, son varias las instancias que interviene el espacio público en el municipio de Jericó, lo que hace necesario que la Secretaría de Patrimonio Cultural y Turismo y el ente creado para la administración del Centro Histórico, deba coordinar con estas dependencia, cualquier tipo de intervención que se haga, igualmente con la autoridad ambiental competente.
Es importante tener presente que la protección y conservación de las áreas, al igual que todos los bienes muebles localizados en espacio público relacionados con esculturas, fuentes, monumentos entre otros, son responsabilidad del Municipio, por ende deben estar inventariados y registrados como patrimonio cultural para su adecuada intervención.
Esta labor de inventario de bienes muebles y su propuesta de intervención, manejo y conservación es una tarea que queda pendiente y puede ser asumida por la Fundación Centro Histórico o quien este designe. Así mismo, la vigilancia del amoblamiento, señalización, e iluminación de estos espacios públicos debe ser monitoreada y objeto de un visto de manera coordinada con las otras instancias municipales.
- Religiosos
De los inmuebles correspondientes a arquitectura religiosa del municipio de Jericó, donde se contemplan la Catedral y el Museo de Arte Religioso y su casa cural, templo del Inmaculado Corazón de María y casa cural, Capilla de San Francisco, Cementerio parroquial, Seminario San Juan Eudes, Sede de la Diócesis, Casa del Obispo, monasterio de Santa Clara, casa Madre Laura, antiguo convento de la Visitación y capilla (anterior casa de la cultura), la Ley 1185 define en su Artículo 1o " el derecho de las iglesias y confesiones religiosas de ser propietarias del patrimonio cultural que hayan creado, adquirido con sus recursos o que estén bajo su legítima posesión. Igualmente, se protegen la naturaleza y finalidad religiosa de dichos bienes, las cuales no podrán ser obstaculizadas ni impedidas por su valor cultural.
Los bienes propiedad de diferentes parroquias, se acogen al Concordato aprobado mediante Ley 20 de 1974, dentro de cuyo articulado, se plantean entre otros:
Articulo IV. El Estado reconoce verdadera y propia personería jurídica a la Iglesia Católica. Igualmente a las Diócesis, Comunidades religiosas y demás entidades eclesiásticas a las que la ley canónica otorga personería jurídica, representadas por su legítima autoridad.
Articulo XXIV. Las propiedades eclesiásticas podrán ser gravadas en la misma forma y extensión que las de los particulares. Sin embargo, en consideración a su peculiar finalidad se exceptúan los edificios destinados al culto, las curias diocesanas, las casas episcopales y curales y los seminarios. Los bienes de utilidad común sin ánimo de lucro, pertenecientes a la Iglesia y a las demás personas jurídicas de que trata el artículo IV del presente Concordato, tales como los destinados a obras de culto, de educación o beneficencia se regirán en materia tributaria por las disposiciones legales establecidas para las demás instituciones de la misma naturaleza.
Articulo XXVII. El Estado garantiza a la Iglesia el derecho de poseer y administrar sus propios cementerios, que estarán sometidos a la vigencia oficial en lo referente a higiene y orden público. En los cementerios dependientes de la autoridad civil la Iglesia podrá ejercer su ministerio en la inhumación de los católicos.
Articulo XXVIII En defensa y promoción del patrimonio cultural colombiano la Iglesia y el Estado colaborarán en el inventario del arte religioso nacional, que incluirá monumentos, objetos de culto, archivos, bibliotecas y otros que por su valor histórico o estético sean dignos de conjunta atención para conservarse, restaurarse y exponerse con fines de educación social.
En Jericó, los inmuebles de propiedad de instituciones religiosas tienen diferentes administraciones dependiendo de cuál de las instituciones es su propietaria. Dentro de los propietarios están la diócesis, la parroquia Nuestra Señora de las Mercedes, la parroquia Inmaculada Corazón de María. Además existen Las propiedades de cada comunidad religiosa, como la comunidad de Santa Clara y Las Lauritas.
De la Diócesis dependen la sede de la Diócesis, la Casa o Palacio Obispal, El seminario diocesano San Juan Eudes, el inmueble donde hasta hace poco funcionó la casa de La Cultura, (Antiguo convento de La Visitación - incluyendo capilla) y algunas viviendas; de la parroquia Nuestra Señora de las Mercedes dependen la Catedral y el Museo de Arte Religioso, el Cementerio, la capilla de San Francisco, la casa cural y algunas casas; de la parroquia del Inmaculado Corazón de María dependen el Templo del mismo nombre y la Casa Cural, con proyecto en proceso del "Santuario Madre Laura"; de la comunidad de Las Lauritas dependen la casa llamada "Casa de La Madre Laura" y la residencia contigua donde habitan las religiosas que atienden esta casa. De la comunidad religiosa de Las Clarisas depende el monasterio Santa Clara.
De todas estas edificaciones solo están exentas de impuestos las capillas: La Catedral, el Inmaculado Corazón de Maria, San Francisco, capilla que hay dentro de la sede de la Diócesis, capilla dentro de la casa del obispo, capilla del monasterio de Santa Clara, la capilla de la casa de la Madre Laura.
Al momento no se conocen las existencia de un comité formal para la toma de decisiones de intervención de los bienes de carácter religioso, lo que se conoce es que las decisiones las toman el Obispo y sus asesores inmediatos.
Se propone una coordinación con La Fundación Centro Histórico y la Secretaria de Patrimonio Cultural y Turismo, mediante un comité técnico que ayude al momento que se proponga cualquier intervención y gestión sobre estos bienes.
- Educativos
La administración de las instituciones educativas es compartida por el Municipio y la Gobernación de Antioquia. Las decisiones que tienen que ver con personal administrativo y los pagos le corresponden a la Gobernación; las intervenciones de menor cuantía (reparación de goteras, pintura o similares) las deciden los rectores, mientras que las de mayor cuantía están en manos de la Alcaldía y la Gobernación y se realizan a través de contratación pública.
Es de aclarar que el municipio de Jericó de acuerdo al Decreto 2700 de 2004 no cuenta con certificación para asumir directamente el servicio de educación en el Municipio, sin depender directamente de la Gobernación, lo que dificulta de alguna manera la consecución y ejecución de los recursos para la educación en el Municipio.
Actualmente existe un conflicto entre el Municipio y la Secretaría de Educación de Antioquia, dado que los recursos asignados para reparaciones locativas de La Normal, no fueron correctamente ejecutados, lo que ha conllevado a que actualmente los estudiantes de esta institución estén ocupando las instalaciones de El Seminario, sin que exista un documento contractual formal entre el Municipio y la Diócesis, lo que está generando igualmente un conflicto entre estas dos instituciones. Se aclara que al momento de retomar las intervenciones de rehabilitación de La Normal, se deberá consultar la normatividad vigente y las determinaciones del PEMPCH. Debido a la revisión de posibles sitios de hallazgos arqueológicos realizado por varios estudios, este lugar requiere realizar una prospección arqueológica en los términos exigidos por el ICANH, en las áreas libres al interior del predio.
- Institucionales
Los equipamientos que no entran en la categoría de educativos y religiosos, como aquellos de propiedad del municipio de Jericó, caso Centro de Historia, MAAJA, teatro Santa María, entre otros, deberán surtir todos los elementos estipulados en la normatividad vigente y en el PEMP para cualquier intervención que se haga de ellos. La exoneración del impuesto predial para estos inmuebles no tiene sentido, dado que la mayoría de ellos son de propiedad del mismo Municipio.
- Arqueológicos
Este tipo de bienes los rige el Instituto Colombiano de Antropología e Historia ICANH de acuerdo con Ley 397 de 1997, Artículo 5o dicha autorización estará implícita en las licencias ambientales de los proyectos de minería, hidrocarburos, embalses proyectos de infraestructura. También requieren la autorización de esta institución, las intervenciones constructivas en predios mayores a una hectárea y los localizados en los Buffer asignados en el estudio de arqueología. (El primer buffer 500 m tomando como centro el parque principal).
El ICANH es la institución competente en el territorio nacional respecto del manejo del patrimonio arqueológico, pudiendo declarar áreas protegidas en las que existan bienes relacionados con vestigios arqueológicos y aprobará el respectivo Plan de Manejo Arqueológico, siendo una declaratoria que no afecta la propiedad el suelo.
El numeral 1.4 del Artículo 11 de la Ley 1185 plantea respecto a los planes de manejo arqueológico que cuando se efectúen las declaratorias de áreas protegidas de que trata el artículo 6o de este título, se aprobará por el ICANH un Plan Especial de Protección que se denominará Plan de Manejo Arqueológico, el cual indicará las características del sitio y su área de influencia, e incorporará los lineamientos de protección, divulgación y sostenibilidad del mismo.
El municipio de Jericó está ad portas de realizar este plan de manejo dado que muchas de las intervenciones actuales de particulares y en especial públicas están afectando sitios con evidencias caso urbanización Río Piedras, morro El Salvador, entre otros, siendo este un proyecto que queda planteado dentro del programa de conservación del presente PEMCH.
- Bienes Muebles e Inmaterial
Por su alta representatividad en el Centro Histórico y en el Municipio en general, se sugiere realizar los debidos procesos de inventario, registro y Plan Especial de Manejo y Protección y Planes Especiales de Salvaguarda –PES-considerándolos como proyectos en el programa de conservación de la Secretaría y la Fundación Centro Histórico.
6.3.2 Acuerdos Público Privados
En todo caso, el Municipio como entidad Pública podrá realizar acuerdo con entidades privadas para el cumplimiento de sus funciones.
La Ley 1508 del 10 de enero de 2012, regula en Colombia de manera más específica las asociaciones Publicas – Privadas.
El Artículo 1o, las define como "un instrumento de vinculación de capital privado que se materializan en un contrato entre una entidad estatal y a persona natural o jurídica de derecho privado, para la provisión de bienes públicos y de servicios relacionados, que involucra la retención y transferencia de riesgos entre las partes y mecanismos de pago, relacionados con la disponibilidad y el nivel de servicios de la infraestructura y/o servicio".
La Concesión es una forma de alianza publica privada, y puede ser una posibilidad de que algunos bienes de interés cultural, puedan ser concesionados a los particulares, con la idea de que estos los conserven adecuadamente, se potencien económicamente y se genere empleo a partir de los mismos. Se hace referencia por ejemplo a los museos y algunas infraestructuras de interés cultural y patrimonial.
En todo caso, las Alianzas Publicas Privadas, son la posibilidad de sumar recursos vía contrapartidas, en momentos en que los recursos públicos son normalmente escasos y limitados; y al mismo tiempo la posibilidad de compartir riesgos en la ejecución de obras y actividades. El mecanismo más viable es la realización de contratos, aplicando sobre todo la normatividad sobre contratación pública, como son la Ley 80 de 1993 y la Ley 1150 de 2007.
Para la Alianza Publicas – Privadas, el municipio debe realizar previamente un análisis de conveniencia y dictaminar claramente el nivel de riesgo que debe asumir lo público y lo que le corresponde a lo privado, para tener un equilibro en las cargas y beneficios. La calidad del servicio prestado y recibido es fundamental, por ello se requiere una interventoría técnica con solvencia en el tema que garantice el cumplimiento de los compromisos y el fortalecimiento de lo público.
Una ventaja también de las Alianzas Público – Privadas es primero, el tiempo de duración el cual puede llegar a ser incluso hasta 30 años. Y segundo la posibilidad que tiene lo público de realizar aportes en especie para dicha asociación.
Para la selección de la mejor opción de asociación pública - privada, deberá aplicarse el procedimiento de inscripción, selección y valoración de las propuestas establecidas en la Ley 1508 del 10 de enero de 2012.
En todo caso la entidad pública no puede, por mandato constitucional asignarle auxilios, si no es por la vía de la contratación pública. En dichos contratos también es factible que La Entidad Territorial no coloque recursos económicos y que la mayoría de ellos sean asignados por la entidad privada, para lo cual también se debe considerar las posibilidades y limitaciones que establece la legislación sobre contratación pública.
6.3.3 Competencias

6.3.4 Seguimiento y Evaluación del PEMPCH
El seguimiento permanente de las acciones definidas en el PEMP del Centro Histórico de Jericó, es la herramienta que permitirá conocer la evaluación de los resultados e impactos generados en relación con los objetivos propuestos y en concordancia con los indicadores de impacto, ejecución, financieros y de gestión definidos para ello, con el fin planear y ejecutar las acciones de mejora en el momento en que se consideren pertinentes.
En tal sentido, el PEMP está concebido como la herramienta de gestión para la protección y el cuidado del Patrimonio del Centro Histórico y su área de influencia a partir de las condiciones de manejo apoyadas por los programas y proyectos aquí definidos. En el seguimiento y evaluación es importante el manejo y sistematización de la información con todos los actores involucrados de modo que se garanticen continuidad al proceso de participación comunitaria concebida en la planeación del PEMPCH.
Tal como se propone en el aparte relacionado con la gestión interinstitucional, sería el Consejo Municipal de Cultura en Jericó, creado en el año 2013, a partir del Acuerdo Municipal 08 del 23 de mayo, quien haría las veces de veedor social para el seguimiento y evaluación del Plan Especial de Manejo y Protección, acompañado de los delegados de la instancia que declara, Ministerio de Cultura.
En dicho Consejo tienen participación la mayor parte de la población del Municipio a partir de la representación de las diferentes organizaciones públicas y privadas con representación legal, siendo esta organización que se considera con la mejor representación a nivel cultural para desarrollar dicha labor. El seguimiento a la implementación del presente Plan Especial de Manejo y Protección debe estar acorde al Plan de Acción propuesto entendiendo que se trata de programas y proyectos que deben ser enriquecidos y superados en el tiempo en la medida que se logre una efectiva gestión interinstitucional y una efectiva consecución de recursos económicos
7. CONDICIONES DE MANEJO FINANCIERO
7.1 INCENTIVOS Y FUENTES DE FINANCIACIÓN PARA LA PROTECCIÓN DE BIENES DE INTERES CULTURAL
La Constitución Política de Colombia en su Artículo 8o del Título l plantea que "Es obligación del Estado y de las personas proteger las riquezas culturales y naturales de la Nación". Igualmente se plantea que el "Estado tiene el deber de promover y fomentar el acceso a la cultura de todos los colombianos en igualdad de oportunidades, por medio de la educación permanente y la enseñanza científica, técnica, artística y profesional en todas las etapas del proceso de creación de la identidad nacional".
En su Artículo 313 la Constitución define apara los Concejos votar de conformidad con la Constitución y la Ley los tributos y los gastos locales y dictar las normas necesarias para el control, la preservación y defensa del patrimonio ecológico y cultural del Municipio.
Los propietarios de BIC, se ven limitados en el ejercicio del derecho de propiedad frente a los inmuebles, por lo que la Ley contempla compensaciones en los tratamientos de conservación tal como lo contempla Ley 388 de 1997, "Por la cual se modifica la Ley 9 de 1989, y la Ley 2 de 1991 y se dictan otras disposiciones", preceptúa que:
"Artículo 48. COMPENSACION EN TRATAMIENTOS DE CONSERVACION. Los propietarios de terrenos e inmuebles determinados en los planes de ordenamiento territorial o en los instrumentos que los desarrollen como de conservación histórica, arquitectónica o ambiental, deberán ser compensados por esta carga derivada del ordenamiento, mediante la aplicación de compensaciones económicas, transferencias de derechos de construcción y desarrollo, beneficios y estímulos tributarios u otros sistemas que se reglamenten".
Para el municipio de Jericó y en el marco de la Ley expresada anteriormente se proponen exenciones relacionadas con impuesto predial e impuesto de renta, tal como se desarrolla a continuación:
7.1.1 Incentivos
7.1.1.1 Exención de impuesto predial
Históricamente, los propietarios de inmuebles con valor patrimonial del Municipio, han asumido en toda su dimensión, los costos inherentes al mantenimiento y conservación de dichos inmuebles, siendo un patrimonio que se ha llevado con orgullo tanto por los particulares como por la comunidad y la administración municipal, lo que le ha representado históricamente ocupar un sitial de privilegio en el ámbito cultural, tanto a nivel regional, departamental y nacional.
Puede plantearse que desde el año 1981, cuando se inician los primeros estudios del patrimonio del Municipio, sin desconocer todos los proyectos de acuerdo definidos a lo largo de su historia tendientes a mantener este patrimonio, se empieza a institucionalizar de manera más oficial la obligación de mantener estos inmuebles patrimoniales, los cuales son ya objeto de alguna manera de afectación, al restringirse sus posibilidades de uso, sin que se haya presentado hasta ahora por parte de la administración municipal, algún tipo de compensación económica por dicha afectación, considerando que es el momento de asumir de alguna forma, la deuda histórica de la administración municipal con los propietarios de aquellas construcciones que han llenado de orgullo y admiración a propios y extraños.
El municipio de Jericó en ejercicio de las atribuciones constitucionales y legales, específicamente en lo relacionado con la autonomía fiscal, puede establecer exenciones en los tributos de su competencia, de manera temporal y dentro del límite establecido en la Ley 14 de 1983, la que plantea que en ningún caso pueden exceder los diez años dicha exención de impuesto.
La exención que se propone es de vital importancia para el Municipio, para mantener y preservar los BIC, dado que la Ley 388 de 1997, plantea que la limitación a los derechos de propiedad que implica a los administrados tener un bien de estas características, debe ser reconocida por parte del Estado, en cuyo caso podrán reconocer compensaciones económicas, transferencias de derechos de construcción y desarrollo, beneficios y estímulos tributarios, entre otros elementos de compensación.
Para que un propietario de inmueble sometido al tratamiento de conservación pueda tener derecho a ser compensado por esta carga, debe mantener el inmueble en adecuadas condiciones relacionadas con la declaratoria de conservación, o en caso contrario presentar un proyecto integral de recuperación del inmueble.
Hay que tener presente que el incumplimiento a las obligaciones de conservación de un inmueble que goza de estímulos económicos para su conservación, acarrea sanciones que van desde devolver el monto de la compensación actualizado con IPC más 10 puntos, hasta su restitución.
Como incentivo para su conservación tendrán derecho a exención del impuesto predial unificado, hasta por 10 años después de aprobado (Ley 14 de 1983, Artículo 38), los predios que de acuerdo al PEMP fueron declarados como BIC bajo las categorías de Conservación: N1, Integrales (I), N2, Arquitectónicos (A) o N3, Contextuales (C); estos últimos clasificados a su interior como Compatibles N3-C, Incompatibles N3-I, Lotes o predio sin construcción N3-L, recordando que la exención no aplica a N3 Incompatibles, ni Lotes sin construcción.
Es de recordar que según el Acuerdo 030 de 2013, el Municipio tiene definidas las siguientes tarifas para el cobro del impuesto predial: predios cuyas destinación económica es habitacional, cultural, institucional, agropecuario y salubridad, la tarifa es del 5 x 1000; para los inmuebles con destinación comercial el 6 x 1000, mientras que para los de uso industrial, recreacional y lotes la tarifa es el 9 x 1000.
El citado Acuerdo también contempla que para los predios de los estratos 1, 2 y 3 cuyo avalúo no supere los 135 SMMLV, el milaje aplicado será del 3 x 1000 para el 2014, 4x1000 para la vigencia del 2015 y 5x1000 para la vigencia del 2016 en adelante.
Igualmente, el Municipio contempla otros mecanismos para incentivar el pago de impuestos de su población, a partir de rebajas por pronto pago, entre otros mecanismos.
A continuación se hace una propuesta encaminada a compensar las edificaciones que hacen parte del Centro Histórico y su zona de influencia, de alguna manera proporcional a los niveles de afectación de los mismos de acuerdo a su estado de conservación, a partir de la rebaja del impuesto predial que se cobra sobre dichos inmuebles. Se aclara que los cálculos realizados aquí respecto a los montos que significan las excepciones del impuesto predial propuestos para el Municipio, se basan en cálculos aproximados, por lo que al momento de ser implementadas deberán ser calculadas en su dimensión exacta.
Así mismo se deja claro que los cálculos realizados parten de los presupuestos municipales del año de 2013, además de la información predial del mismo año.
Se llama la atención la existencia de imprecisiones en la información catastral consultada y la realidad encontrada en los trabajos de verificación en campo, al comprobar en algunos casos que hay predios que aparecen con divisiones en la información catastral y que en la realidad dichas subdivisiones no existen, sucediendo igualmente lo contrario; predios con subdivisiones que no aparecen en la información catastral. Para la categoría de los bienes clasificados como de N1, conservación Integral (I), se propone una exención del 100% de impuesto predial para dichos predios, recordando que dentro de esta categoría se encuentran 43 inmuebles que son 60 predios en manos de 117 propietarios. Se calcula que 12 de los predios no pagan impuesto predial, bien sea por ser propiedad del Municipio o de la Iglesia o por tratarse de Espacio público.
Así las cosas, el monto destinado por el municipio de Jericó por esta exención para incentivar la conservación de los BIC y considerando el impuesto predial como el 6 por mil del avalúo catastral (Acuerdo municipal 030 de 2013), además de no contemplarse la instituciones de carácter religioso y propiedades del Municipio que se consideran no paga impuesto el monto sería de $24'585.051 año, de acuerdo a los cálculos que se presentan en la tabla de Excel (Exoneración de impuesto predial) que se anexa en archivo magnético, en la que aparecen los propietarios con el respectivo porcentaje de propiedad sobre el BIEN.
Para los inmuebles clasificados como Arquitectónicos (N2), se propone una exoneración del 70% del impuesto predial que actualmente se cobra, quedando cobijados bajo este privilegio 97 inmuebles que corresponden a 100 predios en manos de 163 propietarios.
Considerando que alrededor de 9 predios de los catalogados como Arquitectónicos no pagan impuesto predial y calculando dicho impuesto como el 3x1000 del avalúo catastral, sin discriminar el uso o estrato del inmueble, la deducción sumaría $ 19´634.585.
Para el caso de los predios considerados dentro de la clasificación de bienes de carácter Contextual (N3-C), sería 741 en manos de 844 propietarios.
Para esta categoría la disminución del impuesto predial estaría tasada en $ 37´775.780, asumiendo un promedio de impuesto predial tasado en el 3x1000 sobre los inmuebles catalogados bajo la categoría de Contextual compatibles (N3-C).
Así las cosas, en caso de aplicar el incentivo propuesto, el municipio de Jericó dejaría de percibir por impuesto predial $ 81´995.417, recordando que esta cifra es aproximada, pero que estaría cumpliendo con la Ley al compensar a los propietarios afectados por la declaratoria de sus inmuebles como BIC.
En principio el Municipio compensaría estos recursos con los provenientes de la puesta al día en impuestos de quienes se acojan a él, puesto que sería un requisito estar a paz y salvo para su aplicación.
Dado que un número importante de las construcciones clasificadas con conservación integral y arquitectónica al momento se encuentran exentas de impuestos se propone que aquellas que en la actualidad se clasifiquen en estrato 3 y 4 sean reclasificadas a estrato 2, logrando así incentivos para estas a partir de menores pagos de servicios públicos.
Para el Municipio poder realizar esta exención del impuesto predial y considerando que este tributo es de esta Entidad Territorial, es necesario que se elabore y presente un Proyecto de Acuerdo que debe ser presentado a aprobación del Concejo Municipal.
Para que el Proyecto de Acuerdo sea aprobado, debe incluirse una exposición de motivos derivada de este informe y al mismo tiempo unas condiciones para que los particulares puedan disfrutar de esta exención, como ya se indicó.
La elaboración del Proyecto de Acuerdo debe tener su origen en la Secretaria de Planeación, pero debe llevar el visto bueno del Secretario de Hacienda del Municipio.
7.1.1.2 Deducciones de renta gravable
El Artículo 77 numeral 2 del Decreto 953 se plantea: Gastos deducibles por conservación y mantenimiento de BIC: Por mantenimiento y conservación. Serán deducibles los gastos efectuados en:
i. Contratación de servicios relativos a la protección, conservación e intervención del BIC. Materiales e Insumos necesarios para la conservación y mantenimiento del BIC.
iii, Tratándose de documentos escritos o fotográficos, son deducibles los gastos que se efectúen para la producción, copia y reproducción de los mismos, siempre que estos tengan fines de conservación y en ningún caso de distribución o finalidad comercial.
iv. Equipos necesarios y asociados directa y necesariamente a la implementación del Plan Especial de Manejo y Protección - PEMP- del respectivo BIC.
Parágrafo Primero. Para la aplicación del beneficio previsto en el numeral 2 de este artículo los gastos correspondientes deberán estar previamente discriminados en el proyecto de intervención que apruebe la autoridad competente de efectuar la declaratoria del BIC.
Parágrafo Segundo. Para la aplicación del beneficio previsto en el numeral 2 de este artículo, los gastos efectuados serán deducibles hasta en un período de cinco (5) años gravables, siempre que la autoridad competente de la declaratoria del BIC confronte y certifique la correspondencia de los gastos efectuados con el proyecto de intervención autorizado, o PEMP aprobado cuando éste exista. Para estos efectos, la comprobación de la realización efectiva de gastos sólo será aceptable mediante factura expedida por quien suministre el bien o servicio a nombre del propietario del BIC, en los términos del Estatuto Tributario.
Parágrafo Tercero. Para la aplicación del beneficio previsto en el numeral 2 de este artículo el Ministerio de Cultura podrá fijar escalas máximas de costos según diferenciaciones sobre intervenciones en bienes muebles o inmuebles.
Parágrafo Cuarto. Para la aplicación del beneficio previsto en el numeral 2 de este articulo se aceptarán los gastos realizados en el territorio nacional para la protección, conservación y mantenimiento del bien, salvo que por especiales circunstancias de imposibilidad técnica o por Imposibilidad de prestación de tales servicios en el país, los servicios, materiales e insumos necesarios deban adquirirse en el exterior, y ello se encuentre aprobado en el proyecto de intervención o en el PEMP si fuere el caso.
Parágrafo Quinto. Para el caso del patrimonio arqueológico, teniendo en consideración que éste pertenece a la Nación, lo establecido en los numerales 1 y 2 de este articulo será aplicable a las entidades estatales oí.le siendo contribuyentes del Impuesto de renta realicen los gastos descritos en relación con la formulación y aplicación de Planes de Manejo Arqueológico, siempre y cuando éstos no correspondan a programas de arqueología preventiva ligados a los proyectos, obras o actividades a cargo de la respectiva entidad.
Los gastos realizados en los Planes de Manejo Arqueológico definidos, tendrán lugar en el marco de convenios con el Instituto Colombiano de Antropología e Historia - ICANH-. En este caso el ICANH será competente para expedir las acreditaciones de que tratan ambos numerales.
Parágrafo Sexto. Es responsabilidad del beneficiario del incentivo reglamentado en este artículo el cumplimiento de sus obligaciones fiscales y la acreditación de gastos que le fuera solicitada por la Dirección de Impuestos y Aduanas Nacionales, de ser el caso.
7.1.1.3 Subsidios en tasa de interés sobre créditos
El Decreto 1762 del 23 de agosto de 2012 contempla: Artículo 1o. Objeto. De conformidad con lo establecido en el parágrafo del literal b) del numeral 3) del artículo 270 del Estatuto Orgánico del Sistema Financiero, la Financiera de Desarrollo Territorial S. A. - FINDETER, implementará una línea de redescuento en pesos con tasa compensada para financiar la rehabilitación, mejoramiento y/o adaptación de los inmuebles patrimoniales localizados en los centros históricos declarados Bienes de Interés Cultural Nacional - BICN para uso de vivienda. Los beneficiarios de esta línea de redescuento con tasa compensada serán las personas naturales o jurídicas, públicas o privadas, propietarias de los inmuebles patrimoniales ubicados en centros históricos declarados BICN con Planes Especiales de Manejo y Protección - PEMP, en los términos del artículo 11 de la Ley 397 de 1997, Ley General de Cultura, modificado por el artículo 7o de la Ley 1185 de 2008 y el artículo 14 del decreto 763 de 2009 respectivamente.
Artículo 2. Tasa de Interés final. La tasa de interés final ofrecida por los intermediarios financieros será hasta del DTF más dos por ciento trimestre anticipado (DTF + 2%) (T.A.), con plazo de hasta diez (10) años, incluido hasta un (1) año de gracia a capital. Fuentes de financiación.
Artículo 3. Tasa de redescuento. Con el fin de lograr la tasa de interés final, la Financiera de Desarrollo Territorial S.A. - FINDETER ofrecerá a los intermediarios financieros, una tasa de redescuento hasta del DTF menos dos por ciento trimestre anticipado (DTF - 2%) (T.A.).
7.2 FUENTES DE FINANCIACIÓN
7.2.1 Estampilla Pro Cultura
Regulación: Artículo 38 y artículo 38-5, ley 397 de 1997, modificados por la ley 666 de 2001; artículo 41 de la ley 1379 de 2010, modificado por el artículo 10 de la ley 1393 de 2010. Destinación específica: Debe comprobarse que el departamento, municipio o distrito a través de las entidades competentes, destine el producto de la estampilla exclusivamente a:
1. Estimular y promocionar la creación, la actividad artística y cultural, la investigación y el fortalecimiento de las expresiones culturales del artículo 18 de la ley 397 de 1997. 2 Estimular la creación, funcionamiento y mejoramiento de espacios públicos para actividades culturales. 3 Participar en la dotación de centros y casas culturales y propiciar la infraestructura que las expresiones culturales requieran. 4 Fomentar la formación y capacitación técnica y cultural del creador y del gestor cultural. 5 Destinar un 10% del recaudo, para seguridad social de creadores y gestores culturales. 6 Apoyar programas de expresión cultural y artística, fomentar y difundir las artes en todas sus expresiones y las demás previstas en los artículos 17 y 18 de la ley 397 de 1997. 7 Destinar como mínimo un 10% del recaudo para las bibliotecas públicas de la Red Nacional de Bibliotecas Públicas en cada jurisdicción, sin que este valor pueda financiar nómina ni presupuesto de funcionamiento. Lo anterior no es obligatorio para los distritos que cuenten con fuentes de recursos diferentes a la estampilla, y que en el monto descrito, al menos, se arbitren hacia las bibliotecas públicas. De acuerdo con el Estatuto Tributario (2002) del municipio de Jericó, Artículo 97, la estampilla procultura se recauda con el fin de fortalecer la actividad cultural del municipio y se aplica a los contratos de obra e interventoría que celebre el municipio de Jericó.
Las tarifas que se aplican a la Estampilla Pro Cultura son del 0.5% para contratos desde 5 hasta 10 SMMLV, 1% para contratos desde 11 a 15 SMMLV, 2% para contratos desde 16 SMMLV en adelante.
La destinación (Artículo 99) de los recursos generados por la Estampilla Pro Cultura, están definidos actualmente para funcionamiento, mantenimiento y dotación de la casa de la Cultura del municipio de Jericó, a lo que se propone destinar el 50% de dichos fondos para el manejo y protección del Centro Histórico.
7.2.2 Recursos propios.
El municipio de Jericó, el cual por ley se encuentra clasificado como un municipio de sexta categoría, contaba para el año 2013 con un presupuesto inicial de $6.822.941.005. Después de adiciones y demás ajustes terminó el periodo con un presupuesto definitivo de $16.162.361.742. Lo anterior deja en evidencia un municipio con una solvencia importante para su categoría dada su buena capacidad para la gestión de recursos. Sin embargo la situación financiera de Jericó no ha sido tan estable en las últimas décadas.
Para comienzos del año 2000, se llevó a cabo un proceso de saneamiento fiscal con el cual se buscaba reducir la deuda pública del Municipio. A pesar de esto en el periodo administrativo comprendido entre 2004 y 2007 había presencia de un gran endeudamiento público; a razón de lo anterior en el año 2008 la deuda pública de Jericó ascendía a 3.500 millones de pesos, por lo cual en el año 2009 lo cobijó la Ley 617 del 2000 mediante la cual por obligación entró en un proceso de saneamiento fiscal y financiero.
Bajo el marco normativo de esta Ley, el Municipio debía de evidenciar la situación en la que se encontraba frente a las posibles soluciones que se presentaban para solucionar el problema en el que se encontraba. Con el hecho de haber entrado en Ley 617, para la administración hubo una serie de repercusiones. Dentro de estas últimas se puede destacar el hecho de que la autonomía del municipio se pierde en la medida en que hay una imposición a restringir el endeudamiento máximo y que además se hace un recorte de presupuesto para de esta manera lograr de alguna forma solventar la situación financiera.
En relación con lo anterior, el Municipio entró en un proceso fiscal, viéndose abocado a gestionar un mayor recaudo de impuestos para aumentar los ingresos, apoyándose en una disminución del gasto para generar un balance positivo. Puede entenderse esta situación como un castigo por una ineficiencia en el manejo y gestión administrativa.
De esta manera y acogiéndose a la normatividad, en el año 2012 Jericó logró superar su crisis fiscal y financiera, saliendo así de la Ley 617.
Por otro lado es importante rescatar el hecho de que en su momento la administración de Jericó recibió una gran cantidad de demandas por concepto de inconsistencia en el pago de mesadas pensionales. Dicho proceso conllevó a que el Municipio entrara en un proceso de acuerdos, conciliaciones y negociaciones con los acreedores de dichas pensiones sin pagar.
De igual manera, Jericó en medio de su reforma fiscal comenzó con la elaboración de un Estatuto Tributario que derogara el anterior. Esto con el fin de que el nuevo Estatuto supliera huecos y falencias que el anterior presentaba sin presentar reformas considerables en muchos años. El nuevo Estatuto Tributario se elaboró en 2013 y se espera que para el 2014 ya entre en vigencia, estando en proceso de revisión para su aprobación por parte del Concejo Municipal.
Económicamente Jericó es un municipio que presenta una alta dependencia de recursos con una cantidad de rubros de recursos propios reducida. Un ejemplo claro de esta situación es el rubro del recaudo del impuesto predial unificado, el cual para el año 2013 fue de $1.220.000.000, representando un 7,6% del presupuesto definitivo, el cual fue de $16.162.361.742.
Otro ejemplo de lo anterior lo constituyen rubros que son de vital importancia para el Municipio pues hacen parte de sus ingresos propios más representativos. Entre estos se pueden mencionar el impuesto de Industria y Comercio ($363.035.952), el degüello de ganado menor ($9.891.000), expedición de licencias de construcción ($276.862.640), sobretasa a la gasolina ($264.612.000), sobretasa ambiental ($188.866.383). Sumando las cantidades definitivas de estos rubros anteriormente mencionado la cifra ascendía para su momento a $1.103.267.975, es decir un 6,8% del total del presupuesto definitivo para ese año.
Con respecto a la Sobretasa al Impuesto Predial (Artículo 44 de la Ley 99 de 1993), los cuales son recaudados por el Municipio pero que deben ser entregados a la Autoridad Ambiental respectiva, en este caso, CORANTIOQUIA, se considera pertinente concertar con esta entidad, que vía proyectos sean devueltos dichos recursos, sobre todo si se tiene en cuenta que de lo recaudado, el 50% debe ser invertido en lo urbano y el restante 50% en lo rural. En ese sentido, los recursos de la Sobretasa al Impuesto Predial de ser devueltos al Municipio se constituirían en recursos importantes para la gestión del Centro Histórico.
Todo lo anterior evidencia la gran dependencia que un Municipio de sexta categoría, como lo es Jericó, puede llegar a tener en entradas de dinero tan reducidas en materia de rubros relacionados con ingresos propios en donde el 14,4% de los ingresos propios que tuvo Jericó para el año 2013 correspondieron a 5 rubros específicos.
Esto desencadena en que el cuidado que se debe tener sobre ese ingreso es considerable, puesto que un movimiento abrupto de dicha cuenta afecta el funcionamiento del Municipio.
La Ley 1176 de 2007, por medio de la cual se desarrollan los artículos 356 y 357 de la Constitución Política y se dictan otras disposiciones con relación al Sistema General de Participaciones, establece como se debe de hacer la repartición de estas contribuciones que hace la Nación a las entidades territoriales, bien sean Departamentos o Municipios los cuales deben ser destinados para la financiación de los servicios a su cargo, en salud, educación y los definidos en el Artículo 76 de la Ley 715 de 2001.
Acorde lo anterior la norma establece cuatro niveles en los cuales se deben de destinar esos recursos transferidos. Dichos niveles se conforman de la siguiente manera:
Una participación con destinación específica para el sector educación, que se denominará participación para educación, correspondiente al 58,5% del total transferido.
Una participación con destinación específica para el sector salud, que se denominará participación para salud, correspondiente al 24,5% del total.
Una participación con destinación específica para el sector agua potable y saneamiento básico, que se denominará participación para agua potable y saneamiento básico, correspondiente al 5,4% del total.
Una participación de propósito general, correspondiente al 11,6% del total.
De igual forma, el artículo 21 de la mencionada Ley establece como deben ser utilizados los recursos transferidos correspondientes a propósito general dependiendo de la categoría a la que corresponda cada municipio. De esta manera, los "municipios clasificados en las categorías 4, 5 y 6, podrán destinar libremente, para inversión u otros gastos inherentes al funcionamiento de la administración municipal, hasta un cuarenta y dos por ciento (42%) de los recursos que perciban por la Participación de Propósito General.
Del total de los recursos de la participación de propósito general asignada a cada distrito o municipio una vez descontada la destinación establecida para inversión u otros gastos inherentes al funcionamiento de la administración municipal de que trata el inciso anterior y la asignación correspondiente a los municipios menores de 25.000 habitantes, definida en el inciso 3 del Artículo 4o del Acto Legislativo 04 de 2007, cada Distrito y Municipio destinará el cuatro por ciento (4%) para deporte y recreación, el tres por ciento (3%) para cultura y el diez por ciento (10%) para el Fondo Nacional de Pensiones de las Entidades Territoriales, Fonpet. Los recursos restantes deben ser destinados a inversión, en desarrollo de las competencias asignadas por la ley."(12)
De acuerdo con lo anterior, y poniéndolo sobre la realidad del Municipio en cuestión, Jericó – Antioquia, el ingreso que este percibió por concepto de las transferencias por medio de SGP para libre destinación a partir del año 2009 y hasta el 2013 se compone de la siguiente forma:
Tabla 10.Recursos de libre destinación de los últimos años en el Municipio

De esta manera se evidencia que mediante las transferencias del Sistema General de Participaciones – SGP, de libre destinación, hay unas sumas importantes y constantes años a año que en conformidad a la Ley, pueden ser dispuestas para inversión libre en los sectores que sean inherentes al funcionamiento de la administración.
De igual forma, como este dinero es destinado para diferentes propósitos al interior del Municipio y la realización de diferentes proyectos, un porcentaje de dichas cantidades puede ser destinado a la preservación del Patrimonio Cultural de Jericó, a la financiación de la administración del Centro Histórico que permita el adecuado funcionamiento del mismo y la eficiencia en materia de gestión.
Teniendo en cuenta la sensibilidad de la que sufre un Municipio de presupuesto reducido como es Jericó, una de las cuentas susceptibles a ser utilizadas y que pueden ser consideradas por la administración municipal para la financiación de proyectos o de herramientas de gestión como resultaría ser el PEMP, es la relacionada con los ingresos de libre destinación que se mencionaron con anterioridad
7.2.3 Donaciones
Las donaciones se pueden constituir en una de las fuentes de recursos más importante para el ente gestor, puesto que el municipio de Jericó cuenta con un importante número de personajes que han nacido allí o su descendencia hace parte de la dirigencia de importantes empresas y conglomerados financieros a nivel departamental, nacional e internacional, la mayoría de ellos comprometidos con el Municipio y dispuestos a colaborar, en la medida en que se cuente con una organización sería y responsable, en este caso, que se encargue del manejo y protección del Centro Histórico de Jericó.
Se trata de recursos económicos que las entidades pueden donar y ser objeto de deducción por renta, por lo que solamente se estaría requiriendo de una entidad capaz de detectar las personas y empresas potencialmente interesadas en colaborar con el Municipio, para entrar a gestionar el proceso de donaciones, todo ello enmarcado dentro del estatuto tributario, del cual se retoman a continuación algunos artículos a tener en cuenta.
Art. 125.- Deducción por donaciones. Los contribuyentes del impuesto de renta que estén obligados a presentar declaración de renta y complementarios dentro del país, tienen derecho a deducir de la renta el valor de las donaciones efectuadas, durante el año o período gravable, a: 1. Las entidades señaladas en el artículo 22, y 2. Las asociaciones, corporaciones y fundaciones, sin ánimo de lucro, cuyo objeto social y actividad correspondan al desarrollo de la salud, la educación, la cultura, la religión, el deporte, la investigación científica y tecnológica, la ecología y protección ambiental, la defensa, protección y promoción de los derechos humanos y el acceso a la justicia o de programas de desarrollo social, siempre y cuando las mismas sean de interés general.
El valor a deducir por este concepto, en ningún caso podrá ser superior al treinta por ciento (30%) de la renta líquida del contribuyente, determinada antes de restar el valor de la donación. Esta limitación no será aplicable en el caso de las donaciones que se efectúen a los fondos mixtos de promoción de la cultura, el deporte y las artes que se creen en los niveles departamental, municipal y distrital, al Instituto Colombiano de Bienestar Familiar -ICBF- para el cumplimiento de sus programas del servicio al menor y a la familia, ni en el caso de las donaciones a las instituciones de educación superior, centros de investigación y de altos estudios para financiar programas de investigación en innovaciones científicas, tecnológicas, de ciencias sociales y mejoramiento de la Productividad, previa aprobación de estos programas por el Consejo Nacional de Ciencia y Tecnología.
Art. 125-1.- Requisitos de los beneficiarios de las donaciones. Cuando la entidad beneficiaria de la donación que da derecho a deducción, sea alguna de las entidades consagradas en el numeral segundo del artículo 125, deberá reunir las siguientes condiciones:
1. Haber sido reconocida como persona jurídica sin ánimo de lucro y estar sometida en su funcionamiento a vigilancia oficial.
2. Haber cumplido con la obligación de presentar la declaración de ingresos y patrimonio o de renta, según el caso, por el año inmediatamente anterior al de la donación.
3. Manejar, en depósitos o inversiones en establecimientos financieros autorizados, los ingresos por donaciones.
Art. 125-2.- Modalidades de las donaciones. Las donaciones que dan derecho a la deducción deben revestir las siguientes modalidades:
1. Cuando se done dinero, el pago debe haberse realizado por medio de cheque o tarjeta de crédito a través de un intermediario financiero.
2. Cuando se donen títulos valores, se estimarán a precios de mercado de acuerdo con el procedimiento establecido por la Superintendencia de Valores. Cuando se donen otros activos, su valor se estimará por el costo de adquisición más los ajustes por inflación efectuados hasta la fecha de la donación, menos las depreciaciones acumuladas hasta esa misma fecha.
Art. 125-3.- Requisitos para reconocer la deducción. Para que proceda el reconocimiento de la deducción por concepto de donaciones, se requiere una certificación de la entidad donataria, firmada por revisor fiscal o Contador, en donde conste la forma, el monto y la destinación de la donación, así como el cumplimiento de las condiciones señaladas en los artículos anteriores.
En ningún caso procederá la deducción por concepto de donaciones, cuando se donen acciones, cuotas partes o participaciones, títulos valores, derechos o acreencias, poseídos en entidades o sociedades.
Art. 125-4.- Requisitos de las deducciones por donaciones. Las deducciones por donaciones establecidas en disposiciones especiales, serán otorgadas en las condiciones previstas en el artículo 125 del Estatuto Tributario.
Art. 126.- Deducción de contribuciones a fondos mutuos de inversión. Las empresas podrán deducir de su renta bruta, el monto de su contribución al fondo mutuo de inversión.
Art. 126-2.- Deducción por donaciones efectuadas a la corporación general Gustavo Matamoros D'costa. Los contribuyentes que hagan donaciones a organismos deportivos y recreativos o culturales debidamente reconocidos que sean personas jurídicas sin ánimo de lucro, tienen derecho a deducir de la renta, el 125% del valor de las donaciones efectuadas durante el año o período gravable.
Para gozar del beneficio de las donaciones efectuadas, deberá acreditarse el cumplimiento de las demás condiciones y requisitos establecidos en los artículos 125-1, 125-2 y 125-3 del Estatuto Tributario y los demás que establezca el reglamento.
Como ya se indicó, las donaciones son una fuente probable e importante de la Entidad Sin Ánimo de Lucro de Carácter privado y mixto, denominada Fundación, que es además una posibilidad para concertar las Alianzas Publicas – Privadas en favor de la administración y manejo del Centro Histórico.
7.2.4 Peaje Turístico
El municipio pueden establecer, a través de su Concejo de Municipal, consciente de que es de "gran valor histórico y cultural" con menos de 100 mil habitantes, previo concepto de los ministerios de Cultura, de Comercio Industria y Turismo, de Hacienda y del Consejo Superior de Turismo, un peaje turístico con destino a la preservación de sitios, construcciones y monumentos municipales. La tarifa no puede superar un salario mínimo diario por vehículo de servicio público o comercial, o medio por vehículo particular. (Ley 300 de 1996, artículo 25)
El Peaje turístico se constituye en una opción muy interesante de ingresos para el Municipio, máxime cuando está la construcción del tramo de las Autopistas de La Prosperidad, conexión Pacifico 1, la cual acerca al municipio al centro y occidente del país, con un alto potencial de visitantes que querrán conocer los atributos culturales y naturales de Jericó, aclarando que se deberán establecer las excepciones que se requieran, de acuerdo al tipo de propietario o vehículo de que se trate.
El peaje estaría localizado en el sitio donde se localizan las partidas hacia Jericó y Tarso, considerando que no sería rentable por los bajos flujos vehiculares colocar otros peajes en las entradas a Jericó desde Pueblo Rico, Támesis o Andes. Una tarifa propuesta en principio, considerando que se debe realizar estudios más detallados para su definición, podría ser de $4.000 pesos automóvil, $6.000 buses y busetas (no pertenecientes a las empresas que prestan el servicio regular de transporte al municipio) y $ 2.000 motocicleta.
Los cálculos anteriores se realizan teniendo en cuenta la información del aforo referenciado en el documento diagnóstico, en el que se reporta para un día domingo un flujo de 98 vehículos particulares, 11 taxis, 15 buses 4 camiones y 213 motos. Se considera igualmente para los cálculos, que el resto de la semana se presenta un flujo equivalente al 20% de los datos obtenidos y que el peaje funcionaria los 7 días de la semana durante una sola jornada, obteniendo así ingresos por valor de $ 8.758.000 mensuales, siendo esta una cifra conservadora puesto que se espera un incremento importante de visitantes al Municipio.
7.2.5 Fomento al Consumo Local de Gasolina
De acuerdo a lo estipulado Decreto 0568, por el cual se reglamenta parcialmente la Ley 1607 de 2012, y específicamente en el Artículo 5o. Base Gravable y Tarifa. El Impuesto Nacional a la Gasolina y al ACPM, se establecen las tarifas generales o diferenciales siendo de mencionar el Impuesto Nacional a la gasolina extra liquidado a razón de $1.555.00 por galón y el Impuesto Nacional de la Gasolina Motor Corriente y el del ACPM, a razón de $1.075.62 por galón.
Recordando que para el año 2013, el municipio de Jericó, obtuvo ingresos de $264.612.000 por este concepto, se propone a través del fomento al consumo de combustibles dentro del municipio aumentar dichos ingresos, destinando el 50% del aumento logrado, para el sostenimiento del centro histórico, lo cual se contempla de divulgación del PEMP.
7.2.6 Recurso IVA Telefonía Celular El Artículo 470 del Estatuto Tributario, adicionado por el artículo 11 de la ley 1393 de 2010; decreto 4934 de 2009. Se define que el servicio de telefonía móvil está gravado con una tarifa del 20%, donde se tiene prevista una sobretasa del IVA de un 4% que debe destinarse a inversión social y distribuirse así:
Un 75% para el plan sectorial de fomento, promoción y desarrollo del deporte, y una serie de eventos deportivos. El 25% restante debe girarse al Distrito Capital y a los departamentos acorde con criterios del sistema general de participación establecidos en la ley 715 de 2001, para que mediante convenio con municipios y/o distritos que presenten proyectos que sean viabilizados, se destine a programas de fomento y desarrollo deportivo e infraestructura (50% de este rubro); y también, al fomento, promoción y desarrollo de la cultura y actividad artística (el otro 50% del total de este rubro). Del total de este rubro mínimo un 3% debe arbitrarse hacia fomento, promoción y desarrollo deportivo, recreación de deportistas con discapacidad y programas culturales y artísticos de gestores y creadores culturales con discapacidad. De manera que la sobretasa del IVA se distribuye en 87.5% para el deporte, y en 12.5% para cultura.
Destinación específica: Según el 4934 de 2009 el porcentaje de IVA para cultura debe canalizarse por los municipios y distritos, a proyectos relativos al Patrimonio Cultural de la Nación que en cada caso viabilice el Departamento respectivo, en las siguientes líneas de acción:
Desarrollo de inventarios y registros del patrimonio cultural de acuerdo con la metodología establecida por el Mincultura.
Protección, promoción y difusión por medio de campañas de prevención, sensibilización, educación y formación de la comunidad y apoyo a la conformación o fortalecimiento de grupos de Vigías del Patrimonio.
Apoyo a la formulación de Planes Especiales de Manejo y Protección –PEMP- de Bienes de Interés Cultural –BIC- (inmuebles del grupo urbano y de monumentos en espacio público; así como de inmuebles del grupo arquitectónico y colecciones de bienes muebles de propiedad pública).
Formulación y ejecución de Planes Especiales de Salvaguardia –PES- de manifestaciones incluidas en las Listas Representativas de Patrimonio Cultural Inmaterial –LRPCI-.
Desarrollo de actividades de conservación, mantenimiento periódico e intervención de BIC, con prioridad para los del ámbito nacional y a aquellos en riesgo o en situación de emergencia, entre los que pueden apoyarse tanto los de propiedad pública como privada.
- Fortalecimiento de museos, archivos, bibliotecas patrimoniales y centros de memoria locales, escritura de guiones museográficos, dotación y programación.
- De conformidad con la ley 1393 de 2010, sin perjuicio de la descrita gama de proyectos antes descritos, cuya prioridad, conveniencia o necesidad definen libremente los municipios y distritos, es obligatorio que:
- Los municipios que logren la viabilización de sus proyectos, destinen el porcentaje (3% de lo recibido) que señala la ley 1393 de 2010, artículo 11, para programas culturales y artísticos de gestores y creadores con discapacidad.
- Los departamentos destinen al menos el 50% del total de la sobretasa de IVA de cultura, a las manifestaciones declaradas Patrimonio Cultural Inmaterial de la Humanidad por la UNESCO (hasta hoy el espacio cultural de San Basilio de Palenque, Carnaval de Negros y Blancos, las Procesiones de la Semana Santa de Popayán, Carnaval de Barranquilla, las músicas de la marimba y cantos tradicionales del sur del Pacífico de Colombia, y el sistema normativo Wayuu), naturalmente previa presentación de proyectos al Departamento por los respectivos municipios y distritos en los cuales tengan ocurrencia o espacio tales manifestaciones.
Acceso a los recursos: En el caso de los departamentos, estos recursos se destinarán a proyectos de los municipios y distritos de su jurisdicción, mediante convenios interadministrativos, una vez el departamento avale los proyectos que le presenten éstos. Los municipios que no presentan proyectos o que presentándolos no reciben el aval del departamento, no tienen acceso a estos recursos.
Para viabilizar los proyectos municipales, el Departamento debe obtener concepto favorable del Consejo Departamental de Patrimonio Cultural. Si el proyecto presentado por un Municipio o distrito se refiere a intervenciones sobre bienes de interés cultural de carácter nacional, antes de que se produzca la viabilización por parte del Departamento, se requiere la autorización específica del Ministerio de Cultura.
Si el proyecto alude a intervenciones de bienes muebles o inmuebles de interés cultural del ámbito territorial, éstas deben contar con la autorización de la entidad competente que realizó la declaratoria. Una vez viabilizados proyectos presentados por los municipios o distritos de su jurisdicción, el Departamento debe suscribir el respectivo convenio con éstos, para lo cual se requiere un concepto previo favorable del Ministerio de Cultura.
7.2.7 Fondos de Inversión
Hoy en Colombia y en América Latina, se han fortalecido los Fondos para apoyar la gestión de entidades públicas y privadas.
Se es consciente que tanto en Colombia como en América Latina, los insuficientes recursos de las entidades públicas, pero además, la reducida eficiencia para su ejecución por parte de estas mismas entidades, hace necesario entidades más flexibles y agiles en la gestión y aplicación de recursos.
De igual manera, la corrupción imperante en el sector público, hace desconfiar a entidades privadas de cooperación al desarrollo, tanto técnica como financiera, de la conveniencia de entregar recursos directamente a entidades públicas, colocando como una opción a los fondos privados, incluso para apoyar la ejecución y financiación de actividades y funciones de las mismas entidades públicas.
En Colombia las experiencias más exitosas de Fondos están en lo ambiental. Se conocen la Corporación ECOFONDO, el Fondo de Patrimonio Natural, el Fondo Patrimonial MALPELO y El Fondo para la Acción Ambiental y la niñez.
Aun cuando se constituyen como fondos privados, muchos de ellos han recibido aportes de entidades públicas internacionales, entidades privadas de filantropía, y canjes de deuda externa al desarrollo, como fue el caso de las dos primeras.
Los Fondos, en este caso para la obtención y ejecución de recursos en favor de la conservación y manejo del Patrimonio histórico, arquitectónico y cultural de Jericó, pueden ser patrimoniales o extinguibles.
En los Fondos Patrimoniales, los recursos son administrados para la obtención de una rentabilidad, la cual es invertida en la financiación de proyectos, manteniendo como mínimo el capital.
En los Fondos extinguibles, se busca también obtener utilidad con las inversiones, pero al final tanto la rentabilidad como el capital se acaban en la medida en que se financian proyectos y actividades específicas.
En Colombia existen las dos experiencias, y se han podido atraer para el país varios millones de dólares que han apoyado la gestión del patrimonio natural. Nada impide que esta experiencia también pueda ser reproducida por ejemplo, para la obtención de recursos para la gestión y administración del patrimonio arquitectónico, histórico y cultural, esto es para la gestión del patrimonio cultural.
Dos posibilidades se pueden dar para el municipio de Jericó; constituir el Fondo y empezar a gestionar los recursos, o a través de la Fundación, realizar un convenio con uno de los Fondos existentes en Colombia para que gestionen estos recursos a nivel internacional y obtenido los recursos esperados, ellos administren financieramente los mismos, a cambio de una cuota o porcentaje de administración. Es un gana – gana, donde los fondos crean una nueva línea de financiación, y por otro lado, se fortalece la Fundación y los sitios de patrimonio y el Centro Histórico de Jericó.
Los recursos obtenidos se administran como fondos privados, con la eficiencia de los mismos. Se puede acordar en el convenio de gestión de recursos con la Fundación que obtenidos los recursos, se constituya una Junta Directiva o Técnica, para la definición de los criterios y políticas para la aplicación de los mismos.
Se recomienda la opción segunda, o sea que se realice a través de la Fundación y que sean fondos patrimoniales, con una junta en la cual participe la Fundación para definir los criterios y políticas de financiación y apoyo a proyectos.
Una posibilidad para la gestión y administración de recursos económicos, lo constituyen las Fiducias, reguladas en el Código de Comercio de Colombia.
Son actos de confianza en donde una persona natural o jurídica llamado Fideicomitente entrega unos bienes, transfiriendo o no la propiedad de estos, a una sociedad fiduciaria para que cumpla una finalidad.
Cuando los bienes son transferidos se denomina fiducia mercantil y se constituye un patrimonio autónomo; pero cuando es solo la entrega de los bienes se habla de un contrato de encargo fiduciario.
Lo ideal para administrar los bienes que se puedan adquirir por diferentes medios para la gestión del Centro Histórico, es un encargo fiduciario, en el cual se generan las siguientes obligaciones para el Fiduciario:
- Mantener informado a las partes.
- Brindar asesoría de tipo administrativo y financiero.
- Proteger los bienes fideicomitidos
- Actuar siempre con lealtad y buena fe en el manejo de los recursos.
- Diligencia, profesionalidad y especialidad, en la función encomendada.
- Actuar con previsión con respecto a los recursos entregados.
En todo caso, como ventaja cuando se realiza un contrato de fiducia donde hay transferencia de bienes, se constituye un patrimonio autónomo que es el titular de dichos bienes. La sociedad fiduciaria es quien actúa como vocera y administradora de dicho patrimonio, lo cual brinda mayor agilidad y eficiencia en la administración de los recursos, por ejemplo para realizar pagos, giros, contratos, entre otros.
7.2.8 FONDO NACIONAL DE TURISMO - FONTUR
Se trata de un fondo que apoya los diferentes proyectos relacionados con el turismo, con especial énfasis en aquellos que tiene que ver con Centros Históricos, siendo un Fondo a partir del cual el municipio de Jericó ha logrado obtener financiación para algunos proyectos, por lo que se considera se cuenta con experiencia para acceder a los recursos de este fondo.
Puede acceder a los fondos de FONTUR La entidades territoriales, las entidades mixtas de promoción turística, los aportantes de la contribución parafiscal, los gremios que agrupan a los aportantes de contribución parafiscal.
Para mayor información consultar el Manual para la Destinación de Recursos y Presentación de Proyectos.
7.2.9 TRIBUTACIÓN INCREMENTAL – "TAX INCREMENT FINANCING"*
En la década de 1950, específicamente en 1952, el Estado de California en los Estados Unidos de América incursionó en el mundo de la tributación con una figura revolucionaria enfocada hacia la consecución de recursos para ser destinados al desarrollo de las municipalidades de su Estado. Esta herramienta, denominada específicamente en su origen como "Tax Increment Financing – TIF" y que podría llegar a traducir al español algo como Tributación Incremental.
Es claro que para las municipalidades, en este caso el municipio de Jericó, es muy complicado la consecución de recursos que puedan ser destinados libremente para desarrollo de proyectos y no estrictamente para una destinación específica como el funcionamiento y que recorta sustancialmente la capacidad de gestión para el desarrollo del municipio sea cual sea. Si bien existen modelos económicos que permiten mayores recursos para los municipios como los son los subsidios financiados por el Gobierno central, la herramienta de la Tributación Incremental puede ser considerada como una de las más populares en los Estados Unidos. Por esta razón, a mediados del siglo XX en los Estados Unidos se adoptó este modelo que permitía a las administraciones locales tener disponible mayores cantidades de dinero para inversión libre.
En sus comienzos fue poco utilizada por parte de los Estados, en las primeras dos décadas de su implementación; solo 6 de los 50 Estados de Estados Unidos implementaban esta herramienta. Sin embargo con el pasar de los años su utilización sufrió un incremento dramático. A esto se le sumó que los Estados que ya tenía cierta experiencia en el manejo de "TIF" comenzaron a hacer más flexibles los requerimientos necesarios para ser beneficiarios de los ingresos recibidos gracias a su implementación. Ya para la década comprendida entre 1990 y el año 2000 el incremento en la utilización del "TIF" correspondía al 260% solo para Estados ajenos a California, el Estado donde comenzó.
La descripción textual en que consiste este mecanismo dice que "el 'TIF' es un término utilizado para denominar el proceso mediante el cual las municipalidades utilizan una porción de sus ingresos futuros por concepto de impuestos relacionados con un área específica y para ser utilizados en el desarrollo de esa misma área."(13)
Si bien las condiciones que enmarcarían una posible implementación de un modelo similar en el municipio de Jericó son sustancialmente diferentes a las encontradas en las diferentes municipalidades y condados de los Estados unidos, se puede llegar a hacer un paralelo con los elementos en común que permitan el desarrollo de este concepto y poder aprovechar al maximo los beneficios que conlleva y minimizar las falencias que pueda llegar a presentar.
Para su ejecución o puesta en marcha, el primer paso que se debe de seguir es el de una clara identificación y una demarcación de un área específica que permita delimitar el uso de los recursos a percibir. De esta manera y en consecuencia con lo anterior se delimita el área a intervenir y que es la que está en necesidad de aplicación de recursos y la que requiere la elaboración de proyectos que permitan su desarrollo.
A raíz de que lo que permite la "Tributación Incremental" es la utilización de unos recursos futuros, se hace fundamental la creación de un fondo. Este fondo funciona en la medida en que la administración central hace una serie de préstamos o de venta de bonos (si es el caso), acción que se ve respaldada por los ingresos futuros que se esperan percibir por cuestión de impuestos, (los cuales se calculan mediante un proyección financiera). Además estos ingresos por tributación se dividen en dos, (o en la proporción que se considere necesario), con el fin de que una parte ingrese al fondo creado para el "TIF" y el resto siga ingresando al municipio con normalidad y puedan ser utilizados a discreción de la administración.
Al área delimitada y escogida a merecer y necesitar los recursos de la herramienta del "TIF", se le adjudica un periodo de tiempo limitado para que aproveche estos recursos, (por ejemplo 15 años). Al final del periodo en cuestión, la cuenta o el fondo en el que se estaban destinando los recursos cesa y el flujo del recaudo de impuestos retorna a su normalidad a las cuentas del municipio a las que ingresaban con anterioridad a la implementación del mecanismo
Es de vital importancia resaltar el hecho de que los impuestos que se destinan a la creación del fondo y a la inversión en proyectos de desarrollo de un sector en específico son escogidos por la administración teniendo en cuenta lo que sea requerido para suplir las necesidad en cuestión. Pueden ser uno o varios impuestos los afectados y en proporciones diferentes.
Sin embargo, hay una serie de consideraciones que deben ser tenidas en cuenta puesto que la aplicación de esta herramienta contrae unos riesgos que si bien se pueden minimizar, es fundamental tenerlos en cuenta para el feliz término y efectiva aplicación de recursos.
El principal elemento a tener en cuenta es el hecho fundamental de que se está trabajando con los ingresos esperados a recibir por concepto de impuestos. Lo anterior conlleva a que la certeza de que se va a percibir X o Y cantidades de dinero es incierta. Bien puede darse el caso en el que lo que se reciba sea tal cual lo que se proyectó y no se presenta problema alguno. Sin embargo existe la posibilidad de que la cantidad sea sustancialmente menor, caso en el que las obligaciones deben ser solventadas de otra manera, que puede ser adversa, por ejemplo el aumento de impuestos. O el caso en que la cantidad sea superior a lo esperado, sin inconveniente.
Por su parte, otra condición que se puede presentar y que debe ser evitada es el hecho de que los recursos que se presupuestaron y se destinan para la inversión en desarrollo del área delimitada u objeto de estudio se desvíen y sean utilizados en un sector diferente. El control de estas situaciones es el elemento a tener en cuenta.
La premisa central bajo la que debe de ser desarrollo este mecanismo de financiación de proyectos de desarrollo es que el bien público siempre debe primar sobre el privado. Por lo cual la utilización y destinación de los recursos debe hacerse de la manera más juiciosa para no perjudicar a los futuros ciudadanos que paguen sus impuestos con normalidad y cumplimiento.
Con relación a lo anterior y siguiendo la línea de pensamiento de la buena utilización de los recursos, otra de las acciones que se deben de seguir es que a medida que el "TIF" esté en vigencia, la administración central debe gestionar y tener presente que la duración de la herramienta es limitada lo cual la obliga a que al término de la misma su funcionamiento debe seguir, es decir que debe haber un desarrollo y una inversión extra que sea capaz de brindar las condiciones necesarias para el futuro del proyecto que se haya desarrollado.
Como se puede apreciar, el "TIF" es una herramienta muy útil si se sabe aprovechar y aplicar con idoneidad. Sin embargo se hace necesario un sistema que sirva de garante de los resultados en la aplicación de este mecanismo. Es decir que se debe de garantizar de alguna manera, mediante veeduría y exposición de resultados por parte de la administración, que la aplicación del recurso es válida y eficiente.
De igual manera se propone que se haga una revisión al presupuesto del Municipio con el fin de considerar la creación de una cuenta o un rubro que sea destinado específicamente para el patrimonio de Jericó, y de esta manera poder establecer de donde pueden provenir los recursos que alimenten esa cuenta. Bien pueden ser donaciones, recursos propios, los recursos resultantes de la aplicación de la Tributación Incremental, entre otros.
7.2.10 Plusvalía
La plusvalía se puede definir como el incremento en los precios del suelo que no se derivan del esfuerzo o trabajo de su propietario sino de decisiones o actuaciones del ordenamiento territorial o de inversiones públicas que realiza entidades estatales.
Según la Ley 388 de 1997 - Artículo 73 "...las acciones urbanísticas que regulan la utilización del suelo y del espacio aéreo urbano incrementando su aprovechamiento, generan beneficios que dan derecho a las entidades públicas a participar en las plusvalías resultantes de dichas acciones".
Hechos que generan la Plusvalía:
- Incorporación de suelo rural a suelo de expansión urbana o la consideración de suelo rural como suburbano.
- Establecimiento o modificación del régimen o la zonificación de usos del suelo.
- Autorización de mayores aprovechamientos del suelo en edificación, bien sea elevando el índice de ocupación o el índice de construcción, o ambos a la vez.
Los recursos provenientes de plusvalía podrían ser destinados por el municipio para la recuperación y administración del Centro Histórico, siendo el Concejo Municipal mediante acuerdo de carácter general, las normas para la aplicación de las participación en la plusvalía que se genere el municipio, siendo conscientes que a la fecha son pocos los Municipios que han logrado poner en práctica este mecanismo para la obtención de ingresos, pero que es necesario mirar la posibilidad de aplicarlo en Jericó, en donde los procesos de parcelación y expansión urbana vienen en aumento. El procedimiento para abordar el tema de la plusvalía se puede consultar en los Artículos 75 a 85 de la Ley 388.
7.2.11 Gastos deducibles de Renta
El Artículo 77 del Decreto 763 de 2009 plantea la posibilidad de que los gastos que se realicen tanto para la elaboración de Planes Especiales de Manejo y Protección y conservación de BIC serán deducibles de impuestos; para los primeros se pondrá destinar hasta un monto máximo de 100 SMLM vigentes, siempre y cuando estas sean aprobados por la autoridades competentes. Para la aplicación del beneficio de mantenimiento y conservación en los BIC, los gastos serán deducibles hasta en un periodo de 5 años gravables y los montos pueden ser concertados con el Ministerio de Cultura.
7.2.12 Dinamización de la Economía
A lo largo del tiempo, el patrimonio cultural con énfasis en el componente arquitectónico se han constituido en el elemento dinamizador del turismo hacia el municipio de Jericó, representado en edificaciones que si bien se han logrado conservar en el tiempo, en la actualidad se ven amenazadas por la falta de claridad en las políticas y medios para lograr en forma decidida su conservación, sin olvidar el impacto generado por el turismo religioso a partir de la canonización de la Madre Laura, el cual en el momento actual se ha visto diezmado, dejando expectativas e infraestructuras sin continuidad en la utilización esperada.
Con la recuperación del Centro Histórico y su declaratoria como BIC de carácter Nacional, se logrará imprimir una nueva dinámica a las actividades económicas del Centro Histórico de Jericó en el que además de activar industrias como la marroquinería y alimenticia, se dinamizará especialmente el sector terciario relacionado con servicios generados alrededor de la actividad turística a la que conlleva la recuperación y sostenimiento de un Centro Histórico como este, entendiendo el marco cultural general bajo el que se mueve el municipio al que se asocia un patrimonio intangible relacionado con manifestaciones culturales que atraen a propios y a extraños y cuya magnitud no se presenta en otros pueblos de Antioquia.
Hasta el momento, el Municipio ha contado con planes turísticos que asumen los atractivos tanto naturales como culturales, como simples listados que no logran valorar en su dimensión estos importantes recursos focales para el turismo con diferentes énfasis, en especial en el ámbito cultural, esperando ahora que con la declaratoria del Centro Histórico y su recuperación, este sea protagónico dentro de este nuevo contexto, entendiendo en que hay que redefinir el planteamiento estratégico de la actividad ecoturística asumiendo ésta de manera integral, entendiendo que esta actividad debe enmarcarse siempre dentro del contexto patrimonial que caracteriza el Municipio.
De otro lado se destaca la generación de una serie de proyectos que serán en última instancia le aporten una nueva dinámica económica a este Centro Histórico.
7.3 PLAN DE ACCIÓN
El presente plan de acción se asume como el instrumento general que contiene la programación, la ejecución y el control de las acciones que deben llevarse a cabo desde las diferentes instancias para dar cumplimiento al PEMP en concordancia con la visión y los objetivos estratégicos, con el fin de operativizar y hacer realidad la recuperación, protección y conservación del Centro Histórico, definiendo para ello los indicadores, responsables y plazos para la ejecución de las acciones del PEMP:
Tabla 11... Plan de acción


7.4 PROGRAMAS Y PROYECTOS
Los programas definen la ruta para alcanzar la visión y los objetivos, partiendo de la evaluación de los elementos diagnóstico, para concretar los escenarios deseables a alcanzar con el PEMP, recordando que el escenario aquí visualizado es un Centro Histórico recuperado y habilitado para sus habitantes con calidad de vida y sentido de pertenencia hacia él.
Se recuerda que si bien en la propuesta de manejo se identifican y priorizan acciones, programas y proyectos encaminadas a la recuperación y conservación del Centro Histórico, no puede perderse de vista el carácter integral del PEMP, que indica que todos las intervenciones propuestas sobre el territorio del Municipio deberán estar articuladas al Plan Especial de Manejo y Protección del Centro Histórico de Jericó, entendiendo que a pesar de ser éste un territorio con dinámica propia, deberá mantenerse el PEMP como eje estructurante de la planeación territorial.
Dentro de este contexto a continuación se definen los programas y proyectos que viabilizan el PEMP, los cuales de acuerdo a su prioridad se establecerán a nivel de perfil o se lleva su desarrollo a proyecto, utilizando la Metodología General Ajustada y para los cuales se adjuntan archivo magnético.
Si bien se asumen una serie de proyectos que de una u otra forma convergen en la recuperación y conservación del Centro Histórico, no necesariamente estos dependen del PEMP para su gestión y consecución de recursos, considerando que aquí son dos los primeros proyectos de conservación los que estarían garantizando la estabilidad de los suelos que soportan en el Centro Histórico actual. Son estos los proyectos Estudios para la identificación de los factores desestabilizantes en los suelos del municipio Jericó, Antioquia, Occidente y el Estudio para el levantamiento de información de redes de acueducto y alcantarillado Jericó, Antioquia, Occidente, cuya inversión se estima en $181.500.000, para su primera fase que como se planteó anteriormente son los estudios que definirán las intervenciones requeridas.
Para ello el municipio de Jericó puede aplicar con proyectos a recursos de por la prelación que tiene al ser incluido en La Red de Pueblos Patrimonio en el año 2013.
Tabla 12... Programa de Conservación




8. PLANIMETRÍA
La planimetría y cartografía de la actualización del Diagnostico como de la Formulación hace parte constitutiva de este PEMCH se entrega en un Atlas Cartográfico. Así mismo el Levantamiento Fotográfico de las manzanas constitutivas del Centro Histórico y la ficha normativa por manzanas conforman otros documentos independientes, de tal manera que permita una consulta ágil del inmueble obteniendo datos como valoración y nivel de conservación para su intervención.
ATLAS CARTOGRÁFICO
1. Localización Municipio de Jericó (Colombia, Antioquia, Suroeste)
ACTUALIZACIÓN DIAGNÓSTICO
2. Desfiles cívicos
3. Desfiles instituciones educativas
4. Desfiles religiosos
5. Fiestas patronales
6. Procesiones de Semana Santa
7. Recepción obispos
8. Zona de expansión según EOT
9. Áreas de protección a los retiros de quebradas
10. Zonas de vida del municipio de Jericó
11. Algunas áreas protegidas en el municipio de Jericó
12. Amenazas por inundación
13. Amenaza por movimientos en masa
14. Sectores morfológicos
15. Número de pisos por predio
16. Espacios públicos en el área urbana
17. Zonas verdes públicas urbanas - conectividad
18. Señalización
19. Mobiliario urbano
20. Postes en vías publicas
21. Sistema Vial Principal
22. Recorridos de los visitantes
23. Puntos de concentración y algunos recorridos
24. Intersecciones con mayores conflictos vehiculares
25. Estacionamientos existentes
26. Ocupación del espacio público
27. Predios en cada uso -general-
28. Predios en cada uso –primer piso-
29. Predios en cada uso – segundo piso-
30. Predios en cada uso –bajos-
31. Localización de la planta de potabilización de agua y plantas para el tratamiento
32. Redes de acueducto en el área urbana
33. Redes de alcantarillado en el área urbana
34. Servicios de telecomunicaciones en el área urbana
35. Perímetros de verificación del PEPCH 2007 y el perímetro de verificación sugerido a 2014
36. Estado de conservación PEMP 2014 - Colcultura 1996
37. Niveles de conservación resultado del trabajo de campo
FORMULACIÓN
1. Traza de poblamiento 1855
2. Traza de poblamiento 1900
3. Traza de poblamiento 1935
4. Todas las trazas de poblamiento
5. Trazas de poblamiento y área propuesta para Centro Histórico según EOT 2010 6. Valoración
7. Perímetro del centro histórico
8. Perímetros de la zona de influencia
9. Perímetros del centro histórico y la zona de influencia
10. Propuesta áreas del centro histórico y zona de influencia
11. Propuesta de niveles de conservación N1
12. Propuesta de niveles de conservación N2
13. Propuesta de niveles de conservación N3
14. Propuesta de niveles de conservación N1- N2- N3
15. Propuesta Ambiental
16. Equipamientos en la propuesta urbana general
17. Localización del proyecto de Terminal de Transportes
18. Predios de Oportunidad Escuela de Artes y Oficios
19.Espacios público Propuesto Prioridad Actuación
20.Corredores con prioridad peatonal en la propuesta urbana
21.Circulación vehicular en la propuesta urbana
22. Propuesta urbana general Prioridad Actuación
23.Tratamientos urbanísticos en el EOT de Jericó
24. Delimitación de tratamientos urbanísticos en el Centro Histórico y su Zona de Influencia
25.Usos del suelo en el EOT de Jericó
26.Propuesta de zonificación de usos del suelo en el Centro Histórico y su Zona de Influencia
27.Alturas propuestas en el Centro Histórico y su Zona de Influencia
LEVANTAMIENTO FOTOGRAFICO CENTRO HISTÓRICO Y ZONA DE INFLUENCIA
Como parte del documento técnico de soporte del Plan Especial de Manejo y Protección, se entrega un documento independiente a doble carta, el Levantamiento fotográfico o registro continuo por manzanas con la debida valoración, nivel de intervención y nomenclatura.


BIBLIOGRAFIA
ANGEL GONZALEZ. Guillermo. Temas de la historia jericoana plaza de Jericó. Jericó, No. 28, Año XVIII, 1991.
La Gruta Bohemia. En: Arango Aguirre, Sandra Milena et al. Voces, susurros y ecos de mi región. Trabajo final de Habilidades, oralidad. Escuela Normal Superior de Jericó. 1998.
La plaza de Jericó su parque. En: Jericó. Órgano del Centro de Historia de Jericó, Año XIX, N° 29, 1992.
Lugares históricos de Jericó. En: Jericó, Órgano del Centro de Historia de Jericó Año XXII, Nº 31, 1995.
Plano urbano de Jericó en el momento de la fundación. En: Jericó. Órgano del Centro de Historia de Jericó, Año XXIV, N° 32, 1996- 1997.
Breve historia de la plaza de Jericó- II. En: Jericó, Órgano del Centro de Historia de Jericó Año XIX, Nº 29, 1992
COLCULTURA-UNIVERSIDAD NACIONAL. Estudio del Centro Histórico de Jericó. Centro de Investigaciones, Facultad de Arquitectura, Medellín, 1996.
CONGRESO DE COLOMBIA. LEY 65 DE 1909 (Diciembre 14) sobre división territorial. Recuperado de: http://www.alcaldiabogota.gov.co/sisjur/normas/Norma1.jsp?i=13468l
GALLEGO, Pompilio (Monseñor) Jerico Plaza De Bolivar y Parque Reyes 1852-1961. En jerico Organo del centro de Historia de Jerico Año XXII, N31, 1995
GUTIÉRREZ, Rufino. Jericó. En: Monografías de Rufino Gutiérrez T. I Biblioteca Virtual Biblioteca Luis Ángel Arango. http://www.banrepcultural.org/blaavirtual/historia/uno/uno51a.htm.
JARAMILLO, Daniel. La plaza de Jericó. En Jericó. Órgano del Centro de Historia. Año XXII, N° 31, 1995.
LLANO, Teodomiro. Biografía del señor Gabriel Echeverrí. S.f. http://biblioteca-virtual-antioquia.udea.edu.co/pdf/11/11_2096607250.pdf
LÓPEZ, Hugo. El desarrollo histórico de la industria en Antioquia. En: Los estudios regionales en Colombia. El caso de Antioquia. FAES, Medellín, 1982.
MARÍN BEDOYA, Avelino. Municipio de Jericó. Sinopsis histórica. En: IX Asamblea Antioqueña de Centros de Historia. Envigado, 1986. Fondo de Publicaciones del centro de Historia de Envigado,
MELO, Jorge Orlando. Predecir el pasado: ensayos de historia de Colombia. Colección Historia No. 4 fundación Simón y Lola Guberek, Santa Fe de Bogotá, 1992.
Mi hojita Parroquial No 713, Jericó, junio 1 de 1969.
Monografías del Departamento de Antioquia. Jericó – Támesis. 1935.
MORALES ESCOBAR, José Bernardo. Sociedad de Mejoras Públicas de Jericó. Ochenta y ocho años de civismo y cultura. Documento en Word. Jericó, 2001.
MUNICIPIO DE JERICÓ. DECRETO No. 046, Por medio del cual se establece el Estatuto Municipal de Medio Ambiente de Jericó. Jericó, mayo 18 DE 1992.
OROZCO VALENCIA, Benjamín. Historia. En: Monografía de Jericó. Medellín, 1957
PÁRAMO,Pablo; Cuervo, Mónica. Universidad Pedagógica Nacional; Iberoamericana Institución Universitaria. Bogotá, Primera edición, 2006.
PERFETTI, Verónica. La transformación de la estructura urbana de Medellín. Fundación para la promoción de la investigación y la tecnología. Santa Fe de Bogotá, 1994. V. I
QUEMBA GUERRERO, Avelino. Recuperación del patrimonio histórico del municipio de Jericó 1850-1925. Universidad Pedagógica Nacional- CINDE, trabajo de grado presentado como requisito para optar el título de Magíster en Desarrollo educativo y social. Medellín, 1993.
Recopilación de la Leyes de los Reynos de las Indias. Libro III, Título Siete. V. Consejo de la Hispanidad, Madrid, 1943. Citado por: PERFETTI, Verónica. La transformación de la estructura urbana de Medellín. Fundación para la promoción de la investigación y la tecnología. Santa Fe de Bogotá, 1994. V I.
RESTREPO R. Nelson. Monografía Jericó de Antioquia "La Atenas del Suroeste". Documento inédito. 2013.
ROBLEDO, Emilio. Bosquejo biográfico del señor oidor Juan Antonio Mon y Velarde visitador de Antioquia 1785 – 1788, T.I., Banco de la República, Archivo de la Economía Nacional, Bogotá, 1945.
SOSSA, Oliva. Rincones jericoanos. En: Jericó, Órgano del Centro de Historia de Jericó Año V, Nº 14, 1978.
SUÁREZ, Nabor. Monseñor. Síntesis histórica de la creación de la parroquia Nuestra Señora de las Mercedes de Jericó. En: Mirador del Suroeste No. 31. Medellín, junio-julio de 2009, p 34-36.
SUAREZ, Nabor. Pbro. Histórico cincuentenario. En: Jericó, Órgano del Centro de Historia de Jericó Año V, Nº 14, 1978.
TEJADA CÓRDOBA, V. Temperancia y luz eléctrica en Jericó. Imprenta Oficial, Medellín, 1906.
TRIMESTRAL, Medellín, diciembre de 2002.
UNIVERSIDAD NACIONAL DE COLOMBIA SEDE MEDELLÍN. Facultad de Arquitectura – Centro de Investigaciones. Estudios del patrimonio cultural de Antioquia y el Viejo Caldas. Medellín, 1979.
URIBE ANGEL, Manuel. Geografía General y Compendio Histórico del Estado de Antioquia en Colombia. París. Imprenta de Víctor Goupy y Jourdain 71, calle de Rennes, 71. 1885.
URIBE ANGEL, Manuel. Periódico El Montañés, Medellín, Números 9 y 10, mayo junio de 1898. En: JERICÓ. Órgano del centro de Historia de Jericó. Año V, No. 11, 1978
VÉLEZ RENDÓN, Juan Carlos. La configuración económica, política y social de Jericó, 1840-1930. Trabajo de Grado, Departamento de Historia, Universidad de Antioquia, Medellín, 1993
Los pueblos allende el río Cauca: la formación del Suroeste y la cohesión del espacio en Antioquia, 1830-1877. Clío. Editorial Universidad de Antioquia, Medellín, 2002.
VILLA, Lucía, Nabor Suárez y otros. Jericó y su crónica. Atrio cubierto de la catedral de Jericó. En: Jericó, Órgano del Centro de Historia de Jericó, Año 1°, N° 3, Editorial Granamérica, 1974.
VILLEGAS, Manuel Antonio. SJ. Mis impresiones de Jericó. En: Jericó. Órgano del Centro de Historia. Año 2, N° 4, 1975.
Acuerdos Municipio de Jericó. Archivo Municipal. 1870-20xx
Archivo Histórico de Jericó (AHJ), 1866, Legajo No 10.
Archivo Histórico de Jericó. Legajo 2, 1874
KienyKe (4 de octubre de 2013). 'Los hoteles de la Iglesia Católica en Colombia' en: KienyKe. http://www.kienyke.com/economia/los-hoteles-de-la-iglesia-catolica-en-colombia/ [Consultado el 16 de noviembre 2014].
Portilla, Isabel (9 de diciembre de 2009). 'El legado vigente de los oficios en Colombia' en: Pesquisa. Publicación de divulgación científica y tecnológica Pontificia Universidad Javeriana. http://www.javeriana.edu.co/revistas/Ofi/ pesquisa/wordpress/?p=341 [consultado el 16 de noviembre de 2014].
Ministerio de Cultura, Dirección de Patrimonio, Programa Escuelas Taller de Colombia (s. f.). Escuelas Taller de Colombia. Herramientas de Paz. http://www.programaescuelastallercolombia.com/component/content/category /10-formacion [consultado el 16 de noviembre de 2014].

















































NOTAS AL FINAL:
1. Frase utilizada por Un habitante de Jericó para describir su casa. Septiembre 2014
1. En 1910, una reforma a la Constitución reordena el territorio en Departamentos, Municipios, y crea las Comisarías y las Intendencias.
2. Estados Unidos de Colombia – Estado Soberano de Antioquia. Cuadro del Distrito de Jericó formado por el veedor Luis M. Velásquez con arreglo a la Ley de 1. De abril de 1858 que manda levantar el censo general de la unión. Círculo del sudoeste Distrito de Jericó. Jericó, 29 de octubre de 1883. En JERICÓ, año IX, No. 19, 1982.
3. ÁNGEL GONZÁLEZ, Guillermo. La plaza de Jericó su parque. En: Jericó. Órgano del Centro de Historia de Jericó, Año XIX, N° 29, 1992. El autor señala al inicio del texto: Muchas noticias de las siguientes fueron tomadas por Benjamín Orozco en un valioso archivo oficial, desaparecido en el incendio de un edificio situado aproximadamente frente a la entrada al Museo de Arte Religioso, en Carrera 5ª; otros del Archivo Departamental; otros del Archivo Histórico de Antioquia. Otros del Constituido en 1973 como Archivo Histórico de Jericó, otros tomados de periódicos jericoanos; otros recibidos de la tradición oral de personas fuertemente serias, testigos oculares de hechos o que recibieron de sus progenitores toda la integridad seria de la tradición.".Al interior del texto no se hace ninguna cita referencial.
4. Manifestaciones de diferentes habitantes de Jericó entrevistados entre el 19 y el 23 de agosto de 2014.
5. Prólogo al texto: Historia social situada en el espacio público de Bogotá desde su fundación hasta el siglo XIX. Pablo Páramo, Mónica Cuervo. Universidad Pedagógica Nacional; Iberoamericana Institución Universitaria. Bogotá, Primera edición, 2006, p. 13.
6. Se menciona que había juegos prohibidos como el "loo", y que su ejecución se castigaba con cárcel pero no se describe el juego ni se desarrolla el tema en ningún texto.
7. Congreso de la República de Colombia, (2009). Decreto Nacional 763, reglamenta parcialmente la Ley 397 de 1997, modificada por la Ley 1185 de 2008, y la Ley 814 de 2003, en lo pertinente al Patrimonio Cultural de la Nación de naturaleza material y al Régimen Especial de Protección de los Bienes de interés Cultural. Diario Oficial 47287 de 2009. Bogotá.
8. Congreso de la República de Colombia, (2008). Ley 1185 de 2008, Modifica la Ley 397 de 1997. Artículo 4o Bien de Interés Cultural: Conjunto de bienes inmateriales y materiales, muebles e inmuebles, que poseen un especial interés histórico, artístico, estético, plástico, arquitectónico, urbano, arqueológico, ambiental, ecológico, lingüístico, sonoro, musical, audiovisual, fílmico, científico, testimonial, documental, literario, bibliográfico museológico, antropológico y las manifestaciones, los productos y las representaciones de la cultura popular...Diario Oficial 46929 de marzo 12 de 2008. Bogotá.
9. Congreso de la República de Colombia (2009), Ley 1185 de 2009 "Artículo 5o: El Sistema Nacional de Patrimonio Cultural de la Nación está constituido por el conjunto de instancias públicas del nivel nacional y territorial que ejercen competencias sobre el patrimonio cultural de la Nación, por los bienes y manifestaciones del patrimonio cultural de la Nación, por los bienes de interés cultural y sus propietarios, usufructuarios a cualquier título y tenedores, por las manifestaciones incorporadas a la Lista Representativa de Patrimonio Cultural Inmaterial, por el conjunto de instancias y procesos de desarrollo institucional, planificación, información, y por las competencias y obligaciones públicas y de los particulares, articulados entre sí, que posibilitan la protección, salvaguardia, recuperación, conservación, sostenibilidad y divulgación del patrimonio cultural de la Nación.
10. Existen siete predios a 2014 en el área urbana con detalle mirar lado del Coliseo poseen antejardín.
11. El color, dentro de la valoración estética, es uno de los elementos atribuibles en el proceso de la valoración del contexto urbano en sectores consolidados, por tanto, es imprescindible considerar este antecedente como referente histórico. Para el caso específico de Jericó, Antioquia, Pre inventario Colcultura 1981 y Estudio del Centro Histórico de Jericó Colcultura 1996.
12. LEY 1176 de 2007, TÍTULO V, Participación de propósito general, Artículo 21, en línea disponible en: www.icpcolombia.org
13. KERTH Rob, BAXANDALL Phineas, Tax Increment Financing, US PIRG EDUCATION FUND, 2011.